Spain Rustic estate Spain Rustic estate Alicante Rustic estate Biar Finca rústica en Diseminado Partida Marfullar s/n

Sale of rural property in Diseminado Partida Marfullar s/n , Biar

Alicante, Biar, Diseminado Partida Marfullar s/n
240 000 €
960 € / m2
Leave review
Rustic estate Property type
1900 Year of delivery
250 m² built square meters
300 000 m² Land area
1 Bathrooms
To be renovated Property status
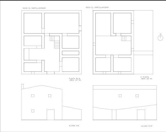
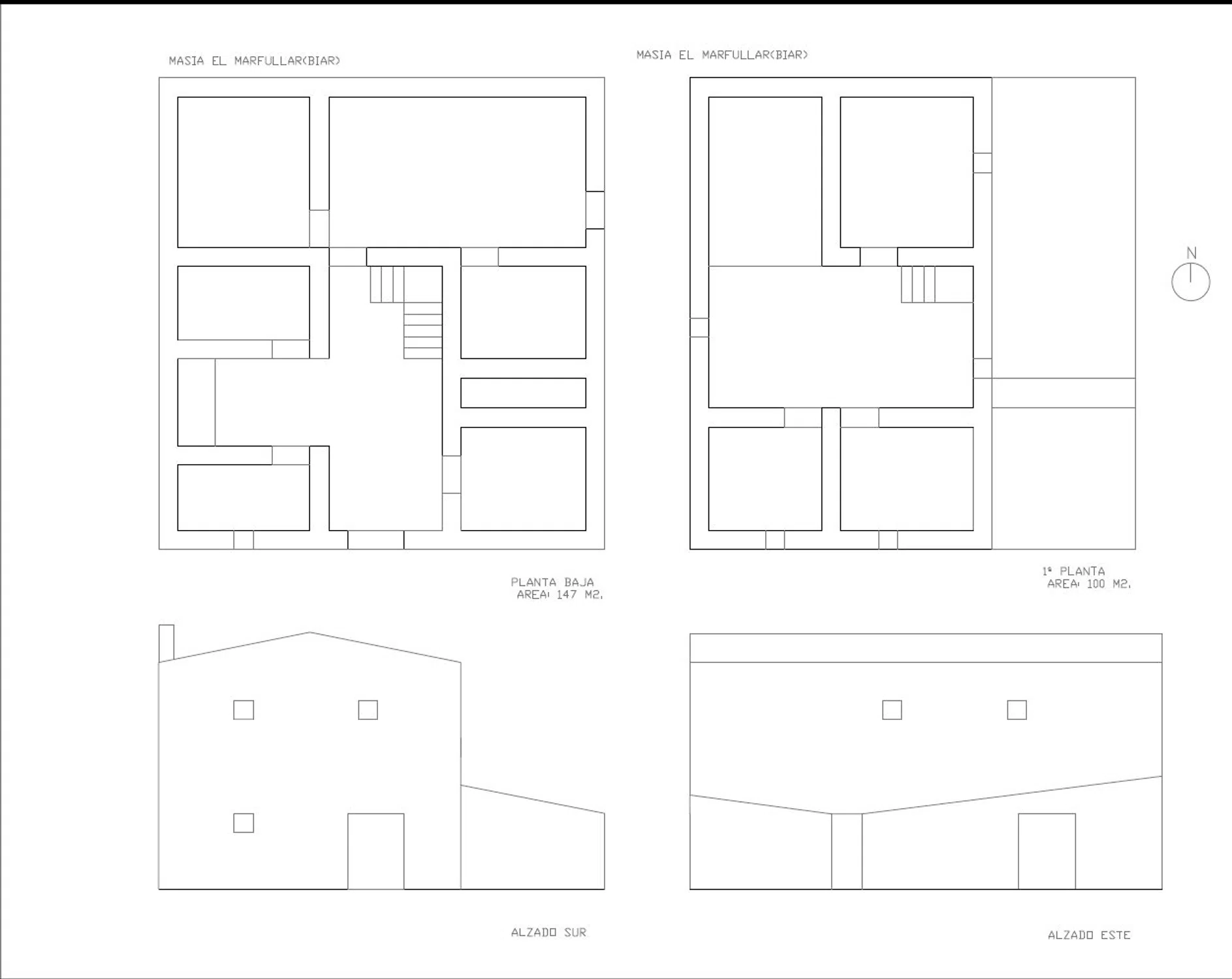
La finca está situada en Biar, dentro de la sierra denominada de La Fontanella de alto valor ecológico, situada entre Biar y Banyeres, provincia de Alicante. Esta sierra es colindante con el Parque Natural de Mariola, y cerca de la estación de AVE de Villena. La masia de 250 metros cuadrados se encuentra en estado ruinoso, però con grandes posibilidades para turismo rural. Además, en la parcela de 300.000 m2 se encuentran tres casetas en ruinas. Poligono 2, Parcela 1 70, 171 Biar. Se puede permutar por apartamento cerca de la costa de la provincia de Alicante.

Property characteristics

Complex information

  • Property type
    Rustic estate

Project information / Work status

  • Year of delivery
    1900
  • Property status
    To be renovated

Property data

  • Bathrooms
    1
  • built square meters
    250 m²
  • Property type
    Second hand

Surfaces

  • Land area
    300 000 m²

Base

Energy certification

  • Energy certificate status
    Not indicated

Facilities

In building:

Garden

State:

To be remodeled

Market price statistics for Finca rústica en Diseminado Partida Marfullar s/n

Map

Alicante, Biar, Diseminado Partida Marfullar s/n Going to this location!
Leave a review about Finca rústica en Diseminado Partida Marfullar s/n
0
0 reviews
1
0% (0)
2
0% (0)
3
0% (0)
4
0% (0)
5
0% (0)
isaacmontava
240 000 €
from 960 € / m2
Contact advertiser

For more information contact the platform

REF: 400709

Reviews about Finca rústica en Diseminado Partida Marfullar s/n
Loading...

No reviews have been left for this object yet

Nearest properties

Explore nearby properties we've discovered in close proximity to this location

Finca rústica en Poligono Foyetes, 17 a

Alicante, Onil, Poligono Foyetes, 17 A
340 000 €

Se vende copropiedad con un total de 254.086 metros cuadrados con dominio total...

0
0 reviews

Finca rústica en Diseminado Partida Marfullar s/n

Alicante, Biar, Diseminado Partida Marfullar s/n
240 000 €

La finca está situada en Biar, dentro de la sierra denominada de La Fontanella d...

0
0 reviews

Finca rústica en Fontalbres

Alicante, Biar, FONTALBRES
489 000 €

SE FINCA EN BIAR, EN PLENA NATURALEZA Se vende encantadora casa rústica de dos p...

0
0 reviews

Finca rústica en diseminados s/n

Alicante, Banyeres de Mariola, DISEMINADOS s/n
220 000 €

Se vende casa de campo en Banyeres de Mariola, con una superficie grafica de 617...

0
0 reviews
Call

We use our own and third-party cookies to analyze website usage and show you advertisements related to your preferences based on a profile created from your browsing habits (e.g., pages visited). More information. Do you accept cookies?