Duplex sale in Calle De Creta, Gran Alacant

Alicante, Gran Alacant, Mountain and Sea, Calle De Creta
Sold out
Leave review
Duplexes Property type
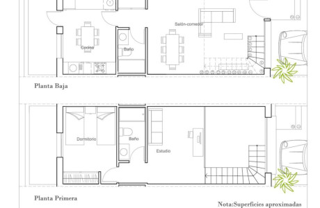
67 m² built square meters
2 Bathrooms
2 Bedrooms

Residential area with various types of family homes for residential or vacation use. It is possible to design and configure each of the homes, choosing the number of bedrooms, number of bathrooms, space design, kitchen and bathroom typologies, and selection of materials and finishes.

In the Monte y Mar development, the following types of homes are currently being built:

  • Apartments with solariums and ground floors (Gala Model)
  • Duplexes (Vision Model and Levante Model)
  • Semi-detached houses with 220 m2 plots (Linda Model)
  • Townhouses with 300 m2 plots
  • Independent villas with plots of over 300 m2

All homes have parking areas in the garden or plot. MASA is a developer with over 45 years of experience, specializing in the construction of new homes with a current style, modern design, and linear architecture, with open and interconnected spaces that allow for different types of environments.

LOCATION
The MONTE Y MAR residential development is located in Gran Alacant (Santa Pola), just 10 minutes by car from the city of Alicante. The extensive beaches bordering the area, the privileged climate it is characterized by, and its proximity to the city make this area an ideal place to reside all year round or enjoy a few days of vacation.

The Gran Alacant area is connected to the main urban centers by the A7 highway and the N332 national road that borders the Levantine coast. Less than five minutes away by car is Alicante Airport, El Altet, with national and international flights connecting Alicante with the main national and European capitals.

Property characteristics

Complex information

  • Residential complex
    Monte y Mar
  • Property type
    Duplexes

Property data

  • Bedrooms
    2
  • Bathrooms
    2
  • built square meters
    67 m²
  • Property type
    New construction

Facilities

In building:

Spa
Green Areas
Solarium
Garden

State:

New construction

Market price statistics for Dúplex en venta en calle De Creta

Map

Alicante, Gran Alacant, Mountain and Sea, Calle De Creta Going to this location!
Leave a review about Dúplex en venta en calle De Creta
0
0 reviews
1
0% (0)
2
0% (0)
3
0% (0)
4
0% (0)
5
0% (0)
Monte y Mar
Residential complex
Sold out
Contact advertiser

For more information contact the platform

REF: 11549

Reviews about Dúplex en venta en calle De Creta
Loading...

No reviews have been left for this object yet

Nearest properties

Explore nearby properties we've discovered in close proximity to this location

Duplexes en Venta en Calle De Creta, Gran Alacant

Alicante, Gran Alacant, Mountain and Sea, Calle De Creta
193 000 €

Residential area with various types of family homes for residential or vacation...

0
0 reviews

Duplexes en Venta en Calle De Creta, Gran Alacant

Alicante, Gran Alacant, Mountain and Sea, Calle De Creta
181 000 €

Residential area with various types of family homes for residential or vacation...

0
0 reviews

Duplexes en Venta en Calle De Creta, Gran Alacant

Alicante, Gran Alacant, Mountain and Sea, Calle De Creta
221 500 €

Residential area with various types of family homes for residential or vacation...

0
0 reviews

Duplexes en Venta en Calle De Creta, Gran Alacant

Alicante, Gran Alacant, Mountain and Sea, Calle De Creta
193 000 €

Residential area with various types of family homes for residential or vacation...

0
0 reviews

Duplexes en Venta en Calle De Creta, Gran Alacant

Alicante, Gran Alacant, Mountain and Sea, Calle De Creta
164 500 €

VISION es un nuevo concepto de vivienda basado en la practicidad y la flexibilid...

0
0 reviews

Duplexes en Venta en Calle De Creta, Gran Alacant

Alicante, Gran Alacant, Mountain and Sea, Calle De Creta
192 000 €

Residential area with various types of family homes for residential or vacation...

0
0 reviews

Duplexes en Venta en Calle De Creta, Gran Alacant

Alicante, Gran Alacant, Mountain and Sea, Calle De Creta
174 500 €

VISION es un nuevo concepto de vivienda basado en la practicidad y la flexibilid...

0
0 reviews

Duplexes en Venta en Calle De Creta, Gran Alacant

Alicante, Gran Alacant, Mountain and Sea, Calle De Creta
197 000 €

Residential area with various types of family homes for residential or vacation...

0
0 reviews

Dúplex en Centro

Alicante, Santa Pola, Center, Centro
248 000 €

Discover the duplex of your dreams in the heart of a vibrant coastal town! This...

0
0 reviews

We use our own and third-party cookies to analyze website usage and show you advertisements related to your preferences based on a profile created from your browsing habits (e.g., pages visited). More information. Do you accept cookies?