Terreno en calle del Trencall

Alicante, Jávea/Xàbia, La Granadella - Costa Nova, Calle del Trencall
209 000 €
Leave review
Urbanizable Property type
1 000 m² Land area
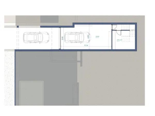
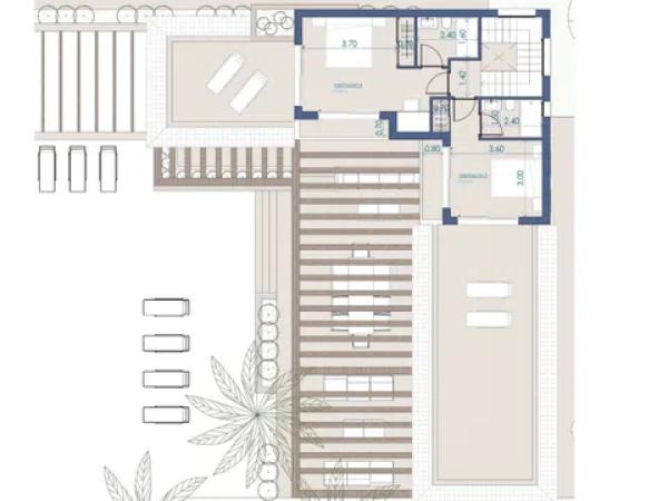
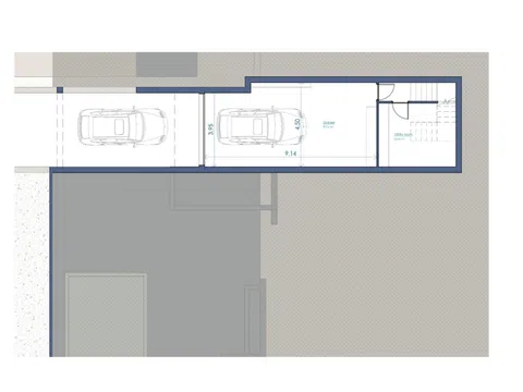
VISTAS ABIERTAS - ZONA TRANQUILA - 5M EN COCHE DE LA PLAYA - ORIENTACIÓN SUR - CON PROYECTO(Se puede modificar) **Terreno en Venta en la zona de Costa Nova en Jávea - ¡Tu Oportunidad de Construir el Hogar de Tus Sueños! ** Descubre esta increíble parcela edificáble de 1000 m² ubicada en una segura y tranquila zona. Rodeada de la belleza natural de los pinos mediterráneos, este terreno ofrece un entorno sereno ideal para quienes buscan escapar del bullicio diario y desean una zona donde relajarse, cerca de varios restaurante y a tan solo 5 minutos de las conocidas playas de Jávea ( La Granadella, Porticholl y el Arenal) donde podrás disfrutar de lugares mágicos que hacen de Jávea un lugar privilegiado. La parcela dispone ya de varios arboles, Palmeras, aceitunero etc. El proyecto que sea a diseñado es algo orientativo,   se puede construir en la parcela cualquier otro estilo de proyecto o incluso emplear este haciendole modificaciones. Con múltiples opciones de construcción disponibles, hace que este terreno sea perfecto tanto para una residencia permanente como para una casa de vacaciones. Imagina diseñar tu hogar en un vecindario bien conectado, donde la privacidad y la comodidad son una realidad. Además, el entorno verde y los pintorescos senderos invitan a disfrutar de actividades al aire libre y momentos de relajación. La superficie edificáble de 200 m² permite crear un espacio adaptado a tus necesidades, ya sea una acogedora casa familiar o una moderna villa. Este solar urbano te brinda todas las comodidades necesarias para desarrollar tu proyecto sin complicaciones. No dejes pasar esta oportunidad única de inversión en una de las zonas más deseadas de la Costa Blanca.   ¡Contáctanos y comienza a hacer realidad tu sueño!

Property characteristics

Complex information

  • Property type
    Urbanizable

Property data

  • Property type
    Second hand

Surfaces

  • Land area
    1 000 m²

Base

  • Urban land
    Consolidated (Land)

Facilities

Cultivation:

Fruit Trees

Additional Features:

Building plot

Plans

Market price statistics for Terreno en calle del Trencall

Map

Alicante, Jávea/Xàbia, La Granadella - Costa Nova, Calle del Trencall Going to this location!
Leave a review about Terreno en calle del Trencall
0
0 reviews
1
0% (0)
2
0% (0)
3
0% (0)
4
0% (0)
5
0% (0)
Crown Properties
209 000 €
Contact advertiser

For more information contact the platform

REF: 206706

Reviews about Terreno en calle del Trencall
Loading...

No reviews have been left for this object yet

Nearest properties

Explore nearby properties we've discovered in close proximity to this location

Terreno en Partida Comunes-Adsubia

Alicante, Jávea/Xàbia, Comunes-Adsubia Partida, Partida Comunes-Adsubia
185 000 €

Parcela plana a la venta en Jávea en la zona de Piver, a tan solo 10 minutos en...

0
0 reviews

Terreno en Partida Comunes-Adsubia

Alicante, Jávea/Xàbia, Comunes-Adsubia Partida, Partida Comunes-Adsubia
220 000 €

Descubra esta espléndida propiedad orientada al noroeste y cerca del Club de Gol...

0
0 reviews

Terreno en Partida Comunes-Adsubia

Alicante, Jávea/Xàbia, Comunes-Adsubia Partida, Partida Comunes-Adsubia
690 000 €

Presentamos un lugar perfecto para disfrutar del espectáculo de la vista al mar...

0
0 reviews

Terreno en calle la Pp.Joya

Alicante, Benitachell, Alcassar, Calle la Pp.Joya
1 600 000 €

"Oportunidad de inversión". Parcela de 9.108 m2 con vistas panorámicas al mar y...

0
0 reviews

Terreno en calle de Roncadell, 110 -114

Alicante, Jávea/Xàbia, La Granadella - Costa Nova, Calle de Roncadell, 110 -114
205 000 €

¿Quieres comprar un suelo urbanizable residencial en venta en Jávea? Excelente o...

0
0 reviews

Terreno en calle de la Falguera, 3 -1

Alicante, Jávea/Xàbia, Cap Martí - Pinomar, Calle de la Falguera, 3 -1
173 000 €

¿Quieres comprar un suelo urbano residencial en Jávea? Excelente oportunidad de...

0
0 reviews

Terreno en Partida Comunes-Adsubia

Alicante, Jávea/Xàbia, Comunes-Adsubia Partida, Partida Comunes-Adsubia
295 000 €

Parcela a la venta con licencia concedida y proyecto en la zona de Piver en Jáve...

0
0 reviews

Terreno en calle Poble Nou

Alicante, Jávea/Xàbia, Comunes-Adsubia Partida, Calle Poble Nou
900 €

Parte de un suelo destinado a zona deportiva, situada en Benitatxell. Activo en...

0
0 reviews

Terreno en calle de la Barraca s/n

Alicante, Jávea/Xàbia, Portichol - Balcony to the Sea, Calle de la Barraca s/n
3 350 000 €

Portichol, cerca de Javea: Magnífica parcela de 4000 m² con impresionantes vista...

0
0 reviews
Call

We use our own and third-party cookies to analyze website usage and show you advertisements related to your preferences based on a profile created from your browsing habits (e.g., pages visited). More information. Do you accept cookies?