Terreno en Partida Comunes-Adsubia

Alicante, Jávea/Xàbia, Comunes-Adsubia Partida, Partida Comunes-Adsubia
220 000 €
Leave review
Urbanizable Property type
1 510 m² Land area
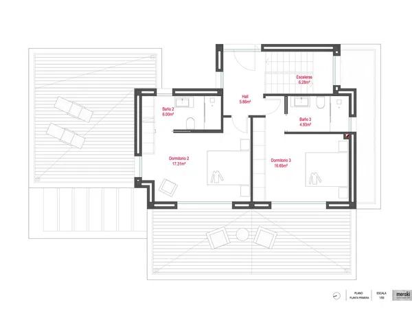
Descubra esta espléndida propiedad orientada al noroeste y cerca del Club de Golf Jávea. Tiene vistas al Montgó y se encuentra en un entorno muy tranquilo. Esta casa de 300 m², distribuida en tres niveles, combinara la elegancia y el confort con el estilo ibicenco.. . Características principales del proyecto: - 3 Dormitorios dobles: Cada uno con su propio cuarto de baño, ofreciendo privacidad y comodidad. - Zona técnica de limpieza y almacenamiento con posibilidad de alojar una cuarta habitación y baño. - Luminosa zona de estar: Una cocina abierta se abre a un acogedor salón comedor, perfecto para recibir invitados y crear recuerdos inolvidables. - Zona de relax: Acceda a una encantadora terraza cubierta, con pérgola, que conduce directamente a la piscina y al exuberante jardín. - Piscina: Disfrute de una zona de baño de 9x4 m, ideal para refrescarse en los calurosos días de verano. - Terrenos abancalados: El resto de la propiedad está ajardinada en terrazas, ofreciendo infinitas posibilidades para la jardinería o momentos tranquilos al aire libre. Precio de construcción desde 820.000 euros*. Precio del terreno: 220.000€ Bonita parcela situada Norte Oueste a Javea con vista al Montgo. Esta casa sera el refugio perfecto para aquellos que buscan la armonía entre el lujo y la naturaleza. ¡No pierda la oportunidad de vivir en este entorno excepcional! *El desarrollo del proyecto a medida, la dirección de obra y otras tasas y gastos relacionados con el mismo no están incluidos en el precio. Póngase en contacto con nosotros hoy mismo para obtener más información.

Property characteristics

Complex information

  • Property type
    Urbanizable

Property data

  • Type of kitchen
    Open kitchen
  • Property type
    Second hand

Surfaces

  • Land area
    1 510 m²

Market price statistics for Terreno en Partida Comunes-Adsubia

Map

Alicante, Jávea/Xàbia, Comunes-Adsubia Partida, Partida Comunes-Adsubia Going to this location!
Leave a review about Terreno en Partida Comunes-Adsubia
0
0 reviews
1
0% (0)
2
0% (0)
3
0% (0)
4
0% (0)
5
0% (0)
CASA BOUTIQUE DEL MAR S.L.
220 000 €
Contact advertiser

For more information contact the platform

REF: 159392

Reviews about Terreno en Partida Comunes-Adsubia
Loading...

No reviews have been left for this object yet

Nearest properties

Explore nearby properties we've discovered in close proximity to this location

Terreno en Partida Comunes-Adsubia

Alicante, Jávea/Xàbia, Comunes-Adsubia Partida, Partida Comunes-Adsubia
185 000 €

Parcela plana a la venta en Jávea en la zona de Piver, a tan solo 10 minutos en...

0
0 reviews

Terreno en calle de Auriga, 20

Alicante, Jávea/Xàbia, Montgó - Hermitage, Calle de Auriga, 20
158 000 €

¿Quieres comprar un suelo urbano residencial en Jávea? Excelente oportunidad de...

0
0 reviews

Terreno en Parcela 60 D4, Partida El Montgo, Marina Alta s/n

Alicante, Jávea/Xàbia, Montgó - Hermitage, PARCELA 60 D4, PARTIDA EL MONTGO, Marina Alta s/n
144 000 €

¿Buscas comprar suelo en venta en Jávea (Alicante)? Excelente oportunidad de adq...

0
0 reviews

Terreno en Les Fonts

Alicante, Benitachell, Les Fonts, Les Fonts
185 000 €

Esta amplia parcela de 1000 metros cuadrados, situada en el exclusivo entorno na...

0
0 reviews

Terreno en calle del Pinaret, 9

Alicante, Denia, La Xara - La Sella - Jesús Pobre, Calle del Pinaret, 9
284 000 €

¿Buscas comprar suelo en venta en Denia (Alicante)? Excelente oportunidad de adq...

0
0 reviews

Terreno en Gata de Gorgos

Alicante, Gata de Gorgos
1 200 000 €

Finca situada a 5 Km. del mar con espectaculares vistas directas junto a urbaniz...

0
0 reviews

Terreno en Desconocido

Alicante, Benitachell, Les Fonts, Desconocido
264 000 €

Parcela Rustica edificable con vistas abiertas y al mar, en venta en Urbanizació...

0
0 reviews

Terreno en Partida Comunes-Adsubia

Alicante, Jávea/Xàbia, Comunes-Adsubia Partida, Partida Comunes-Adsubia
220 000 €

Descubra esta espléndida propiedad orientada al noroeste y cerca del Club de Gol...

0
0 reviews

Terreno en Partida Comunes-Adsubia

Alicante, Jávea/Xàbia, Comunes-Adsubia Partida, Partida Comunes-Adsubia
690 000 €

Presentamos un lugar perfecto para disfrutar del espectáculo de la vista al mar...

0
0 reviews
Call

We use our own and third-party cookies to analyze website usage and show you advertisements related to your preferences based on a profile created from your browsing habits (e.g., pages visited). More information. Do you accept cookies?