Terreno en Les Fonts

Alicante, Benitachell, Les Fonts, Les Fonts
185 000 €
Leave review
Urbanizable Property type
1 000 m² Land area
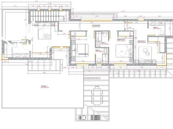
Esta amplia parcela de 1000 metros cuadrados, situada en el exclusivo entorno natural del Racó de Nadal, en Benitachell, ofrece una ubicación privilegiada para aquellos que buscan privacidad y tranquilidad en medio de la belleza del paisaje mediterráneo. Rodeada de naturaleza, la parcela permite disfrutar de un ambiente relajante y sereno, mientras se encuentra a poca distancia de las comodidades locales y de las impresionantes playas de la zona. Lo más destacado de esta propiedad es que se vende con un espectacular proyecto de obra nueva, que incluye la licencia de construcción, lo que permite comenzar la obra de inmediato. El proyecto ha sido cuidadosamente diseñado para aprovechar al máximo el potencial del terreno y su entorno, con una construcción moderna y funcional que se integra perfectamente con la naturaleza circundante. Los planos contemplan amplios espacios interiores y exteriores, con materiales de alta calidad y un diseño que maximiza las vistas y la luz natural. Con esta parcela y su proyecto ya aprobado, se ofrece una oportunidad única de construir la casa de tus sueños en un entorno inigualable, con vistas espectaculares, privacidad y una conexión directa con la naturaleza. Ideal para quienes buscan vivir en una zona tranquila y exclusiva, sin renunciar a la comodidad y el lujo, y sin los trámites adicionales para obtener la licencia de construcción.

Property characteristics

Complex information

  • Property type
    Urbanizable

Property data

  • Property type
    Second hand

Surfaces

  • Land area
    1 000 m²

Base

Facilities

Cultivation:

Fruit Trees

Market price statistics for Terreno en Les Fonts

Map

Alicante, Benitachell, Les Fonts, Les Fonts Going to this location!
Leave a review about Terreno en Les Fonts
0
0 reviews
1
0% (0)
2
0% (0)
3
0% (0)
4
0% (0)
5
0% (0)
Atina inmobiliaria · Luxury Real Estate | Inmobiliarias en Jávea, Gandia y Daimús
185 000 €
Contact advertiser

For more information contact the platform

REF: 159269

Reviews about Terreno en Les Fonts
Loading...

No reviews have been left for this object yet

Nearest properties

Explore nearby properties we've discovered in close proximity to this location

Terreno en Partida Comunes-Adsubia

Alicante, Jávea/Xàbia, Comunes-Adsubia Partida, Partida Comunes-Adsubia
185 000 €

Parcela plana a la venta en Jávea en la zona de Piver, a tan solo 10 minutos en...

0
0 reviews

Terreno en calle de Auriga, 20

Alicante, Jávea/Xàbia, Montgó - Hermitage, Calle de Auriga, 20
158 000 €

¿Quieres comprar un suelo urbano residencial en Jávea? Excelente oportunidad de...

0
0 reviews

Terreno en Parcela 60 D4, Partida El Montgo, Marina Alta s/n

Alicante, Jávea/Xàbia, Montgó - Hermitage, PARCELA 60 D4, PARTIDA EL MONTGO, Marina Alta s/n
144 000 €

¿Buscas comprar suelo en venta en Jávea (Alicante)? Excelente oportunidad de adq...

0
0 reviews

Terreno en Les Fonts

Alicante, Benitachell, Les Fonts, Les Fonts
185 000 €

Esta amplia parcela de 1000 metros cuadrados, situada en el exclusivo entorno na...

0
0 reviews

Terreno en Gata de Gorgos

Alicante, Gata de Gorgos
1 200 000 €

Finca situada a 5 Km. del mar con espectaculares vistas directas junto a urbaniz...

0
0 reviews

Terreno en Desconocido

Alicante, Benitachell, Les Fonts, Desconocido
264 000 €

Parcela Rustica edificable con vistas abiertas y al mar, en venta en Urbanizació...

0
0 reviews

Terreno en La Viña - Montemar - San Jaime

Alicante, Benissa, La Viña - Montemar - San Jaime, La Viña - Montemar - San Jaime
1 300 000 €

Esta es una oportunidad única de adquirir un proyecto empresarial en Urbanizació...

0
0 reviews

Terreno en Partida Comunes-Adsubia

Alicante, Jávea/Xàbia, Comunes-Adsubia Partida, Partida Comunes-Adsubia
220 000 €

Descubra esta espléndida propiedad orientada al noroeste y cerca del Club de Gol...

0
0 reviews

Terreno en Partida Comunes-Adsubia

Alicante, Jávea/Xàbia, Comunes-Adsubia Partida, Partida Comunes-Adsubia
690 000 €

Presentamos un lugar perfecto para disfrutar del espectáculo de la vista al mar...

0
0 reviews
Call

We use our own and third-party cookies to analyze website usage and show you advertisements related to your preferences based on a profile created from your browsing habits (e.g., pages visited). More information. Do you accept cookies?