Spain Detached chalet Spain Detached chalet Almería Detached chalet Roquetas de Mar Casa en venta de 200 m² Calle Isleta del Moro (Aguadulce), 04720 Roquetas de Mar (Almería)

Casa en venta de 200 m² Calle Isleta del Moro (Aguadulce), 04720 Roquetas de Mar (Almería), Roquetas de Mar

Almería, Roquetas de Mar
300 000 €
1 500 € / m2
Leave review
Detached chalet Property type
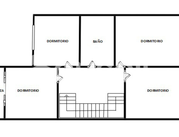
200 m² built square meters
3 Bathrooms
4 Bedrooms
Venta exclusiva con Housell. De particular a particular. Llámanos y visita esta vivienda. Espectacular casa de 200 m² en Roquetas de Mar, provincia de Almería. Esta vivienda, por su amplitud, satisface las necesidades de una familia con niños. Está casa se distribuye en amplio y luminoso salón con chimenea, cocina amueblada y completamente independiente del resto de estancias, cuatro dormitorios y tres cuartos de baño completos. Además, cuenta con terraza, para que disfrutes del buen tiempo y armarios empotrados, no tendrás que preocuparte por el espacio de almacenaje. El inmueble es todo exterior y se encuentra situado en una vía de fácil acceso, tiene garaje, para que puedas aparcar con comodidad. Por su orientación este, en esta casa disfrutarás del sol por las mañanas. La vivienda, se vende amueblada y en buen estado, lista para comenzar la mudanza. En cuanto a las calidades, este chalet cuenta con carpintería de madera y suelos de cerámica, muy resistentes y fácil de limpiar. Esta casa está situada en una zona tranquila, junto a la playa, bien comunicada, muy cerca de la parada de autobús y la estación de tren.. Para mayor comodidad, la vivienda se encuentra muy cerca de un colegio y todos los servicios necesarios. En Housell te ofrecemos una gran selección de inmuebles que se adaptan a tu estilo de vida. No dejes escapar esta oportunidad para encontrar la casa perfecta para ti. h1o4u0s2e9l0l

Property characteristics

Complex information

  • Property type
    Detached chalet

Property data

  • Bedrooms
    4
  • Bathrooms
    3
  • built square meters
    200 m²
  • Property type
    Second hand

Energy certification

  • Energy certificate
    G

Expenses

  • Municipal taxes
    400 €

Facilities

Housing Amenities:

Modular cabinets
Terrace

In building:

Private parking

State:

Good condition

Local Amenities:

Fire Extinguishers

Market price statistics for Casa en venta de 200 m² Calle Isleta del Moro (Aguadulce), 04720 Roquetas de Mar (Almería)

Map

Almería, Roquetas de Mar Going to this location!
Leave a review about Casa en venta de 200 m² Calle Isleta del Moro (Aguadulce), 04720 Roquetas de Mar (Almería)
0
0 reviews
1
0% (0)
2
0% (0)
3
0% (0)
4
0% (0)
5
0% (0)
Housell
300 000 €
from 1 500 € / m2
Contact advertiser

For more information contact the platform

REF: 64527

Reviews about Casa en venta de 200 m² Calle Isleta del Moro (Aguadulce), 04720 Roquetas de Mar (Almería)
Loading...

No reviews have been left for this object yet

Nearest properties

Explore nearby properties we've discovered in close proximity to this location

Casa o chalet independiente en venta en calle Lago de Enol

Almería, Roquetas de Mar, Aguadulce, Calle Lago de Enol
160 000 €

Casa / Chalet independiente en Venta en Aguadulce, con unas vistas inmejorables....

0
0 reviews

Casa o chalet independiente en venta en El Puerto - La Romanilla

Almería, Roquetas de Mar, Roquetas
302 000 €

REF-19069- MOYZA Consulting Inmobiliario te presenta una oportunidad única para...

0
0 reviews

Casa en venta de 200 m² Calle Isleta del Moro (Aguadulce), 04720 Roquetas de Mar (Almería)

Almería, Roquetas de Mar
300 000 €

Venta exclusiva con Housell. De particular a particular. Llámanos y visita esta...

0
0 reviews
Call

We use our own and third-party cookies to analyze website usage and show you advertisements related to your preferences based on a profile created from your browsing habits (e.g., pages visited). More information. Do you accept cookies?