Sale of independent chalet in Carretera AS-332 s/n, Villaviciosa

Asturias, Villaviciosa, Southeastern parishes, Carretera AS-332 s/n
Sold out
Leave review
Detached chalet Property type
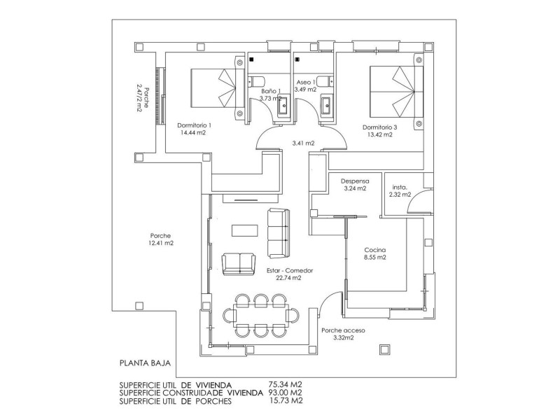
93 m² built square meters
2 Bathrooms
2 Bedrooms
1 Floor
Las parcelas se encuentran ubicadas en BRECEÑA CONCEJO DE VILLAVICIOSA ASTURIAS UBICACIÓN AS-332 CP-33314 para ir a visitarlas nos pueden avisar y se las enseñamos in situ son todas independientes, con superficie de 1100 m2, entrada independiente y todas con frente a camino asfaltado, contando con agua y luz a pie de finca Hemos hecho un proyecto de una casa en planta baja que consta de salón cocina comedor con un porche amplio orientado al sur, dentro, otras dos habitaciones muy amplias también con baño interior en la habitación y baño exterior para las visitas con unas grandes calidades todo ello según el código técnico de la edificación La casa tiene 76 m2 útiles y un amplio porche al sur, si se quiere podemos hacer alguna variación de tamaño por si hiciera falta alguna necesidad más para la familia Contamos con varias entidades financieras que quieren colaborar si hiciera falta hipoteca El proceso es realizar el proyecto a gusto del cliente y meterlo rápidamente en el ayuntamiento de Villaviciosa en el cual estará unos tres meses de trámite, a partir de este tiempo sale la licencia de construcción y nos ponemos hacerle la vivienda a gusto del cliente, que nos llevará un periodo de 10 meses Si quieren concertar una cita para ver planos y memoria de calidades estamos en Gijón en calle Magnus Blikstad nº 60 bajo donde nos pueden llamar.

Property characteristics

Complex information

  • Residential complex
    Viviendas en Breceña
  • Property type
    Detached chalet

Property data

  • Floor
    1
  • Bedrooms
    2
  • Bathrooms
    2
  • built square meters
    93 m²
  • Property type
    New construction

Facilities

Housing Amenities:

Interior Windows
Exterior window

Supply:

With Water

Market price statistics for Casa o chalet independiente en venta en carretera As-332 s/n

Map

Asturias, Villaviciosa, Southeastern parishes, Carretera AS-332 s/n Going to this location!
Leave a review about Casa o chalet independiente en venta en carretera As-332 s/n
0
0 reviews
1
0% (0)
2
0% (0)
3
0% (0)
4
0% (0)
5
0% (0)
Viviendas en Breceña
Residential complex
Sold out
Contact advertiser

For more information contact the platform

REF: 8861

Reviews about Casa o chalet independiente en venta en carretera As-332 s/n
Loading...

No reviews have been left for this object yet

Nearest properties

Explore nearby properties we've discovered in close proximity to this location

Chalet independiente en Venta en Carretera AS-332 s/n, Villaviciosa

Asturias, Villaviciosa, Southeastern parishes, Carretera AS-332 s/n
183 000 €

Las parcelas se encuentran ubicadas en BRECEÑA CONCEJO DE VILLAVICIOSA ASTURIAS...

0
0 reviews

Obra nueva Viviendas en Breceña en Villaviciosa

Asturias, Villaviciosa, Southeastern parishes, Carretera AS-332 s/n
183 000 €

Las parcelas se encuentran ubicadas en BRECEÑA CONCEJO DE VILLAVICIOSA ASTURIAS...

0
0 reviews

Casa o chalet independiente en venta en carretera villaverde, 3

Asturias, Villaviciosa, Quintes - Arroes, Carretera villaverde, 3
239 000 €

Parcela de 1250m2.La urbanización playa de España está ubicada en Villaverde en...

0
0 reviews

Casa o chalet independiente en venta en carretera villaverde, 3

Asturias, Villaviciosa, Quintes - Arroes, Carretera villaverde, 3
239 000 €

Parcela de 1250m2.La urbanización playa de España está ubicada en Villaverde en...

0
0 reviews

We use our own and third-party cookies to analyze website usage and show you advertisements related to your preferences based on a profile created from your browsing habits (e.g., pages visited). More information. Do you accept cookies?