Penthouse sale in Avenida Del Prado , 4, Mérida

Badajoz, Mérida, The Prado, Avenida Del Prado , 4
Sold out
Leave review
Penthouses Property type
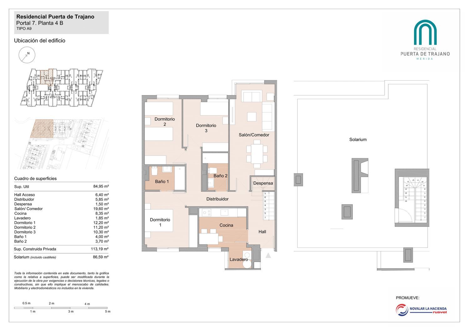
3 Bedrooms
114 m² built square meters
2 Bathrooms
* Con posibilidad de garaje desde 9.900 € y trastero desde 1.950 €Grupo Rusvel les presenta, Residencial Puerta de Trajano, un proyecto único que supone la adaptación al siglo XXI de unas viviendas que serán personalizables y que contarán con amplias zonas comunes como club social con gastrobar, piscina y zona de juegos infantiles. Un residencial donde hemos cuidado todos los detalles para facilitar su vida y la de su familia, pero a la vez buscando ser un producto asequible y personalizable, buscando ser su hogar en Mérida. Encontrará la tipología que más se adapte a sus necesidades, plantas bajas con patios y/o terrazas, viviendas en plantas intermedias o espectaculares áticos con amplios solariums de más de 70m2 en dúplex y barbacoa incluida. Podrá elegir la orientación que más se adapte a sus gustos, tanto hacia las calles exteriores como hacia la zona libre interior.Residencial Puerta de Trajano se ofrece con unas terminaciones de serie que usted podrá modificar, con o sin coste, y que estamos seguros se adaptarán a sus gustos, de forma que cuando acceda a su hogar sea el que más se adecue a su estilo y le evite reformas posteriores.Residencial Puerta de Trabajo es la consolidación del barrio de El Prado en Mérida, con una situación inmejorable en cuanto accesos, tanto por el enlace a la autovía A-5 como por su cercanía al Hospital, al paseo fluvial, pabellón deportivo, ….

Property characteristics

Complex information

  • Residential complex
    Puerta de Trajano
  • Property type
    Penthouses

Property data

  • Bedrooms
    3
  • Bathrooms
    2
  • built square meters
    114 m²
  • Property type
    New construction

Facilities

Housing Amenities:

Interior Windows
Exterior window
Terrace

In building:

Swimming Pool
Elevator
Bar
Children's area
Garden Zones
Green Areas
Solarium
Social Club

Market price statistics for Ático en venta en avenida Del Prado , 4

Map

Badajoz, Mérida, The Prado, Avenida Del Prado , 4 Going to this location!
Leave a review about Ático en venta en avenida Del Prado , 4
0
0 reviews
1
0% (0)
2
0% (0)
3
0% (0)
4
0% (0)
5
0% (0)
Puerta de Trajano
Residential complex
Sold out
Contact advertiser

For more information contact the platform

REF: 6996

Reviews about Ático en venta en avenida Del Prado , 4
Loading...

No reviews have been left for this object yet

Nearest properties

Explore nearby properties we've discovered in close proximity to this location

Áticos en Venta en Avenida Del Prado , 4, Mérida

Badajoz, Mérida, The Prado, Avenida Del Prado , 4
128 600 €

* Con posibilidad de garaje desde 9.900 € y trastero desde 1.950 €Grupo Rusvel l...

0
0 reviews

Áticos en Venta en Avenida Del Prado , 4, Mérida

Badajoz, Mérida, The Prado, Avenida Del Prado , 4
137 600 €

* Con posibilidad de garaje desde 9.900 € y trastero desde 1.950 €Grupo Rusvel l...

0
0 reviews

Áticos en Venta en Avenida Del Prado , 4, Mérida

Badajoz, Mérida, The Prado, Avenida Del Prado , 4
144 600 €

* Con posibilidad de garaje desde 9.900 € y trastero desde 1.950 €Grupo Rusvel l...

0
0 reviews

Áticos en Venta en Avenida Del Prado , 4, Mérida

Badajoz, Mérida, The Prado, Avenida Del Prado , 4
111 600 €

* Con posibilidad de garaje desde 9.900 € y trastero desde 1.950 €Grupo Rusvel l...

0
0 reviews

New residential development near the Trajan Gate in Mérida.

Badajoz, Mérida, The Prado, Avenida Del Prado , 4
128 600 €

Welcome to an exceptional real estate opportunity in the heart of Mérida. The de...

0
0 reviews

New residential development near the Trajan Gate in Mérida.

Badajoz, Mérida, The Prado, Avenida Del Prado , 4
79 000 €

Welcome to an exceptional real estate opportunity in the heart of Mérida. The de...

0
0 reviews

New residential development near the Trajan Gate in Mérida.

Badajoz, Mérida, The Prado, Avenida Del Prado , 4
144 600 €

Welcome to an exceptional real estate opportunity in the heart of Mérida. The de...

0
0 reviews

New residential development near the Trajan Gate in Mérida.

Badajoz, Mérida, The Prado, Avenida Del Prado , 4
111 600 €

Welcome to an exceptional real estate opportunity in the heart of Mérida. The de...

0
0 reviews

New residential development near the Trajan Gate in Mérida.

Badajoz, Mérida, The Prado, Avenida Del Prado , 4
116 339 €

Welcome to an exceptional real estate opportunity in the heart of Mérida. The de...

0
0 reviews

We use our own and third-party cookies to analyze website usage and show you advertisements related to your preferences based on a profile created from your browsing habits (e.g., pages visited). More information. Do you accept cookies?