New construction Unifamiliar en calle Bages, 58 in Castellgalí

Barcelona, Castellgalí, Calle Bages, 58
from 497 000 €
2 333 € / m2
Leave review
213 m² - 213 m² Property surfaces
4 Number of bedrooms
3 Bathrooms
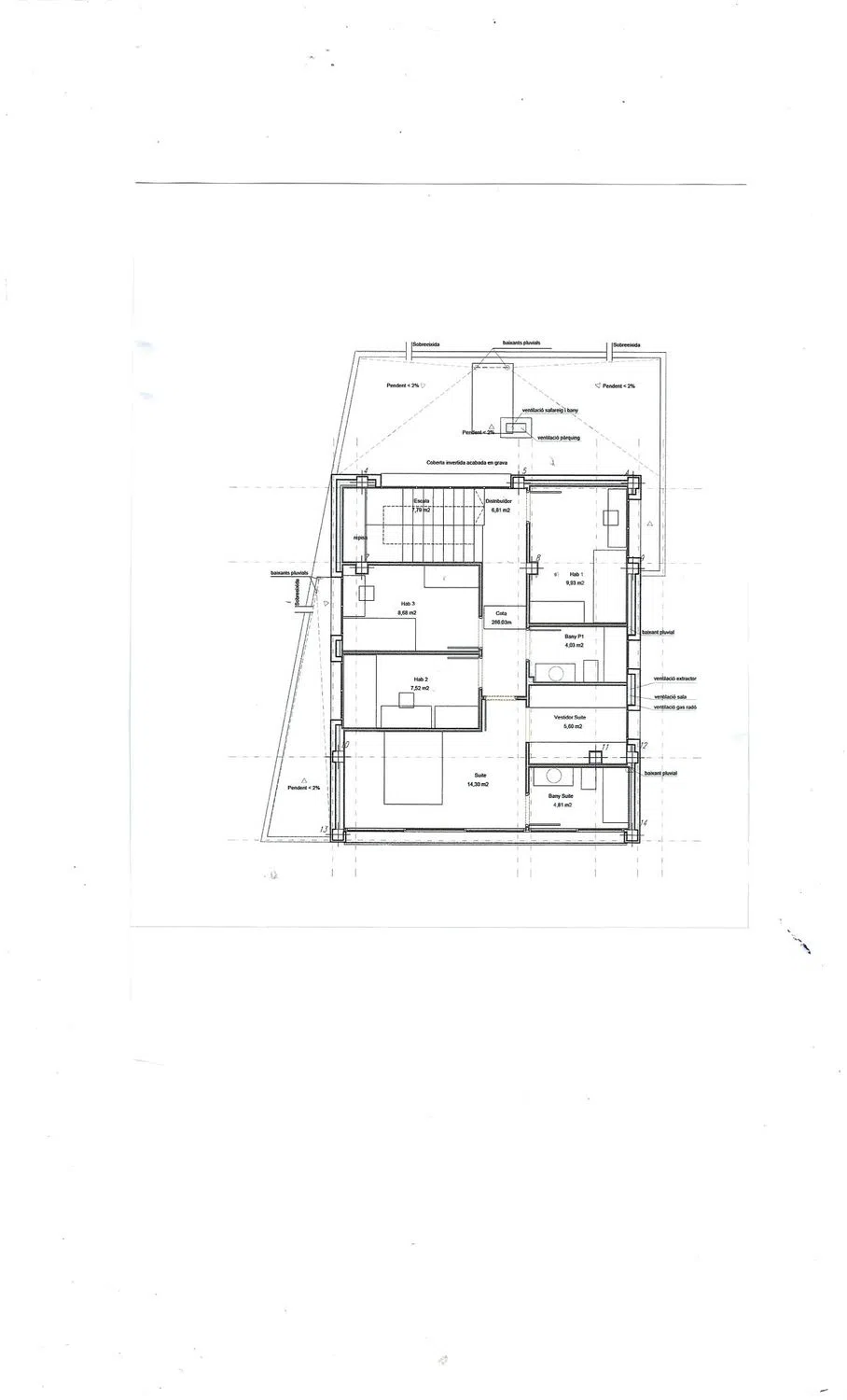
Promoción de obra nueva, venta directa con el constructor, de diseño única en la zona. Te presentamos esta nueva promoción de obra nueva, una exclusiva casa unifamiliar de dos plantas construida sobre una parcela totalmente plana de 452 m2. soleada y en una de las zonas más tranquilas y bien comunicadas de la zona. Con 213 m2 construidos de los cuales 176m2 útiles, esta vivienda ha sido diseñada pensando en el confort, la eficiencia y la calidad de vida. En la planta baja nos encontramos el garaje. recibidor y distribuidor. baño completo, safareig, almacen cocina, comedor y sala de estar totalmente abierta y con salida a un magnifico porche, jardín y a la estupenda piscina de agua salina. En la planta primera 1 baño completo, 3 habitaciones y una suite con vestidor y baño completo. Acabados de excelente calidad, suelos y alicatados de porcelánico de gran formato en planta baja y exteriores, y parquet en planta primera, cocina totalmente equipada horno, vitroceramica, campana extractora) Eficiencia energética clase A, carpintería exterior con rotura de puente térmico, doble acristalamiento, sistema de ACS mediante energías renovables (placas fotovoltaicas y aerotermía) e iluminación de bajo consumo. Una casa a cuatro vientos, con espacio, luz natural y comodidad, pensada para quienes buscan calidad de vida sin renunciar a la cercanía de servicios, colegios y naturaleza. Esta es más que una casa para visitar; es un hogar para sentir. Imagina despertar cada día con luz natural, disfrutar del café en la terraza con unas vistas espectaculares al macizo de Montserrat mientras los niños juegan en el jardín. No dejes pasar esta oportunidad de vivir en un entorno tranquilo.

Featured promotions in Spain

10 units

Nature Views 2

Alicante, Torrevieja, Los Balcones - The Heights of Eden, Denia s/n
310 000 € - 379 000 €
1 units

Hotel en venta en Benidorm centro

Alicante, Benidorm, Poniente Beach
2 250 000 € - 2 250 000 €
28 units

Residencial Los Balcones De Calpe

Alicante, Calpe, Calpe Town, Avenida de Madrid, 1
299 000 € - 892 125 €
4 units

Nature Views

Alicante, Torrevieja, Lago Jardín II, Avenida Denia s/n
309 000 € - 330 000 €
5 units

ALONIS VILLAS

Alicante, La Villajoyosa / Vila Joiosa, Torres Beach, Partida Torres s/n
675 000 € - 775 000 €
1 units

Residencial Royal Beach

Alicante, Guardamar del Segura, town, Miguel Hernández 102
349 500 € - 349 500 €
7 units

Royal Star

Alicante, Guardamar del Segura
229 500 € - 269 500 €

Properties in this complex

The information provided about prices, specifications, and details of this promotion is subject to possible variations and changes depending on the source. Therefore, it does not have commercial value in itself but is purely informative and indicative. This website does not market this project or property.

Name
Bedrooms
Bathrooms
Surface square
Floor
Category
Price
4 3 213 m² 497 000 € Visit
This information has been obtained from public sources and may not be up to date. It does not represent a link with the developer.

Property characteristics

Complex information

  • Number of units
    1
  • Price range
    497 000 € - 497 000 €
  • Number of bedrooms
    4
  • Property surfaces
    213 m² - 213 m²

Property data

  • Medium square meters
    213 m²
  • Property type
    New construction

Market price statistics for Unifamiliar en calle Bages, 58

Map

Barcelona, Castellgalí, Calle Bages, 58 Going to this location!
Leave a review about Unifamiliar en calle Bages, 58
0
0 reviews
1
0% (0)
2
0% (0)
3
0% (0)
4
0% (0)
5
0% (0)
ARIZAMIENTOS CATALANES S.L
497 000 €
from 2 333 € / m2
Contact advertiser

For more information contact the platform

REF: 445165

Reviews about Unifamiliar en calle Bages, 58
Loading...

No reviews have been left for this object yet

Nearest properties

Explore nearby properties we've discovered in close proximity to this location

11 units

New construction project located at Valencia 9-11 in Manresa.

Barcelona, Manresa, New Village, Calle valencia, 9
241 000 € - 327 500 €

Real Estate in Valencia 9-11 Our primary focus is to create a living concept tha...

0
0 reviews
4 units

Newly constructed homes are now available on Ausias March Street in Manresa.

Barcelona, Manresa, Valldaura - Ctra. de Cardona, Calle ausias march, 9
122 541 € - 218 531 €

Real estate in Promoción calle Ausias March 9 - 11 Introducing a new real estate...

0
0 reviews
18 units

New construction of the distillery in Manresa.

Barcelona, Manresa, Vic - Remei Road, Carretera de Santpedor
179 000 € - 334 000 €

Real Estate in Nova Alcoholera Discover a unique residential opportunity in the...

0
0 reviews
8 units

Obra nueva Edifi Fonollar - Manresa en Manresa

Barcelona, Manresa, Valldaura - Ctra. de Cardona, Fonollar, 4
115 000 € - 320 000 €

Nueva promoción de 10 viviendas, ubicada en Manresa a 10 minutos de la plaza San...

0
0 reviews
5 units

Nova Alcoholera Vpo

Barcelona, Manresa, Vic - Remei Road, Carretera Santpedor, 24
152 710 € - 201 400 €

Under construction! This development offers homes with 2 and 3 bedrooms, featuri...

0
0 reviews

Passeig Pere III

Barcelona, Manresa, Center - Promenade and Surroundings, Paseo Pere III, 24
-

Obra nueva en el centro del , de 3, 4 y 5 habitaciones, altas calidades y vistas...

0
0 reviews
3 units

Font del Gat 29

Barcelona, Manresa, New Village, Font del gat, 29
110 000 € - 320 000 €

Real estate in Font del Gat 29 Currently under construction with a projected com...

0
0 reviews
2 units

CARRER LLIBERTAT

Barcelona, Sant Vicenç de Castellet, Calle Llibertat, 15
194 670 € - 194 670 €

In the vibrant city of Sant Vicenç de Castellet, a unique opportunity arises wit...

0
0 reviews
2 units

Castellbell i el Vilar

Barcelona, Castellbell and El Vilar, Calle de L'Era, 16
275 000 € - 275 000 €

Real estate in Castellbell i el Vilar We are thrilled to present this impressive...

0
0 reviews

We use our own and third-party cookies to analyze website usage and show you advertisements related to your preferences based on a profile created from your browsing habits (e.g., pages visited). More information. Do you accept cookies?