Chalet pareado en venta en calle Enric Granados 10 y, 12

Lleida, Torre-Serona, Calle ENRIC GRANADOS 10 y, 12
Sold out
Leave review
Semi-detached Property type
4 Bedrooms
214 m² built square meters
3 Bathrooms
Included in the price Garage
2 Floor
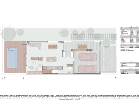
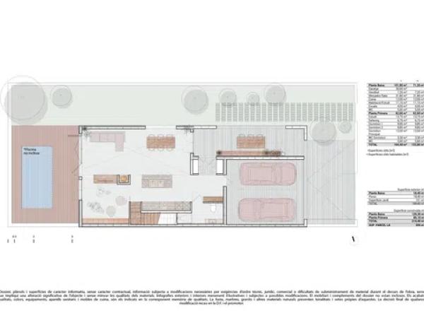
Promoción de dos viviendas con estructura de madera y diseño con parámetros de arquitectura pasiva, con estrategias bioclimáticas para conseguir una reducción del consumo energético y el uso de materiales naturales para reducir la huella de carbono en el medio ambiente. Se trata de viviendas de planta baja y planta piso con una zona ajardinada. En planta baja se ubica el garaje con capacidad para dos coches, un porche exterior, un hall de acceso, un baño comedor-sala-cocina diáfano con doble altura, presidido por fuego que acumula calor de inercia. la planta baja existe la posibilidad de entablar una habitación/estudio de 12m2. En la parte posterior de la casa hay la opción de añadir una piscina (no valorada en esta propuesta económica). En la primera planta hay un espacio de estudio, tres habitaciones (dos individuales y una doble) dos baños (uno en suite) y un espacio de lavandería. La casa lleva un sistema de climatización (frío y calor) por conductos con máquina de aerotermia, que también produce la ACS. Todos los materiales utilizados son naturales y cumplen con los criterios de mínimo impacto, en la salud de las personas de las personas, y en un uso consciente de los recursos del planeta.

Property characteristics

Complex information

  • Residential complex
    DUES CASES NATURALS APARELLADES A TORRE-SERONA
  • Property type
    Semi-detached

Property data

  • Garage
    Included in the price
  • Floor
    2
  • Bedrooms
    4
  • Bathrooms
    3
  • built square meters
    214 m²
  • Property type
    New construction

Energy certification

  • Energy certificate
    A

Facilities

Housing Amenities:

Access and housing adapted for people with reduced mobility

Plans

Market price statistics for Chalet pareado en venta en calle Enric Granados 10 y, 12

Map

Lleida, Torre-Serona, Calle ENRIC GRANADOS 10 y, 12 Going to this location!
Leave a review about Chalet pareado en venta en calle Enric Granados 10 y, 12
0
0 reviews
1
0% (0)
2
0% (0)
3
0% (0)
4
0% (0)
5
0% (0)
Sold out
Contact advertiser

For more information contact the platform

REF: 229744

Reviews about Chalet pareado en venta en calle Enric Granados 10 y, 12
Loading...

No reviews have been left for this object yet

Nearest properties

Explore nearby properties we've discovered in close proximity to this location

Chalet pareado en venta en calle Enric Granados 10 y, 12

Lleida, Torre-Serona, Calle ENRIC GRANADOS 10 y, 12
400 000 €

Promoción de dos viviendas con estructura de madera y diseño con parámetros de a...

0
0 reviews

Tandem

Lleida, Lleida, Garden City, Calle Enric Farreny, 53
530 000 €

Real estate in Tandem Discover a remarkable promotion featuring six houses for s...

0
0 reviews

Tandem

Lleida, Lleida, Garden City, Calle Enric Farreny, 53
540 000 €

Real estate in Tandem Discover a remarkable promotion featuring six houses for s...

0
0 reviews

We use our own and third-party cookies to analyze website usage and show you advertisements related to your preferences based on a profile created from your browsing habits (e.g., pages visited). More information. Do you accept cookies?