New construction Villas la Capellania in Benalmádena

Malaga, Benalmádena, El Higuerón - Capellanía, El Higuerón - Capellanía
from 2 950 000 €
Leave review
Property surfaces
Number of bedrooms
Bathrooms
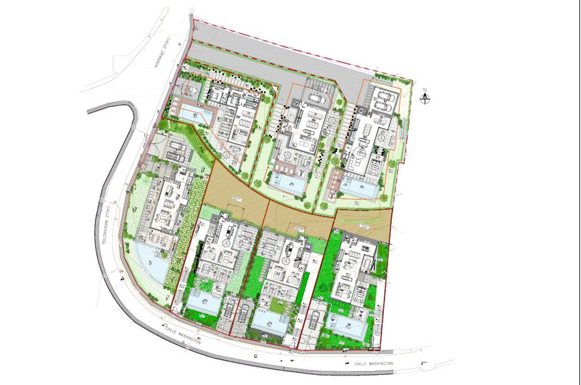
Exclusiva Promoción de 7 Villas de Lujo en La Capellanía, Benalmádena — Últimas 3 Disponibles Desde 2.950.000 € • Diseño de Carlos Lamas • Vistas Panorámicas al Mar • Infinity Pool Presentamos una excepcional promoción de 7 villas independientes, de las cuales solo quedan 3 disponibles, ubicadas en una de las zonas más exclusivas de Benalmádena: La Capellanía. Una oportunidad única de inversión y estilo de vida en la Costa del Sol, con diseños contemporáneos del reconocido arquitecto Carlos Lamas y una calidad constructiva de primer nivel. Arquitectura, Diseño y Calidad Constructiva Cada villa destaca por una arquitectura moderna, líneas elegantes y amplios espacios abiertos que maximizan la luz natural y las vistas panorámicas al mar Mediterráneo. La construcción combina estructura mixta de hormigón y acero, muros reforzados en sótano, cubiertas planas con aislamiento térmico-acústico y sellado de primera calidad. • Muros exteriores en termoarcilla + aislamiento EPS + ladrillo acústico interior. • Carpintería SCHÜCO con doble acristalamiento de alto rendimiento. • Persianas venecianas eléctricas de serie. • Barandillas de vidrio laminado. • Revestimientos exteriores con mortero hidrófugo y detalles naturales integrados. • Techos de pladur con iluminación LED integrada. Distribución Interior Planta Principal • Diseño open-plan con salón de gran amplitud. • Cocina de última generación abierta a la zona de estar. • Acceso directo a grandes terrazas y chill-out frente a la piscina infinity orientada al sur. Primera Planta • Master suite con terraza privada y baño en suite. • Tres dormitorios adicionales, todos con baño privado. • Galería o espacio de lectura según tipología de villa. Sótano • Amplio garaje para dos coches. • Sala multiusos: cine, gimnasio, bodega o “man-cave”. • Varias estancias de almacenaje. • Ascensor privado conectado a todas las plantas. Exteriores • Privacidad, Jardines y Piscina Infinity Los exteriores han sido diseñados para integrarse en la topografía natural, maximizando la privacidad y las vistas al mar. • Piscina infinity orientada al sur con vistas de 180° al mar y a la Bahía de Fuengirola. • Sistema de filtración salina. • Piscina climatada incluida de serie. • Jardines mediterráneos de bajo mantenimiento con riego por goteo automatizado. • Terrazas amplias con zonas chill-out y solárium según villa. Prestaciones Especiales • Doble aparcamiento privado en sótano. • Ascensor privado en cada villa. • Bodega integrada. • Chimeneas de gas interior y exterior. • Sala multiusos equipada. • Instalación preparada para lámpara sobre mesa de comedor. Personalización a Medida Cada comprador puede adaptar ciertos aspectos interiores: • elección de revestimientos, colores y acabados; • distribución funcional de estancias; • selección de materiales en baños y cocinas. Una oportunidad única de crear un hogar exclusivo, totalmente personalizado y con las mejores calidades del mercado. Una Inversión Inmejorable en La Capellanía Con precios desde 2.950.000 €, estas villas representan una oportunidad excepcional en la Costa del Sol, combinando diseño arquitectónico de prestigio, vistas incomparables y calidades de lujo. Las últimas 3 unidades disponibles son una oportunidad única para compradores exigentes que buscan exclusividad, privacidad y una calidad de vida superior.

Featured promotions in Spain

10 units

Nature Views 2

Alicante, Torrevieja, Los Balcones - The Heights of Eden, Denia s/n
310 000 € - 379 000 €
1 units

Hotel en venta en Benidorm centro

Alicante, Benidorm, Poniente Beach
2 250 000 € - 2 250 000 €
28 units

Residencial Los Balcones De Calpe

Alicante, Calpe, Calpe Town, Avenida de Madrid, 1
299 000 € - 892 125 €
4 units

Nature Views

Alicante, Torrevieja, Lago Jardín II, Avenida Denia s/n
309 000 € - 330 000 €
5 units

ALONIS VILLAS

Alicante, La Villajoyosa / Vila Joiosa, Torres Beach, Partida Torres s/n
675 000 € - 775 000 €
1 units

Residencial Royal Beach

Alicante, Guardamar del Segura, town, Miguel Hernández 102
349 500 € - 349 500 €
7 units

Royal Star

Alicante, Guardamar del Segura
229 500 € - 269 500 €
This information has been obtained from public sources and may not be up to date. It does not represent a link with the developer.

Property characteristics

Complex information

Quality Report

  • Interior Carpentry
    Armored Door

Property data

  • Property type
    New construction

Base

Energy certification

  • CEE Issuance
    A

Market price statistics for Villas la Capellania

1 066 322 € (3 152 €/m2)
Average price of primary Houses in city Benalmádena
376 633 € (3 984 €/m2)
Average price of primary Apartments in city Benalmádena
1 680 335 € (4 570 €/m2)
Average price of primary Houses in district El Higuerón - Capellanía

Map

Malaga, Benalmádena, El Higuerón - Capellanía, El Higuerón - Capellanía Going to this location!
Leave a review about Villas la Capellania
0
0 reviews
1
0% (0)
2
0% (0)
3
0% (0)
4
0% (0)
5
0% (0)
Mianna Properties
2 950 000 €
Contact advertiser

For more information contact the platform

REF: 440796

Reviews about Villas la Capellania
Loading...

No reviews have been left for this object yet

Nearest properties

Explore nearby properties we've discovered in close proximity to this location

6 units

Discover the newly developed residential project in the heart of Mijas.

Malaga, Mijas, The Lagoons, Calle Benahavís s/n
240 000 € - 440 000 €

Real estate in Caravelle Residencial Experience a modern lifestyle in this excl...

0
0 reviews

Newly constructed property in Fuengirola.

Malaga, Fuengirola, Los Pacos, Calle Reina Victoria Eugenia
-

Real Estate in 920000055 Discover a brand-new home ready for you to move in, loc...

0
0 reviews

New construction project in Benalmádena.

Malaga, Benalmádena, Santangelo, Calle Abubilla, 88
-

Real estate in La Roca Introducing an exceptional villa under construction in th...

0
0 reviews
5 units

Introducing the newly constructed Stella 8 residences in Benalmádena.

Malaga, Benalmádena, Torrequebrada, Calle Navio , 3
295 000 € - 810 000 €

Properties in New Development Exclusive promotion of 8 homes in a privileged set...

0
0 reviews
5 units

New Development: Mijas Coastal Residences in Mijas.

Malaga, Mijas, The Espartales, Calle haya s/n
538 700 € - 699 259 €

Real estate in Mijas Seaviews Nestled in the picturesque hills of Mijas, this u...

0
0 reviews

Introducing the newly developed residences in the coastal town of Benalmádena, offering contemporary living spaces designed for comfort and style.

Malaga, Benalmádena, Benalmádena Golf, Avenida Rocas Blancas 14 Bl 8, Esc. 1, 1
-

Real estate in Mane Residences In Málaga, this exclusive private development of...

0
0 reviews

Brand new development located in a desirable area of Fuengirola.

Malaga, Fuengirola, The Fig Tree, Urb Reserva del Higuerón, 4
-

Real estate in Lomas del Higueron Experience contemporary minimalist design with...

0
0 reviews

Newly developed villas in Mijas.

Malaga, Mijas, The Lagoons, Calle Federico Garcia Lorca s/n
-

Real estate in Villas Mijas Villas Mijas offers a unique collection of exclusiv...

0
0 reviews
2 units

New development, Nexus Residences, located in Benalmádena.

Malaga, Benalmádena, Santángelo Alto, Calle Aloe s/n
464 000 € - 514 000 €

On the Costa del Sol, there exists a place where the sky meets the Mediterranean...

0
0 reviews
Call

We use our own and third-party cookies to analyze website usage and show you advertisements related to your preferences based on a profile created from your browsing habits (e.g., pages visited). More information. Do you accept cookies?