Terreno en avenida Blas Infante

Malaga, Benamocarra, Avenida Blas Infante
600 000 €
Leave review
Urbanizable Property type
1 500 m² Land area
Residential Use of lot
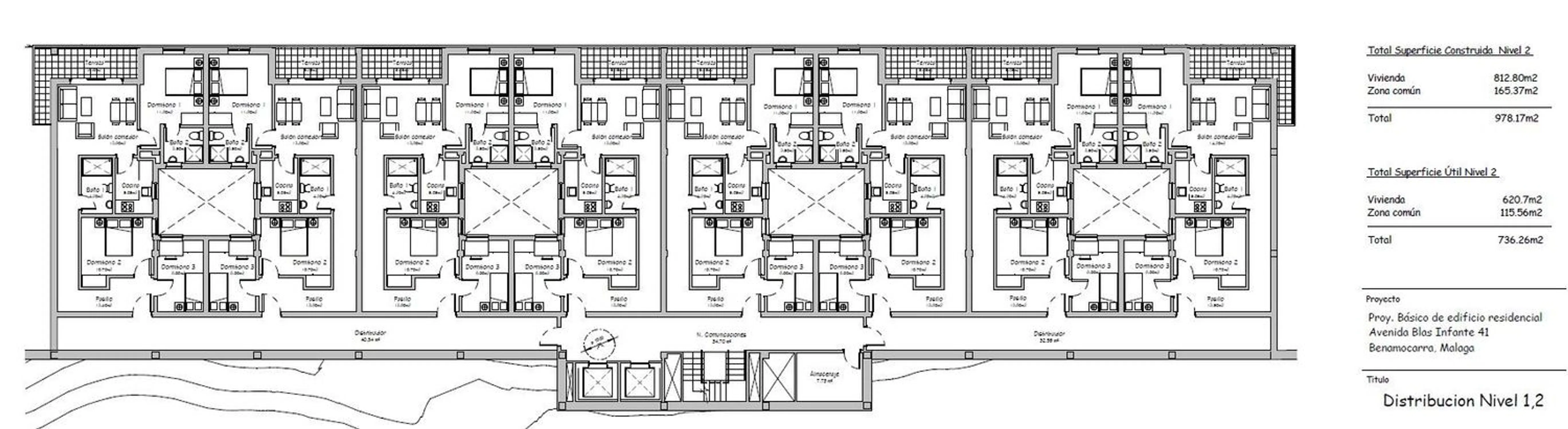
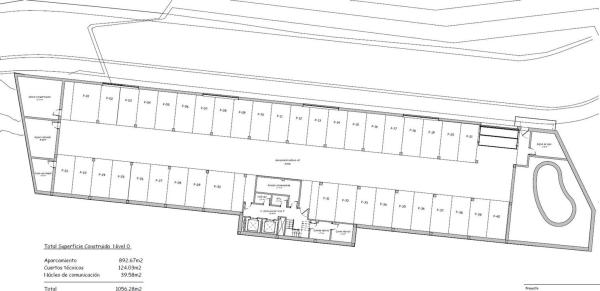
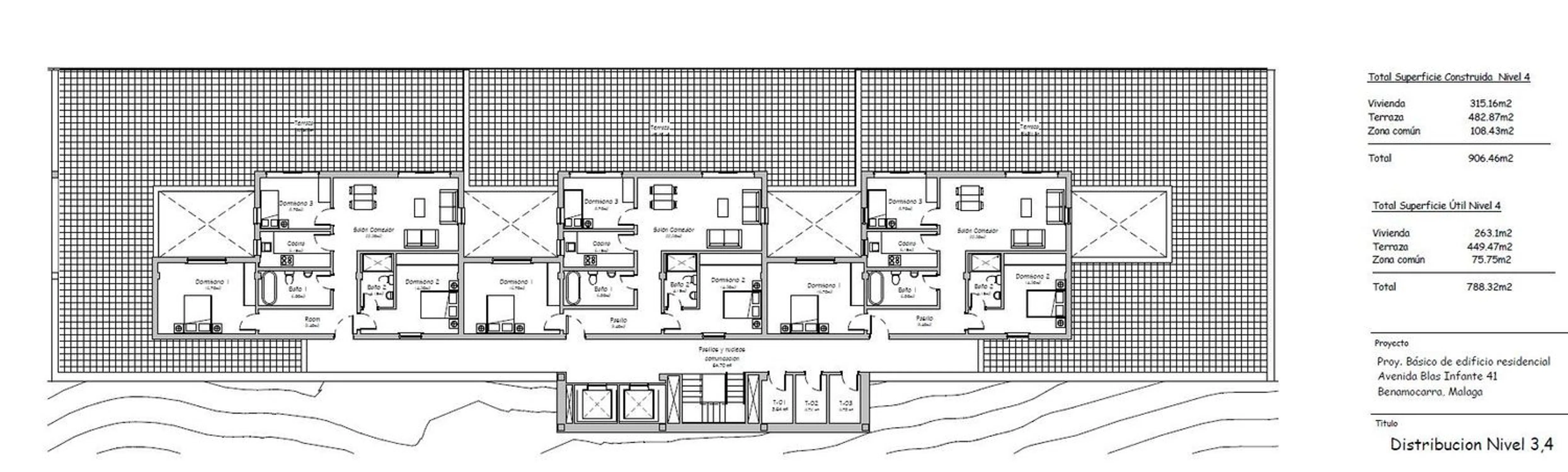
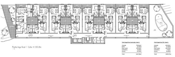
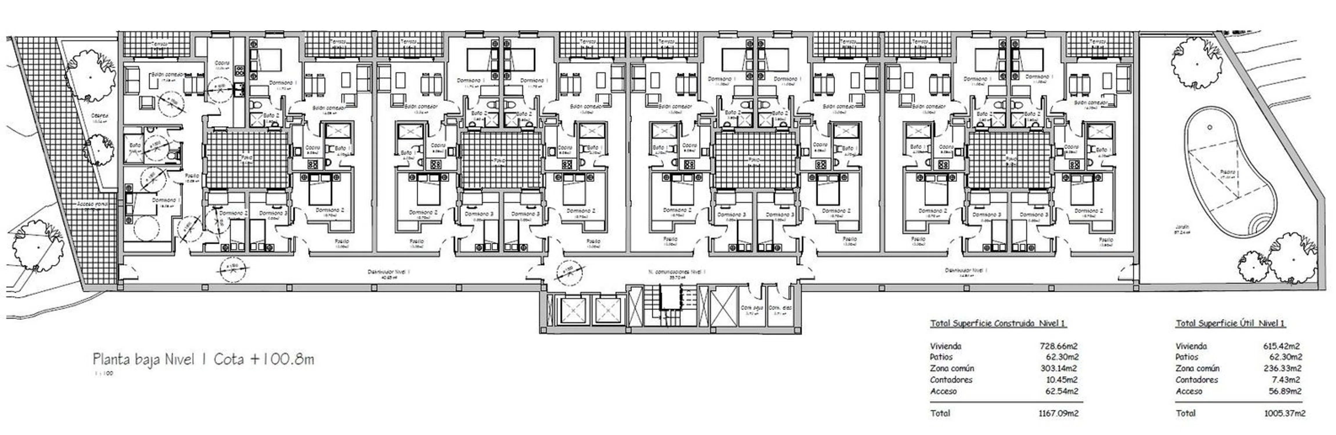
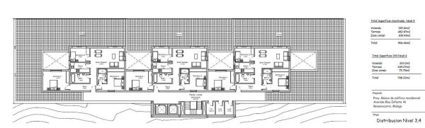
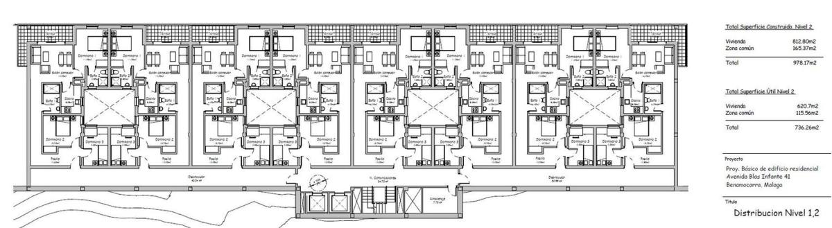
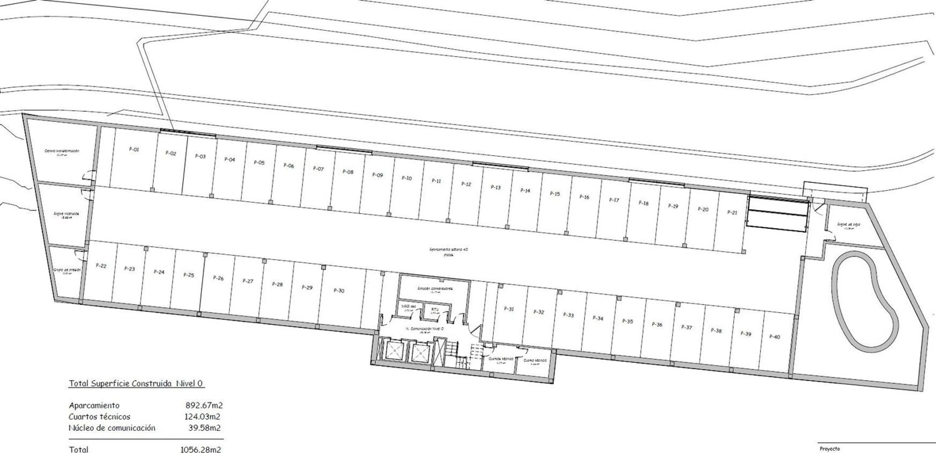
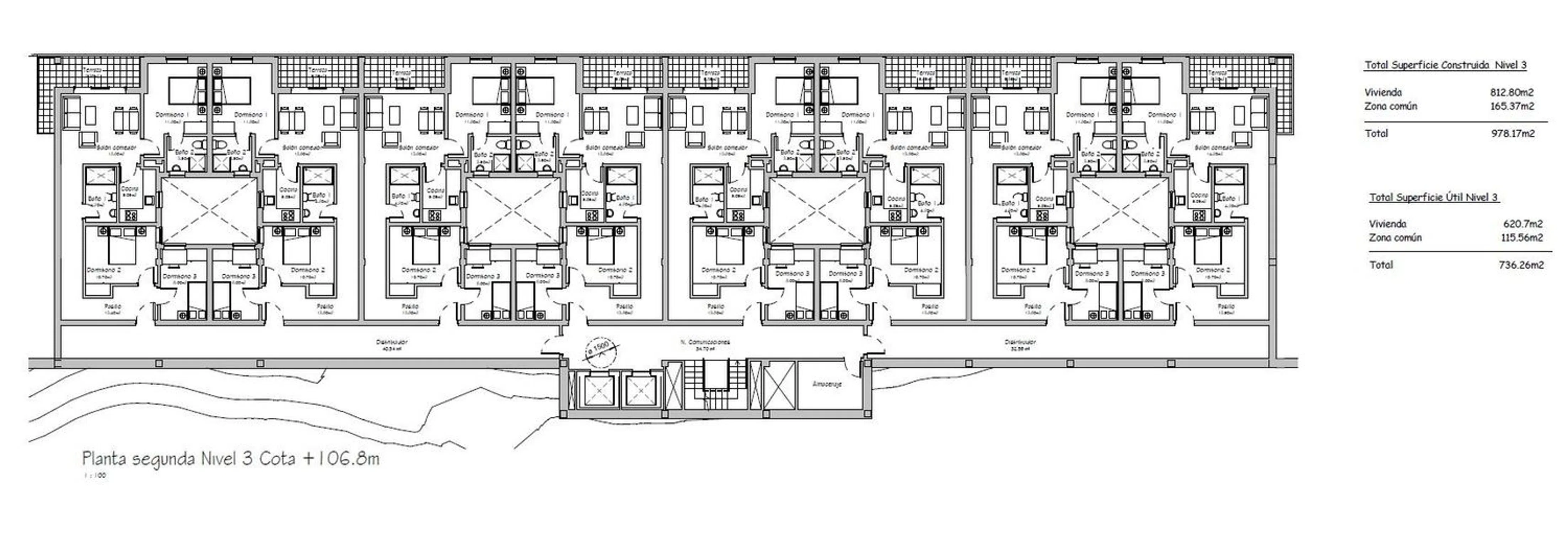
QUALITY KEYS INMOBILIARIOS le ofrece este magnífico solar urbano en venta sito en Benamocarra, municipio de la provincia de Málaga, situado entre el litoral mediterráneo y el interior de la Comarca de la Axarquía, a 5 km de Vélez-Málaga, a 10 km de Torre del Mar y a 35 km de Málaga capital, a 14 minutos de la playa y 45 minutos del aeropuerto de Málaga-Costa del Sol. La superficie de la parcela es de 1.500 metros cuadrados. La infraestructura urbanística existente es completa, por lo que la parcela tiene la consideración de solar. Con 4.500 metros cuadrados de techo edificable. Hay dos proyectos básicos para 27 y 39 viviendas y aparcamientos. El grado de urbanización de la Avenida Blas de Infante es de acceso pavimentado, abastecimiento y saneamiento de agua, suministro de energía eléctrica y alumbrado público. En función del PGOU vigente en la localidad, este suelo ubicado en la Avenida Blas Infante de Benamocarra es un Suelo Urbano Consolidado con ordenanza de aplicación NT-E. El uso dominante es el Residencial, con una altura máxima de 3 plantas (planta baja más dos plantas altas) con un máximo de 10 metros y por encima de la altura máxima un ático retranqueado con una superficie máxima del 40% de la superficie ocupada de la planta inmediatamente inferior. La ocupación máxima limitada a un fondo edificable de 20 metros. Para ampliar información, no dude en llamarnos. Somos una BOUTIQUE INMOBILIARIA con más de 20 años en el sector, que siempre está al servicio del cliente, acompañándolos desde la búsqueda de su casa, local o terreno, hasta el último detalle de la compra. Características básicas •Superficie total del terreno 1.500 m² •Superficie mínima en venta 1.500 m² •Superficie edificable 4.500 m² •Acceso vía urbana Situación urbanística •Terreno urbano (solar) •Calificado para residencial en altura (bloques), residencial unifamiliar (chalets) y terciario hotelero •3 plantas edificables Equipamiento •Agua •Electricidad •Alcantarillado •Alumbrado público •Aceras.

Property characteristics

Complex information

  • Property type
    Urbanizable

Property data

  • Property type
    Second hand

Surfaces

  • Land area
    1 500 m²

Base

  • Urban land
    Consolidated (Land)
  • Use of lot
    Residential

Facilities

Supply:

Sewage System

Additional Features:

Building plot

Market price statistics for Terreno en avenida Blas Infante

Map

Malaga, Benamocarra, Avenida Blas Infante Going to this location!
Leave a review about Terreno en avenida Blas Infante
0
0 reviews
1
0% (0)
2
0% (0)
3
0% (0)
4
0% (0)
5
0% (0)
Quality Keys Marbella
600 000 €
Contact advertiser

For more information contact the platform

REF: 243709

Reviews about Terreno en avenida Blas Infante
Loading...

No reviews have been left for this object yet

Nearest properties

Explore nearby properties we've discovered in close proximity to this location

Terreno en Los Puertas

Malaga, The Doors, Los Puertas
90 000 €

SOLAR URBANIZABLE EN LOS PUERTAS, CAJIZ. Superficie de 607 metros cuadrados, con...

0
0 reviews

Terreno en Arrabal Arroyo Romeral, 40

Malaga, Vélez-Málaga, Algarrobo Road - The Sands, Arrabal Arroyo Romeral, 40
55 000 €

hazte tu casa unifamiliar el el mejor entorno de velez malaga.

0
0 reviews

Terreno en calle Rincón Huerto Vicario, 46

Malaga, Vélez-Málaga, North - Barrio del Pilar - El Reñidero, Calle Rincón Huerto Vicario, 46
84 000 €

¡OPORTUNIDAD! Parcela Urbana Esquinera en Vélez-Málaga – 187 m² con Vistas y Exc...

0
0 reviews

Terreno en calle el Romeral, 1

Malaga, Vélez-Málaga, Algarrobo Road - The Sands, Calle el Romeral, 1
70 000 €

**Terreno en Venta en El Romeral - Oportunidad Única** ¡Descubre la oportunidad...

0
0 reviews

Terreno en calle la Paz, 9

Malaga, Vélez-Málaga, Historic Center, Calle la Paz, 9
180 000 €

Vivienda unifamiliar de 206 m² según catastro distribuida en dos plantas con pat...

0
0 reviews

Terreno en plaza Santa Cruz

Malaga, Vélez-Málaga, Historic Center, Plaza Santa Cruz
95 000 €

¡Oportunidad única en Vélez-Málaga! Descubre esta magnífica parcela de 217 m² si...

0
0 reviews

Terreno en calle Doctora Ana Carmona Martín

Malaga, Almayate Bajo, Calle Doctora Ana Carmona Martín
2 500 000 €

Se vende suelo con vistas al mar en el término de Almayate bajo, Vélez Málaga. T...

0
0 reviews

Terreno en avenida Blas Infante

Malaga, Benamocarra, Avenida Blas Infante
314 900 €

DEAL INVERSORES! Parcela Urbana de 884m² en Benamocarra, Se pueden comprar tambi...

0
0 reviews

Terreno en calle Miguel de Cervantes, km 5

Malaga, Benamocarra, Calle Miguel de Cervantes, km 5
630 000 €

Se vende terreno Urbano en calle cervantes, el solar tiene 7.202m2 que son edifi...

0
0 reviews
Call

We use our own and third-party cookies to analyze website usage and show you advertisements related to your preferences based on a profile created from your browsing habits (e.g., pages visited). More information. Do you accept cookies?