Terreno en calle Tenerife, 436 -2

Malaga, Marbella, Elviria-Cabopino, Calle Tenerife, 436 -2
1 500 000 €
Leave review
Urbanizable Property type
872 m² Land area
Residential Use of lot
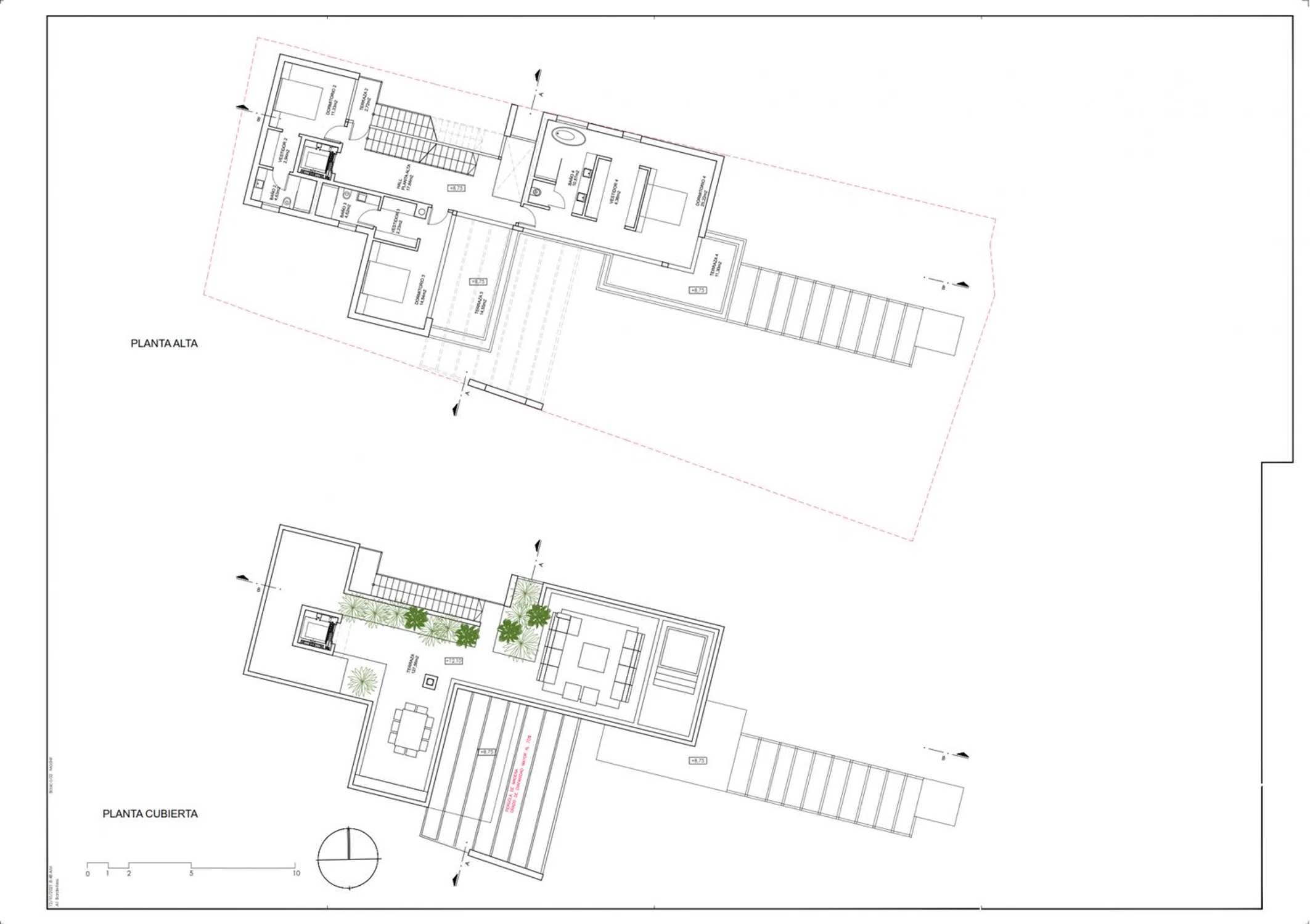
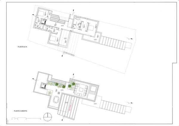
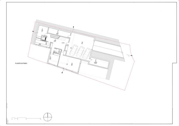
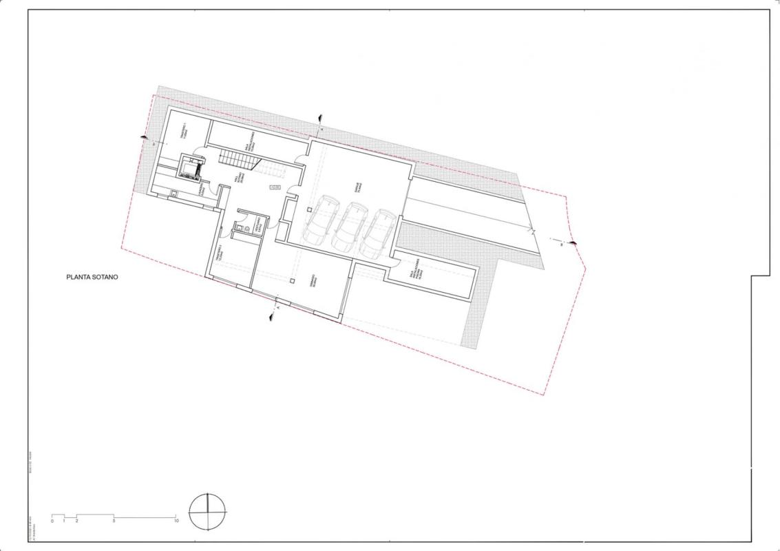
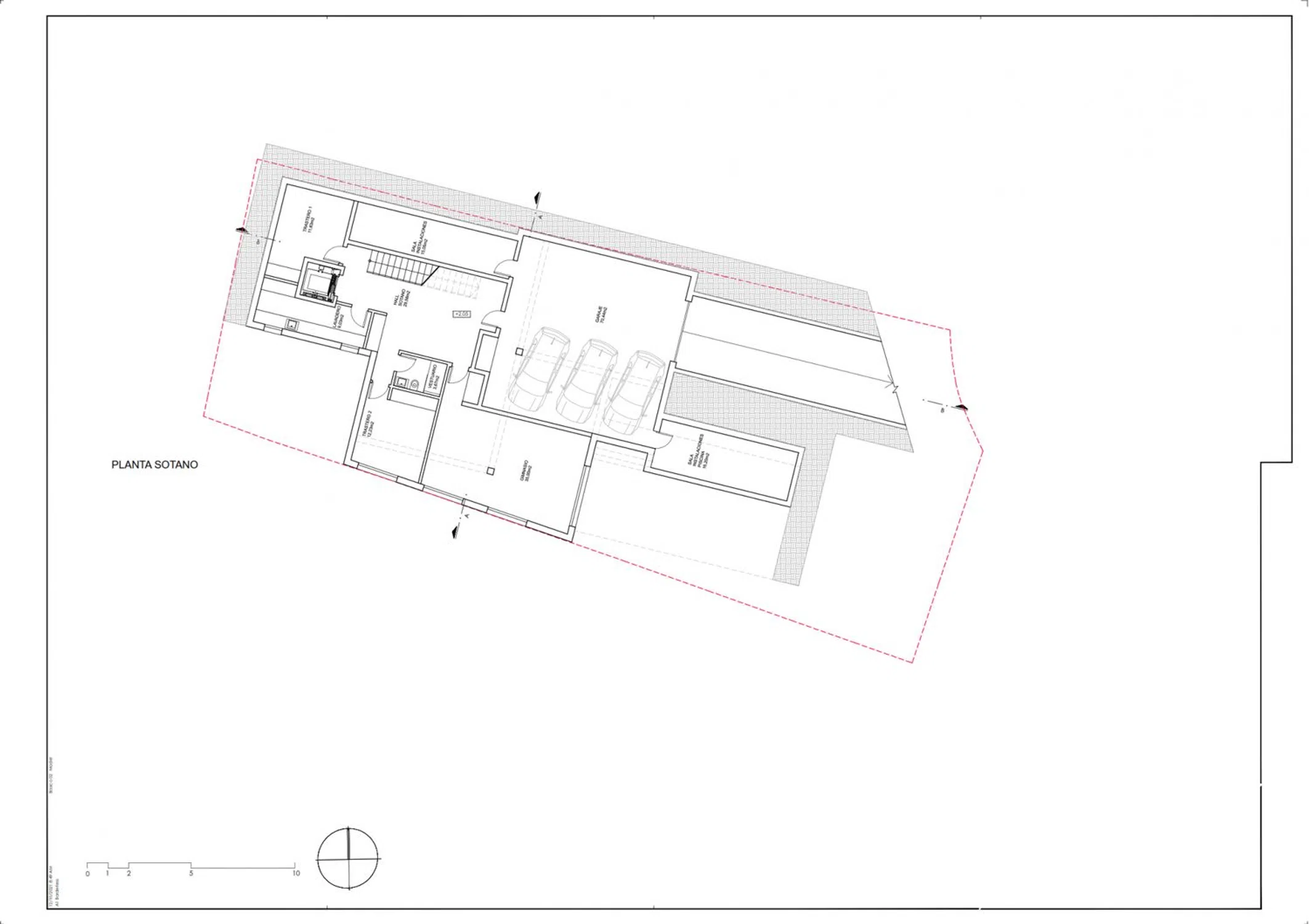
Parcela de 872 m² ubicada a escasos metros del mar en Marbesa, una de las zonas residenciales más consolidadas de Marbella Este. Incluye proyecto de villa contemporánea con licencia de obra concedida. El diseño contempla una vivienda distribuida en cuatro niveles —planta principal, planta alta, sótano y solárium— con una superficie construida de 295,63 m². Los espacios interiores suman 155,60 m², a los que se añaden 140,03 m² de zonas exteriores cuidadosamente proyectadas. El jardín, de 547,93 m², incorpora piscina privada y terrazas pensadas para disfrutar del entorno durante todo el año. El proyecto incluye cuatro dormitorios con baño en suite y dos aseos de cortesía. La suite principal se sitúa en la planta superior, con acceso a una terraza privada. En el sótano se prevé un gimnasio, zona de lavandería, trastero y garaje con capacidad para dos vehículos. El solárium ofrece vistas despejadas y máxima privacidad. Entre las calidades previstas destacan: •Pavimento porcelánico de gran formato y tarima laminada en roble gris claro en planta alta •Cocina totalmente equipada con electrodomésticos integrados de primeras marcas •Suelo radiante y climatización por conductos con control independiente por estancia •Aislamiento térmico y acústico de alto rendimiento y ventanas con doble acristalamiento •Sistema domótico para gestión de climatización, iluminación y seguridad •Jardín paisajístico con sistema de riego e iluminación •Instalación fotovoltaica y sistema aerotérmico para producción de agua caliente A tan solo un minuto caminando de la playa, esta parcela con proyecto combina ubicación, diseño y eficiencia, ofreciendo una oportunidad exclusiva para construir una vivienda a medida en uno de los enclaves más deseados de Marbella.

Property characteristics

Complex information

  • Property type
    Urbanizable

Property data

  • Property type
    Second hand

Surfaces

  • Land area
    872 m²

Base

  • Use of lot
    Residential

Facilities

Facilities:

Irrigation Water

Plans

Market price statistics for Terreno en calle Tenerife, 436 -2

Map

Malaga, Marbella, Elviria-Cabopino, Calle Tenerife, 436 -2 Going to this location!
Leave a review about Terreno en calle Tenerife, 436 -2
0
0 reviews
1
0% (0)
2
0% (0)
3
0% (0)
4
0% (0)
5
0% (0)
The Agency Marbella
1 500 000 €
Contact advertiser

For more information contact the platform

REF: 241815

Reviews about Terreno en calle Tenerife, 436 -2
Loading...

No reviews have been left for this object yet

Nearest properties

Explore nearby properties we've discovered in close proximity to this location

Terreno en calle del Alce, 81 -13

Malaga, Marbella, Rio Real-Los Monteros, Calle del Alce, 81 -13
12 000 000 €

Se presenta una oportunidad excepcional para adquirir un terreno con gran potenc...

0
0 reviews

Terreno en calle Tenerife, 436 -2

Malaga, Marbella, Elviria-Cabopino, Calle Tenerife, 436 -2
1 500 000 €

Parcela de 872 m² ubicada a escasos metros del mar en Marbesa, una de las zonas...

0
0 reviews

Terreno en Barrio El Rosario-Ricmar

Malaga, Marbella, Las Chapas-El Rosario, Barrio El Rosario-Ricmar
750 000 €

Ubicación perfecta para construir la casa de sus sueños Ubicación TOP, Parcela 1...

0
0 reviews

Terreno en Barrio Marbesa

Malaga, Marbella, Elviria-Cabopino, Barrio Marbesa
1 500 000 €

Una oportunidad excepcional tanto para inversores como para compradores que busc...

0
0 reviews

Terreno en Trebol-santa Maria Golf, 10

Malaga, Marbella, Elviria-Cabopino, TREBOL-SANTA MARIA GOLF, 10
540 000 €

Superb Parcela con Proyecto Aprobado en Santa María Golf – Elviria Descubra esta...

0
0 reviews

Terreno en calle Sirius-Riviera Sol F-2, 21

Malaga, Mijas, Riviera del Sol, Calle Sirius-Riviera Sol F-2, 21
730 000 €

En venta dos estupendas parcelas juntas en la Urbanización Riviera del Sol fase...

0
0 reviews

Terreno en paseo del Golf, 1

Malaga, Marbella, Elviria-Cabopino, Paseo del Golf, 1
513 840 €

Esta amplia parcela ofrece una oportunidad única para construir una villa a medi...

0
0 reviews

Terreno en Barrio Reserva de Marbella

Malaga, Marbella, Elviria-Cabopino, Barrio Reserva de Marbella
800 000 €

PARCELA COMERCIAL JUNTO AL CAMPO DE GOLF DE CABOPINO A 700 METROS DEL AUTOBÚS Y...

0
0 reviews

Terreno en La Mairena

Malaga, Ojén, La Mairena, La Mairena
6 448 800 €

Fantástica parcela de inversión de 15399m2 para construir 9 villas en La Mairena...

0
0 reviews
Call

We use our own and third-party cookies to analyze website usage and show you advertisements related to your preferences based on a profile created from your browsing habits (e.g., pages visited). More information. Do you accept cookies?