Terreno en Viñuela

Malaga, Viñuela, Viñuela
69 000 €
Leave review
Urbanizable Property type
502 m² Land area
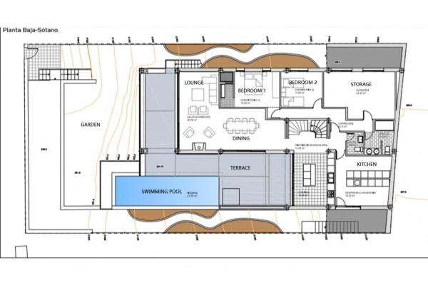
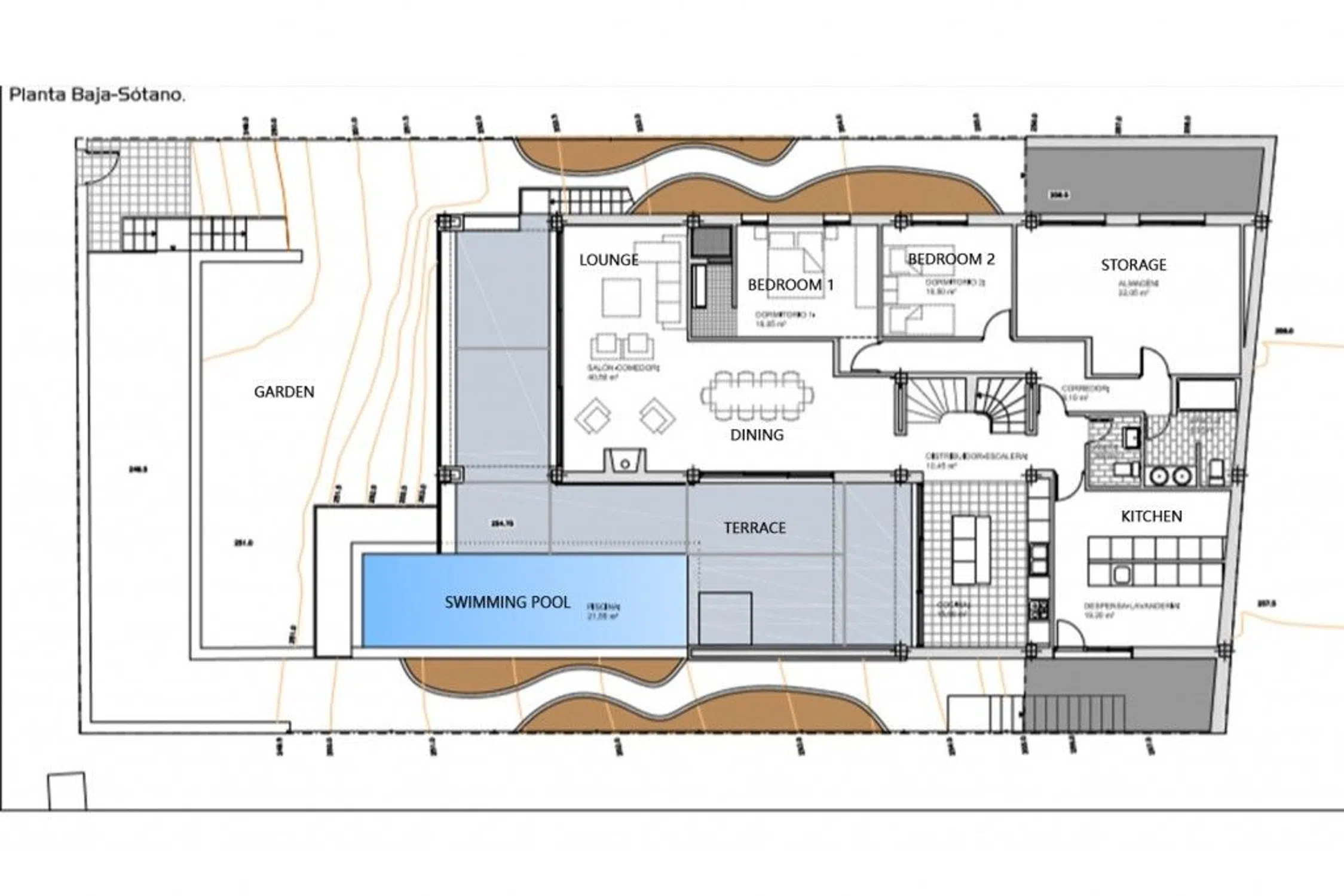
PARCELA URBANA: oportunidad única de construir su propia casa con piscina en una parcela con vista al lago y las montañas. Cerca del lago de Viñuela se puede comprar esta parcela con un ancho de calle de 17 metros y una profundidad de 29,5 metros. El sitio está en una pendiente y con el automóvil tiene acceso tanto en la parte superior como en la inferior. Esto da más posibilidades creativas en el diseño de las diferentes plantas de construcción. El área construida permitida para esta parcela es de 144 m2, que encaja con un diseño para una casa con 3 dormitorios, 2 baños y espacio habitable. Deje correr su creatividad y construya su propio diseño en casa con los acabados y materiales de su elección. El propietario actual ya ha desarrollado un proyecto completo y esto fue aprobado por el municipio. Si está interesado, puede comprar este proyecto por 10.000 €. Si está interesado, nos gustaría obtener más información sobre la construcción de una nueva casa en la región.

Property characteristics

Complex information

  • Property type
    Urbanizable

Property data

  • Property type
    Second hand

Surfaces

  • Land area
    502 m²

Base

Plans

Market price statistics for Terreno en Viñuela

Map

Malaga, Viñuela, Viñuela Going to this location!
Leave a review about Terreno en Viñuela
0
0 reviews
1
0% (0)
2
0% (0)
3
0% (0)
4
0% (0)
5
0% (0)
Andalucia Vastgoed/ Andalucia Real Estate
69 000 €
Contact advertiser

For more information contact the platform

REF: 244394

Reviews about Terreno en Viñuela
Loading...

No reviews have been left for this object yet

Nearest properties

Explore nearby properties we've discovered in close proximity to this location

Terreno en calle Jaén, 10

Malaga, Periana, Calle Jaén, 10
37 000 €

� ¡OPORTUNIDAD ÚNICA EN EL CENTRO DE PERIANA! � Se vende terreno urbano en una u...

0
0 reviews

Terreno en calle Venta Baja

Malaga, Alcaucín, Calle Venta Baja
274 000 €

Mejor parcela finca de la zona para desarrollo o recreo! 50000 m2 aprox, acce...

0
0 reviews

Terreno en calle Salvador Rueda, 4

Malaga, Benamargosa, Calle Salvador Rueda, 4
43 000 €

Terreno edificable en la zona alta de un pequeño pueblo de la Axarquía, lo que l...

0
0 reviews

Terreno en Urbanizacion Ur1ad Embalse

Malaga, Viñuela, Urbanizacion UR1AD Embalse
1 100 000 €

¡Oportunidad única en el Pantano de la Viñuela! Se vende impresionante terreno d...

0
0 reviews

Terreno en Viñuela

Malaga, Viñuela, Viñuela
85 000 €

PARCELA EDIFICABLE con proyecto registrado para chalet independiente con piscina...

0
0 reviews

Terreno en Viñuela

Malaga, Viñuela, Viñuela
43 000 €

Oportunidad única en La Viñuela. Se vende solar urbanizable que te brinda la pos...

0
0 reviews

Terreno en Viñuela

Malaga, Viñuela, Viñuela
69 000 €

PARCELA URBANA: oportunidad única de construir su propia casa con piscina en una...

0
0 reviews

Terreno en Canillas de Aceituno

Malaga, Canillas de Aceituno, Canillas de Aceituno
40 000 €

L e ofrecemos una parcela Urbana en el bonito pueblo de Canillas de Aceituno Co...

0
0 reviews

Terreno en calle Jose Pinto el Cura Pinto, 11

Malaga, Benamargosa, Calle Jose Pinto el Cura Pinto, 11
135 000 €

Se vende terreno ideal para edificar, construir casas, trasteros, edificios gara...

0
0 reviews

We use our own and third-party cookies to analyze website usage and show you advertisements related to your preferences based on a profile created from your browsing habits (e.g., pages visited). More information. Do you accept cookies?