Spain New construction Spain New construction Pontevedra New construction Vigo Mirador a Guía Chalet adosado en venta en calle Camiño Espiñeiro, 87

Sale of townhouse in Calle Camiño Espiñeiro, 87 , Vigo

Pontevedra, Vigo, Teis, Calle Camiño Espiñeiro, 87
Sold out
Leave review
Terraced houses Property type
4 Bedrooms
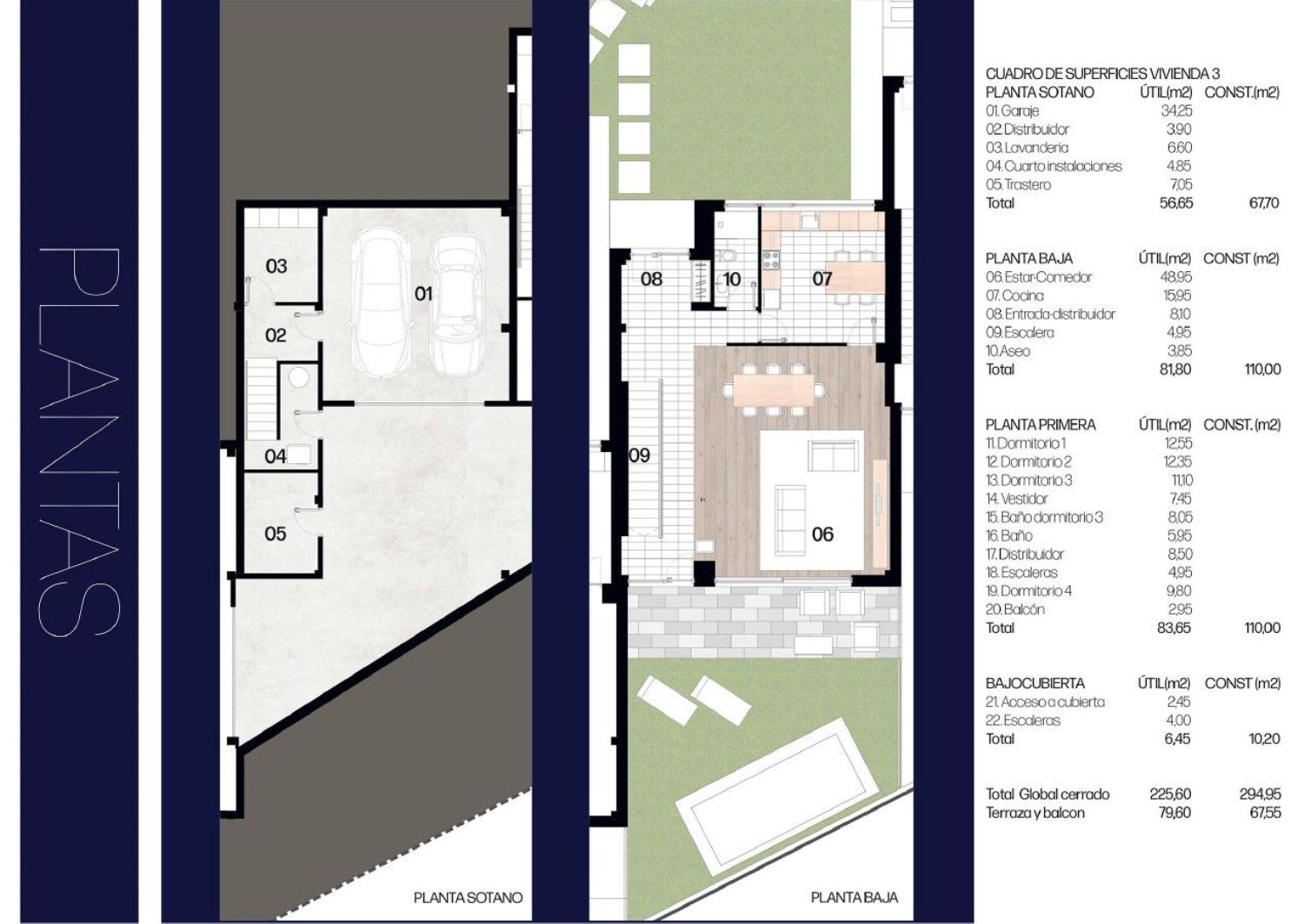
295 m² built square meters
3 Bathrooms
Radiant Floor Heating
Equipped Kitchen equipment
3 Floor
Es una promoción de cuatro viviendas unifamiliares, localizadas en la ladera suroeste del monte de A Guía en la Calle Camiño Espiñeiro número 87Se trata de una ubicación privilegiada en un entorno natural, y al mismo tiempo próxima al centro de la ciudad, desde la que disfrutar de unas maravillosas vistas al mar.Consiste en cuatro viviendas de 370 metros cuadrados construidos, distribuidos en tres plantas y cubierta practicable. Diseño moderno y funcional, que se adapta al entrono y nos ofrece una gran calidad de vida. Excelente calidad constructiva, con alto nivel de confortabilidad, sostenibilidad y eficiencia energética.Las viviendas cuentan con un jardín privado, piscina individual y zonas verdes comunes.Posibilidad de personalización de las viviendasSe ha incluido en su diseño una especial atención a las calidadesFachadas con materiales de calidad combinando piedra y hormigón.Carpintería exterior en aluminio de perfil reducido, con rotura de puente térmico, triple acristalamiento y control solar.Cocinas de alga gama totalmente equipadasPuertas de suelo a techo para una mejor experiencia visualSuelo de tarima de roble y porcelánico en cocina y bañosAhorro energético gracias a la instalación de aerotermia para ACS y calefacciónCalefacción por suelo radiante, que aporta un extra de confortFunción refresco por suelo radianteCertificación energética tipo A.

Property characteristics

Complex information

  • Residential complex
    Mirador a Guía
  • Property type
    Terraced houses

Quality Report

  • Heating
    Radiant Floor

Property data

  • Kitchen equipment
    Equipped
  • Floor
    3
  • Bedrooms
    4
  • Bathrooms
    3
  • built square meters
    295 m²
  • Design type
    Modern
  • Property type
    New construction

Energy certification

  • Energy certificate
    A

Facilities

Housing Amenities:

Heating
Exterior window

In building:

Swimming Pool
Garden Zones
Green Areas
Garden

Views:

Sea Views

Market price statistics for Chalet adosado en venta en calle Camiño Espiñeiro, 87

Map

Pontevedra, Vigo, Teis, Calle Camiño Espiñeiro, 87 Going to this location!
Leave a review about Chalet adosado en venta en calle Camiño Espiñeiro, 87
0
0 reviews
1
0% (0)
2
0% (0)
3
0% (0)
4
0% (0)
5
0% (0)
Mirador a Guía
Residential complex
Sold out
Contact advertiser

For more information contact the platform

REF: 8166

Reviews about Chalet adosado en venta en calle Camiño Espiñeiro, 87
Loading...

No reviews have been left for this object yet

Nearest properties

Explore nearby properties we've discovered in close proximity to this location

Adosados en Venta en Calle Camiño Espiñeiro, 87, Vigo

Pontevedra, Vigo, Teis, Calle Camiño Espiñeiro, 87
695 000 €

Es una promoción de cuatro viviendas unifamiliares, localizadas en la ladera sur...

0
0 reviews

Adosados en Venta en Calle Camiño Espiñeiro, 87, Vigo

Pontevedra, Vigo, Teis, Calle Camiño Espiñeiro, 87
695 000 €

Es una promoción de cuatro viviendas unifamiliares, localizadas en la ladera sur...

0
0 reviews

Adosados en Venta en Calle Camiño Espiñeiro, 87, Vigo

Pontevedra, Vigo, Teis, Calle Camiño Espiñeiro, 87
725 000 €

Es una promoción de cuatro viviendas unifamiliares, localizadas en la ladera sur...

0
0 reviews

Adosados en Venta en Calle Camiño Espiñeiro, 87, Vigo

Pontevedra, Vigo, Teis, Calle Camiño Espiñeiro, 87
725 000 €

Es una promoción de cuatro viviendas unifamiliares, localizadas en la ladera sur...

0
0 reviews

Chalet adosado en venta en camino Espiñeiro, 87

Pontevedra, Vigo, Teis, Camino Espiñeiro, 87
595 000 €

This is an exceptional opportunity to savor an exclusive residence offering stu...

0
0 reviews

Chalet adosado en venta en camino Espiñeiro, 87

Pontevedra, Vigo, Teis, Camino Espiñeiro, 87
575 000 €

This is an exceptional opportunity to savor an exclusive residence offering stu...

0
0 reviews

Chalet adosado en venta en camino Espiñeiro, 87

Pontevedra, Vigo, Teis, Camino Espiñeiro, 87
575 000 €

This is an exceptional opportunity to savor an exclusive residence offering stu...

0
0 reviews

Chalet adosado en venta en camino Espiñeiro, 87

Pontevedra, Vigo, Teis, Camino Espiñeiro, 87
595 000 €

This is an exceptional opportunity to savor an exclusive residence offering stu...

0
0 reviews

We use our own and third-party cookies to analyze website usage and show you advertisements related to your preferences based on a profile created from your browsing habits (e.g., pages visited). More information. Do you accept cookies?