Sale of independent chalet in Camino Pouet s/n, Montroy

Valencia, Montroy, Camino Pouet s/n
Sold out
Leave review
Detached chalet Property type
4 Bedrooms
120 m² built square meters
2 Bathrooms
2 Floor
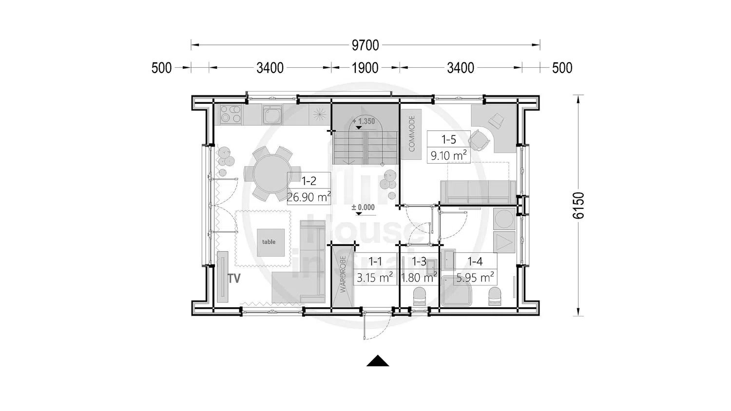
**Casa moderna de madera de 120 m² – Confort y estilo en España** Esta casa de madera eficiente energéticamente, con una superficie de 120 m², es ideal para vivir de forma permanente en España. Con un diseño moderno, materiales de alta calidad y una distribución funcional, es perfecta para familias que buscan comodidad y sostenibilidad. **Características principales de la casa:** - **Dimensiones:** 9,7 m × 6,5 m. - **Superficie:** 120 m². - **Materiales:** paredes de tablas de 44 mm con aislamiento de 50 mm, techo aislado con paneles de poliuretano de 100 mm. **Distribución de la casa:** **Planta baja:** - Sala de estar amplia – 26,90 m², perfecta para reuniones familiares. - Cocina – 9 m², funcional y bien equipada. - Baño completo (zona de ducha) – 5,95 m², con posibilidad de unificar con el aseo. - Aseo independiente – 1,80 m². - Recibidor – 3,15 m². **Primera planta:** - Dos habitaciones amplias de 9,10 m² cada una, ideales como dormitorios o estudios. - Una habitación principal – 12,65 m², perfecta como dormitorio principal. - Baño completo – 3,15 m², para mayor comodidad de toda la familia. **Características y ventajas:** - **Luminosidad natural:** Grandes ventanas de PVC que permiten una excelente entrada de luz, creando un ambiente acogedor. - **Eficiencia energética:** El aislamiento térmico de paredes y techo asegura una temperatura agradable durante todo el año. - **Diseño moderno:** Revestimiento vertical y techo a dos aguas que aportan un toque de elegancia. - **Espacio y confort:** Una distribución perfecta para combinar funcionalidad y bienestar. **Opciones adicionales:** - Construcción de una terraza de 30 m² para disfrutar al aire libre. - Pintura interior y exterior en colores personalizados. - Opciones de cubierta para el techo: teja flexible, teja metálica, paneles de metal o teja cerámica. - Instalación de persianas enrollables en ventanas y puertas. **Plazos de construcción:** El proceso completo, que incluye entrega, montaje, acabados interiores e instalación de fontanería, se realiza en solo **1 mes**. **Oferta integral:** Le ayudamos a seleccionar un terreno con licencia de construcción, gestionamos toda la documentación necesaria y construimos la casa "llave en mano". Esta casa está diseñada para ofrecer comodidad, estilo y eficiencia en España. Si quiere hacer realidad el sueño de tener su propia casa, estamos aquí para acompañarle en cada paso del proceso. **Contactos en el perfil.**.

Property characteristics

Complex information

  • Residential complex
    Chalet prefabricado 120m2
  • Property type
    Detached chalet

Property data

  • Floor
    2
  • Bedrooms
    4
  • Bathrooms
    2
  • built square meters
    120 m²
  • Property type
    New construction

Energy certification

  • Energy certificate
    A
  • Issuances
    10 kg CO2/m² año
  • Energy consumption
    No indicado

Facilities

Housing Amenities:

Bathroom cabin
Storage room
Heating
Interior Windows
Exterior window
Terrace

In building:

Storage unit

State:

New construction

Market price statistics for Casa o chalet independiente en venta en camino Pouet s/n

Map

Valencia, Montroy, Camino Pouet s/n Going to this location!
Leave a review about Casa o chalet independiente en venta en camino Pouet s/n
0
0 reviews
1
0% (0)
2
0% (0)
3
0% (0)
4
0% (0)
5
0% (0)
Chalet prefabricado 120m2
Residential complex
Sold out
Contact advertiser

For more information contact the platform

REF: 190594

Reviews about Casa o chalet independiente en venta en camino Pouet s/n
Loading...

No reviews have been left for this object yet

Nearest properties

Explore nearby properties we've discovered in close proximity to this location

Casa o chalet independiente en venta en Turis

Valencia, Turis
60 000 €

Encantadora parcela con casita en urbanización con todos los servicios, a 7km de...

0
0 reviews

Casa o chalet independiente en venta en Altury s/n

Valencia, Turis
99 500 €

ref 5674 Chalet en Altury-Turis de 1100m de parcela, esquinero, en terreno urban...

0
0 reviews

Casa o chalet independiente en venta en Montroy

Valencia, Montroy
180 000 €

Estamos encantados de presentarle es maravilloso chalet en plena naturaleza.Chal...

0
0 reviews

Chalet en venta de 250 m² Polígono 10, 46192 Montserrat (València)

Valencia, Montserrat
329 000 €

Venta en exclusiva con Housell Espectacular chalet de 250 m² de superficie con...

0
0 reviews

Chalet en venta de 147 m² Calle Cardenal Benlloch (Urb. Balcón de Montroy), 46193 Montroy (València)

Valencia, Montroy
203 000 €

Llámanos y visita esta vivienda. Amplio chalet de 147 m² de superficie y 651 m²...

0
0 reviews

Casa o chalet independiente en venta en camino Pouet s/n

Valencia, Montroy, Camino Pouet s/n
199 500 €

**Casa moderna de madera de 120 m² – Confort y estilo en España** Esta casa de m...

0
0 reviews

Casa o chalet independiente en venta en camino Pouet s/n

Valencia, Montroy, Camino Pouet s/n
145 100 €

Comprar una casa de madera aislada en España con terreno: la solución perfecta p...

0
0 reviews

Casa o chalet independiente en venta en Monserrat

Valencia, Montserrat
90 000 €

018POL99. CHALET CON AMPLIO TERRENO, PISCINA Y GARAJEImagina despertar cada maña...

0
0 reviews

Casa o chalet independiente en venta en plaza Poligono 22

Valencia, Montserrat
1 200 000 €

Espléndida villa de una planta ubicada en una privilegiada urbanización de Monse...

0
0 reviews

We use our own and third-party cookies to analyze website usage and show you advertisements related to your preferences based on a profile created from your browsing habits (e.g., pages visited). More information. Do you accept cookies?