Spain Urbanizable Spain Urbanizable Valencia Urbanizable Puig Terreno en calle José Esteve Edo, 12

Terreno en calle José Esteve Edo, 12

Valencia, Puig, Calle José Esteve Edo, 12
125 000 €
Leave review
Urbanizable Property type
160 m² Land area
2 Buildable plots
152 m² Buildability
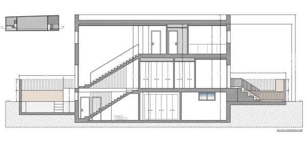
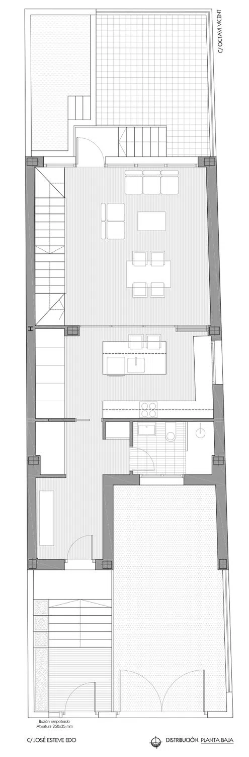
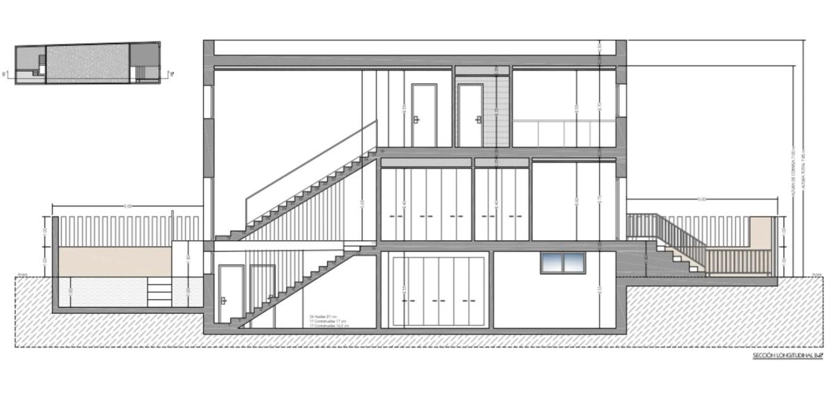
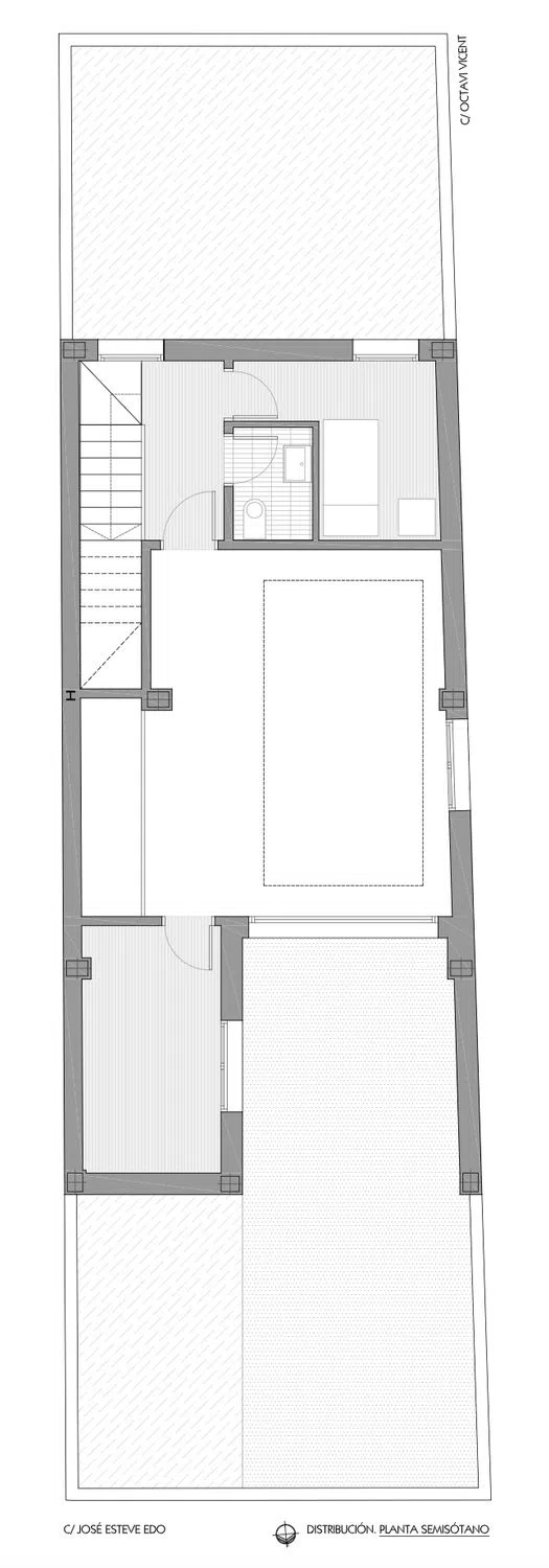
¡Oportunidad Única! Parcela Esquinera con Proyecto y Licencia Listos para Edificar ¿Buscas el lugar perfecto para construir la casa de tus sueños sin las demoras de los trámites? ¡Esta es tu oportunidad! OPCIONAL: Se puede vender sin proyecto por 115.000 Euros Se vende una parcela edificable idealmente ubicada en una esquina, con la parte trasera dando a un tranquilo parque. Un emplazamiento que ofrece privacidad, luz natural y un entorno inmejorable. La gran ventaja es que la parcela se entrega con un proyecto arquitectónico cuidadosamente diseñado y la licencia de obra lista para empezar a edificar. Ya tienes ganados meses de gestiones y papeleo, solo te queda construir. Características del Proyecto: Una Vivienda Moderna y Funcional El diseño ha sido pensado para aprovechar al máximo cada metro cuadrado y ofrecerte una vivienda moderna y cómoda. El proyecto incluye: Semisótano: Con un práctico aseo, un dormitorio, un trastero y espacio para un coche. Planta Baja: Un espacioso comedor-cocina de concepto abierto con isla, perfecto para la vida familiar y social, y un baño completo. Primera Planta: La zona de descanso, con una habitación doble, una habitación sencilla, un baño y un vestidor conectado a una pequeña área de lavandería. ¡No pierdas esta oportunidad! Esta parcela es ideal para quienes buscan empezar a construir de inmediato en una ubicación privilegiada. Contáctanos para más detalles y da el primer paso hacia la casa que siempre has querido.

Property characteristics

Complex information

  • Property type
    Urbanizable

Property data

  • Property type
    Second hand

Surfaces

  • Land area
    160 m²

Base

  • Minimum sale plot
    160 m²
  • Buildable plots
    2
  • Buildability
    152 m²

Facilities

In building:

Basement

Market price statistics for Terreno en calle José Esteve Edo, 12

Map

Valencia, Puig, Calle José Esteve Edo, 12 Going to this location!
Leave a review about Terreno en calle José Esteve Edo, 12
0
0 reviews
1
0% (0)
2
0% (0)
3
0% (0)
4
0% (0)
5
0% (0)
Juan Carbonell
125 000 €
Contact advertiser

For more information contact the platform

REF: 381135

Reviews about Terreno en calle José Esteve Edo, 12
Loading...

No reviews have been left for this object yet

Nearest properties

Explore nearby properties we've discovered in close proximity to this location

Terreno en Los Monasterios - El Picayo - Urbanizaciones

Valencia, Sagunto, The Monasteries - El Picayo - Developments, Los Monasterios - El Picayo - Urbanizaciones
100 000 €

Se vende suelo.

0
0 reviews

Terreno en Sector Znd-in. Área Logística Parc Sagunt s/n

Valencia, Port of Sagunto, Avenue of April - 9th of October, Sector ZND-IN. Área Logística Parc Sagunt s/n
193 639 142 €

La Parcela IN-1 pertenece en plena propiedad a Espacios Económicos Empresariales...

0
0 reviews

Terreno en paseo de las Cumbres, 71

Valencia, Sagunto, The Monasteries - El Picayo - Developments, Paseo de las Cumbres, 71
398 000 €

VENTA DE PARCELA EXCLUSIVA EN MONTE PICAYO – PASEO DE LAS CUMBRES 71 ¿Estás busc...

0
0 reviews

Terreno en paseo de las Laderas

Valencia, Sagunto, The Monasteries - El Picayo - Developments, Paseo de las Laderas
149 900 €

Se vende parcela de 1.013 metros cuadrados en la prestigiosa urbanización Monte...

0
0 reviews

Terreno en pintor peiro, 10

Valencia, Puig, Pintor peiro, 10
200 000 €

Terreno urbanizable en el centro del asentamiento, con todas las comunicaciones....

0
0 reviews

Terreno en calle José Esteve Edo, 12

Valencia, Puig, Calle José Esteve Edo, 12
125 000 €

¡Oportunidad Única! Parcela Esquinera con Proyecto y Licencia Listos para Edific...

0
0 reviews

Terreno en avenida Caminas s/n

Valencia, Puçol, La Barraca-Santigons, Avenida Caminas s/n
120 000 €

El terreno tiene muy buena ubicacion en una zona residencial con amplias plazas,...

0
0 reviews

Terreno en Rafelbunyol

Valencia, Rafelbunyol, Rafelbunyol
460 000 €

Solar edificable de 2628 m2 con una edificabilidad de 1.577 m² en la exclusiva U...

0
0 reviews

Terreno en calle Alt Maestrat, 10

Valencia, Puçol, Los Monasterios-Alfinach, Calle Alt Maestrat, 10
252 000 €

Parcela exclusiva de 814,71 m² en la prestigiosa Urbanización Alfinach (Puzol, V...

0
0 reviews
Call

We use our own and third-party cookies to analyze website usage and show you advertisements related to your preferences based on a profile created from your browsing habits (e.g., pages visited). More information. Do you accept cookies?