Venta de ático en Calle Garcilaso de la Vega , 8, Jávea/Xàbia

Alicante, Jávea/Xàbia, Centro Ciudad, Calle Garcilaso de la Vega , 8
Agotado
Dejar reseña
Áticos Tipo de propiedad
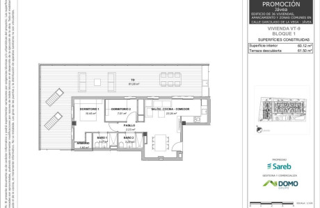
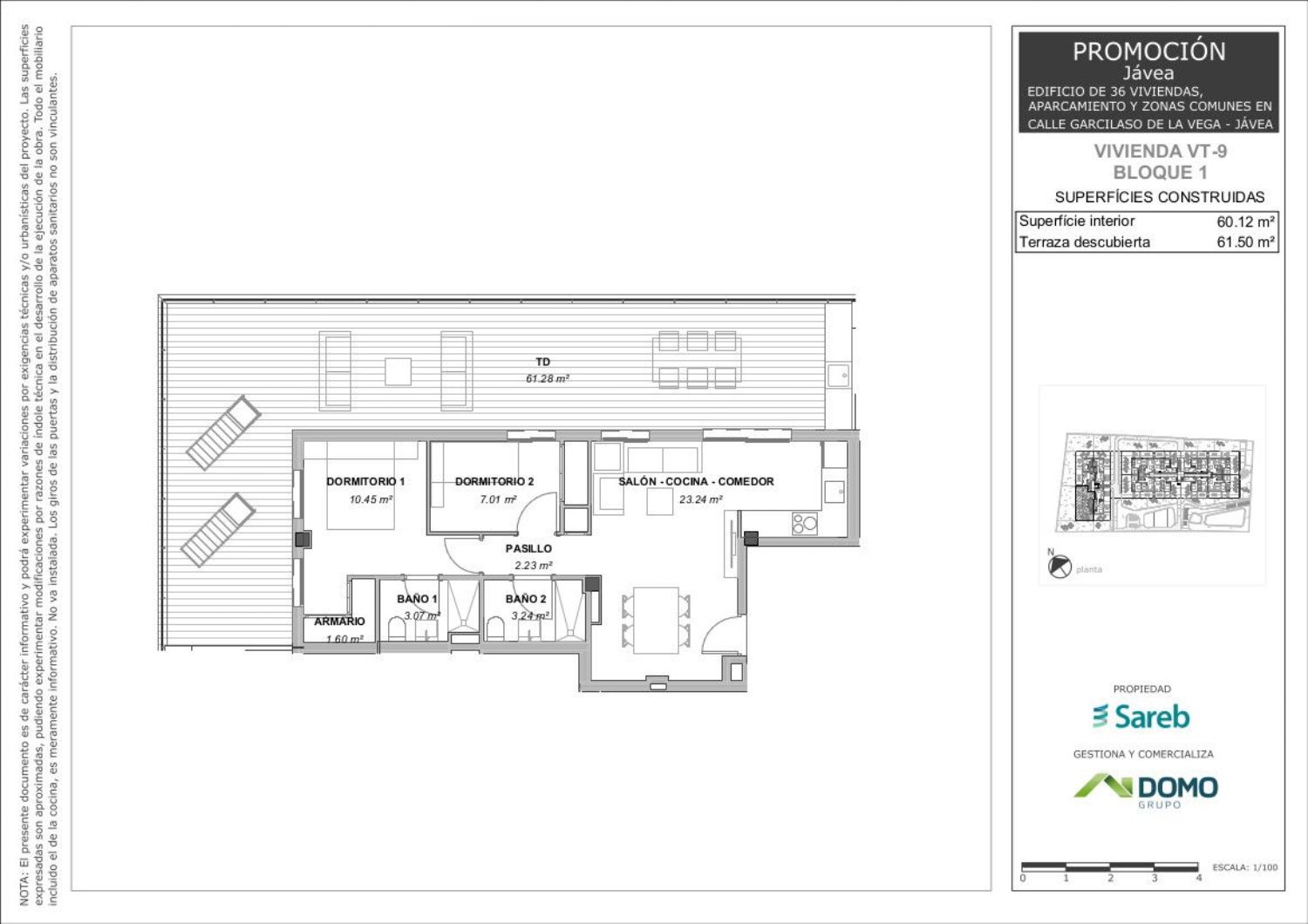
68 m² m2 construidos
2 Baños
2 Dormitorios
La promoción consta de tres bloques de edificio de viviendas, formado por Planta baja, primera y ático con un total de 36 viviendas, con:12 viviendas en planta baja de 3 dormitorios con jardín privado.8 viviendas en planta primera de 3 de dormitorios y 4 de 2 dormitorios.8 viviendas en planta ático de 3 dormitorios (2 de ellas dúplex) y 4 viviendas ático de 2 dormitorios.Asimismo, el proyecto dispone de una zona común preparada para disfrutar del clima y el descanso, con una piscina de diseño, una zona infantil y zonas de sombreo.Cuenta además con un parking en sótano con plazas vinculadas a cada vivienda, trasteros y parking para bicicletas. Las viviendas incorporan una plaza de garaje vinculada con un precio adicional de entre 8.000 € + IVA y también un trastero por un precio adicional de 3.000 € +IVA.Jávea se encuentra situado en la costa norte de Alicante, más concretamente en la comarca de la Marina Alta. Se trata de una localidad muy atractiva tanto para primera vivienda como para vivienda vacacional, dada su proximidad al mar.La promoción se encuentra a 1 km de la zona de centro de Jávea a pie, en una zona residencial en pleno auge con todo tipo de servicios cercanos, como superficies comerciales, tiendas de proximidad, superficies verdes. Encontramos un “Lidl” a 500 metros y un “Mercadona” a 600 m. La zona dispone de gran variedad de centros educativos, como por ejemplo a 350 m tenemos el CEIP Trenc d’Alba. El centro de salud se encuentra a 7 minutos en coche.La estación de autobuses se encuentra a 600 m a pie y la Playa de los Guijarros a 5 m en coche.Jávea se ha considerando el Hampton español. Reúne playa, paisaje, actividades deportivas, golf a 5 min en coche de la promoción, el restaurante BonAmb, con estrella Michelin, también a 5 min.Gran variedad de restauración y una de las zonas con mayor atractivo en calas y zonas de descanso, junto con la mejor oferta de ocio de toda la marina.Ponte en contacto con nosotros para ampliar información o reservar vivienda. También puedes pinchar en el enlace de nuestra página Web y dejarnos tus datos, para ponernos en contacto contigo.

Características de la propiedad

Complex information

  • Complejo residencial
    Residencial Yxabee
  • Tipo de propiedad
    Áticos

Datos de la propiedad

  • Dormitorios
    2
  • Baños
    2
  • m2 construidos
    68 m²
  • Tipo de la propiedad
    Obra nueva

Certificación energética

  • Consumo energético
    B

Instalaciones

Comodidades de la vivienda:

Armarios empotrados
Trastero
Ventana exterior
Terraza

En edificio:

Piscina
Garaje
Ascensor
Campo de golf
Spa
Área infantil
Trastero

Estado:

Obra nueva

Estadísticas de precios del mercado para Ático en venta en calle Garcilaso de la Vega , 8

643 455 € (4 281 €/m2)
Precio promedio de propiedades primarias Áticos en la ciudad Jávea/Xàbia
508 467 € (4 857 €/m2)
Precio promedio de propiedades secundarias Áticos en la ciudad Jávea/Xàbia

Mapa

Alicante, Jávea/Xàbia, Centro Ciudad, Calle Garcilaso de la Vega , 8 Ir a la propiedad
Deja una opinión sobre Ático en venta en calle Garcilaso de la Vega , 8
0
0 reseñas
1
0% (0)
2
0% (0)
3
0% (0)
4
0% (0)
5
0% (0)
Residencial Yxabee
Complejo residencial
Agotado
Contactar con la plataforma

para obtener más información contacta con el catálogo

REF: 2322

Opiniones sobre Ático en venta en calle Garcilaso de la Vega , 8
Loading...

No reviews have been left for this object yet

Propiedades más cercanas

Explora propiedades cercanas que hemos descubierto en las proximidades de esta ubicación.

Áticos en Venta en Calle Garcilaso de la Vega , 8, Jávea/Xàbia

Alicante, Jávea/Xàbia, Centro Ciudad, Calle Garcilaso de la Vega , 8
234 400 €

La promoción consta de tres bloques de edificio de viviendas, formado por Planta...

0
0 opiniones

Áticos en Venta en Calle Garcilaso de la Vega , 8, Jávea/Xàbia

Alicante, Jávea/Xàbia, Centro Ciudad, Calle Garcilaso de la Vega , 8
235 000 €

La promoción consta de tres bloques de edificio de viviendas, formado por Planta...

0
0 opiniones

Áticos en Venta en Calle Garcilaso de la Vega , 8, Jávea/Xàbia

Alicante, Jávea/Xàbia, Centro Ciudad, Calle Garcilaso de la Vega , 8
222 700 €

La promoción consta de tres bloques de edificio de viviendas, formado por Planta...

0
0 opiniones

Áticos en Venta en Avenida Agusta, 44, Jávea/Xàbia

Alicante, Jávea/Xàbia, Montañar-El Arenal, Avenida Agusta, 44
400 000 €

"PRIMERA FASE VENDIDA, SEGUNDA FASE EN VENTA" A escasos metros de la playa, ACQU...

1
0 opiniones

Ático en venta en Centro Ciudad

Alicante, Jávea/Xàbia, Centro Ciudad
715 000 €

Maravillosos apartamentos ubicados en un exclusivo complejo residencial, donde l...

0
0 opiniones

Ático en venta en El Puerto

Alicante, Denia, El Puerto
397 000 €

COMPLEJO RESIDENCIAL DE OBRA NUEVA EN LA COSTA BLANCA Descubre una promoción ex...

0
0 opiniones

Ático en venta en El Puerto

Alicante, Denia, El Puerto
613 500 €

EXCLUSIVO COMPLEJO RESIDENCIAL DE OBRA NUEVA EN LA COSTA BLANCA Descubre una pr...

0
0 opiniones

Ático en venta en José Espronceda, 3

Alicante, Jávea/Xàbia, Centro Ciudad, José Espronceda, 3
550 000 €

Le presentamos Marina XI, este complejo residencial único de 14 viviendas de luj...

0
0 opiniones

Ático en venta en José Espronceda, 3

Alicante, Jávea/Xàbia, Centro Ciudad, José Espronceda, 3
490 000 €

Le presentamos Marina XI, este complejo residencial único de 14 viviendas de luj...

0
0 opiniones

Utilizamos cookies propias y de terceros para analizar el uso del sitio web y mostrarte publicidad relacionada con tus preferencias sobre la base de un perfil elaborado a partir de tus hábitos de navegación (por ejemplo, páginas visitadas). Más información. ¿Aceptas las cookies?