Obra nueva Residencial Marea Alta en Noja (Revista)

Cantabria, Noja, Palacio, Calle de la Maza, 9
desde 248 000 €
Dejar reseña
Superficie
Cantidad de dormitorios
Baños
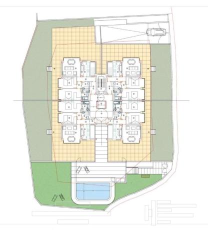
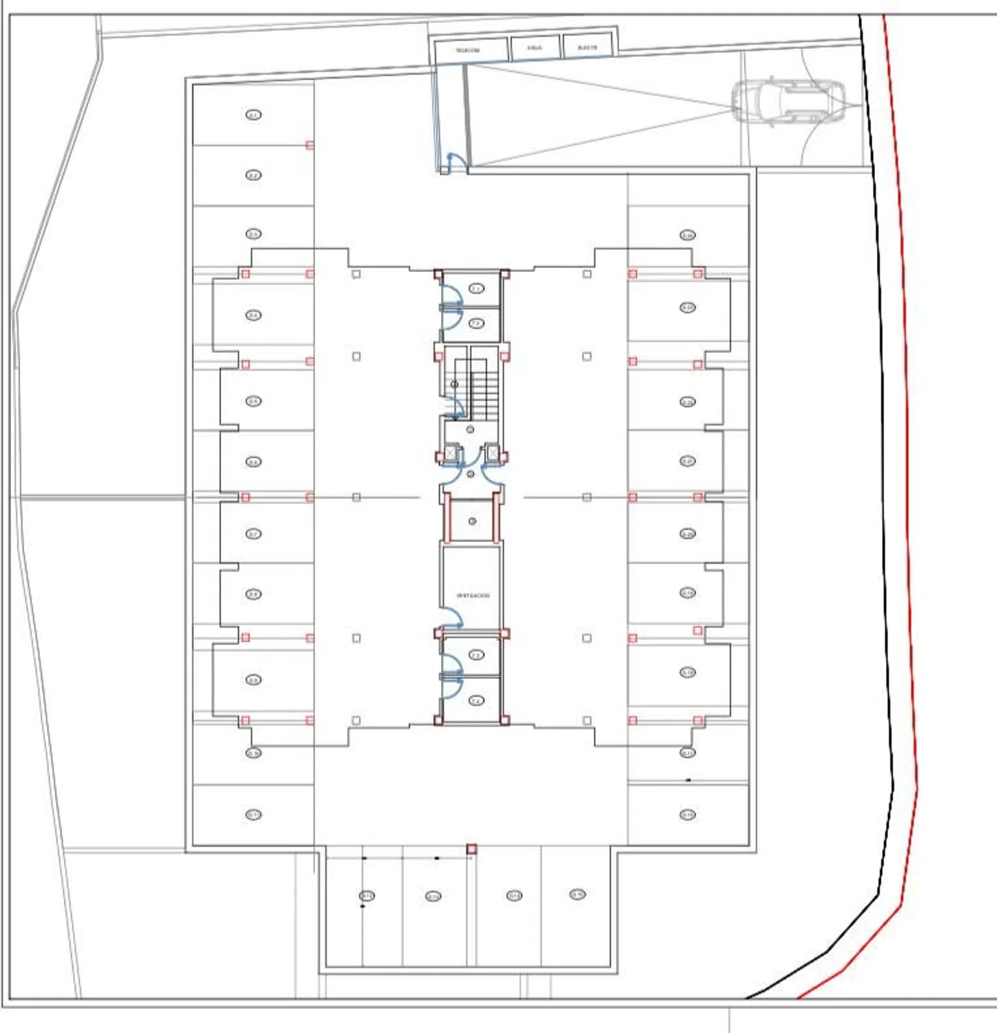
NORTEPISOS GRUPO INMOBILIARIO S. L. tiene el gusto de ofrecerles a la venta la mejor promoción de obra nueva a realizar dentro de la localidad de Noja (Cantabria), muy cerca de la playa de Ris. Se trata de un moderno edificio de 20 viviendas, con garaje incluido, piscina comunitaria.. . al que denominamos "Residencial Marea Alta". Una preciosa urbanización privada con diferentes tipos de viviendas: bajos con jardín, primeras plantas, segundas plantas, terceras plantas y áticos. (Solicite información). Además contamos con servicios propios de decoración para que puedas llegar con la maleta e instalarte sin tener que preocuparte absolutamente de nada. Construida con las más modernas y mejores calidades del mercado: fachada ventilada, carpintería exterior en aluminio lacado, doble acristalamiento con cámara de aire, calefacción de gas natural, radiadores de aluminio, aerotermia.. . lo que hacen que este diseño combine el confort y la sostenibilidad. Llevada a cabo y construida por uno de los constructores más reconocidos de la zona, con importantes proyecciones en el mismo municipio. Ubicado en una zona estratégica y privilegiada, muy cerca de una de las mejores playas del Cantábrico y de los amantes del surf, se trata de la playa de Ris. Rodeada de todos los servicios a su alrededor lo que hace que puedas prescindir del coche, y a un paso de otros municipios de importancia como Santoña, Isla, Ajo.. . y sus playas. No lo dude y pídanos más información. Total transparencia y garantías a unos precios de lanzamiento. No deje pasar la oportunidad. Cómodos plazos de pago. Contacte con su agente de confianza llamando a NORTEPISOS GRUPO INMOBILIARIO S. L. en el teléfono de contacto y conoce personalmente la propiedad, estamos especializados en obra nueva y podemos ofrecerle grandes oportunidades y la más absoluta transparencia sobre las próximas promociones de la zona.

Promociones destacadas en España

10 unidades

Nature Views 2

Alicante, Torrevieja, Los Balcones - Los Altos del Edén, Denia s/n
310 000 € - 379 000 €
1 unidades

Hotel en venta en Benidorm centro

Alicante, Benidorm, Playa de Poniente
2 250 000 € - 2 250 000 €
32 unidades

Residencial Los Balcones De Calpe

Alicante, Calpe, Calpe Pueblo, Avenida de Madrid, 1
299 000 € - 892 125 €
7 unidades

Nature Views

Alicante, Torrevieja, Lago Jardín II, Avenida Denia s/n
305 000 € - 330 000 €
5 unidades

ALONIS VILLAS

Alicante, La Villajoyosa / Vila Joiosa, Platja de Torres, Partida Torres s/n
675 000 € - 775 000 €
2 unidades

Residencial Royal Beach

Alicante, Guardamar del Segura, pueblo, Miguel Hernández 102
339 500 € - 345 500 €
8 unidades

Royal Star

Alicante, Guardamar del Segura
224 500 € - 264 500 €
Esta información ha sido obtenida de fuentes públicas y puede no estar actualizada. No representa un vínculo con la promotora

Características de la propiedad

Complex information

Datos de la propiedad

  • Tipo de la propiedad
    Obra nueva

Estadísticas de precios del mercado para Residencial Marea Alta

234 810 € (3 249 €/m2)
Precio promedio de propiedades primarias Pisos en la ciudad Noja
234 810 € (3 249 €/m2)
Precio promedio de propiedades primarias Pisos en el distrito Palacio

Mapa

Cantabria, Noja, Palacio, Calle de la Maza, 9 Ir a la propiedad
Deja una opinión sobre Residencial Marea Alta
0
0 reseñas
1
0% (0)
2
0% (0)
3
0% (0)
4
0% (0)
5
0% (0)
Nortepisos
248 000 €
Contactar con la plataforma

para obtener más información contacta con el catálogo

REF: 392846

Opiniones sobre Residencial Marea Alta
Loading...

No reviews have been left for this object yet

Propiedades más cercanas

Explora propiedades cercanas que hemos descubierto en las proximidades de esta ubicación.

Nekko Homes Cantabria

Cantabria, Arnuero
-

Viviendas aisladas en Cantabria en la cercanía del entorno natural con altos cri...

0
0 opiniones
21 unidades

Calle El Arco 24

Cantabria, Noja, Palacio, Calle el Arco, 24
215 000 € - 285 000 €

Inmuebles en Calle El Arco 24 Se ofrece una exclusiva selección de 19 modernos a...

0
0 opiniones
27 unidades

ARGOÑOS

Cantabria, Argoños, Joaquin Fernandez San Emeterio, 14
17 600 € - 196 000 €

Inmuebles en ARGOÑOS ¡30% VENDIDO! Presentamos una exclusiva promoción de vivie...

0
0 opiniones
2 unidades

Avenida de Ris 16

Cantabria, Noja, Palacio, De Ris, 16
218 000 € - 218 000 €

¡Última vivienda a la venta! Se ofrece una oportunidad única en la ciudad de Noj...

0
0 opiniones
3 unidades

Calle Fuentelloro 9

Cantabria, Argoños, Calle Fuentelloro, 9
185 000 € - 191 000 €

¡ ULTIMAS 3 VIVIENDAS DISPONIBLES! TRECEHOME INMOBILIARIA pone a la venta de 11...

0
0 opiniones
5 unidades

Los Sauces

Cantabria, Argoños, Calle Derechos Humanos, 1
177 000 € - 199 000 €

5 viviendas de obra nueva Ubicado en una zona estratégica y privilegiada, muy c...

0
0 opiniones
8 unidades

Joaquín Ferna

Cantabria, Argoños, Joaquín Ferna, 1
175 000 € - 199 600 €

REF. 000536: NOJASOL INMOBILIARIA vende en Argoños. Promoción de nueva construcc...

0
0 opiniones

Residencial Marea Alta

Cantabria, Noja, Palacio, Calle de la Maza, 9
-

NORTEPISOS GRUPO INMOBILIARIO S. L. tiene el gusto de ofrecerles a la venta la m...

0
0 opiniones

Calle San Juan 7

Cantabria, Noja, Ris, Calle San Juan, 7
-

TRECEHOME INMOBILIARIA pone a la venta de 24 viviendas y 24 garajes de obra nuev...

0
0 opiniones

Utilizamos cookies propias y de terceros para analizar el uso del sitio web y mostrarte publicidad relacionada con tus preferencias sobre la base de un perfil elaborado a partir de tus hábitos de navegación (por ejemplo, páginas visitadas). Más información. ¿Aceptas las cookies?