Vente de chalet mitoyen à , Parets del Vallès

Vendre
Laisser un commentaire
Maisons mitoyennes Type de bien
4 Chambres
2023 Année de livraison
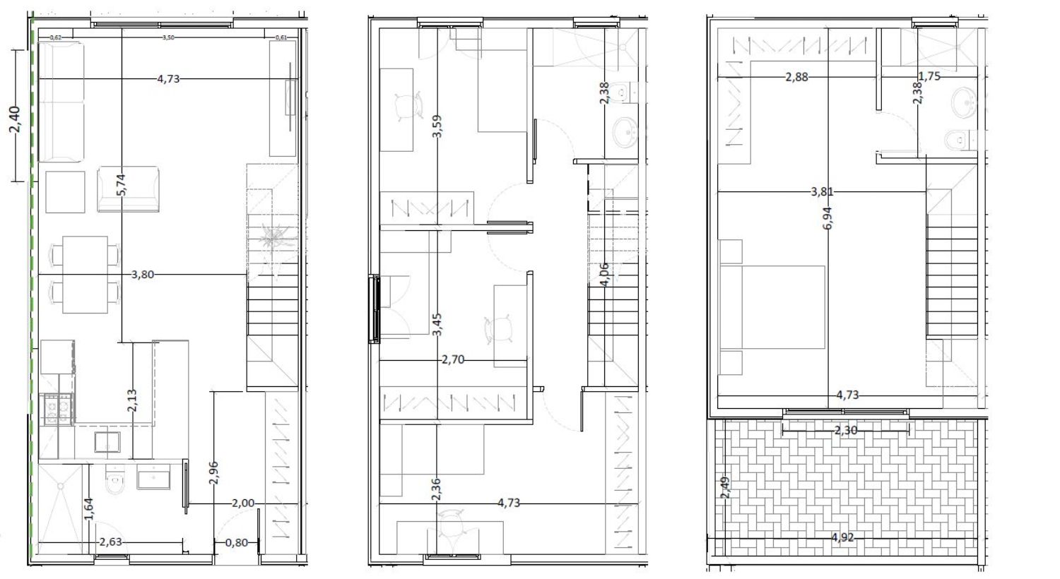
137 m² m2 construits
3 Salles de bains
Terminée État
3 Plante
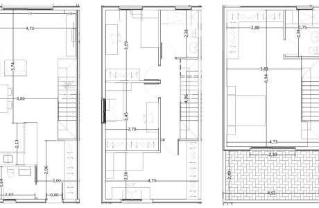
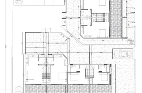
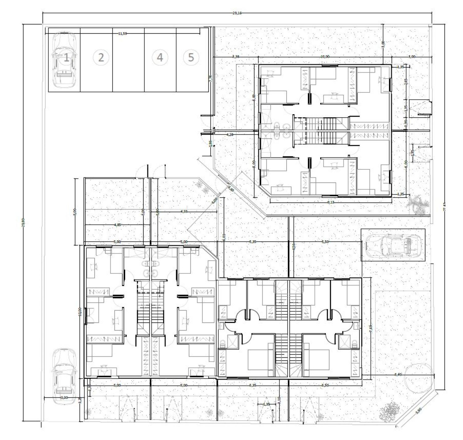
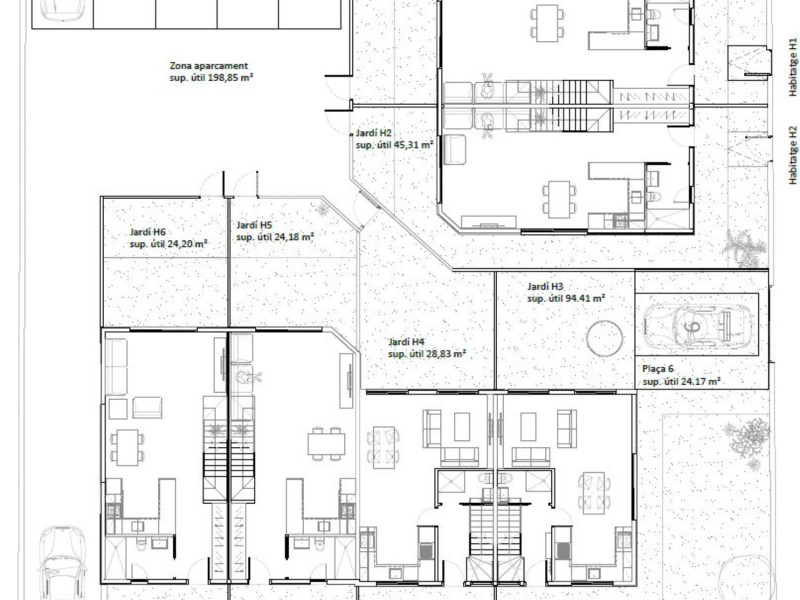
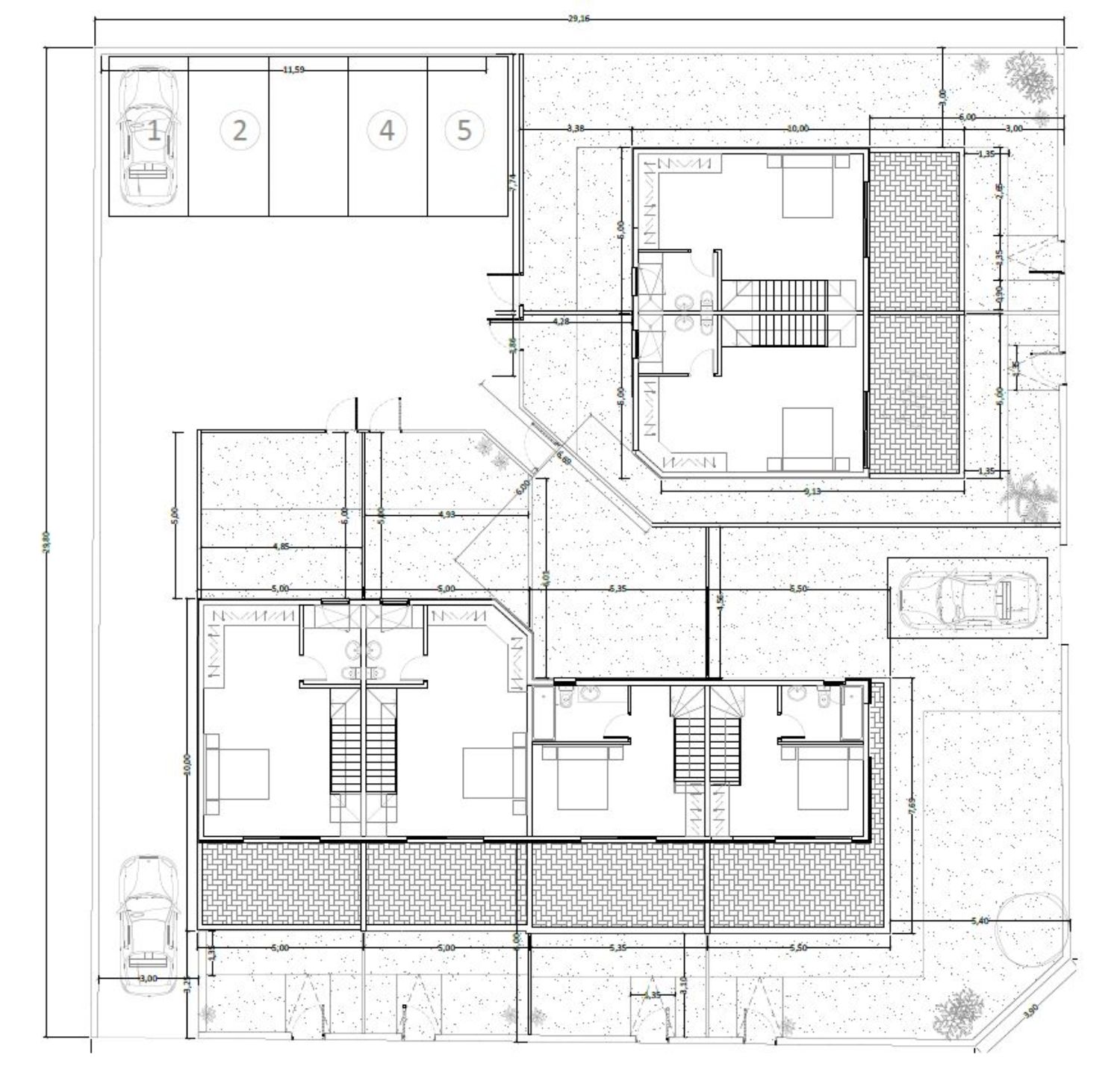
En la Zona de l'EIXAMPLE de Parets del Vallés, les presentamos esta casa que pertenece al Conjunto Residencial formado por 6 casas Unifamiliares con Jardín, terraza y zona aparcamiento Exterior en Zona Comunitaria.Ideal para disfrutar de la vida en familia con la privacidad de las casas unifamiliares. Entrada individual a cada una de las casas por la zona jardín privada de la vivienda y terraza. En una zona privilegiada de Parets del Vallés.Cada casa consta de 3 plantas. Con terraza solarium individual y jardín privado delante y detrás de la casa. Con acceso a la zona de aparcamiento privado en zona comunitaria.Todas las viviendas disponen de una distribución estudiada ofreciendo estancias de gran comodidad y bien aprovechadas con amplios espacios interiores y exteriores. Se han cuidado todos los detalles en el proyecto interiores y exteriores de las viviendas, utilizando energías renovables para alcanzar la máxima eficiencia energética posible. Vivienda de 3 ó 4 habitaciones, ya que usted podrá elegir si le da uso de habitación a la tercera planta o uso de despacho o sala de juegos, etc., 2 baños completos y 1 Aseo. Salón Comedor y Cocina Office. En la planta baja los acabados del suelo son de gres porcelánico beige y en el resto de la vivienda es parqué laminado AC5 excepto en baños que son de gres porcelánico.La Cocina es abierta con muebles altos y bajos, equipada con campana extractora, placa de inducción y horno multifunción.El diseño y la armonía con la que han sido diseñadas aprovechando la luminosidad del jardín harán que tu nuevo hogar siempre esté envuelto en luz natural.El sistema de Aerotermia hace que esta vivienda sea más limpia y eficiente con el medio ambiente. Todo pensado para obtener el máximo confort y reducir el consumo en los suministros. Esta promoción se realiza en Régimen de Cooperativa, que es la mejor manera de adquirir una vivienda a precio de coste. Legislada por la Ley de Cooperativas de Catalunya e inscrita en el Registro de Cooperativas de Catalunya. El interesado adquiere la vivienda inscribiéndose como socio adjudicatario de la misma y así es auto promotor junto al resto de socios de la Promoción. El Equipo Gestor de la cooperativa coordina todos los trabajos a realizar y la construcción de las viviendas siempre con el conocimiento y autorización de los socios. Este sistema participativo y sin ánimo de lucro permite ahorrarse el beneficio empresarial que le corresponde a un promotor, siendo el precio de las viviendas a precio de coste para el socio.La Cooperativa de Viviendas Casa Meva, une a personas que comparten la necesidad de una vivienda. Diseñan, planifican, gestionan, organizan, asesoran y dirigen. Están comprometidos con la sostenibilidad y la salud realizando proyectos a un precio justo y accesible. Participa en la construcción de tu nuevo hogar.Las Cooperativas de vivienda son una gran labor conjunta para el beneficio de sus socios.Inicio de obras septiembre 2023.

Caractéristiques du bien

Complex information

  • Complexe résidentiel
    Onze de Setembre
  • Type de bien
    Maisons mitoyennes

Informations sur le projet / État des travaux

  • Année de livraison
    2023
  • État
    Terminée
  • Format de la promotion
    En coopérative

Données de la propriété

  • Plante
    3
  • Chambres
    4
  • Salles de bains
    3
  • m2 construits
    137 m²
  • Type de propriété
    Programme neuf
  • Meubles
    Avec meubles

Installations

Commodités du logement:

Meubles
Fenêtres intérieures
Fenêtre extérieure
Terrasse

Dans l'immeuble:

Spa
Solarium
Jardin

Statistiques des prix du marché pour Chalet adosado en venta en calle Onze de Setembre, 11

Carte

Barcelone, Parets del Vallès Aller à cet endroit
Laisser un commentaire sur Chalet adosado en venta en calle Onze de Setembre, 11
0
0 revues
1
0% (0)
2
0% (0)
3
0% (0)
4
0% (0)
5
0% (0)
Onze de Setembre
Complexe résidentiel
Vendre
Contacter l'annonceur

Pour plus d’informations, contactez la plateforme

REF: 2857

Critiques à propos de Chalet adosado en venta en calle Onze de Setembre, 11
Loading...

No reviews have been left for this object yet

Propriétés les plus proches

Explorez les biens immobiliers que nous avons découverts à proximité de ce site

Adosados en Venta, Parets del Vallès

Barcelone, Parets del Vallès
395 772 €

En la Zona de l'EIXAMPLE de Parets del Vallés, les presentamos esta casa que per...

0
0 commentaires

Adosados en Venta, Parets del Vallès

Barcelone, Parets del Vallès
348 816 €

En la Zona de l'EIXAMPLE de Parets del Vallés, les presentamos esta casa que per...

0
0 commentaires

Adosados en Venta, Parets del Vallès

Barcelone, Parets del Vallès
379 800 €

En la Zona de l'EIXAMPLE de Parets del Vallés, les presentamos esta casa que per...

0
0 commentaires

Adosados en Venta, Parets del Vallès

Barcelone, Parets del Vallès
394 654 €

En la Zona de l'EIXAMPLE de Parets del Vallés, les presentamos esta casa que per...

0
0 commentaires

Adosados en Venta, Parets del Vallès

Barcelone, Parets del Vallès
335 400 €

En la Zona de l'EIXAMPLE de Parets del Vallés, les presentamos esta casa que per...

0
0 commentaires

Adosados en Venta, Parets del Vallès

Barcelone, Parets del Vallès
381 238 €

En la Zona de l'EIXAMPLE de Parets del Vallés, les presentamos esta casa que per...

0
0 commentaires

Adosados en Venta, Sant Fost de Campsentelles

Barcelone, Sant Fost de Campsentelles
360 000 €

PROXIMA PROMOCION DE 4 VIVIENDAS UNIFAMILIARES EN CARRER POMPEU FABRA:Esta promo...

0
0 commentaires

Adosados en Venta, Parets del Vallès

Barcelone, Parets del Vallès
369 400 €

Te presentamos esta hermosa casa ubicada en el Passeig de la Ronda, en la encant...

0
0 commentaires

Pareados en Venta, Palau-Solità i Plegamans

Barcelone, Palau-Solità et Plegamans
665 000 €

La Solana de Montjuic esta formada por un conjunto de 9 viviendas unifamiliares...

0
0 commentaires

Nous utilisons nos propres cookies et ceux de tiers pour analyser l’utilisation du site Web et vous montrer des publicités en lien avec vos préférences, sur la base d’un profil établi à partir de vos habitudes de navigation (ex. : pages visitées). Plus d’informations. Acceptez-vous les cookies ?