Espagne Nouveau bâtiment Espagne Nouveau bâtiment Cantabrie Nouveau bâtiment Solares Residencial La Rañada Piso en venta en calle Barrio El Bosque (La Rañada – Solares) s/n

Obra nueva Residencial La Rañada en Solares

Vendre
Laisser un commentaire
Appartements Type de bien
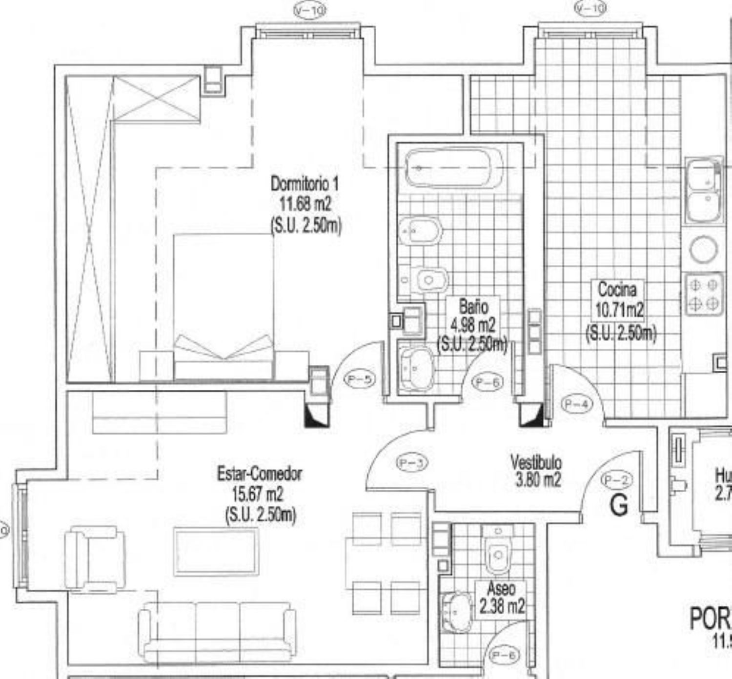
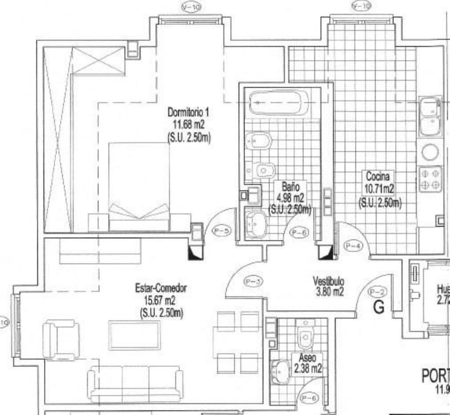
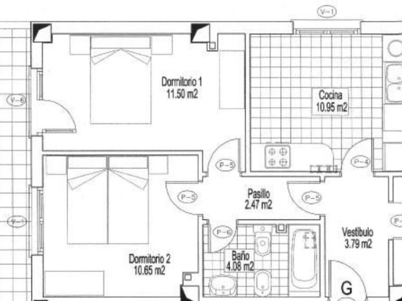
60 m² m2 construits
1 Salles de bains
2 Chambres
INICIAMOS RESERVAS VIVIENDAS DE 1 Y 2 DORMITORIOS CON GARAJE Y TRASTEROPROMOCIÓN DE OBRA NUEVA EN SOLARES (LA RAÑADA-AYTO. ENTRAMBASAGUAS) Ubicados en La Rañada (Solares-Entrambasaguas), a tan solo 10 minutos en coche del centro de Santander, con fácil salida a la autovía S-10. Se componen de viviendas de 1 y 2 dormitorios entre las que encontrarás bajos con amplias terrazas, primeros, segundos, terceros y áticos de 1 dormitorio ( sin terraza ). Además todas ellas contarán con plaza de garaje y trastero incluidos en el precio.Los pisos serán construidos con materiales de 1ª calidad y cumplirán la normativa actual de eficiencia energética.En las inmediaciones encontrarás todo tipo de servicios necesarios para la vida diaria: centros educativos, zonas de ocio, comercios, centros de salud y zonas verdes.Precios desglosados según la tipología, sin impuestos incluidos:1. Bajos sin terraza: 130.000 euros2. Bajos con terraza: 158.000 euros3. Primeros: 135.000 euros4. Segundos: 141.000 euros5. Terceros: 147.000 euros6. Bajo cubierta: 135.000 eurosSi estás interesado en ampliar más información no dudes en ponerte en contacto con nosotros, estaremos encantados de atenderte bien por teléfono o de manera presencial.

Caractéristiques du bien

Complex information

  • Complexe résidentiel
    Residencial La Rañada
  • Type de bien
    Appartements

Données de la propriété

  • Chambres
    2
  • Salles de bains
    1
  • m2 construits
    60 m²
  • Type de propriété
    Programme neuf

Certificat énergétique

  • Certificat énergétique
    B

Installations

Commodités du logement:

Débarras
Terrasse

Approvisionnement:

Avec de l'eau

Dans l'immeuble:

Garage
Ascenseur
Zonas jardins
Cave
Zones vertes

État:

Nouveau projet

Statistiques des prix du marché pour Piso en venta en calle Barrio El Bosque (La Rañada – Solares) s/n

Carte

Cantabrie, Solares Aller à cet endroit
Laisser un commentaire sur Piso en venta en calle Barrio El Bosque (La Rañada – Solares) s/n
0
0 revues
1
0% (0)
2
0% (0)
3
0% (0)
4
0% (0)
5
0% (0)
Residencial La Rañada
Complexe résidentiel
Vendre
Contacter l'annonceur

Pour plus d’informations, contactez la plateforme

REF: 9036

Critiques à propos de Piso en venta en calle Barrio El Bosque (La Rañada – Solares) s/n
Loading...

No reviews have been left for this object yet

Propriétés les plus proches

Explorez les biens immobiliers que nous avons découverts à proximité de ce site

Obra nueva Residencial La Rañada en Solares

Cantabrie, Solares
137 000 €

INICIAMOS RESERVAS VIVIENDAS DE 1 Y 2 DORMITORIOS CON GARAJE Y TRASTEROPROMOCIÓN...

0
0 commentaires

Obra nueva Residencial La Rañada en Solares

Cantabrie, Solares
154 000 €

INICIAMOS RESERVAS VIVIENDAS DE 1 Y 2 DORMITORIOS CON GARAJE Y TRASTEROPROMOCIÓN...

0
0 commentaires

Obra nueva Residencial La Rañada en Solares

Cantabrie, Solares
154 000 €

INICIAMOS RESERVAS VIVIENDAS DE 1 Y 2 DORMITORIOS CON GARAJE Y TRASTEROPROMOCIÓN...

0
0 commentaires

Obra nueva Residencial La Rañada en Solares

Cantabrie, Solares
131 000 €

INICIAMOS RESERVAS VIVIENDAS DE 1 Y 2 DORMITORIOS CON GARAJE Y TRASTEROPROMOCIÓN...

0
0 commentaires

Obra nueva Residencial La Rañada en Solares

Cantabrie, Solares
137 000 €

INICIAMOS RESERVAS VIVIENDAS DE 1 Y 2 DORMITORIOS CON GARAJE Y TRASTEROPROMOCIÓN...

0
0 commentaires

Obra nueva Residencial La Rañada en Solares

Cantabrie, Solares
143 000 €

INICIAMOS RESERVAS VIVIENDAS DE 1 Y 2 DORMITORIOS CON GARAJE Y TRASTEROPROMOCIÓN...

0
0 commentaires

Obra nueva Residencial La Rañada en Solares

Cantabrie, Solares
131 000 €

INICIAMOS RESERVAS VIVIENDAS DE 1 Y 2 DORMITORIOS CON GARAJE Y TRASTEROPROMOCIÓN...

0
0 commentaires

Obra nueva Residencial La Rañada en Solares

Cantabrie, Solares
143 000 €

INICIAMOS RESERVAS VIVIENDAS DE 1 Y 2 DORMITORIOS CON GARAJE Y TRASTEROPROMOCIÓN...

0
0 commentaires

Nous utilisons nos propres cookies et ceux de tiers pour analyser l’utilisation du site Web et vous montrer des publicités en lien avec vos préférences, sur la base d’un profil établi à partir de vos habitudes de navigation (ex. : pages visitées). Plus d’informations. Acceptez-vous les cookies ?