Nouvelle œuvre Juan Ramón Jimenez à Cerceda

Madrid, Cerceda, Calle Juan Ramon Jimenez
de 418 744 €
Laisser un commentaire
Surfaces des biens
Nombre de chambres
Bains
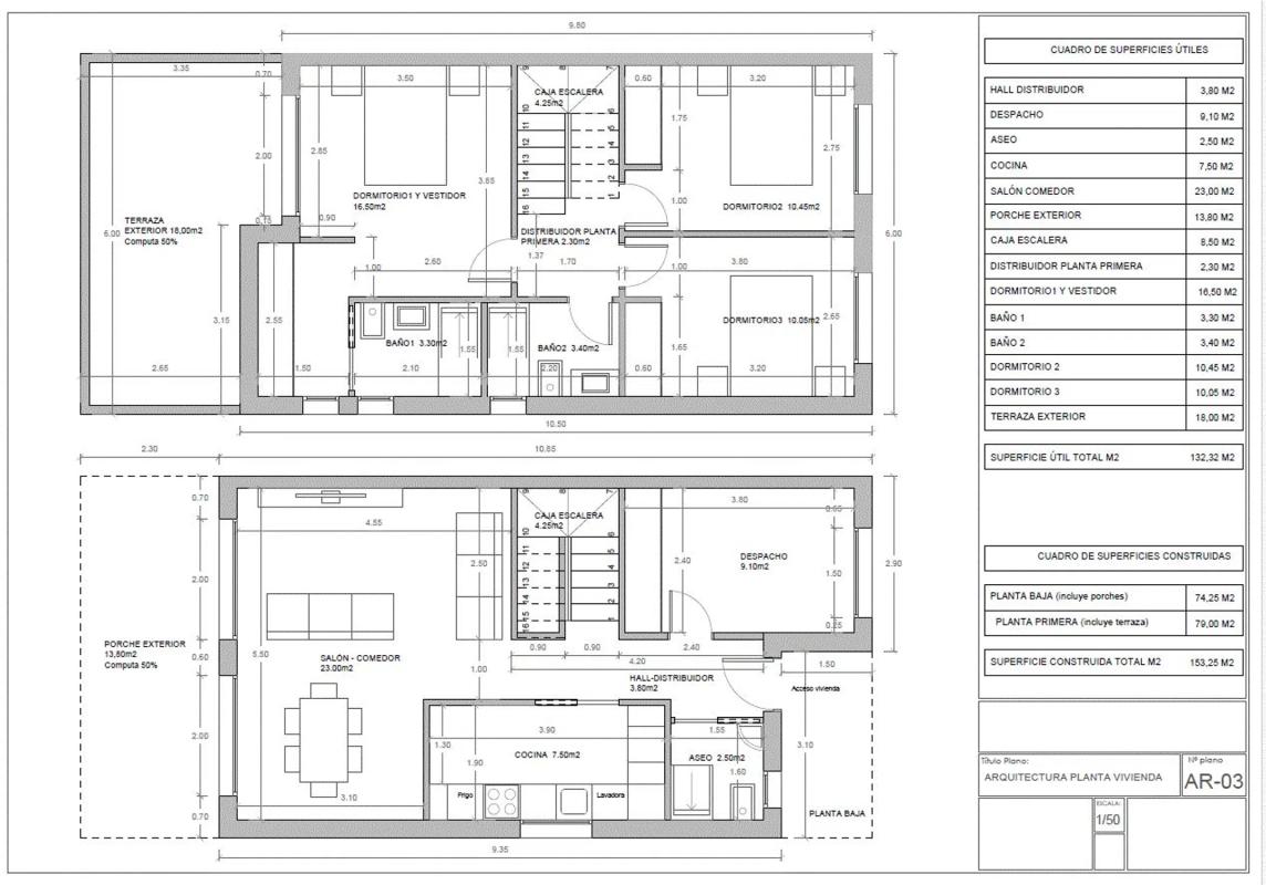
Una casa y un hogar en una de las áreas más exclusivas de la sierra de Madrid. Cerceda destaca por su entorno natural, cercano a la Pedriza y al Parque Nacional de la Sierra de Guadarrama, con acceso a deportes de montaña, buena gastronomía, y buen ambiente rural. Ideal para vivir en la naturaleza sin perder la parte urbana. Se vende un pareado en régimen de autopromoción. Magnífica vivienda de 147,25m2 sobre una parcela de 400m2. La distribución en dos plantas: ● Planta Principal: Hall distribuidor de 3.80m2. Salón con cocina americana de 30.5m2 con amplios ventanales con acceso al porche exterior de 13.80m2 y al jardín. Aseo de 2.5m2. Despacho/Dormitorio de 9.10m2. ● Primera Planta: Distribuidor de 2.30m2. Dormitorio de 10.5m2. Dormitorio de 10.45m2. Baño completo con ducha o bañera. de 3.4m2. Dormitorio Principal con vestidor de 16.5m2 con baño con ducha o bañera de 3.3m2 y con salida a amplia terraza de 12m2. Experiencia previa de más de 15 años con estudio de arquitectura y empresa constructora. Incluida calefacción con sistema de aerotermia por suelo radiante refrescante. Carpintería exterior de PVC de doble acristalamiento. Solados y alicatados porcelánicos. Posibilidad de modificar y adaptar la vivienda totalmente a tu gusto antes de la construcción. En el precio incluye: (todo el proceso de la auto promoción) ● Parcela: 400 m2 ● Proyecto arquitectura. ● Construcción llave en mano. ● Precio desde: 418.744 € más IVA. (Ahorro aportado por el comprador: 25%) Calificación energética A.

Promotions remarquables en Espagne

10 unités

Nature Views 2

Alicante, Torrevieja, Les Balcons - Les Hauts de l'Éden, Denia s/n
310 000 € - 379 000 €
1 unités

Hotel en venta en Benidorm centro

Alicante, Benidorm, Plage de Poniente
2 250 000 € - 2 250 000 €
28 unités

Residencial Los Balcones De Calpe

Alicante, Calpe, Calpe Pueblo, Avenida de Madrid, 1
299 000 € - 892 125 €
4 unités

Nature Views

Alicante, Torrevieja, Lago Jardín II, Avenida Denia s/n
309 000 € - 330 000 €
5 unités

ALONIS VILLAS

Alicante, La Villajoyosa / Vila Joiosa, Plage de Torres, Partida Torres s/n
675 000 € - 775 000 €
1 unités

Residencial Royal Beach

Alicante, Guardamar del Segura, village, Miguel Hernández 102
349 500 € - 349 500 €
7 unités

Royal Star

Alicante, Guardamar del Segura
229 500 € - 269 500 €
Ces informations proviennent de sources publiques et peuvent ne pas être à jour. Elles ne représentent pas un lien avec le promoteur.

Caractéristiques du bien

Complex information

Données de la propriété

  • Type de la propriété
    Programme neuf

Base

Certificat énergétique

  • CEE Émission
    A

Statistiques des prix du marché pour Juan Ramón Jimenez

Carte

Madrid, Cerceda, Calle Juan Ramon Jimenez Aller à cet endroit
Laisser un commentaire sur Juan Ramón Jimenez
0
0 revues
1
0% (0)
2
0% (0)
3
0% (0)
4
0% (0)
5
0% (0)
Grupo Consultaria - Golden House
418 744 €
Contacter l'annonceur

Pour plus d’informations, contactez la plateforme

REF: 449444

Critiques à propos de Juan Ramón Jimenez
Loading...

No reviews have been left for this object yet

Propriétés les plus proches

Explorez les biens immobiliers que nous avons découverts à proximité de ce site

Obra nueva Doce Fresnos en Moralzarzal

Madrid, Moralzarzal, Zone Collèges, Calle Alfonso X El Sabio, 47
-

Exclusiva promoción de 12 viviendas en Moralzarzal. Chalets pareados de 183 m2 d...

0
0 commentaires

Obra nueva Residencial Prado Real en El Boalo

Madrid, El Boalo
-

RESIDENCIAL PRADO REALViviendas Eco-Eficientes con Calificación Energética A con...

0
0 commentaires
1 unités

Obra nueva Becerril de la Sierra I en Becerril de la Sierra

Madrid, Becerril de la Sierra
368 400 € - 368 400 €

Chalet independiente de obra nueva que podrás diseñar a tu gusto y construir seg...

0
0 commentaires
6 unités

Nouveau projet résidentiel Arroyo del Moral II à Moralzarzal.

Madrid, Moralzarzal, Zona Église - Station, Calle Arroyo Grande, 93
558 310 € - 638 350 €

Immobilier à Arroyo del Moral II Situer à Moralzarzal, dans la charmante zone Ig...

0
0 commentaires
3 unités

Obra nueva Ciudadela Manzanares en Manzanares el Real

Madrid, Manzanares el Real
404 000 € - 480 000 €

CIUDADELA MANZANARES se encuentra en la mejor zona de Manzanares, en un entorno...

0
0 commentaires
4 unités

Nouveaux chalets en construction en régime d'autopromotion. Des habitations pour respirer à Cerceda.

Madrid, Cerceda
387 000 € - 470 000 €

Immobilier à Chalets en Régimen Autopromotor. Viviendas pour respirer en Cerceda...

0
0 commentaires

Obra nueva Moral Living en Moralzarzal

Madrid, Moralzarzal, Zone Collèges, Camino Alpedrete, 50
-

Moral Living, es una promoción de 23 viviendas en altura en urbanización cerrada...

0
0 commentaires
3 unités

Franpa

Madrid, Becerril de la Sierra, Avenida Calvo Sotelo, 54
169 000 € - 229 000 €

Se ofrece espectacular dúplex de obra nueva con una superficie construida de 101...

0
0 commentaires

4 pareados en Cerceda (el Boalo)

Madrid, Cerceda
-

ULTIMAS DOS VIVIENDAS DISPONIBLESEN RÉGIMEN AUTOPROMOTOR.NAVACASA CONSULTING com...

0
0 commentaires

Nous utilisons nos propres cookies et ceux de tiers pour analyser l’utilisation du site Web et vous montrer des publicités en lien avec vos préférences, sur la base d’un profil établi à partir de vos habitudes de navigation (ex. : pages visitées). Plus d’informations. Acceptez-vous les cookies ?