Vente de chalet mitoyen à Calle Alvaro Caballero, 9 , Madrid

Madrid, Madrid, Moncloa, Calle Alvaro Caballero, 9
Vendre
Laisser un commentaire
Maisons mitoyennes Type de bien
295 m² m2 construits
4 Salles de bains
3 Chambres
Chauffage par le sol Chauffage
4 Plante
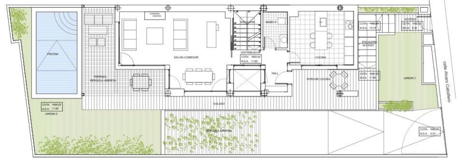
El , es un conjunto de 3 viviendas ubicadas en una de las zonas más exclusivas de Madrid, como es el barrio de El Plantío, en el distrito de Aravaca. Una oportunidad para vivir en una de los barrios más exclusivos de la zona, y que además lleva incluido en el precio el proyecto que se muestra en los renders, y la licencia de obra, por lo que se puede empezar a construir de forma inmediata.Una perfecta combinación entre innovación, funcionalidad y diseño, junto con una cuidada selección de materiales, dan como resultado, esta exclusiva promoción de obra nueva en régimen de autopromoción, con todas las garantías de calidad, seguridad y confort.Construcción en estructura de "Hormigón Arquitectónico", con la que obtenemos unas claras ventajas frente a la construcción tradicional, ya que disminuye considerablemente los tiempos de ejecución y costes, consiguiendo una importante mejora en aspectos relativos al impacto medioambiental, lo que garantiza una alta calificación energética.Las parcelas tienen una superficie de 263m², 274m2 o 346m2, y en ellas se ha diseñado este proyecto de viviendas, dos de ellas pareadas de 295m² y una vivienda unifamiliar aislada de 380m². Además, en el precio se incluye el vallado de la parcela con puerta peatonal y puerta motorizada para vehículos y el sistema de climatización por aerotermia con suelo radiante refrescante.Ubicadas en zona residencial de gran demanda y de mayor renta de la capital, en un entorno consolidado a solo 10 km del centro de Madrid, formado en su mayoría por chalets unifamiliares y urbanizaciones de lujo, situadas en las proximidades de la carretera de La Coruña y el Monte del Pardo, lo que dota a la zona de excelentes conexiones a la A-6 y de cómodo acceso a la M-40, M-500 y M-30, comunicándote con el centro de Madrid y las localidades del entorno en pocos minutos. Además, está muy próxima a las líneas de autobús 1 53 y 654, la estación de Cercanías líneas C-7 y C-10 y el metro ligero, al que se accede desde las líneas de Cercanías.En sus alrededores también encontraras diversas zonas de ocio y entretenimiento, así como colegios de prestigio, centros sanitarios, hospitales, centros comerciales y de ocio, centros deportivos y clubes de élite, diversos espacios gastronómicos.No está incluido el ICIO y las TASASTRAMITAMOS SU FINANCIACIÓN para la adquisición de la vivienda en el régimen de auto promotor, y le llevamos de la mano hasta la entrega de llaves de la vivienda.IMPUESTOS NO INCLUIDOS EN EL PRECIO.

Caractéristiques du bien

Complex information

  • Complexe résidentiel
    Residencial El Plantío
  • Type de bien
    Maisons mitoyennes

Mémoire des Qualités

  • Chauffage
    Chauffage par le sol

Données de la propriété

  • Plante
    4
  • Chambres
    3
  • Salles de bains
    4
  • m2 construits
    295 m²
  • Type de propriété
    Programme neuf

Installations

Commodités du logement:

Chauffage

Dans l'immeuble:

Sécurité
Bar
Spa

État:

Nouveau projet

Statistiques des prix du marché pour Chalet pareado en venta en calle Alvaro Caballero, 9

1 389 975 € (4 508 €/m2)
Prix moyen du Maisons mitoyennes primaire dans la ville de Madrid
1 413 833 € (4 188 €/m2)
Prix moyen du Maisons mitoyennes primaire dans le quartier Moncloa

Carte

Madrid, Madrid, Moncloa, Calle Alvaro Caballero, 9 Aller à cet endroit
Laisser un commentaire sur Chalet pareado en venta en calle Alvaro Caballero, 9
0
0 revues
1
0% (0)
2
0% (0)
3
0% (0)
4
0% (0)
5
0% (0)
Residencial El Plantío
Complexe résidentiel
Vendre
Contacter l'annonceur

Pour plus d’informations, contactez la plateforme

REF: 4475

Critiques à propos de Chalet pareado en venta en calle Alvaro Caballero, 9
Loading...

No reviews have been left for this object yet

Propriétés les plus proches

Explorez les biens immobiliers que nous avons découverts à proximité de ce site

Pareados en Venta en Calle Lacal, 10, Pozuelo de Alarcón

Madrid, Pozuelo de Alarcón, Zona Pueblo, Calle Lacal, 10
1 175 000 €

Obra nueva LACAL 10, pareados de 5 habitaciones, parcela común. Zona Pueblo, Poz...

0
0 commentaires

Pareados en Venta en Calle Lacal, 10, Pozuelo de Alarcón

Madrid, Pozuelo de Alarcón, Zona Pueblo, Calle Lacal, 10
1 275 000 €

Obra nueva LACAL 10, pareados de 5 habitaciones, parcela común. Zona Pueblo, Poz...

0
0 commentaires

Pareados en Venta en Calle Lacal, 10, Pozuelo de Alarcón

Madrid, Pozuelo de Alarcón, Zona Pueblo, Calle Lacal, 10
1 375 000 €

Obra nueva LACAL 10, pareados de 5 habitaciones, parcela común. Zona Pueblo, Poz...

0
0 commentaires

Pareados en Venta en Calle Nalón, 4, Pozuelo de Alarcón

Madrid, Pozuelo de Alarcón, Zone Station, Calle Nalón, 4
1 399 000 €

Lucas Fox se complace en presentarles estas fantásticas casas pareadas de obra n...

0
0 commentaires

Pareados en Venta en Calle Nalón, 4, Pozuelo de Alarcón

Madrid, Pozuelo de Alarcón, Zone Station, Calle Nalón, 4
1 399 000 €

Lucas Fox se complace en presentarles estas fantásticas casas pareadas de obra n...

0
0 commentaires

Obra nueva Residencial El Plantío en Madrid

Madrid, Madrid, Moncloa, Calle Alvaro Caballero, 9
947 565 €

El , es un conjunto de 3 viviendas ubicadas en una de las zonas más exclusivas d...

0
0 commentaires

Obra nueva Residencial El Plantío en Madrid

Madrid, Madrid, Moncloa, Calle Alvaro Caballero, 9
970 399 €

El , es un conjunto de 3 viviendas ubicadas en una de las zonas más exclusivas d...

0
0 commentaires

Adosados en Venta en Calle Tula s/n, Las Rozas de Madrid

Madrid, Las Rozas de Madrid, Yucatán - Les Cornises, Calle Tula s/n
566 200 €

29 VIVIENDAS UNIFAMILIARES VPPL CON JARDÍN PRIVADO Y ZONAS COMUNESImagina vivir...

0
0 commentaires

Adosados en Venta en Calle Tula s/n, Las Rozas de Madrid

Madrid, Las Rozas de Madrid, Yucatán - Les Cornises, Calle Tula s/n
574 450 €

29 VIVIENDAS UNIFAMILIARES VPPL CON JARDÍN PRIVADO Y ZONAS COMUNESImagina vivir...

0
0 commentaires

Nous utilisons nos propres cookies et ceux de tiers pour analyser l’utilisation du site Web et vous montrer des publicités en lien avec vos préférences, sur la base d’un profil établi à partir de vos habitudes de navigation (ex. : pages visitées). Plus d’informations. Acceptez-vous les cookies ?