Apartamentos en Venta en Calle Deportes, 2, Águilas

Murcie, Águilas, Centre, Calle Deportes, 2
Vendre
Laisser un commentaire
Appartements Type de bien
2024 Année de livraison
114 m² m2 construits
2 Salles de bains
3 Chambres
1er trimestre Date de livraison
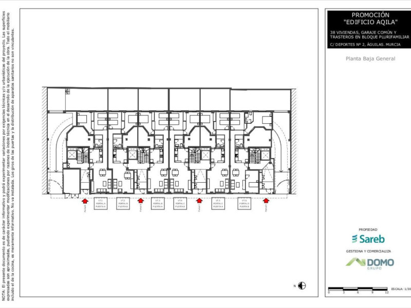
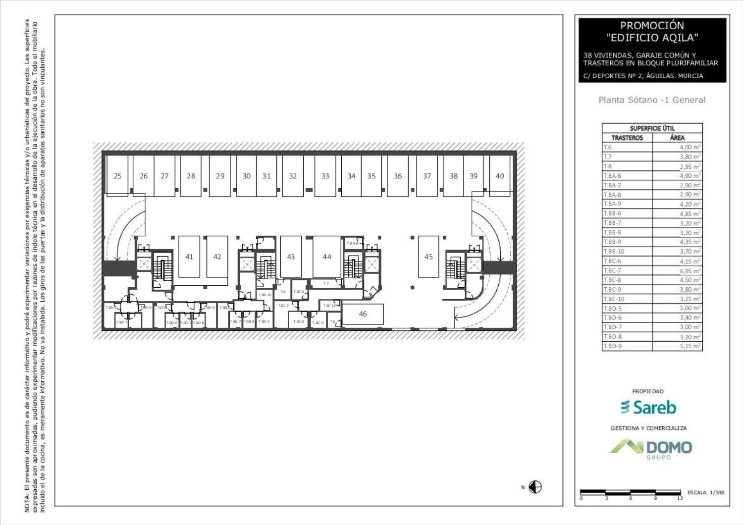
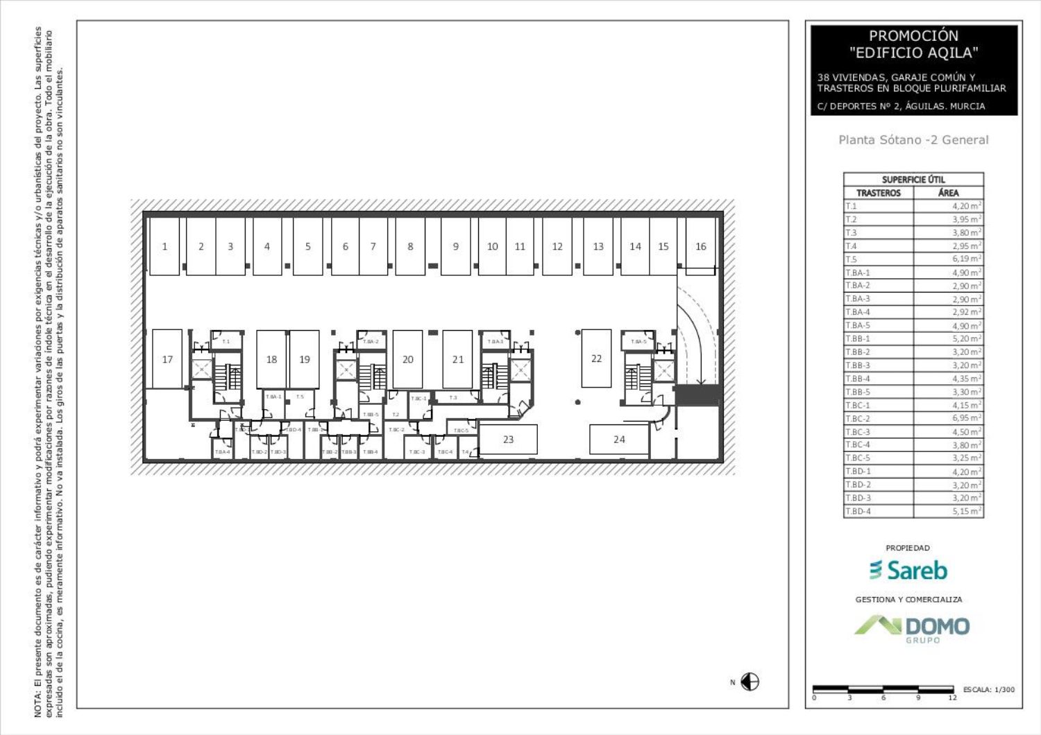
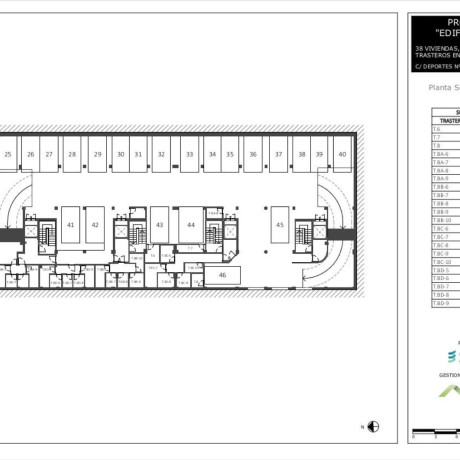
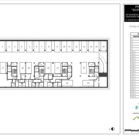
Promoción de 38 viviendas en altura en un único edificio de 5 plantas, con 4 zaguanes de entrada, 2 plantas sótano para 46 plazas de garaje y 46 trasteros.Predomina la tipología de pisos de 3 dormitorios, con 33 unidades. Por plantas, las viviendas se distribuyen a razón de 8 por planta y 6 viviendas en plana baja que cuentan con amplias terrazas de uso privativo en la parte posterior.Se trata de una excelente oportunidad tanto para primera vivienda como para segunda, dada la proximidad a la playa. También puede ser una interesante inversión para destinarla al alquiler.La obra está ejecutada al 55% aproximadamente y acaba de reanudarse. Está prevista su finalización para el primer trimestre de 2024.Edificio propiedad de Sareb- Activo ubicado en el centro de la ciudad y a escasos metros del ayuntamiento o de la playa, 1ª residencia principalmente, pero también 2ª residencia para público mayor del interior para pasar largas temporadas.- Perfectamente comunicada por autopista, con todos los servicios de una ciudad y las ventajas de la costa.El edificio se encuentra en la localidad de Águilas en la comunidad autónoma de la Región de Murcia, a unos 10 minutos andando del ayuntamiento y a 5 minutos andando de playa de Poniente. En la zona podemos encontrar varios supermercados, escuelas e institutos públicos. La promoción está situado a unos 70 km del aeropuerto de Murcia, y perfectamente comunicada por autopista, con todos los servicios de una ciudad y las ventajas de la costa.Águilas, municipio de la Región de Murcia, está situado en la costa del mar Mediterráneo. Cuenta con 35.956 habitantes. Se encuentra a 105 Km de la capital y a 37 km de Lorca. La ciudad también cuenta con un servicio de Cercanías que comienza en esta y se comunica con distintas poblaciones de Murcia hasta llegar a la capital.La economía de la zona se sostiene por su puerto, el turismo y agricultura de frutas y hortalizas. Águilas también es conocida por el carnaval, declarado fiesta de Interés Turístico InternacionalPonte en contacto con nosotros para ampliar información o reservar vivienda.

Caractéristiques du bien

Complex information

  • Complexe résidentiel
    Edificio Aguila
  • Type de bien
    Appartements

Informations sur le projet / État des travaux

  • Année de livraison
    2024
  • Date de livraison
    1er trimestre

Données de la propriété

  • Chambres
    3
  • Salles de bains
    2
  • m2 construits
    114 m²
  • Type de propriété
    Programme neuf

Certificat énergétique

  • Certificat énergétique
    E

Installations

Commodités du logement:

Débarras
Fenêtres intérieures
Terrasse

Approvisionnement:

Avec de l'eau

Dans l'immeuble:

Ascenseur
Cave

Statistiques des prix du marché pour Piso en venta en calle Deportes, 2

237 680 € (865 €/m2)
Prix moyen du Appartements primaire dans la ville de Águilas
306 885 € (3 209 €/m2)
Prix moyen du Appartements primaire dans le quartier Centre
329 449 € (1 277 €/m2)
Prix moyen du Appartements secondaire dans le quartier Centre

Carte

Murcie, Águilas, Centre, Calle Deportes, 2 Aller à cet endroit
Laisser un commentaire sur Piso en venta en calle Deportes, 2
0
0 revues
1
0% (0)
2
0% (0)
3
0% (0)
4
0% (0)
5
0% (0)
Edificio Aguila
Complexe résidentiel
Vendre
Contacter l'annonceur

Pour plus d’informations, contactez la plateforme

REF: 71

Critiques à propos de Piso en venta en calle Deportes, 2
Loading...

No reviews have been left for this object yet

Propriétés les plus proches

Explorez les biens immobiliers que nous avons découverts à proximité de ce site

Apartamentos en Venta en Calle Deportes, 2, Águilas

Murcie, Águilas, Centre, Calle Deportes, 2
94 700 €

Promoción de 38 viviendas en altura en un único edificio de 5 plantas, con 4 zag...

0
0 commentaires

Apartamentos en Venta en Calle Deportes, 2, Águilas

Murcie, Águilas, Centre, Calle Deportes, 2
97 900 €

Promoción de 38 viviendas en altura en un único edificio de 5 plantas, con 4 zag...

0
0 commentaires

Apartamentos en Venta en Calle Deportes, 2, Águilas

Murcie, Águilas, Centre, Calle Deportes, 2
107 400 €

Promoción de 38 viviendas en altura en un único edificio de 5 plantas, con 4 zag...

0
0 commentaires

Apartamentos en Venta en Calle Deportes, 2, Águilas

Murcie, Águilas, Centre, Calle Deportes, 2
112 000 €

Promoción de 38 viviendas en altura en un único edificio de 5 plantas, con 4 zag...

0
0 commentaires

Apartamentos en Venta en Calle Deportes, 2, Águilas

Murcie, Águilas, Centre, Calle Deportes, 2
102 100 €

Promoción de 38 viviendas en altura en un único edificio de 5 plantas, con 4 zag...

0
0 commentaires

Apartamentos en Venta en Calle Deportes, 2, Águilas

Murcie, Águilas, Centre, Calle Deportes, 2
106 300 €

Promoción de 38 viviendas en altura en un único edificio de 5 plantas, con 4 zag...

0
0 commentaires

Apartamentos en Venta en Calle Deportes, 2, Águilas

Murcie, Águilas, Centre, Calle Deportes, 2
110 500 €

Promoción de 38 viviendas en altura en un único edificio de 5 plantas, con 4 zag...

0
0 commentaires

Apartamentos en Venta en Calle Deportes, 2, Águilas

Murcie, Águilas, Centre, Calle Deportes, 2
111 600 €

Promoción de 38 viviendas en altura en un único edificio de 5 plantas, con 4 zag...

0
0 commentaires

Apartamentos en Venta en Calle Deportes, 2, Águilas

Murcie, Águilas, Centre, Calle Deportes, 2
113 400 €

Promoción de 38 viviendas en altura en un único edificio de 5 plantas, con 4 zag...

0
0 commentaires

Nous utilisons nos propres cookies et ceux de tiers pour analyser l’utilisation du site Web et vous montrer des publicités en lien avec vos préférences, sur la base d’un profil établi à partir de vos habitudes de navigation (ex. : pages visitées). Plus d’informations. Acceptez-vous les cookies ?