Vendre
Laisser un commentaire
Appartements Type de bien
76 m² m2 construits
2 Salles de bains
2 Chambres
Terminée État
Chauffage par le sol Chauffage
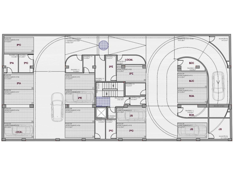
¡ÚLTIMAS VIVIENDAS DISPONIBLES CON TERRAZA Y PLAZA DE GARAJE EN LA MEJOR AVENIDA DE TUI A SOLO 20 MINUTOS DE VIGO!Inmogalaica presenta estas preciosas viviendas en el centro de Tui (Avenida de la Concordia), un proyecto de alto standing con pisos de diseño de 2 o 3 dormitorios que disponen de terraza, fachada ventilada, suelo radiante, plaza de garaje con cargadores para vehículos eléctricos y trastero. ¡ACCEDE A LAS ÚLTIMAS VIVIENDAS DISPONIBLES DE ESTA INCREÍBLE PROMOCIÓN DE OBRA NUEVA EN AVENIDA DE LA CONCORDIA DESDE TAN SOLO 150.000€!Este nuevo residencial en la Avenida de la Concordia se ubica justo en la desembocadura de la calle Ourense. Una construcción que apuesta por la sostenibilidad y es amable con el medio ambiente, contando con máxima certificación energética. Utiliza instalaciones muy eficientes, como la aerotermia junto con sistemas de climatización por suelo radiante y refrescante, además de importantes mejoras en sus aislamientos térmicos y acústicos. Las viviendas, de 103m² aproximadamente, cuentan con una distribución práctica y moderna que se distribuyen en un hall de entrada con armario empotrado, un amplio espacio para cocina y un gran salón comedor que dispone de unos preciosos ventanales en formato galería que le dota de gran luminosidad. La zona de noche está compuesta por dos o tres amplios dormitorios con armarios empotrados ya divididos y con un módulo de 3 cajones por armario. La habitación principal es en formato suite con un baño completo de estilo moderno y gama premium, más otro baño en el pasillo, ambos con alicatados gres de 1º calidad. La carpintería interior, lacada en blanco siguiendo el estilo de las últimas tendencias en diseño, le confiere una mayor amplitud y luminosidad a toda la vivienda. Además, todos los inmuebles disponen de una plaza de garaje en el propio edificio, amplia y de fácil acceso con preinstalación eléctrica para coches eléctricos, así como un práctico trastero. Es necesario resaltar el bajo consumo energético de todas las viviendas gracias a las altas prestaciones del aislamiento y del sistema de calefacción por suelo radiante con bomba de calor por aerotermia así como los sistemas de iluminación completa en LED. Una edificación de máxima calidad, que cuida minuciosamente los detalles, empleando una selección de materiales de diseño moderno y actual.Tui se confirma así, en la actualidad, como un polo de atracción inmobiliaria que en los últimos meses se ha revalorizado de manera notable gracias a su excelente ubicación transfronteriza entre España y Portugal, sus buenas conexiones por autovía con las principales urbes gallegas estando a tan sólo 20 minutos de Vigo, la nueva conexión Tui – A Guarda con la A-55 (que estará terminada a finales de verano) además de la continua reinversión en la ciudad con proyectos tan importantes como el Plan de Sostenibilidad Turística en Destino (PSTD) que inyectará dos millones de euros para la rehabilitación del casco histórico. Asegura tu inversión de futuro con estas nuevas viviendas de obra nueva en la capital por excelencia del Baixo Miño y disfruta de sus excelentes vistas y calidades con un increíble precio de venta. ¡LLAMA A INMOGALAICA Y RESERVA YA TU VISITA A ESTAS INCREÍBLES VIVIENDAS DE OBRA NUEVA!Recuerda que somos expertos en financiación y conseguimos la hipoteca que necesitas con las mejores condiciones del mercado gracias a nuestros excelentes acuerdos con las principales entidades bancarias. No dejes escapar esta oportunidad y llama ahora a Inmogalaica. ¡Tu nueva vivienda te espera!

Caractéristiques du bien

Complex information

  • Complexe résidentiel
    Edificio Avenida de la Concordia
  • Type de bien
    Appartements

Informations sur le projet / État des travaux

  • État
    Terminée

Mémoire des Qualités

  • Chauffage
    Chauffage par le sol

Données de la propriété

  • Chambres
    2
  • Salles de bains
    2
  • m2 construits
    76 m²
  • Type de design
    Moderne
  • Type de propriété
    Programme neuf

Installations

Commodités du logement:

Placards intégrés
Meubles
Débarras
Chauffage
Fenêtres intérieures
Terrasse

Dans l'immeuble:

Garage
Ascenseur
Spa
Cave

État:

Nouveau projet

Statistiques des prix du marché pour Piso en venta en avenida de la Concordia s/n

Carte

Pontevedra, Tui Aller à cet endroit
Laisser un commentaire sur Piso en venta en avenida de la Concordia s/n
0
0 revues
1
0% (0)
2
0% (0)
3
0% (0)
4
0% (0)
5
0% (0)
Edificio Avenida de la Concordia
Complexe résidentiel
Vendre
Contacter l'annonceur

Pour plus d’informations, contactez la plateforme

REF: 7783

Critiques à propos de Piso en venta en avenida de la Concordia s/n
Loading...

No reviews have been left for this object yet

Propriétés les plus proches

Explorez les biens immobiliers que nous avons découverts à proximité de ce site

Apartamentos en Venta, Tui

Pontevedra, Tui
150 000 €

¡ÚLTIMAS VIVIENDAS DISPONIBLES CON TERRAZA Y PLAZA DE GARAJE EN LA MEJOR AVENIDA...

0
0 commentaires

Apartamentos en Venta, Tui

Pontevedra, Tui
180 000 €

¡ÚLTIMAS VIVIENDAS DISPONIBLES CON TERRAZA Y PLAZA DE GARAJE EN LA MEJOR AVENIDA...

0
0 commentaires

Apartamentos en Venta, Tui

Pontevedra, Tui
180 000 €

¡ÚLTIMAS VIVIENDAS DISPONIBLES CON TERRAZA Y PLAZA DE GARAJE EN LA MEJOR AVENIDA...

0
0 commentaires

Apartamentos en Venta, Tui

Pontevedra, Tui
180 000 €

¡ÚLTIMAS VIVIENDAS DISPONIBLES CON TERRAZA Y PLAZA DE GARAJE EN LA MEJOR AVENIDA...

0
0 commentaires

Apartamentos en Venta, Tui

Pontevedra, Tui
180 000 €

¡ÚLTIMAS VIVIENDAS DISPONIBLES CON TERRAZA Y PLAZA DE GARAJE EN LA MEJOR AVENIDA...

0
0 commentaires

Obra nueva Edificio Avenida de la Concordia en Tui

Pontevedra, Tui
180 000 €

¡ÚLTIMAS VIVIENDAS DISPONIBLES CON TERRAZA Y PLAZA DE GARAJE EN LA MEJOR AVENIDA...

0
0 commentaires

Nous utilisons nos propres cookies et ceux de tiers pour analyser l’utilisation du site Web et vous montrer des publicités en lien avec vos préférences, sur la base d’un profil établi à partir de vos habitudes de navigation (ex. : pages visitées). Plus d’informations. Acceptez-vous les cookies ?