Nouvelle œuvre Riudoms Rallabert à Riudoms

Tarragone, Riudoms, Calle Salvador Espriu, 39
de 375 000 €
Laisser un commentaire
Surfaces des biens
Nombre de chambres
Bains
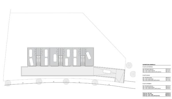
En el núcleo urbano de Riudoms les presentamos esta nueva promoción de 6 casas adosadas, a entregar en Septiembre de 2026, que destacan por sus grandes espacios ajardinados totalmente privados. Dos casas esquineras con 540 m² y 478 m² de jardín respectivamente y cuatro más con más de 140 m² de jardín, 36 m² en la entrada de la casa y 105 m² en el jardín posterior. Empezando por la planta sótano nos encontraremos con un box totalmente privado con espacio para 2 coches y también para zonas de almacenaje. Con una rampa común, las puertas de acceso serán eléctricas. A la planta baja de la casa se accede a través de un jardín de forma cuadrada que nos servirá de zona de relax. Al entrar en la casa nos encontramos una práctica habitación cuya función puede ser la de despacho o bien de dormitorio. Además encontraremos un baño completo, un distribuidor y la zona de salón con cocina abierta. Destacar en la cocina una gran isla en la que se sitúa la encimera. La zona de estar, con su comedor y zona de sofás da acceso al jardín principal, con más de 100 m² y con una excelente orientación. Sus dimensiones le permiten instalar sin problema una piscina (opcional) o bien establecer varias zonas, comedor, zona de sofás exterior, solarium. En la primera planta nos encontramos dos habitaciones, con un baño completo que les da servicio, y la gran suite, con un espacio enorme que incluye otro baño completo, vestidor, un pequeño despacho y la zona de dormitorio. La alta calidad de los materiales será otra de las características de esta promoción. Aire acondicionado y bomba de calor por conductos en diferentes zonas, persianas eléctricas, puertas lacadas y ventanas de aluminio son solo algunos de sus lujos. Pídanos una visita y le explicaremos todos los detalles de la promoción. No se la pierda!

Promotions remarquables en Espagne

10 unités

Nature Views 2

Alicante, Torrevieja, Les Balcons - Les Hauts de l'Éden, Denia s/n
310 000 € - 379 000 €
1 unités

Hotel en venta en Benidorm centro

Alicante, Benidorm, Plage de Poniente
2 250 000 € - 2 250 000 €
28 unités

Residencial Los Balcones De Calpe

Alicante, Calpe, Calpe Pueblo, Avenida de Madrid, 1
299 000 € - 892 125 €
4 unités

Nature Views

Alicante, Torrevieja, Lago Jardín II, Avenida Denia s/n
309 000 € - 330 000 €
5 unités

ALONIS VILLAS

Alicante, La Villajoyosa / Vila Joiosa, Plage de Torres, Partida Torres s/n
675 000 € - 775 000 €
1 unités

Residencial Royal Beach

Alicante, Guardamar del Segura, village, Miguel Hernández 102
349 500 € - 349 500 €
7 unités

Royal Star

Alicante, Guardamar del Segura
229 500 € - 269 500 €
Ces informations proviennent de sources publiques et peuvent ne pas être à jour. Elles ne représentent pas un lien avec le promoteur.

Caractéristiques du bien

Complex information

Données de la propriété

  • Type de la propriété
    Programme neuf

Base

Statistiques des prix du marché pour Riudoms Rallabert

Carte

Tarragone, Riudoms, Calle Salvador Espriu, 39 Aller à cet endroit
Laisser un commentaire sur Riudoms Rallabert
0
0 revues
1
0% (0)
2
0% (0)
3
0% (0)
4
0% (0)
5
0% (0)
ONE CL1CK INMOBILIARIA
375 000 €
Contacter l'annonceur

Pour plus d’informations, contactez la plateforme

REF: 449751

Critiques à propos de Riudoms Rallabert
Loading...

No reviews have been left for this object yet

Propriétés les plus proches

Explorez les biens immobiliers que nous avons découverts à proximité de ce site

1 unités

Obra nueva Les Forcades en Castellvell del Camp

Tarragone, Castellvell del Camp
390 000 € - 390 000 €

Promoción de venta en la calle Ample de Castellvell. , Disponemos de un chalet e...

0
0 commentaires

Obra nueva Serres del Mestral en Reus

Tarragone, Reus, Migjorn, Calle Serres del Mestral s/n
-

OBRA NUEVA. - Próxima construcción de 4 casas adosadas en Reus con jardín privad...

0
0 commentaires
1 unités

Nouvelle construction à Nou Cambrils Village à Cambrils.

Tarragone, Cambrils, Casc Antic - Nou Cambrils, Calle de la Cerdanya, 4
335 000 € - 335 000 €

Immobilier à Nou Cambrils Village Découvrez une nouvelle promotion de maisons mi...

0
0 commentaires
3 unités

Obra nueva Nou Cambrils Village en la Bóbila de Cambrils en Cambrils

Tarragone, Cambrils, Casc Antic - Nou Cambrils, Calle Cerdanya s/n
317 000 € - 369 000 €

Nueva promoción en Cambrils.

0
0 commentaires
6 unités

Nou Jardí, une nouvelle résidence à Reus.

Tarragone, Reus, Llevant, Calle Cami de Valls
238 000 € - 340 000 €

Immobilier à Nou Jardí Nous vous présentons la nouvelle phase de commercialisati...

0
0 commentaires
1 unités

Obra nueva Reus en Reus

Tarragone, Reus, Mestral, Calle Victoria, 4
475 000 € - 475 000 €

Casa de 280 m2 construidos aproximados que consta de cuatro habitaciones, cuatro...

0
0 commentaires

Obra nueva Tivissa Terrasses en Reus

Tarragone, Reus, Mestral, Calle de Tivissa, 6
-

Obra nueva de vivienda en Reus.

0
0 commentaires
6 unités

Edifici Llibertat

Tarragone, Reus, Centre, Sant Vicenç, 28
275 000 € - 298 000 €

Immobilier à Edifici Llibertat Découvrez la nouvelle offre immobilière dans le c...

0
0 commentaires
10 unités

Doctor Robert 17

Tarragone, Reus, Centre, Calle Doctor Robert, 17
238 000 € - 475 000 €

Immobilier à Doctor Robert 17 Découvrez cette nouvelle opportunité de vivre au c...

0
0 commentaires

Nous utilisons nos propres cookies et ceux de tiers pour analyser l’utilisation du site Web et vous montrer des publicités en lien avec vos préférences, sur la base d’un profil établi à partir de vos habitudes de navigation (ex. : pages visitées). Plus d’informations. Acceptez-vous les cookies ?