Local en venta en Benetusser

Valence, Benetusser
Vendre
Laisser un commentaire
Locaux commerciaux Type de bien
1970 Année de livraison
94 m² m2 construits
2 Salles de bains
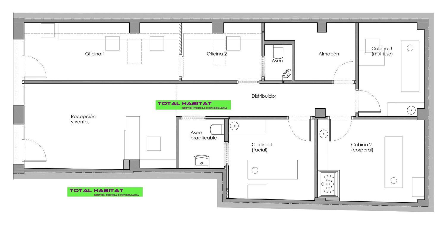
Ref: 00729 Se vende LOCAL COMERCIAL de 94 m2 construidos con dos escaparates que dan a la calle, en una ubicación muy céntrica a escasos 100 m del ayuntamiento de Benetusser. Actualmente la actividad que se desarrolla en el local se encuentra en funcionamiento con todos los servicios dados de alta y en funcionamiento, pero por traslado de la actividad, en el precio de venta se incluye el traspaso de la actividad, que actualmente de centro de estética, valida también parta peluquerías si ese fuera el destino buscado. El local se reformo por completo recientemente y ya se adaptó a las nuevas normativas en lo que afecta a tamaño y equipamiento de los aseos, accesos adaptados, ancho de pasos, etc y por ese motivo sería válido para cualquier otros tipo de actividad de las calificadas como inocua, por ejemplo de tipo despachos, gestorías administrativas, comercializadoras de telefonía, seguros, despachos de arquitectura, inmobiliarias, oficinas variadas, coworking, tiendas varias, etc. ya que no es necesario realizar ningún tipo de obra para su adaptación.Actualmente el local se encuentra distribuido tal cual se muestra en el plano que se adjunta, por el ventanal principal de la fachada tenemos el acceso principal al local por el cual se accede a la zona de atención al público con un mostrador de recepción seguido de un aseo adaptado al que de accede desde un pasillo distribuidor, en el lado izquierdo del local disponemos de una sala de trabajo con acceso independiente desde el exterior si se desea, con un escritorio corrido donde se pueden ubicar fácilmente hasta tres puestos de trabajo, esta estancia dispone de acceso a un aseo privativo de esta sala, luego disponemos de 3 salas o despachos independientes adaptables al uso requerido.El local se ha reformado recientemente con acabados de muy buena calidad, dispone de sistema de aire acondicionado frío/calor por conductos y zonificado por estancias, paredes lisas, suelos de gres porcelánico gran formato, todas las estancias con la iluminación empotrada en falsos techos.El precio indicado en el anuncio no incluye impuestos, ni gastos de notaría, ni honorarios de la agencia.

Caractéristiques du bien

Complex information

  • Type de bien
    Locaux commerciaux

Informations sur le projet / État des travaux

  • Année de livraison
    1970

Données de la propriété

  • Salles de bains
    2
  • m2 construits
    94 m²
  • Type de propriété
    Occasion

Installations

Commodités du logement:

Climatisation
Chauffage
Fenêtre extérieure

Dans l'immeuble:

Spa

État:

Bon état
Réformé

Statistiques des prix du marché pour Local en venta en Benetusser

Carte

Valence, Benetusser Aller à cet endroit
Laisser un commentaire sur Local en venta en Benetusser
0
0 revues
1
0% (0)
2
0% (0)
3
0% (0)
4
0% (0)
5
0% (0)
Total Habitat
Vendre
Contacter l'annonceur

Pour plus d’informations, contactez la plateforme

REF: 34994

Critiques à propos de Local en venta en Benetusser
Loading...

No reviews have been left for this object yet

Propriétés les plus proches

Explorez les biens immobiliers que nous avons découverts à proximité de ce site

Local en venta en Camí de Vera

Valence, Valence, Benimaclet
325 000 €

Local comercial de 210 m²a actualmente con distribución para clínica dental. Dis...

0
0 commentaires

Local en venta en calle del Marqués de Villores, 3

Valence, Mislata, La Constitución - Canaleta, Calle del Marqués de Villores, 3
51 000 €

Local de 101 m2 en Mislata SIN COMISIONESEn el equipo de Selinver Inmobiliaria n...

0
0 commentaires

Local en venta en La Raiosa

Valence, Valence, Jésus
280 000 €

Se traspasa esta cafetería. Negocio estable y con alta facturación anual. HHa si...

0
0 commentaires

Local en venta en Benetusser

Valence, Benetusser
77 000 €

Ref: 00729 Se vende LOCAL COMERCIAL de 94 m2 construidos con dos escaparates que...

0
0 commentaires

Local en venta en calle D'Alberic

Valence, Valence, Extramurs, Calle D'Alberic
164 000 €

¡Oportunidad en Arrancapins! Local-Bar con Licencia en Venta en la Calle Alberiq...

0
0 commentaires

Local en venta en san roque

Valence, Benetusser
45 000 €

Bajo en venta con 1 baño. Posibilidad de emplear el local para diferentes usos.

0
0 commentaires

Local en venta en Los Juzgados

Valence, Mislata, Les Juzgados
150 000 €

Local comercial de 300m2, con dos persianas a la calle y varias ventanas, vado y...

0
0 commentaires

Local en venta en calle de Ramon Muntaner

Valence, Xirivella, Avenue de la Paix, Calle de Ramon Muntaner
45 000 €

Venta de Local Diáfano con Terraza a tan sólo 120 metros de la nueva construcció...

0
0 commentaires

Local en venta en Catarroja

Valence, Catarroja
69 500 €

ACABADA, PERSIANA MOTORIZADA, ALARMASuperficie total 45 m², local superficie sol...

0
0 commentaires
Appeler

Nous utilisons nos propres cookies et ceux de tiers pour analyser l’utilisation du site Web et vous montrer des publicités en lien avec vos préférences, sur la base d’un profil établi à partir de vos habitudes de navigation (ex. : pages visitées). Plus d’informations. Acceptez-vous les cookies ?