Sprzedaż poddasza w Orihuela Costa , Orihuela

Alicante, Orihuela, Orihuela Costa
198 500 €
2 796 € / m2
Zostaw recenzję
Penthouse Rodzaj rynku
2025 Rok oddania
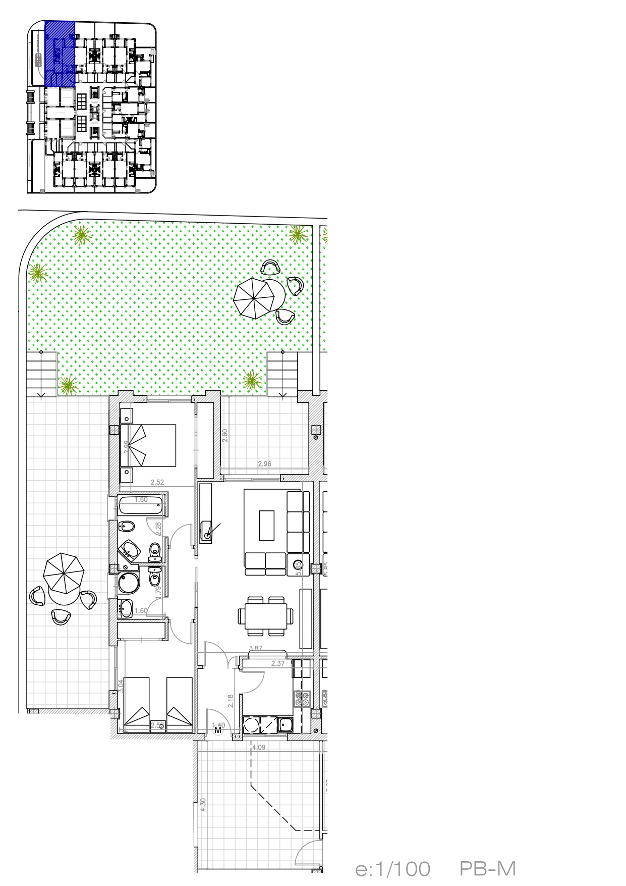
71 m² m2 zabudowane
2 Łazienki
2 Sypialnie
II Kwartał Data odbioru
Z meblami Wyposażenie kuchni
3J Nazwa
3 Piętro

Ekskluzywne apartamenty z 1 i 2 sypialniami w wyjątkowej lokalizacji

Odkryj nowoczesne podejście do komfortu i elegancji w tym ekskluzywnym kompleksie mieszkaniowym, usytuowanym w renomowanej dzielnicy w Alicante, Torrevieja. Obecnie przechodzi on proces modernizacji, a mieszkania będą gotowe do zamieszkania już od maja/czerwca, oferując możliwość wprowadzenia się do domu zaprojektowanego zgodnie z najwyższymi standardami jakości.

Budynek został starannie odnowiony, aby zapewnić luksusową i przyjazną atmosferę, z wykorzystaniem materiałów najwyższej jakości i optymalną aranżacją przestrzeni dla maksymalnego komfortu. Można wybierać spośród apartamentów z 1 lub 2 sypialniami, wszystkie charakteryzują się funkcjonalnym i jasnym rozkładem.

Położony w strategicznej lokalizacji, ten kompleks mieszkaniowy oferuje doskonałe połączenia z najlepszymi plażami wybrzeża Costa Blanca, renomowanymi polami golfowymi oraz szeroką gamą rozrywki i usług.

Jeśli szukasz gotowego do zamieszkania mieszkania w ekskluzywnej okolicy, z pełnym wyposażeniem, to jest właśnie twoja szansa. Skontaktuj się z nami, aby uzyskać więcej informacji i umówić się na wizytę!

Charakterystyka nieruchomości

Complex information

  • Kompleks mieszkalny
    PERLA DEL MAR
  • Rodzaj rynku
    Penthouse

Informacje o projekcie / Stan budowy

  • Rok oddania
    2025
  • Data odbioru
    II Kwartał

Dane nieruchomości

  • Typ kuchni
    Kuchnia amerykańska
  • Wyposażenie kuchni
    Z meblami
  • Nazwa
    3J
  • Piętro
    3
  • Sypialnie
    2
  • Łazienki
    2
  • m2 zabudowane
    71 m²
  • Rodzaj nieruchomości
    Nowa budowa

Powierzchnie

  • Powierzchnia tarasu
    18 m²
  • Powierzchnia tarasu
    45 m²

Base

  • Łączna liczba nieruchomości
    27

Udogodnienia

W budynku:

Garaż

Dokumenty: PERLA DEL MAR apart

Plany

Statystyki cen rynkowych dla PERLA DEL MAR apart

431 328 € (3 166 €/m2)
Średnia cena pierwotnego Penthouse w mieście Orihuela
307 608 € (3 342 €/m2)
Średnia cena wtórnego Penthouse w mieście Orihuela
320 761 € (3 946 €/m2)
Średnia cena pierwotnego Penthouse w dzielnicy Orihuela Costa
314 755 € (3 488 €/m2)
Średnia cena wtórnego Penthouse w dzielnicy Orihuela Costa

Mapa

Alicante, Orihuela, Orihuela Costa Iść do tego miejsca
Zostaw opinię o PERLA DEL MAR apart
0
0 recenzje
1
0% (0)
2
0% (0)
3
0% (0)
4
0% (0)
5
0% (0)
Costamar Real Estate
PERLA DEL MAR
Kompleks mieszkalny
198 500 €
od 2 796 € / m2
Kontakt z reklamodawcą

Aby uzyskać więcej informacji, skontaktuj się z platformą

REF: 344448

Opinie o PERLA DEL MAR apart
Loading...

No reviews have been left for this object yet

Tanie mieszkania 62853 Mieszkania do remontu 30825 Mieszkania do 50.000€ 28908 Mieszkania do 100.000€ 30136 Domy do 100.000€ 30136 Mieszkania z widokiem na morze 29678 Luksusowe mieszkania 29343 Tanie nowe mieszkania 47675 Sprzedaż mieszkań z 2 pokojami Alicante 23568 Sprzedaż mieszkań 3 pokojowych Alicante 24026 Sprzedaż mieszkań 4-pokojowych Alicante 21222 Sprzedaż mieszkań 5 pokoi Alicante 20334 Mieszkania w dobrym stanie Alicante 21933 Mieszkania do remontu Alicante 21238 Mieszkania z drugiej ręki Alicante 28822 Mieszkania z widokiem na morze Alicante 20304 Tanie mieszkania Alicante 29459 Mieszkania na sprzedaż z windą Alicante 26238 Mieszkania do 50.000€ Alicante 20387 Mieszkania do 100.000€ Alicante 21044 Mieszkania nowe budownictwo Alicante 20765 Mieszkania luksusowe Alicante 20247 Mieszkania zewnętrzne Alicante 20292 Tanie nowe mieszkania Alicante 20765 Mieszkania od właścicieli Alicante 17388 Sprzedaż mieszkań 2 pokoje Orihuela 2039 Sprzedaż mieszkań 3 pokoje Orihuela 1929 Sprzedaż mieszkań 4 pokojowych Orihuela 1820 Sprzedaż mieszkań 5 pokoi Orihuela 1802 Mieszkania w dobrym stanie Orihuela 1911 Mieszkania do remontu Orihuela 1814 Mieszkania z drugiej ręki Orihuela 2207 Mieszkania z widokiem na morze Orihuela 1802 Tanich mieszkań Orihuela 2229 Mieszkania na sprzedaż z windą Orihuela 2031 Mieszkania do 100.000€ Orihuela 1815 Mieszkania z rynku pierwotnego Orihuela 1813 Mieszkania do 50.000€ Orihuela 1815 Luksusowe mieszkania Orihuela 1800 Mieszkania zewnętrzne Orihuela 1800 Tanie nowe mieszkania Orihuela 1813 Mieszkania od osób prywatnych Orihuela 1651

Najbliższe nieruchomości

Poznaj pobliskie nieruchomości, które znaleźliśmy w pobliżu tej lokalizacji

Áticos en Venta en Calle Samaniego, 22, Orihuela

Alicante, Orihuela, Orihuela Costa, Calle Samaniego, 22
205 000 €

Con 4.000m2 de zona verde y por su cercanía al mar, Altos de Campoamor es uno de...

0
0 recenzji

Áticos en Venta en Calle escorpiones s/n, Torrevieja

Alicante, Torrevieja, Los Balcones - Los Altos del Edén, Calle escorpiones s/n
559 000 €

Ático de 3 dormitorios con solárium y barbacoa, aire acondicionado por conductos...

0
0 recenzji

Apartamentos en Venta en Calle Miguel de Unamuno, 20, Orihuela

Alicante, Orihuela, Orihuela Costa, Calle Miguel de Unamuno, 20
425 000 €

Kompleks mieszkaniowy Seagardens znajduje się w najwyższej części Campoamor (Ori...

0
0 recenzji

Áticos en Venta, Torrevieja

Alicante, Torrevieja, Los Balcones - Los Altos del Edén
255 900 €

RESIDENCIAL DE OBRA NUEVA DE BUNGALOWS EN LOS BALCONES, TORREVIEJA Complejo resi...

0
0 recenzji

Áticos en Venta, Torrevieja

Alicante, Torrevieja, Los Balcones - Los Altos del Edén
245 900 €

RESIDENCIAL DE OBRA NUEVA DE BUNGALOWS EN LOS BALCONES, TORREVIEJA Complejo resi...

0
0 recenzji

Áticos en Venta, Orihuela

Alicante, Orihuela, Orihuela Costa
259 000 €

COMPLEJO RESIDENCIAL DE OBRA NUEVA EN LOS ALTOS Apartamentos y áticos de nueva c...

0
0 recenzji

Apartamentos en Venta, Orihuela

Alicante, Orihuela, Orihuela Costa
259 000 €

NOWY KOMPLEKS MIESZKANIOWY W LOS ALTOSNowe mieszkania i apartamenty na najwyższy...

0
0 recenzji

Áticos en Venta, Orihuela

Alicante, Orihuela, Orihuela Costa
1 349 000 €

RESIDENCIAL DE OBRA NUEVA EN LAS COLINAS GOLF Promoción de apartamentos de lujo...

0
0 recenzji

Używamy własnych plików cookie oraz plików cookie stron trzecich do analizy korzystania z witryny i wyświetlania reklam dopasowanych do Twoich preferencji, na podstawie profilu utworzonego na podstawie Twoich nawyków przeglądania (np. odwiedzonych stron). Więcej informacji. Czy akceptujesz pliki cookie?