Hiszpania Kawalerka Hiszpania Kawalerka Baleary Kawalerka Ibiza Alquiler de Estudio en avenida Pere Matutes Noguera, 76

Wynajem mieszkania w Avenida Pere Matutes Noguera, 76, Ibiza

Baleary, Ibiza, Figueretes - Platja d'En Bossa, Avenida Pere Matutes Noguera, 76
Wyprzedaż
Zostaw recenzję
Kawalerka Rodzaj rynku
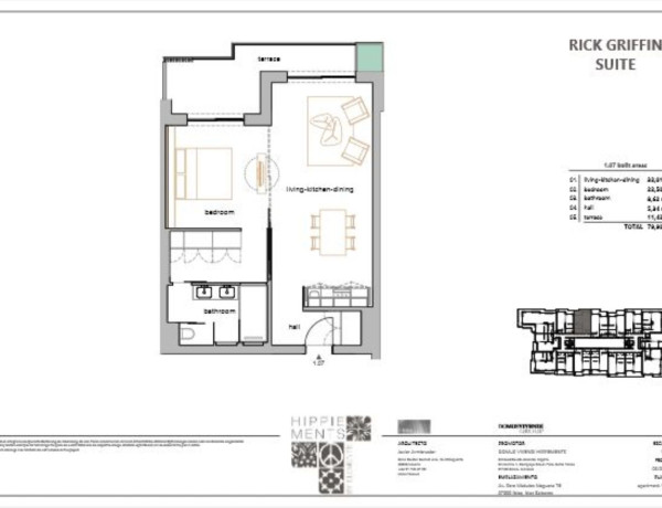
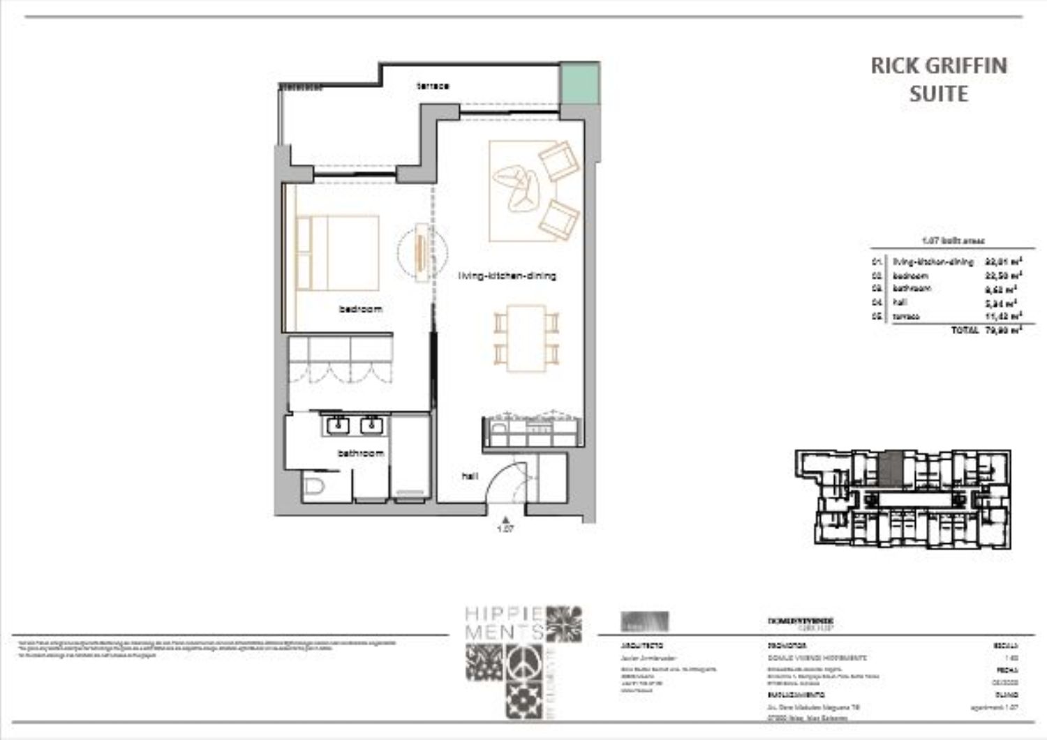
80 m² m2 zabudowane
1 Łazienki
Wyposażona Wyposażenie kuchni
Wliczone w cenę Garaż
Zewnętrzny Rozkład okien
Esta descripción ha sido traducida automáticamente y puede que no sea muy precisa. Ver descripción en el idioma original Un homenaje al estilo de vida de los niños de las flores. Apartamentos de estilo de vida únicos que combinan a la perfección tradición y estilo de vida lujoso. El lujo de alta gama se combina con el estilo de vida hippie. La temática hippie evoca los años jóvenes y salvajes de Ibiza sin ser imponente ni omnipresente. Muchos detalles recuerdan esto, como por ejemplo el hecho de que HIPPIEMENTS no tiene una numeración de apartamentos normal, sino que cada apartamento tiene un nombre icónico de la época hippie. Cerca de la playa desde Playa dén Bossa está a sólo 10 minutos del aeropuerto, 5 minutos del casco antiguo de Ibiza y sólo un minuto andando a la playa, que está justo enfrente de HIPPIEMENTS.ARQUITECTURAA HIPPIEMENTS le encantan los detalles: además de un enfoque arquitectónico especial, caracterizado en gran medida por elementos como piedra natural, madera, vidrio y jardines verticales, HIPPIEMENTS tiene algunos atractivos especiales para los futuros propietarios.PRINCIPIOS BÁSICOSEn Hippiements, la tradición y el lujo se combinan para crear una mezcla emocionante que brinda a sus residentes un lugar para la comunidad y la privacidad a partes iguales. Ya sea compacto o extenso, terraza privada en la azotea o jardín privado, cada apartamento tiene su propio encanto único.REFLEJOSElementos de alta gama como electrodomésticos de cocina de Gaggenau, griferías de Dornbracht, modernas tecnologías de seguridad, ventanas correderas a ras de suelo y suelos de piedra natural de alta calidad son solo algunos de los muchos detalles del equipamiento.HIPPIEMENTS y servicio:- Servicio de conserjería interno 24 horas al día, 7 días a la semana.- Vida adaptada a las personas mayores- Bienestar: zona de bienestar- Servicios: catering, conserje.- Nuevo estándar de construcción.Detalles- Baño con ventana y ducha.- Balcón- Vista: vista a la montaña- Cocina equipada- sin barreras, apto como propiedad vacacional- Suelos: suelo de piedra- Ventanas: ventanas de aluminio.- Equipamiento: amueblado- estado: primera ocupación- Totalmente climatizado- Baño- Año de construcción: 2023- Estado: Edificio nuevo- Ascensor de pasajeros- 1 plaza de aparcamiento: aparcamiento subterráneo- Bienestar: Piscina.Las imágenes pueden variar según los distintos apartamentos.

Charakterystyka nieruchomości

Complex information

  • Rodzaj rynku
    Kawalerka

Dane nieruchomości

  • Wyposażenie kuchni
    Wyposażona
  • Garaż
    Wliczone w cenę
  • Łazienki
    1
  • m2 zabudowane
    80 m²
  • Rodzaj nieruchomości
    Z drugiej ręki
  • Meble
    Z meblami

Certyfikat energetyczny

  • Certyfikat energetyczny
    A

Base

  • Rozkład okien
    Zewnętrzny

Udogodnienia

Udogodnienia mieszkania:

Klimatyzacja
Szafy wnękowe
Toaleta
Ogrzewanie
Zewnętrzne okno
Taras

W budynku:

Basen
Garaż
Winda
Bezpieczeństwo
Bar
Ogród

Wyposażenie kuchni:

W pełni wyposażona

Stan:

Nowa budowa

Statystyki cen rynkowych dla Alquiler de Estudio en avenida Pere Matutes Noguera, 76

Mapa

Baleary, Ibiza, Figueretes - Platja d'En Bossa, Avenida Pere Matutes Noguera, 76 Iść do tego miejsca
Opcje wyszukiwania w pobliżu
Zostaw opinię o Alquiler de Estudio en avenida Pere Matutes Noguera, 76
0
0 recenzje
1
0% (0)
2
0% (0)
3
0% (0)
4
0% (0)
5
0% (0)
Domus Vivendi Hippiements .
Wyprzedaż
Kontakt z reklamodawcą

Aby uzyskać więcej informacji, skontaktuj się z platformą

REF: 38336

Opinie o Alquiler de Estudio en avenida Pere Matutes Noguera, 76
Loading...

No reviews have been left for this object yet

Najbliższe nieruchomości

Poznaj pobliskie nieruchomości, które znaleźliśmy w pobliżu tej lokalizacji

Alquiler de Estudio en avenida Pere Matutes Noguera, 76

Baleary, Ibiza, Figueretes - Platja d'En Bossa, Avenida Pere Matutes Noguera, 76
2 800 €

Esta descripción ha sido traducida automáticamente y puede que no sea muy precis...

0
0 recenzji

Używamy własnych plików cookie oraz plików cookie stron trzecich do analizy korzystania z witryny i wyświetlania reklam dopasowanych do Twoich preferencji, na podstawie profilu utworzonego na podstawie Twoich nawyków przeglądania (np. odwiedzonych stron). Więcej informacji. Czy akceptujesz pliki cookie?