Terreno en Cal Mas s/n

Barcelona, Aguilar de Segarra, CAL MAS s/n
125 000 €
Zostaw recenzję
Nieubudowane Rodzaj rynku
14 262 m² Powierzchnia działki
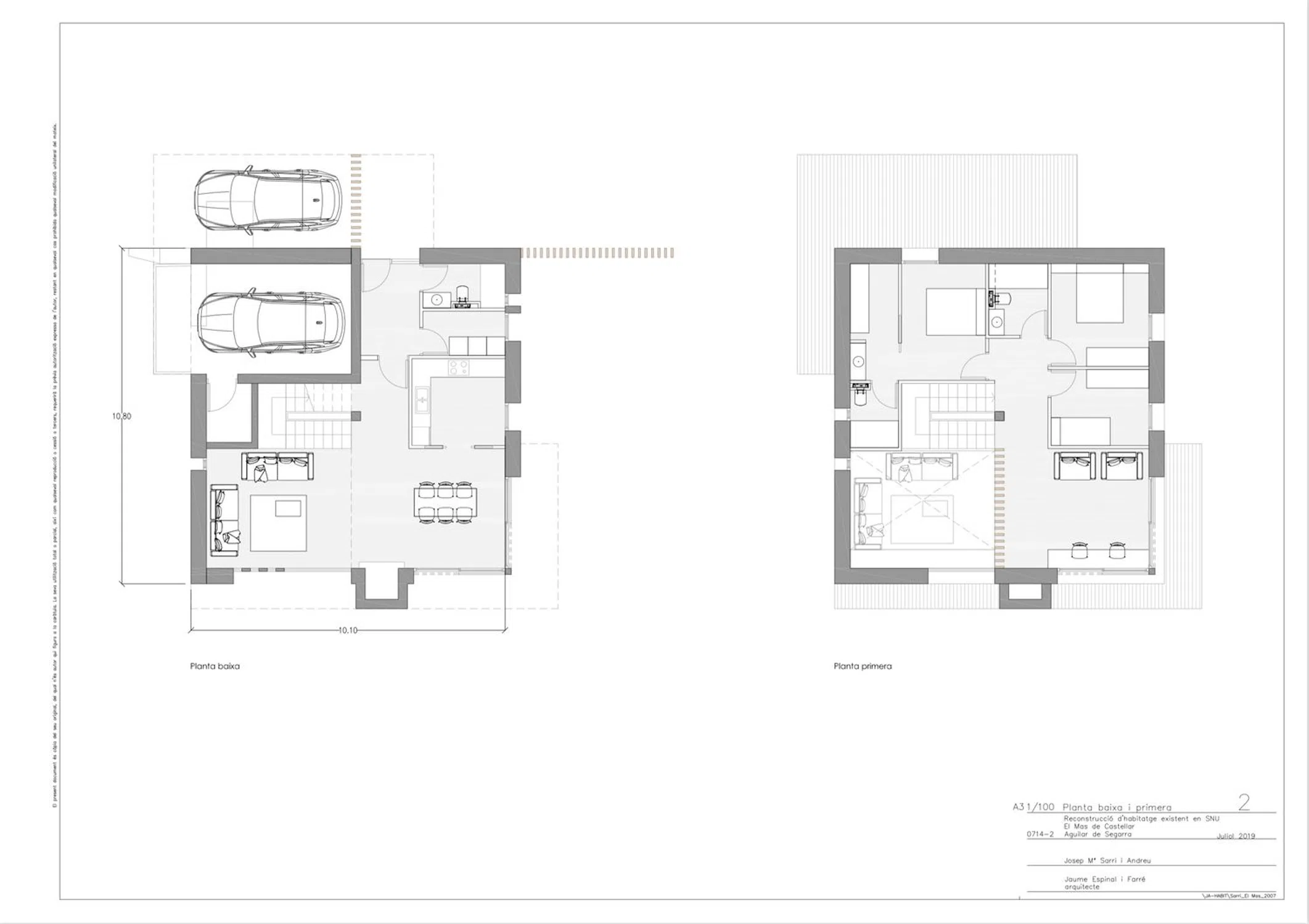
¡Oportunidad única! Gran terreno de 14,262m2 disponible para construir la casa de tus sueños en una ubicación privilegiada en la Cataluña Central. Ubicado en una zona destacada del Bages, con impresionantes vistas a la montaña y una excelente accesibilidad a solo 3 minutos de la C-25, y a tan solo 20 minutos de Manresa y la autopista que conduce a Barcelona. Este terreno está estratégicamente situado cerca de encantadores pueblos como Aguilar de Segarra, Castellar, Rajadell, Fals, Fonollosa, ofreciendo un entorno perfecto para paseos, excursiones en bicicleta de montaña, una excepcional oferta gastronómica, bosques exuberantes y la agradable vida de pueblo. Se proporciona una propuesta de plano de vivienda para la construcción, junto con el catálogo de masías y casas rurales aprobado por el Ayuntamiento de Aguilar de Segarra. Actualmente, el terreno conserva dos paredes de lo que fue una masía de 260m2 en dos plantas en 1857, lo que facilita el inicio de la construcción sin necesidad de demoler. Se permite una variedad de usos, desde residencial familiar hasta actividades profesionales, artesanales e incluso turísticas, si se tiene la intención de emprender un negocio de turismo rural. Las fotografías de los planos muestran una propuesta de reconstrucción, pero recuerde que la construcción final puede adaptarse completamente a sus preferencias y necesidades. ¡No pierdas la oportunidad de convertir este increíble terreno en tu próximo hogar o negocio!

Charakterystyka nieruchomości

Complex information

  • Rodzaj rynku
    Nieubudowane

Dane nieruchomości

  • Rodzaj nieruchomości
    Z drugiej ręki

Powierzchnie

  • Powierzchnia działki
    14 262 m²

Base

Udogodnienia

Widoki:

Widoki na górę
Jasne widoki

Statystyki cen rynkowych dla Terreno en Cal Mas s/n

Mapa

Barcelona, Aguilar de Segarra, CAL MAS s/n Iść do tego miejsca
Zostaw opinię o Terreno en Cal Mas s/n
0
0 recenzje
1
0% (0)
2
0% (0)
3
0% (0)
4
0% (0)
5
0% (0)
PUNTO HABITAT Gaudí
125 000 €
Kontakt z reklamodawcą

Aby uzyskać więcej informacji, skontaktuj się z platformą

REF: 373303

Opinie o Terreno en Cal Mas s/n
Loading...

No reviews have been left for this object yet

Najbliższe nieruchomości

Poznaj pobliskie nieruchomości, które znaleźliśmy w pobliżu tej lokalizacji

Terreno en Cal Mas s/n

Barcelona, Aguilar de Segarra, CAL MAS s/n
125 000 €

¡Oportunidad única! Gran terreno de 14,262m2 disponible para construir la casa d...

0
0 recenzji
Zadzwoń

Używamy własnych plików cookie oraz plików cookie stron trzecich do analizy korzystania z witryny i wyświetlania reklam dopasowanych do Twoich preferencji, na podstawie profilu utworzonego na podstawie Twoich nawyków przeglądania (np. odwiedzonych stron). Więcej informacji. Czy akceptujesz pliki cookie?