Merida

Barcelona, Vilanova i la Geltrú, La Collada - Sis Camins, Calle Mèrida, 3
398 000 €
2 823 € / m2
Zostaw recenzję
Bliźniaki Rodzaj rynku
2025 Rok oddania
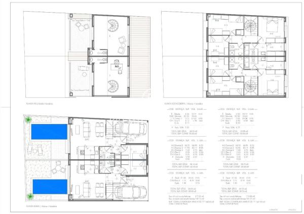
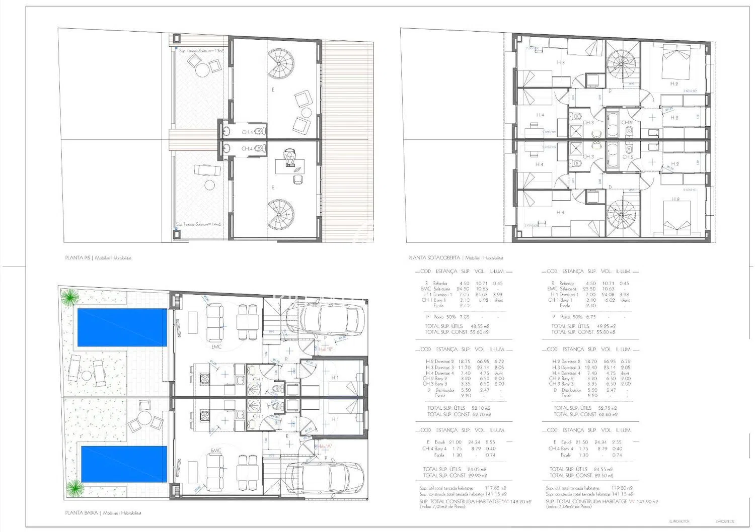
141 m² m2 zabudowane
4 Łazienki
3 Sypialnie
Pompa ciepła Ogrzewanie
Wliczone w cenę Garaż
3 Piętro

W dzielnicy La Collada w Vilanova i la Geltrú znajduje się nowoczesny dom bliźniaczy z ogrodem i basenem, który czeka na swoich pierwszych mieszkańców. Na parterze zaprojektowano przestronny salon-jadalnię z wyjściem do ogrodu, otwartą kuchnię z wyspą oraz łazienkę. Dostęp do domu możliwy jest zarówno przez garaż, jak i przez główne wejście z werandy.

Na pierwszym piętrze dysponujemy strefą nocną, składającą się z głównej sypialni z garderobą oraz dwóch dużych sypialni jednoosobowych z wbudowanymi szafami, które dzielą wspólną łazienkę. Drugie piętro to przestronne poddasze z toaletą i dostępem do tarasu, co czyni tę przestrzeń wyjątkowo praktyczną.

Dom znajduje się w spokojnej uliczce, co zapewnia prywatność i odpoczynek. Lokalizacja oferuje bliskość do szkół oraz podstawowych usług, a także świetne połączenia z centrum miasta dzięki komunikacji autobusowej. Szybki dojazd do autostrady C-32 oraz drogi wybrzeżowej C-31 czyni z tej nieruchomości idealne miejsce do życia dla rodzin, które cenią komfort i wygodę.

Charakterystyka nieruchomości

Complex information

  • Kompleks mieszkalny
    Merida
  • Rodzaj rynku
    Bliźniaki

Informacje o projekcie / Stan budowy

  • Rok oddania
    2025

Pamięć o Jakości

  • Stolarka wewnętrzna
    Wbudowane szafy
  • Ogrzewanie
    Pompa ciepła

Dane nieruchomości

  • Garaż
    Wliczone w cenę
  • Piętro
    3
  • Sypialnie
    3
  • Łazienki
    4
  • m2 zabudowane
    141 m²
  • Orientacja
    Wschód
  • Rodzaj nieruchomości
    Nowa budowa

Certyfikat energetyczny

  • Certyfikat energetyczny
    B
  • Emisje
    100 kg CO2/m² año
  • Zużycie energii
    En trámite

Udogodnienia

W budynku:

Basen
Ogród

Statystyki cen rynkowych dla Merida

Mapa

Barcelona, Vilanova i la Geltrú, La Collada - Sis Camins, Calle Mèrida, 3 Iść do tego miejsca
Zostaw opinię o Merida
0
0 recenzje
1
0% (0)
2
0% (0)
3
0% (0)
4
0% (0)
5
0% (0)
Premium Houses Sitges
Merida
Kompleks mieszkalny
398 000 €
od 2 823 € / m2
Kontakt z reklamodawcą

Aby uzyskać więcej informacji, skontaktuj się z platformą

REF: 227514

Opinie o Merida
Loading...

No reviews have been left for this object yet

Najbliższe nieruchomości

Poznaj pobliskie nieruchomości, które znaleźliśmy w pobliżu tej lokalizacji

Merida

Barcelona, Vilanova i la Geltrú, La Collada - Sis Camins, Calle Mèrida, 3
398 000 €

W dzielnicy La Collada w Vilanova i la Geltrú znajduje się nowoczesny dom bliźn...

0
0 recenzji

AH00238

Barcelona, Vilanova i la Geltrú, La Collada - Sis Camins, Calle de Mèrida, 3
398 000 €

Zapraszamy do zapoznania się z wyjątkową ofertą dwóch nowych domów jednorodzinn...

0
0 recenzji

Merce Rodoreda 23

Tarragona, Cunit, Rezydencjalny, Calle Merçe Rodoreda, 23
360 000 €

Te presentamos esta moderna vivienda pareada de OBRA NUEVA en la zona residencia...

0
0 recenzji

Używamy własnych plików cookie oraz plików cookie stron trzecich do analizy korzystania z witryny i wyświetlania reklam dopasowanych do Twoich preferencji, na podstawie profilu utworzonego na podstawie Twoich nawyków przeglądania (np. odwiedzonych stron). Więcej informacji. Czy akceptujesz pliki cookie?