Apartamentos en Venta en Calle Nuñez de Balboa, 43, Getafe

Madryt, Getafe, Getafe Centro, Calle Nuñez de Balboa, 43
Wyprzedaż
Zostaw recenzję
Mieszkania Rodzaj rynku
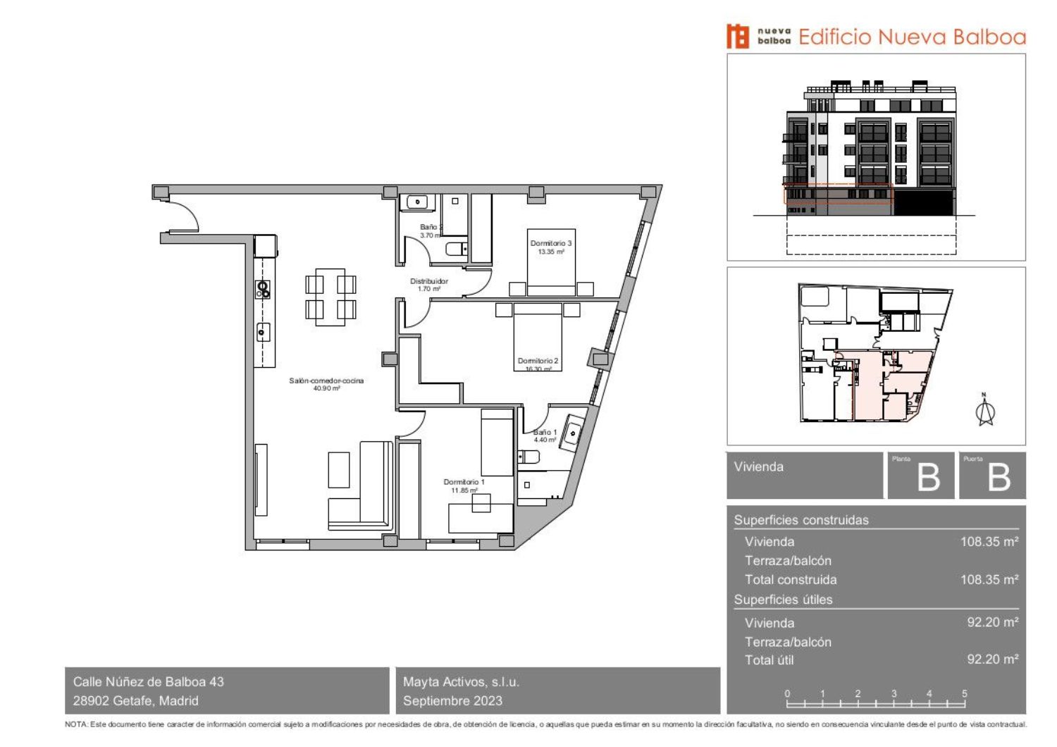
106 m² m2 zabudowane
2 Łazienki
3 Sypialnie
Ogrzewanie podłogowe Ogrzewanie
¡Ya tenemos Licencia de Obra! Por lo que ya falta menos para el inicio de este mágnifico desarrollo inmobiliario.¡Sólo quedan las últimas 5 viviendas disponibles!¡Bienvenido al Edificio Nueva Balboa! Si estás buscando un hogar excepcional en el corazón de Getafe, has llegado al lugar adecuado.Ofrecemos 16 viviendas de 1, 2 y 3 dormitorios, cada una diseñada con acabados de alta calidad y con acceso a su propia terraza privada o balcón. Además, todas las viviendas cuentan con trastero y opción de garaje para mayor comodidad.Pero eso no es todo, porque en el Edificio Nueva Balboa ofrecemos una experiencia única. ¿Te imaginas disfrutar de una minipiscina comunitaria en el centro de la ciudad? Sí, lo has leído bien. En nuestra promoción, contamos con un local comunitario que incluye una minipiscina para que puedas relajarte y disfrutar de tu tiempo libre sin salir de casa.Además, cada vivienda cuenta con sistema de aerotermia y calefacción con suelo radiante y refrescante, lo que te permite ahorrar en tu factura de energía y disfrutar de una temperatura agradable en cualquier época del año. Y para un mejor aprovechamiento del sistema de aerotermia, todas las viviendas tienen suelo de gres en toda la vivienda.Pero lo mejor de todo es su ubicación privilegiada en la calle Nuñez de Balboa, 43. Vivirás en el corazón de una ciudad vibrante, bien comunicada y llena de servicios y comodidades. Imagina salir de tu casa y encontrar todo lo que necesitas a pocos pasos de distancia. ¡No pierdas la oportunidad de vivir en un hogar excepcional en el centro de Getafe!¡Te esperamos en Edificio Nueva Balboa!Visítenos en nuestra web o local de venta y no tardes en decidirte para entrar en este ilusionante proyecto.

Charakterystyka nieruchomości

Complex information

  • Kompleks mieszkalny
    Edificio Nueva Balboa
  • Rodzaj rynku
    Mieszkania

Pamięć o Jakości

  • Ogrzewanie
    Ogrzewanie podłogowe

Dane nieruchomości

  • Sypialnie
    3
  • Łazienki
    2
  • m2 zabudowane
    106 m²
  • Rodzaj nieruchomości
    Nowa budowa

Udogodnienia

Udogodnienia mieszkania:

Magazyn
Ogrzewanie
Taras

W budynku:

Basen
Winda
Magazyn

Statystyki cen rynkowych dla Piso en venta en calle Nuñez de Balboa, 43

436 019 € (3 827 €/m2)
Średnia cena pierwotnego Mieszkania w mieście Getafe

Mapa

Madryt, Getafe, Getafe Centro, Calle Nuñez de Balboa, 43 Iść do tego miejsca
Zostaw opinię o Piso en venta en calle Nuñez de Balboa, 43
0
0 recenzje
1
0% (0)
2
0% (0)
3
0% (0)
4
0% (0)
5
0% (0)
Edificio Nueva Balboa
Kompleks mieszkalny
Wyprzedaż
Kontakt z reklamodawcą

Aby uzyskać więcej informacji, skontaktuj się z platformą

REF: 342

Opinie o Piso en venta en calle Nuñez de Balboa, 43
Loading...

No reviews have been left for this object yet

Najbliższe nieruchomości

Poznaj pobliskie nieruchomości, które znaleźliśmy w pobliżu tej lokalizacji

Apartamentos en Venta en Calle Urano, 2, Leganés

Madryt, Leganés, San Nicasio - Campo de Tiro - Solagua, Calle Urano, 2
426 000 €

¡Licencia de Obras concedida! Tu casa ideal en Leganés.“Residencial Juan de Aust...

0
0 recenzji

Apartamentos en Venta en Calle Nuñez de Balboa, 43, Getafe

Madryt, Getafe, Getafe Centro, Calle Nuñez de Balboa, 43
255 000 €

¡Ya tenemos Licencia de Obra! Por lo que ya falta menos para el inicio de este m...

0
0 recenzji

Apartamentos en Venta en Calle Urano, 2, Leganés

Madryt, Leganés, San Nicasio - Campo de Tiro - Solagua, Calle Urano, 2
360 300 €

¡Licencia de Obras concedida! Tu casa ideal en Leganés.“Residencial Juan de Aust...

0
0 recenzji

Apartamentos en Venta en Calle Nuñez de Balboa, 43, Getafe

Madryt, Getafe, Getafe Centro, Calle Nuñez de Balboa, 43
276 000 €

¡Ya tenemos Licencia de Obra! Por lo que ya falta menos para el inicio de este m...

0
0 recenzji

Apartamentos en Venta en Calle Urano, 2, Leganés

Madryt, Leganés, San Nicasio - Campo de Tiro - Solagua, Calle Urano, 2
392 700 €

¡Licencia de Obras concedida! Tu casa ideal en Leganés.“Residencial Juan de Aust...

0
0 recenzji

Apartamentos en Venta en Calle Nuñez de Balboa, 43, Getafe

Madryt, Getafe, Getafe Centro, Calle Nuñez de Balboa, 43
294 000 €

¡Ya tenemos Licencia de Obra! Por lo que ya falta menos para el inicio de este m...

0
0 recenzji

Apartamentos en Venta en Calle Urano, 2, Leganés

Madryt, Leganés, San Nicasio - Campo de Tiro - Solagua, Calle Urano, 2
452 900 €

¡Licencia de Obras concedida! Tu casa ideal en Leganés.“Residencial Juan de Aust...

0
0 recenzji

Apartamentos en Venta en Calle Urano, 2, Leganés

Madryt, Leganés, San Nicasio - Campo de Tiro - Solagua, Calle Urano, 2
399 600 €

¡Licencia de Obras concedida! Tu casa ideal en Leganés.“Residencial Juan de Aust...

0
0 recenzji

Apartamentos en Venta en Calle Urano, 2, Leganés

Madryt, Leganés, San Nicasio - Campo de Tiro - Solagua, Calle Urano, 2
448 900 €

¡Licencia de Obras concedida! Tu casa ideal en Leganés.“Residencial Juan de Aust...

0
0 recenzji

Używamy własnych plików cookie oraz plików cookie stron trzecich do analizy korzystania z witryny i wyświetlania reklam dopasowanych do Twoich preferencji, na podstawie profilu utworzonego na podstawie Twoich nawyków przeglądania (np. odwiedzonych stron). Więcej informacji. Czy akceptujesz pliki cookie?