Продажа отдельного шале в Calle Mestral, Алфаз дель Пи

Аликанте, Алфаз дель Пи, Альфаз дель Пи Пуэбло-Урбанисас, Calle Mestral
1 900 000 €
2 235 € / m2
Оставить отзыв
Отдельный шале Тип недвижимости
850 m² м2 построенных
7 Ванные комнаты
5 Спальни

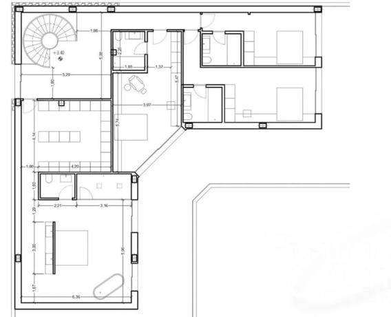
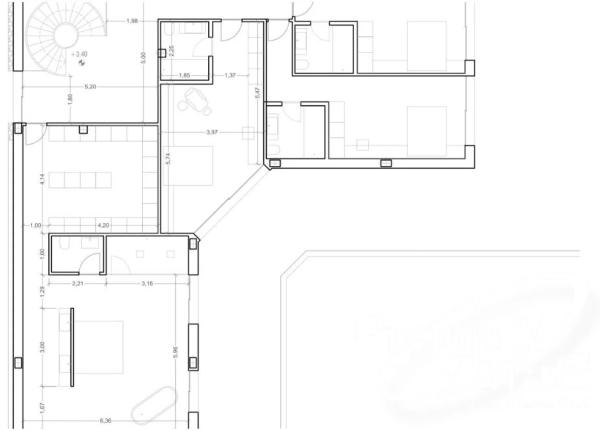
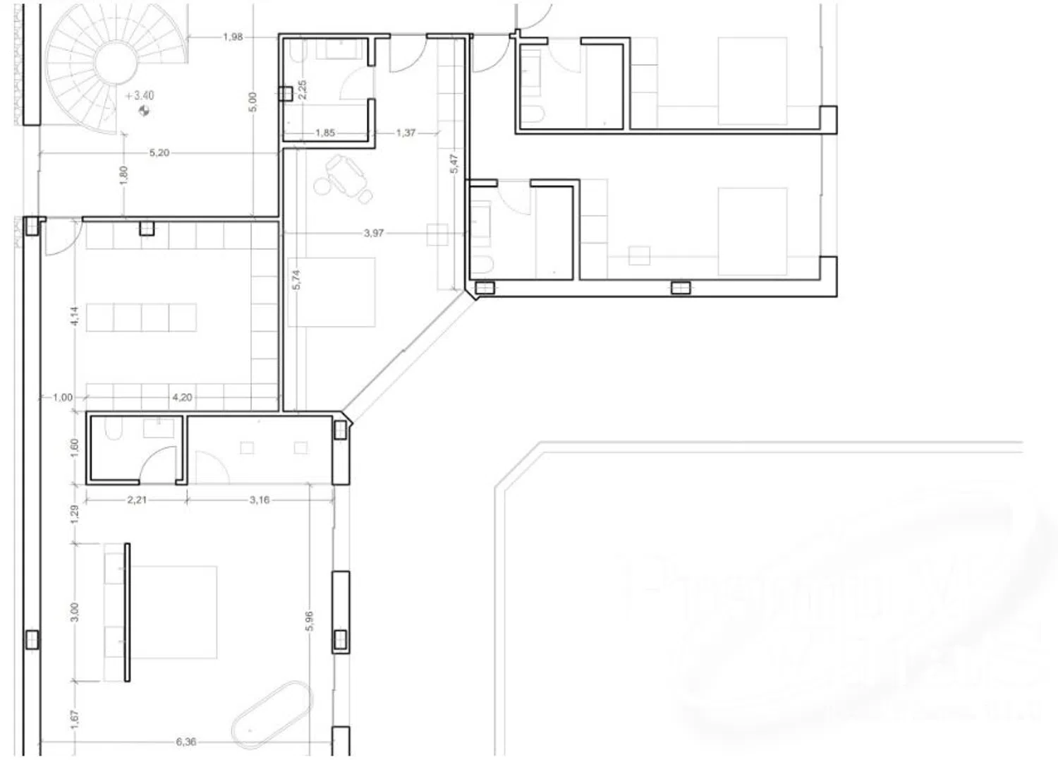
Эта впечатляющая современная вилла, находящаяся на стадии строительства, предлагает роскошный дизайн и высококачественные отделочные материалы. Просторная планировка включает в себя обширную гостиную и столовую в открытом формате, а кухня с большими стеклянными стенами наполняет пространство естественным светом и обеспечивает идеальный доступ к великолепной террасе на свежем воздухе.

Терасса, идеально подходящая для отдыха и развлечений, оборудована частным бассейном и зоной для отдыха, откуда можно наслаждаться захватывающими видами на море на побережье.

Ключевые особенности: 5 спален, каждая из которых имеет ванную комнату для максимального комфорта; на главном этаже находится спальня для гостей, кабинет, туалет для гостей и прямой выход в гараж. Просторный верхний этаж включает в себя универсальное пространство, которое можно использовать как тренажерный зал, игровую комнату или медитационное место. Также имеется летняя кухня на улице и дополнительный гараж для мотоциклов. Впечатляющая зона у бассейна оснащена встроенными местами, что делает её идеальной для проведения времени на свежем воздухе.

Эта вилла располагается в престижном районе, что обеспечивает эксклюзивность и уединение, оставаясь всего в нескольких минутах от побережья, славящегося своими морскими пейзажами и роскошной недвижимостью.

Не упустите возможность персонализировать виллу своей мечты в одном из самых желанных мест на побережье. Свяжитесь с нами сегодня, чтобы запланировать визит или получить дополнительную информацию о этой роскошной недвижимости.

Характеристики недвижимости

Complex information

  • Тип недвижимости
    Отдельный шале

Данные о недвижимости

  • Спальни
    5
  • Ванные комнаты
    7
  • м2 построенных
    850 m²
  • Тип дизайна
    Современный
  • Тип недвижимости
    Вторичка

Удобства

Удобства жилья:

Кондиционер
Терасса

В здании:

Бассейн
Сад
Частная парковка

Статистика рыночных цен на Chalet en calle Mestral

Карта

Аликанте, Алфаз дель Пи, Альфаз дель Пи Пуэбло-Урбанисас, Calle Mestral Поехать в это место
Оставьте отзыв о Chalet en calle Mestral
0
0 reviews
1
0% (0)
2
0% (0)
3
0% (0)
4
0% (0)
5
0% (0)
COSTA BLANCA INVESTMENTS
1 900 000 €
от 2 235 € / m2
Свяжитесь с рекламодателем

Для получения дополнительной информации свяжитесь с платформой

REF: 140687

Отзывы о Chalet en calle Mestral
Loading...

No reviews have been left for this object yet

Ближайшие объекты

Исследуйте близлежащие объекты, которые мы обнаружили неподалеку от этого местоположения.

Chalet independiente en Venta en Calle Rei Jaume I, 1, Polop

Аликанте, Полоп, Каско урбано, Calle Rei Jaume I, 1
650 000 €

¡Directo del Promotor! ¡Calidades Top! ¡Certificado energético A!Fantástica prom...

0
0 отзывов

Chalet independiente en Venta en Calle Rei Jaume I, 1, Polop

Аликанте, Полоп, Каско урбано, Calle Rei Jaume I, 1
595 000 €

¡Directo del Promotor! ¡Calidades Top! ¡Certificado energético A!Fantástica prom...

0
0 отзывов

Chalet independiente en Venta en Calle Rei Jaume I, 1, Polop

Аликанте, Полоп, Каско урбано, Calle Rei Jaume I, 1
650 000 €

¡Directo del Promotor! ¡Calidades Top! ¡Certificado energético A!Fantástica prom...

0
0 отзывов

Chalet independiente en Venta en Calle Rei Jaume I, 1, Polop

Аликанте, Полоп, Каско урбано, Calle Rei Jaume I, 1
650 000 €

¡Directo del Promotor! ¡Calidades Top! ¡Certificado energético A!Fantástica prom...

0
0 отзывов

Chalet independiente en Venta en Calle Rei Jaume I, 1, Polop

Аликанте, Полоп, Каско урбано, Calle Rei Jaume I, 1
595 000 €

¡Directo del Promotor! ¡Calidades Top! ¡Certificado energético A!Fantástica prom...

0
0 отзывов

Chalet independiente en Venta en Calle Rei Jaume I, 1, Polop

Аликанте, Полоп, Каско урбано, Calle Rei Jaume I, 1
595 000 €

¡Directo del Promotor! ¡Calidades Top! ¡Certificado energético A!Fantástica prom...

0
0 отзывов

Chalet independiente en Venta en Calle Turquesa , 4, Alfaz del Pi

Аликанте, Алфаз дель Пи, Калония Эскандинавия-Кавтивадор, Calle Turquesa , 4
667 000 €

PROMOCIÓN PIONERA EN LA COSTA BLANCA de 12 viviendas independientes con envolven...

0
0 отзывов

Chalet independiente en Venta en Calle Turquesa , 4, Alfaz del Pi

Аликанте, Алфаз дель Пи, Калония Эскандинавия-Кавтивадор, Calle Turquesa , 4
655 000 €

PROMOCIÓN PIONERA EN LA COSTA BLANCA de 12 viviendas independientes con envolven...

0
0 отзывов

Chalet independiente en Venta en Calle Turquesa , 4, Alfaz del Pi

Аликанте, Алфаз дель Пи, Калония Эскандинавия-Кавтивадор, Calle Turquesa , 4
595 000 €

PROMOCIÓN PIONERA EN LA COSTA BLANCA de 12 viviendas independientes con envolven...

0
0 отзывов
Звонок

Мы используем собственные и сторонние файлы cookie для анализа использования веб-сайта и показа вам рекламы, соответствующей вашим предпочтениям, на основе профиля, созданного по вашим привычкам просмотра (например, посещенные страницы). Подробнее. Вы принимаете файлы cookie?