Продажа квартиры на Avenida de la Estacion, Аликанте / Алакант

Аликанте, Аликанте / Алакант, Центро, Avenida de la Estacion
485 000 €
4 145 € / m2
Оставить отзыв
Квартиры Тип недвижимости
1971 Год сдачи
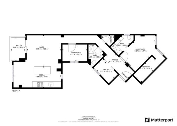
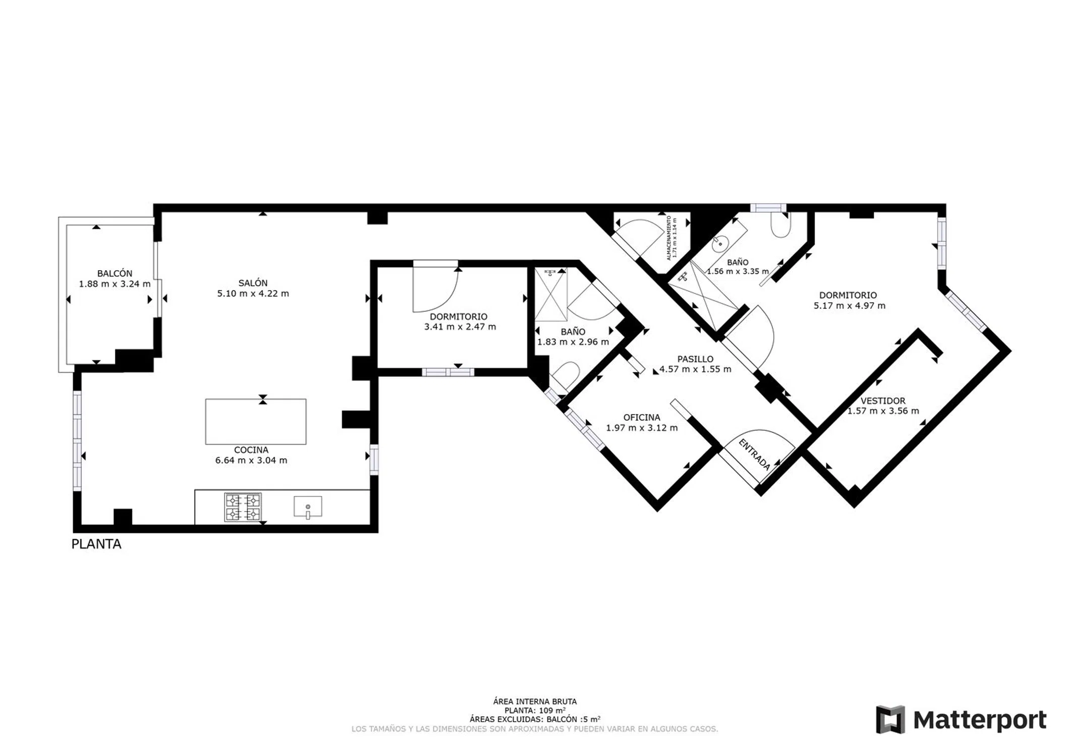
117 m² м2 построенных
101 m² м2 полезной площади
2 Ванные комнаты
3 Спальни
2 Планировка
Хорошее состояние Состояние недвижимости
Este exclusivo piso en Avenida de la Estación te ofrece 115 m² construidos distribuidos de forma funcional y cómoda: tres amplios dormitorios, dos baños completos, y una elegante cocina integrada con isla que conecta con el salón, creando un espacio abierto y luminoso perfecto para el día a día y el entretenimiento. El balcón, de 9 m², permite disfrutar del exterior con vistas despejadas y orientación mediodía, asegurando luz natural durante todo el día. Las calidades de esta vivienda destacan por su elegancia y confort: suelos porcelánicos de gran formato, paredes lisas y todos los electrodomésticos incluidos. El edificio cuenta con portero físico, lo que aporta un plus de seguridad y comodidad. Ubicado en uno de los ejes más cotizados de la ciudad, este piso se encuentra en pleno centro, con acceso directo a todo tipo de servicios: supermercados, transporte público, zonas verdes, centros educativos y una amplia oferta gastronómica y comercial. Una ubicación excelente para quienes buscan comodidad y conexión. La Avenida de la Estación es una de las arterias principales de Alicante. Nace frente a la estación de tren y conecta con la emblemática Plaza de los Luceros, siendo uno de los tramos más representativos del ensanche urbano de la ciudad. Históricamente, ha sido punto de entrada y referencia para quienes llegaban a Alicante por ferrocarril, y hoy es símbolo de una vida urbana activa, elegante y bien comunicada. ¿Quieres saber más o concertar una visita? � Contáctanos hoy mismo y descubre tu próxima vivienda en el corazón de Alicante.

Характеристики недвижимости

Complex information

  • Тип недвижимости
    Квартиры

Информация о проекте / Статус работы

  • Год сдачи
    1971
  • Состояние недвижимости
    Хорошее состояние

Данные о недвижимости

  • Планировка
    2
  • Спальни
    3
  • Ванные комнаты
    2
  • м2 построенных
    117 m²
  • м2 полезной площади
    101 m²
  • Тип недвижимости
    Вторичка

Base

Энергетическая сертификация

  • Энергоаудитный сертификат
    E
  • Эмиссии
    26 kg CO2/m² year
  • Энергопотребление
    129 kwh/m² year

Удобства

В здании:

Лифт

Вистас:

Чистые виды

Планы

Статистика рыночных цен на Piso en avenida de la Estación

326 001 € (3 421 €/m2)
Средняя цена на первичные Квартиры в городе Аликанте / Алакант
296 217 € (2 608 €/m2)
Средняя цена на вторичные Квартиры в городе Аликанте / Алакант
307 473 € (3 239 €/m2)
Средняя цена на первичные Квартиры в районе Центро
304 686 € (2 657 €/m2)
Средняя цена на вторичные Квартиры в районе Центро

Карта

Аликанте, Аликанте / Алакант, Центро, Avenida de la Estacion Поехать в это место
Оставьте отзыв о Piso en avenida de la Estación
0
0 reviews
1
0% (0)
2
0% (0)
3
0% (0)
4
0% (0)
5
0% (0)
Lae Homes - Alicante
485 000 €
от 4 145 € / m2
Свяжитесь с рекламодателем

Для получения дополнительной информации свяжитесь с платформой

REF: 247255

Отзывы о Piso en avenida de la Estación
Loading...

No reviews have been left for this object yet

Ближайшие объекты

Исследуйте близлежащие объекты, которые мы обнаружили неподалеку от этого местоположения.

Apartamentos en Venta en Calle Deportista Pitu Perramón, 3, Alicante / Alacant

Аликанте, Аликанте / Алакант, Сан-Блас-Пау, Calle Deportista Pitu Perramón, 3
228 800 €

AEDAS Homes lanza una moderna y exclusiva promoción de 28 viviendas de 2 y 3 hab...

0
0 отзывов

Apartamentos en Venta en Calle Deportista Pitu Perramón, 3, Alicante / Alacant

Аликанте, Аликанте / Алакант, Сан-Блас-Пау, Calle Deportista Pitu Perramón, 3
308 400 €

AEDAS Homes lanza una moderna y exclusiva promoción de 28 viviendas de 2 y 3 hab...

0
0 отзывов

Apartamentos en Venta en Calle Deportista Pitu Perramón, 3, Alicante / Alacant

Аликанте, Аликанте / Алакант, Сан-Блас-Пау, Calle Deportista Pitu Perramón, 3
216 000 €

AEDAS Homes lanza una moderna y exclusiva promoción de 28 viviendas de 2 y 3 hab...

0
0 отзывов

Apartamentos en Venta en Calle Deportista Pitu Perramón, 3, Alicante / Alacant

Аликанте, Аликанте / Алакант, Сан-Блас-Пау, Calle Deportista Pitu Perramón, 3
262 350 €

AEDAS Homes lanza una moderna y exclusiva promoción de 28 viviendas de 2 y 3 hab...

0
0 отзывов

Apartamentos en Venta en Calle Deportista Pitu Perramón, 3, Alicante / Alacant

Аликанте, Аликанте / Алакант, Сан-Блас-Пау, Calle Deportista Pitu Perramón, 3
281 750 €

AEDAS Homes lanza una moderna y exclusiva promoción de 28 viviendas de 2 y 3 hab...

0
0 отзывов

Apartamentos en Venta en Calle Deportista Pitu Perramón, 3, Alicante / Alacant

Аликанте, Аликанте / Алакант, Сан-Блас-Пау, Calle Deportista Pitu Perramón, 3
216 000 €

AEDAS Homes lanza una moderna y exclusiva promoción de 28 viviendas de 2 y 3 hab...

0
0 отзывов

Apartamentos en Venta en Calle Deportista Pitu Perramón, 3, Alicante / Alacant

Аликанте, Аликанте / Алакант, Сан-Блас-Пау, Calle Deportista Pitu Perramón, 3
373 250 €

AEDAS Homes lanza una moderna y exclusiva promoción de 28 viviendas de 2 y 3 hab...

0
0 отзывов

Apartamentos en Venta en Calle Deportista Pitu Perramón, 3, Alicante / Alacant

Аликанте, Аликанте / Алакант, Сан-Блас-Пау, Calle Deportista Pitu Perramón, 3
280 260 €

AEDAS Homes lanza una moderna y exclusiva promoción de 28 viviendas de 2 y 3 hab...

0
0 отзывов

Apartamentos en Venta en Calle Deportista Pitu Perramón, 3, Alicante / Alacant

Аликанте, Аликанте / Алакант, Сан-Блас-Пау, Calle Deportista Pitu Perramón, 3
278 750 €

AEDAS Homes lanza una moderna y exclusiva promoción de 28 viviendas de 2 y 3 hab...

0
0 отзывов
Звонок

Мы используем собственные и сторонние файлы cookie для анализа использования веб-сайта и показа вам рекламы, соответствующей вашим предпочтениям, на основе профиля, созданного по вашим привычкам просмотра (например, посещенные страницы). Подробнее. Вы принимаете файлы cookie?