Продажа квартиры на Barrio Carolinas Bajas, Аликанте / Алакант

Аликанте, Аликанте / Алакант, Кампоамор-Каролины-Альтозано, Barrio Carolinas Bajas
158 000 €
1 463 € / m2
Оставить отзыв
Квартиры Тип недвижимости
1974 Год сдачи
108 m² м2 построенных
90 m² м2 полезной площади
2 Ванные комнаты
3 Спальни
Хорошее состояние Состояние недвижимости
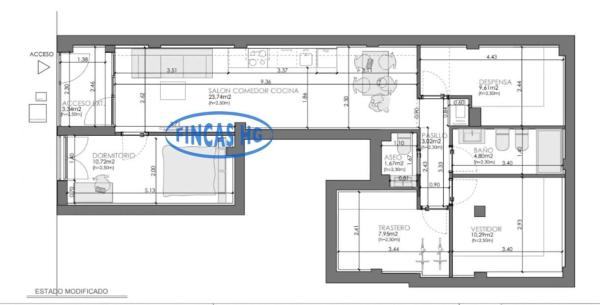
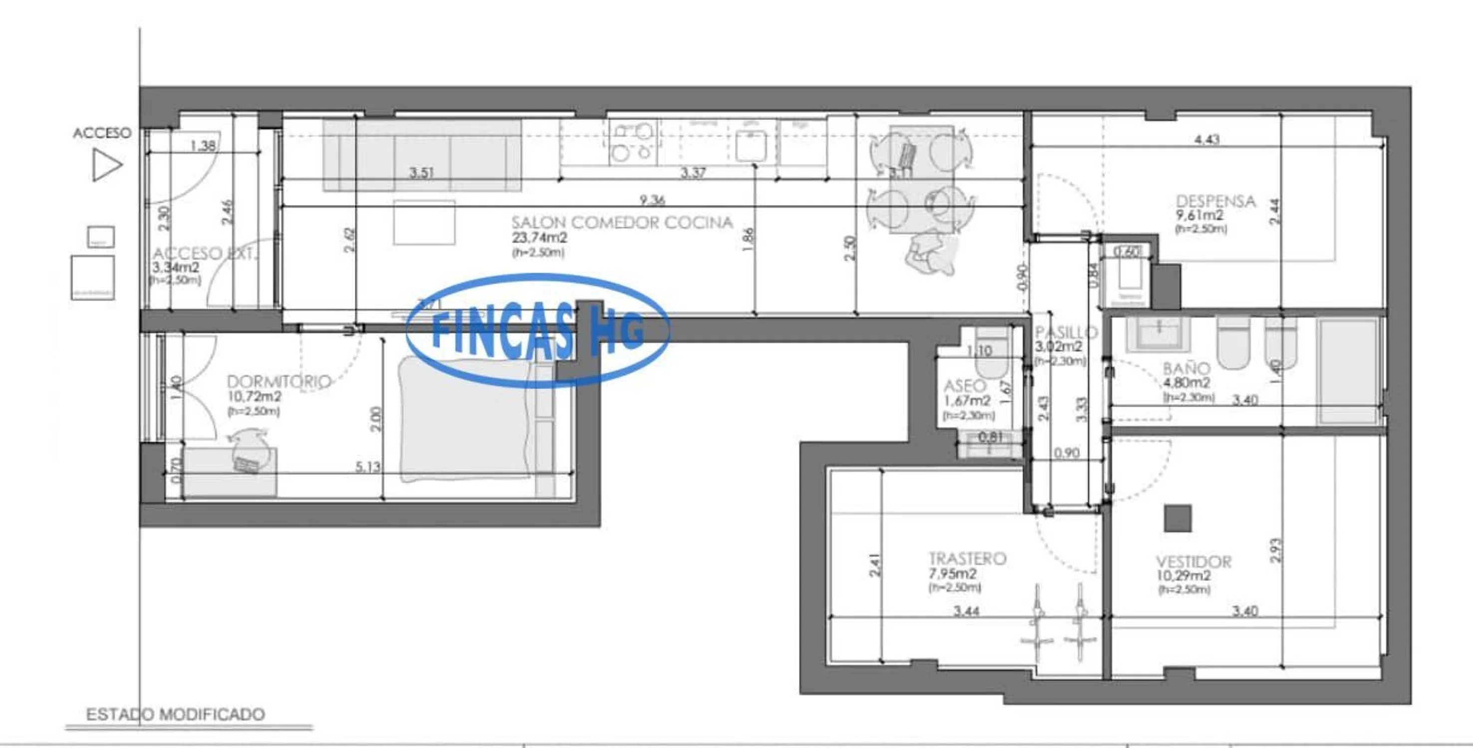
Planta baja actualmente en reforma integral! Se trata de un local con cambio de uso ubicado en el barrio de Campoamor. Se entrega completamente reformado y amueblado para el mes de Octubre. Contará con cuatro dependencias para gestionar su uso, además de un estupendo salón comedor con la cocina integrada, y un baño completo mas aseo. Hay un dormitorio principal definido y dará al frente y los otros tres tendrán ventilación mecánica. Todo se puede visualizar el los planos. Esta descripción solo se presenta con carácter informativo, sin vincular a la inmobiliaria de forma contractual. Las imágenes que contiene este anuncio, pueden sufrir cambios y/o modificaciones. Fincas HG, es miembro de APEI (Asociación profesional de expertos inmobiliarios), con numero de afiliación 3245.

Характеристики недвижимости

Complex information

  • Тип недвижимости
    Квартиры

Информация о проекте / Статус работы

  • Год сдачи
    1974
  • Состояние недвижимости
    Хорошее состояние

Данные о недвижимости

  • Спальни
    3
  • Ванные комнаты
    2
  • м2 построенных
    108 m²
  • м2 полезной площади
    90 m²
  • Тип недвижимости
    Вторичка

Base

Энергетическая сертификация

  • Состояние энергетического сертификата
    Не указано

Удобства

Эстадо:

Хорошее состояние

Статистика рыночных цен на Piso en Barrio Carolinas Bajas

326 001 € (3 421 €/m2)
Средняя цена на первичные Квартиры в городе Аликанте / Алакант
296 217 € (2 608 €/m2)
Средняя цена на вторичные Квартиры в городе Аликанте / Алакант
222 477 € (3 197 €/m2)
Средняя цена на первичные Квартиры в районе Кампоамор-Каролины-Альтозано
183 079 € (1 544 €/m2)
Средняя цена на вторичные Квартиры в районе Кампоамор-Каролины-Альтозано

Карта

Аликанте, Аликанте / Алакант, Кампоамор-Каролины-Альтозано, Barrio Carolinas Bajas Поехать в это место
Оставьте отзыв о Piso en Barrio Carolinas Bajas
0
0 reviews
1
0% (0)
2
0% (0)
3
0% (0)
4
0% (0)
5
0% (0)
Fincas Hg
158 000 €
от 1 463 € / m2
Свяжитесь с рекламодателем

Для получения дополнительной информации свяжитесь с платформой

REF: 361114

Отзывы о Piso en Barrio Carolinas Bajas
Loading...

No reviews have been left for this object yet

Дешевые квартиры 64626 Квартиры для ремонта 21902 Квартиры до 50.000€ 18663 Квартиры до 100.000€ 20261 Дома до 100.000€ 20261 Квартиры с видом на море 19409 Элитные квартиры 19115 Недорогие новые квартиры 37510 Продажа квартир с 2 спальнями Аликанте 22543 Продажа квартир 3 комнаты Аликанте 20511 Продажа квартир 4 комнаты Аликанте 14419 Продажа квартир 5 комнат Аликанте 13153 Квартиры в хорошем состоянии Аликанте 15864 Квартиры для ремонта Аликанте 15406 Вторичные квартиры Аликанте 33569 Квартиры с видом на море Аликанте 13120 Недорогие квартиры Аликанте 34304 Квартиры на продажу с лифтом Аликанте 27435 Квартиры до 50.000€ Аликанте 13233 Квартиры до 100.000€ Аликанте 14260 Квартиры новостройки Аликанте 13671 Квартиры класса люкс Аликанте 13110 Квартиры с окнами на улицу Аликанте 13134 Недорогие новые квартиры Аликанте 13671 Продажа квартир 2 комнаты Аликанте / Алакант 150 Продажа квартир 3 спальни Аликанте / Алакант 140 Продажа квартир 4 комнаты Аликанте / Алакант 117 Продажа квартир 5 комнат Аликанте / Алакант 111 Квартиры в хорошем состоянии Аликанте / Алакант 111 Квартиры для ремонта Аликанте / Алакант 111 Вторичное жильё Аликанте / Алакант 111 Квартиры с видом на海 Аликанте / Алакант 117 Дешевые квартиры Аликанте / Алакант 197 Квартиры на продажу с лифтом Аликанте / Алакант 180 Квартиры до 100.000€ Аликанте / Алакант 111 Новые квартиры Аликанте / Алакант 179 Квартиры до 50.000€ Аликанте / Алакант 111 Элитные квартиры Аликанте / Алакант 111 Квартиры с окнами на улицу Аликанте / Алакант 114 Дешевые новые квартиры Аликанте / Алакант 179

Ближайшие объекты

Исследуйте близлежащие объекты, которые мы обнаружили неподалеку от этого местоположения.

Apartamentos en Venta en Calle Deportista Pitu Perramón, 3, Alicante / Alacant

Аликанте, Аликанте / Алакант, Сан-Блас-Пау, Calle Deportista Pitu Perramón, 3
228 800 €

AEDAS Homes lanza una moderna y exclusiva promoción de 28 viviendas de 2 y 3 hab...

0
0 отзывов

Apartamentos en Venta en Calle Deportista Pitu Perramón, 3, Alicante / Alacant

Аликанте, Аликанте / Алакант, Сан-Блас-Пау, Calle Deportista Pitu Perramón, 3
308 400 €

AEDAS Homes lanza una moderna y exclusiva promoción de 28 viviendas de 2 y 3 hab...

0
0 отзывов

Apartamentos en Venta en Calle Deportista Pitu Perramón, 3, Alicante / Alacant

Аликанте, Аликанте / Алакант, Сан-Блас-Пау, Calle Deportista Pitu Perramón, 3
216 000 €

AEDAS Homes lanza una moderna y exclusiva promoción de 28 viviendas de 2 y 3 hab...

0
0 отзывов

Apartamentos en Venta en Calle Deportista Pitu Perramón, 3, Alicante / Alacant

Аликанте, Аликанте / Алакант, Сан-Блас-Пау, Calle Deportista Pitu Perramón, 3
262 350 €

AEDAS Homes lanza una moderna y exclusiva promoción de 28 viviendas de 2 y 3 hab...

0
0 отзывов

Apartamentos en Venta en Calle Deportista Pitu Perramón, 3, Alicante / Alacant

Аликанте, Аликанте / Алакант, Сан-Блас-Пау, Calle Deportista Pitu Perramón, 3
281 750 €

AEDAS Homes lanza una moderna y exclusiva promoción de 28 viviendas de 2 y 3 hab...

0
0 отзывов

Apartamentos en Venta en Calle Deportista Pitu Perramón, 3, Alicante / Alacant

Аликанте, Аликанте / Алакант, Сан-Блас-Пау, Calle Deportista Pitu Perramón, 3
216 000 €

AEDAS Homes lanza una moderna y exclusiva promoción de 28 viviendas de 2 y 3 hab...

0
0 отзывов

Apartamentos en Venta en Calle Deportista Pitu Perramón, 3, Alicante / Alacant

Аликанте, Аликанте / Алакант, Сан-Блас-Пау, Calle Deportista Pitu Perramón, 3
373 250 €

AEDAS Homes lanza una moderna y exclusiva promoción de 28 viviendas de 2 y 3 hab...

0
0 отзывов

Apartamentos en Venta en Calle Deportista Pitu Perramón, 3, Alicante / Alacant

Аликанте, Аликанте / Алакант, Сан-Блас-Пау, Calle Deportista Pitu Perramón, 3
280 260 €

AEDAS Homes lanza una moderna y exclusiva promoción de 28 viviendas de 2 y 3 hab...

0
0 отзывов

Apartamentos en Venta en Calle Deportista Pitu Perramón, 3, Alicante / Alacant

Аликанте, Аликанте / Алакант, Сан-Блас-Пау, Calle Deportista Pitu Perramón, 3
278 750 €

AEDAS Homes lanza una moderna y exclusiva promoción de 28 viviendas de 2 y 3 hab...

0
0 отзывов
Звонок

Мы используем собственные и сторонние файлы cookie для анализа использования веб-сайта и показа вам рекламы, соответствующей вашим предпочтениям, на основе профиля, созданного по вашим привычкам просмотра (например, посещенные страницы). Подробнее. Вы принимаете файлы cookie?