Local en Barrio Ensanche-Diputación

Аликанте, Аликанте / Алакант, Центро, Barrio Ensanche-Diputación
325 000 €
1 300 € / m2
Оставить отзыв
Коммерческие помещения Тип недвижимости
250 m² м2 построенных
Хорошее состояние Состояние недвижимости
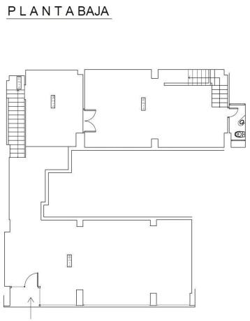
Excelente local comercial en el centro de Alicante, a escasos metros de la Plaza Luceros y la estación de tren AVE. En una amplia avenida con tránsito de gente y flujo de vehículos. El local tiene una superficie total de 250 m2, distribuidos en 160 m2 en planta baja y 90 m2 en naya. Tiene una facha de 14 metros lineales aproximadamente. También mencionar la posibilidad de habilitar la salida de humos. Aportamos planos de la planta baja así como la naya Ideal para inversores o emprendedores y montar su propio negocio.. . El presente documento tiene carácter meramente informativo, orientativo y no vinculante, por lo que no supone información contractual alguna, siendo su uso estrictamente comercial. De acuerdo con el Decreto 98/2022 de 29 de julio de 2022, del Consell de la Comunitat Valenciana requerido y obligatorio por el que se regula el Registro de Agentes de Intermediación Inmobiliaria de la Comunitat, “Albertus Real Estate” está inscrita en dicho registro, con el número RAICV2407. [IW].

Характеристики недвижимости

Complex information

  • Тип недвижимости
    Коммерческие помещения

Информация о проекте / Статус работы

  • Состояние недвижимости
    Хорошее состояние

Данные о недвижимости

  • м2 построенных
    250 m²
  • Тип недвижимости
    Вторичка

Base

Удобства

Удобства жилья:

Кондиционер

Эстадо:

Хорошее состояние

Планы

Статистика рыночных цен на Local en Barrio Ensanche-Diputación

Карта

Аликанте, Аликанте / Алакант, Центро, Barrio Ensanche-Diputación Поехать в это место
Оставьте отзыв о Local en Barrio Ensanche-Diputación
0
0 reviews
1
0% (0)
2
0% (0)
3
0% (0)
4
0% (0)
5
0% (0)
Albertus Real Estate
325 000 €
от 1 300 € / m2
Свяжитесь с рекламодателем

Для получения дополнительной информации свяжитесь с платформой

REF: 322730

Отзывы о Local en Barrio Ensanche-Diputación
Loading...

No reviews have been left for this object yet

Ближайшие объекты

Исследуйте близлежащие объекты, которые мы обнаружили неподалеку от этого местоположения.

Locales comerciales en Venta en Calle San Vicente, 3, Alicante / Alacant

Аликанте, Аликанте / Алакант, Центро, Calle San Vicente, 3
1 550 000 €

Local de 700m2 en venta muy próximo al Mercado Central y la Rambla, y junto a un...

0
0 отзывов

Obra nueva Oficinas, Urb.El Parque - Alicante en Alicante / Alacant

Аликанте, Аликанте / Алакант, Центро, Carrer Arquebisbe Loaces
231 000 €

Promoción de oficinas y locales comerciales en venta en Alicante. ¿Buscas un inm...

0
0 отзывов

Obra nueva Irala en Alicante / Alacant

Аликанте, Аликанте / Алакант, Сан-Блас-Пау, Plaza Juan Pablo II s/n
140 000 €

La promoción , compuesta por 173 viviendas de 1, 2, 3 y 4 dormitorios con plaza...

0
0 отзывов

Obra nueva Irala en Alicante / Alacant

Аликанте, Аликанте / Алакант, Сан-Блас-Пау, Plaza Juan Pablo II s/n
145 000 €

La promoción , compuesta por 173 viviendas de 1, 2, 3 y 4 dormitorios con plaza...

0
0 отзывов

Obra nueva Irala en Alicante / Alacant

Аликанте, Аликанте / Алакант, Сан-Блас-Пау, Plaza Juan Pablo II s/n
155 000 €

La promoción , compuesta por 173 viviendas de 1, 2, 3 y 4 dormitorios con plaza...

0
0 отзывов

Obra nueva Irala en Alicante / Alacant

Аликанте, Аликанте / Алакант, Сан-Блас-Пау, Plaza Juan Pablo II s/n
165 000 €

La promoción , compuesta por 173 viviendas de 1, 2, 3 y 4 dormitorios con plaza...

0
0 отзывов

Obra nueva Irala en Alicante / Alacant

Аликанте, Аликанте / Алакант, Сан-Блас-Пау, Plaza Juan Pablo II s/n
170 000 €

La promoción , compuesta por 173 viviendas de 1, 2, 3 y 4 dormitorios con plaza...

0
0 отзывов

Locales comerciales en Venta en Avenida Catedratico Soler, 5 M5, Alicante / Alacant

Аликанте, Аликанте / Алакант, Беналуа-Ла Флорида-Бабель-Сан Габриэль, Avenida Catedratico Soler, 5 M5
131 000 €

Metrovacesa te presenta Thalassa, promoción de 47 viviendas con 2, 3 y 4 habitac...

0
0 отзывов

Local en venta en Benalúa

Аликанте, Аликанте / Алакант, Беналуа-Ла Флорида-Бабель-Сан Габриэль
372 600 €

Este local comercial en venta, con una superficie de 256 m², se encuentra en una...

0
0 отзывов
Звонок

Мы используем собственные и сторонние файлы cookie для анализа использования веб-сайта и показа вам рекламы, соответствующей вашим предпочтениям, на основе профиля, созданного по вашим привычкам просмотра (например, посещенные страницы). Подробнее. Вы принимаете файлы cookie?