Local en Barrio San Agustín

Аликанте, Аликанте / Алакант, Лос-Анджелес-Томбола-Сан Николас, Barrio San Agustín
127 000 €
1 000 € / m2
Оставить отзыв
Коммерческие помещения Тип недвижимости
2 Ванные комнаты
127 m² м2 построенных
Для ремонта Состояние недвижимости
Поле или опция 'Да' Электроснабжение
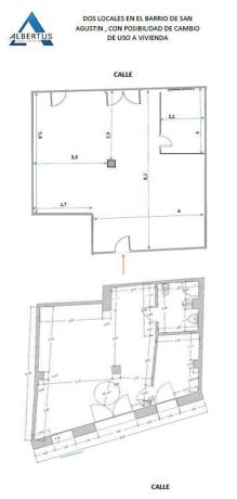
Disponemos de dos locales adosados, que lindan a dos calles en el barrio de San Agustín. Zona tranquila, buenas comunicaciones de bus, comercios, etc.. . A escasos metros del mercadillo de Teulada, y Estadio Rico Pérez, zonas deportivas, etc. y a tan solo 20 minutos caminando al centro de Alicante y la Universidad de Alicante a 2 km. Los locales están unidos el uno del otro y cada uno tiene puerta independiente a cada calle.. . Tiene una altura de 3,6 m, y la superficie de cada uno es de 62 y 65 m2 respectivamente, en total, 127 m2. Dispone de alta de agua y electricidad, e igualmente de cédula de habitabilidad. El estado de los locales estarían para hacer una reforma integral Esto hace muy interesante para un cambio de uso a vivienda y hacer dos pisos bajos o bien uno solamente.. . Ideal para inversores o aquel particular que quiera hacer una vivienda de 127 m2 bien comunicada Aportamos un plano identificativo de ambos locales El presente documento tiene carácter meramente informativo, orientativo y no vinculante, por lo que no supone información contractual alguna, siendo su uso estrictamente comercial. De acuerdo con el Decreto 98/2022 de 29 de julio de 2022, del Consell de la Comunitat Valenciana requerido y obligatorio por el que se regula el Registro de Agentes de Intermediación Inmobiliaria de la Comunitat, “Albertus Real Estate” está inscrita en dicho registro, con el número RAICV2407. [IW].

Характеристики недвижимости

Complex information

  • Тип недвижимости
    Коммерческие помещения

Информация о проекте / Статус работы

  • Состояние недвижимости
    Для ремонта

Данные о недвижимости

  • Ванные комнаты
    2
  • м2 построенных
    127 m²
  • Тип недвижимости
    Вторичка

Base

  • Электроснабжение
    Поле или опция 'Да'

Удобства

Суминстро:

С электричеством

Эстадо:

Для реформирования

Планы

Статистика рыночных цен на Local en Barrio San Agustín

Карта

Аликанте, Аликанте / Алакант, Лос-Анджелес-Томбола-Сан Николас, Barrio San Agustín Поехать в это место
Оставьте отзыв о Local en Barrio San Agustín
0
0 reviews
1
0% (0)
2
0% (0)
3
0% (0)
4
0% (0)
5
0% (0)
Albertus Real Estate
127 000 €
от 1 000 € / m2
Свяжитесь с рекламодателем

Для получения дополнительной информации свяжитесь с платформой

REF: 322525

Отзывы о Local en Barrio San Agustín
Loading...

No reviews have been left for this object yet

Ближайшие объекты

Исследуйте близлежащие объекты, которые мы обнаружили неподалеку от этого местоположения.

Locales comerciales en Venta en Calle San Vicente, 3, Alicante / Alacant

Аликанте, Аликанте / Алакант, Центро, Calle San Vicente, 3
1 550 000 €

Local de 700m2 en venta muy próximo al Mercado Central y la Rambla, y junto a un...

0
0 отзывов

Obra nueva Oficinas, Urb.El Parque - Alicante en Alicante / Alacant

Аликанте, Аликанте / Алакант, Центро, Carrer Arquebisbe Loaces
231 000 €

Promoción de oficinas y locales comerciales en venta en Alicante. ¿Buscas un inm...

0
0 отзывов

Obra nueva Irala en Alicante / Alacant

Аликанте, Аликанте / Алакант, Сан-Блас-Пау, Plaza Juan Pablo II s/n
140 000 €

La promoción , compuesta por 173 viviendas de 1, 2, 3 y 4 dormitorios con plaza...

0
0 отзывов

Obra nueva Irala en Alicante / Alacant

Аликанте, Аликанте / Алакант, Сан-Блас-Пау, Plaza Juan Pablo II s/n
145 000 €

La promoción , compuesta por 173 viviendas de 1, 2, 3 y 4 dormitorios con plaza...

0
0 отзывов

Obra nueva Irala en Alicante / Alacant

Аликанте, Аликанте / Алакант, Сан-Блас-Пау, Plaza Juan Pablo II s/n
155 000 €

La promoción , compuesta por 173 viviendas de 1, 2, 3 y 4 dormitorios con plaza...

0
0 отзывов

Obra nueva Irala en Alicante / Alacant

Аликанте, Аликанте / Алакант, Сан-Блас-Пау, Plaza Juan Pablo II s/n
165 000 €

La promoción , compuesta por 173 viviendas de 1, 2, 3 y 4 dormitorios con plaza...

0
0 отзывов

Obra nueva Irala en Alicante / Alacant

Аликанте, Аликанте / Алакант, Сан-Блас-Пау, Plaza Juan Pablo II s/n
170 000 €

La promoción , compuesta por 173 viviendas de 1, 2, 3 y 4 dormitorios con plaza...

0
0 отзывов

Locales comerciales en Venta en Avenida Catedratico Soler, 5 M5, Alicante / Alacant

Аликанте, Аликанте / Алакант, Беналуа-Ла Флорида-Бабель-Сан Габриэль, Avenida Catedratico Soler, 5 M5
131 000 €

Metrovacesa te presenta Thalassa, promoción de 47 viviendas con 2, 3 y 4 habitac...

0
0 отзывов

Local en venta en Benalúa

Аликанте, Аликанте / Алакант, Беналуа-Ла Флорида-Бабель-Сан Габриэль
372 600 €

Este local comercial en venta, con una superficie de 256 m², se encuentra en una...

0
0 отзывов
Звонок

Мы используем собственные и сторонние файлы cookie для анализа использования веб-сайта и показа вам рекламы, соответствующей вашим предпочтениям, на основе профиля, созданного по вашим привычкам просмотра (например, посещенные страницы). Подробнее. Вы принимаете файлы cookie?