Продажа квартиры на Playa de Poniente, Бенидорм

Аликанте, Бенидорм, Плая де Поньенте, Playa de Poniente
1 650 000 €
5 556 € / m2
Оставить отзыв
Квартиры Тип недвижимости
3 Спальни
2022 Год сдачи
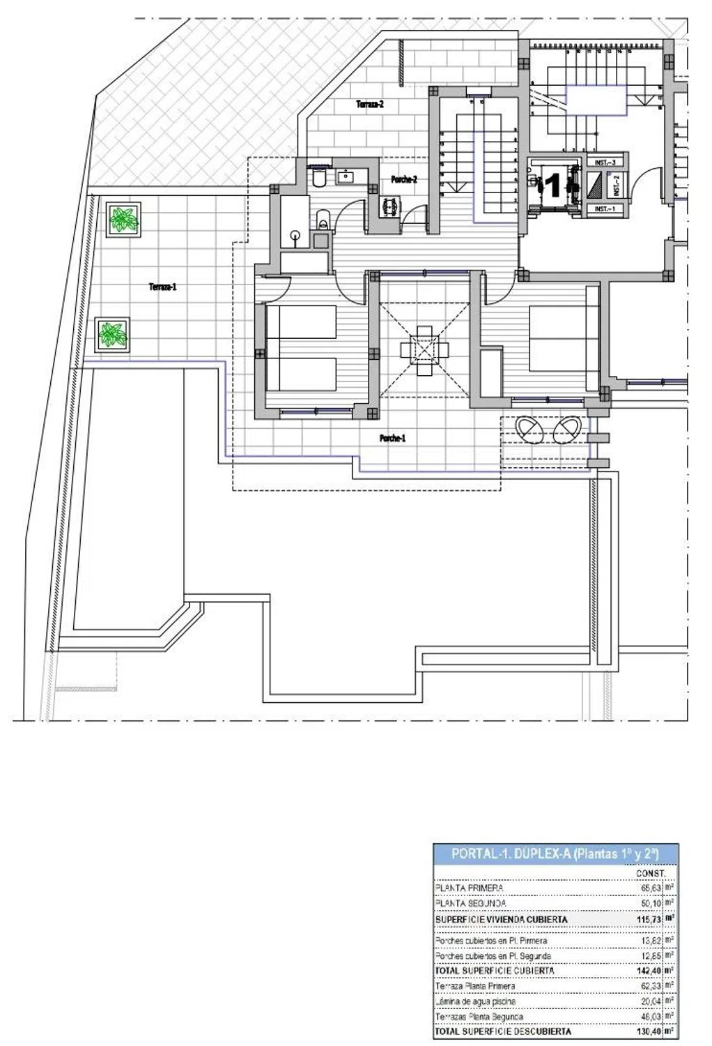
297 m² м2 построенных
96 m² м2 полезной площади
2 Ванные комнаты
Включено в цену Гараж
Хорошее состояние Состояние недвижимости
¡Bienvenido a este increíble dúplex en primera línea de la playa en Benidorm! Ubicado en la hermosa área de Playa de Poniente, este apartamento de alta calidad te ofrece una experiencia moderna y lujosa. Construido en el año 2022, esta promoción ha sido meticulosamente diseñada con materiales de primera calidad para hacer realidad tus sueños de vivir junto al mar. Con una superficie útil de 96 m2 y una superficie construida de 297 m2, este dúplex te brinda un amplio espacio para disfrutar. Consta de tres dormitorios, perfectos para acomodar a tu familia o invitados, y dos baños elegantes y modernos que te ofrecen comodidad y privacidad. Imagina despertar cada mañana con unas impresionantes vistas al mar desde tu habitación. Este dúplex te ofrece exactamente eso, permitiéndote deleitarte con la belleza del océano desde la comodidad de tu hogar. Además, cuenta con un salón luminoso y acogedor, ideal para relajarte después de un día soleado en la playa. La cocina totalmente equipada te brinda todas las comodidades necesarias para preparar deliciosas comidas y disfrutar de momentos especiales con tus seres queridos. Los acabados de alta calidad y el diseño moderno de esta propiedad realzan su elegancia y estilo. Construido pensando en tu comodidad y estilo de vida, este dúplex en primera línea de la playa en Benidorm es verdaderamente un sueño hecho realidad. Disfruta de las bondades del mar Mediterráneo, la brisa marina y la serenidad de la costa mientras te relajas en tu nuevo hogar. No pierdas la oportunidad de adquirir este maravilloso dúplex en una ubicación privilegiada. ¡Ven y descubre la vida de lujo en Benidorm!

Характеристики недвижимости

Complex information

  • Тип недвижимости
    Квартиры

Информация о проекте / Статус работы

  • Год сдачи
    2022
  • Состояние недвижимости
    Хорошее состояние

Данные о недвижимости

  • Гараж
    Включено в цену
  • Спальни
    3
  • Ванные комнаты
    2
  • м2 построенных
    297 m²
  • м2 полезной площади
    96 m²
  • Ориентация
    Юг
  • Тип недвижимости
    Вторичка

Base

Энергетическая сертификация

  • Состояние энергетического сертификата
    В процессе оформления

Удобства

Удобства жилья:

Кондиционер
Кладовка
Терасса

В здании:

Бассейн
Лифт
Частная парковка

Вистас:

Виды на море

Эстадо:

Хорошее состояние

Статистика рыночных цен на Piso en Playa de Poniente

828 312 € (6 798 €/m2)
Средняя цена на первичные Квартиры в городе Бенидорм
326 144 € (3 413 €/m2)
Средняя цена на вторичные Квартиры в городе Бенидорм
957 478 € (5 739 €/m2)
Средняя цена на первичные Квартиры в районе Плая де Поньенте
499 745 € (4 045 €/m2)
Средняя цена на вторичные Квартиры в районе Плая де Поньенте

Карта

Аликанте, Бенидорм, Плая де Поньенте, Playa de Poniente Поехать в это место
Оставьте отзыв о Piso en Playa de Poniente
0
0 reviews
1
0% (0)
2
0% (0)
3
0% (0)
4
0% (0)
5
0% (0)
Bella Villa Mediterranea
1 650 000 €
от 5 556 € / m2
Свяжитесь с рекламодателем

Для получения дополнительной информации свяжитесь с платформой

REF: 362262

Отзывы о Piso en Playa de Poniente
Loading...

No reviews have been left for this object yet

Дешевые квартиры 64626 Квартиры для ремонта 21902 Квартиры до 50.000€ 18663 Квартиры до 100.000€ 20261 Дома до 100.000€ 20261 Квартиры с видом на море 19409 Элитные квартиры 19115 Недорогие новые квартиры 37510 Продажа квартир с 2 спальнями Аликанте 22543 Продажа квартир 3 комнаты Аликанте 20511 Продажа квартир 4 комнаты Аликанте 14419 Продажа квартир 5 комнат Аликанте 13153 Квартиры в хорошем состоянии Аликанте 15864 Квартиры для ремонта Аликанте 15406 Вторичные квартиры Аликанте 33569 Квартиры с видом на море Аликанте 13120 Недорогие квартиры Аликанте 34304 Квартиры на продажу с лифтом Аликанте 27435 Квартиры до 50.000€ Аликанте 13233 Квартиры до 100.000€ Аликанте 14260 Квартиры новостройки Аликанте 13671 Квартиры класса люкс Аликанте 13110 Квартиры с окнами на улицу Аликанте 13134 Недорогие новые квартиры Аликанте 13671 Продажа квартир 2 комнаты Бенидорм 2524 Продажа квартир 3 спальни Бенидорм 2157 Продажа квартир 4 комнаты Бенидорм 1147 Продажа квартир 5 комнат Бенидорм 907 Квартиры в хорошем состоянии Бенидорм 1072 Квартиры для ремонта Бенидорм 1740 Вторичное жильё Бенидорм 5247 Квартиры с видом на海 Бенидорм 896 Дешевые квартиры Бенидорм 5263 Квартиры на продажу с лифтом Бенидорм 4909 Квартиры до 100.000€ Бенидорм 944 Новые квартиры Бенидорм 904 Квартиры до 50.000€ Бенидорм 890 Элитные квартиры Бенидорм 942 Квартиры с окнами на улицу Бенидорм 903 Дешевые новые квартиры Бенидорм 904

Ближайшие объекты

Исследуйте близлежащие объекты, которые мы обнаружили неподалеку от этого местоположения.

Apartamentos en Venta en Calle de Bolivia s/n, Finestrat

Аликанте, Финестрат, Балькон де Финестрат-Терра Малина, Calle de Bolivia s/n
370 000 €

El apartamento está en planta baja tiene 38 m2 de terraza, tiene 2 habitaciones...

0
0 отзывов

Apartamentos en Venta en Calle de Bolivia s/n, Finestrat

Аликанте, Финестрат, Балькон де Финестрат-Терра Малина, Calle de Bolivia s/n
380 000 €

Estos apartamentos está nen 1ª, 2ª, 3ª y 4ª planta. Tienen 115 m2, 2 habitacione...

0
0 отзывов

Apartamentos en Venta en Calle de Bolivia s/n, Finestrat

Аликанте, Финестрат, Балькон де Финестрат-Терра Малина, Calle de Bolivia s/n
410 000 €

El conjunto residencial camporosso Serpentine se distribuye en dos parcelas line...

0
0 отзывов

Apartamentos en Venta en Calle de Bolivia s/n, Finestrat

Аликанте, Финестрат, Балькон де Финестрат-Терра Малина, Calle de Bolivia s/n
410 000 €

Este apartamento está en 3ª planta, tiene 3 habitaciones y un jardín de 70 m2.El...

0
0 отзывов

Apartamentos en Venta en Calle de Bolivia s/n, Finestrat

Аликанте, Финестрат, Балькон де Финестрат-Терра Малина, Calle de Bolivia s/n
445 000 €

Estos apartamentos están en 3ª y 4ª planta. Tienen 145 m2, 3 habitaciones y una...

0
0 отзывов

Новостройка в Бенидорме, предлагаемая как современный и роскошный жилой комплекс.

Аликанте, Бенидорм, Пуэбло Поньенте, Calle Calle Pdte. Adolfo Suárez s/n
395 000 €

## Недвижимость в ЖК Жилой комплекс Квартиры с видом на море Это новый жилой п...

0
0 отзывов

Новостройка в Бенидорме, предлагаемая как современный и роскошный жилой комплекс.

Аликанте, Бенидорм, Пуэбло Поньенте, Calle Calle Pdte. Adolfo Suárez s/n
348 000 €

## Недвижимость в ЖК Жилой комплекс Квартиры с видом на море Это новый жилой п...

0
0 отзывов

Новостройка в Бенидорме, предлагаемая как современный и роскошный жилой комплекс.

Аликанте, Бенидорм, Пуэбло Поньенте, Calle Calle Pdte. Adolfo Suárez s/n
298 000 €

## Недвижимость в ЖК Жилой комплекс Квартиры с видом на море Это новый жилой п...

0
0 отзывов

Новостройка в Бенидорме, предлагаемая как современный и роскошный жилой комплекс.

Аликанте, Бенидорм, Пуэбло Поньенте, Calle Calle Pdte. Adolfo Suárez s/n
308 000 €

## Недвижимость в ЖК Жилой комплекс Квартиры с видом на море Это новый жилой п...

0
0 отзывов

Мы используем собственные и сторонние файлы cookie для анализа использования веб-сайта и показа вам рекламы, соответствующей вашим предпочтениям, на основе профиля, созданного по вашим привычкам просмотра (например, посещенные страницы). Подробнее. Вы принимаете файлы cookie?