Новостройка Casa independiente en avenida de Argentina, 33 в Сьюдад Кесада

Аликанте, Сьюдад Кесада, Avenida de Argentina, 33
499 000 €
4 941 € / m2
Оставить отзыв
3 Спальни
2018 Год сдачи
101 m² м2 построенных
3 Ванные комнаты
Хорошее состояние Состояние недвижимости
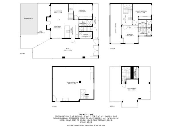
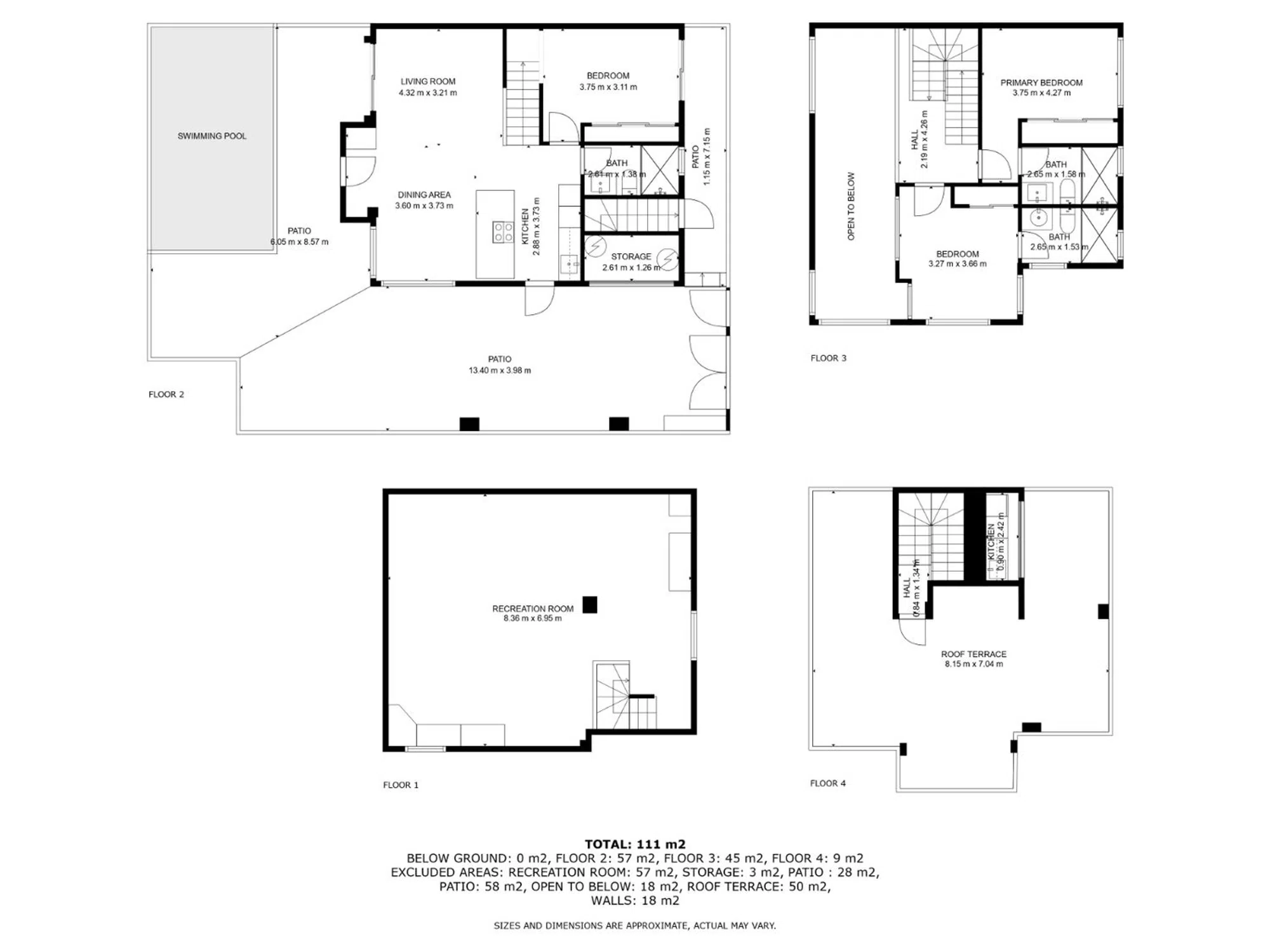
Ubicada en una zona residencial tranquila de Ciudad Quesada, esta propiedad construida en 2018 ofrece una distribución funcional y espacios interiores y exteriores bien aprovechados. Con una superficie construida de 101 m² sobre una parcela de 184 m², la vivienda cuenta con tres dormitorios, tres baños, sótano y solárium. En la planta principal se encuentra la zona de estar, con salón, comedor y cocina de concepto abierto con isla central. También en este nivel hay un dormitorio con armario empotrado, un baño completo, zona de lavandería y acceso directo al jardín y a la piscina. La primera planta alberga dos dormitorios, uno de ellos con baño en suite y salida a una terraza privada. El segundo dormitorio está junto a otro baño completo. Un distribuidor abierto conecta ambas estancias. El sótano está acondicionado como sala de recreación y ofrece un espacio adicional para distintos usos, actualmente utilizado como zona de ocio con billar. El solárium privado incluye una cocina exterior completamente instalada y operativa, con acceso desde el interior de la vivienda. Es un espacio pensado para disfrutar al aire libre durante todo el año. En el exterior, la propiedad dispone de una piscina privada de 3,30 x 6,50 metros, jardín con césped artificial y aparcamiento dentro de la parcela. Al tratarse de una unidad de esquina, la casa recibe buena luz natural y tiene mayor independencia respecto a las colindantes. La vivienda se entrega completamente amueblada, equipada con aire acondicionado, armarios empotrados, persianas automáticas, mosquiteras, sistema de seguridad y cocina equipada. Es apta tanto para residencia habitual como para uso vacacional, y se encuentra cerca de servicios y accesos principales.

Топ новостройки Испании

Обратите ваше внимание на эти ЖК

10 единиц

Nature Views 2

Аликанте, Торревьеха, Лос-Балконес - Лос-Альтос дель Эден, Denia s/n
310 000 € - 379 000 €
1 единиц

Hotel en venta en Benidorm centro

Аликанте, Бенидорм, Плая де Поньенте
2 250 000 € - 2 250 000 €
28 единиц

Residencial Los Balcones De Calpe

Аликанте, Кальпе, Кальпе Пуэбло, Avenida de Madrid, 1
299 000 € - 892 125 €
4 единиц

Nature Views

Аликанте, Торревьеха, Лаго Хардин II, Avenida Denia s/n
309 000 € - 330 000 €
5 единиц

ALONIS VILLAS

Аликанте, Ла Виллахойоса / Вила Хойоса, Платха де Торрес, Partida Torres s/n
675 000 € - 775 000 €
1 единиц

Residencial Royal Beach

Аликанте, Гуардамар-дель-Сегура, побло, Miguel Hernández 102
349 500 € - 349 500 €
7 единиц

Royal Star

Аликанте, Гуардамар-дель-Сегура
229 500 € - 269 500 €

Характеристики недвижимости

Complex information

Информация о проекте / Статус работы

  • Год сдачи
    2018
  • Состояние недвижимости
    Хорошее состояние

Данные о недвижимости

  • Спальни
    3
  • Ванные комнаты
    3
  • м2 построенных
    101 m²
  • Тип недвижимости
    Вторичка

Base

Энергетическая сертификация

  • Состояние энергетического сертификата
    В процессе оформления

Удобства

Эстадо:

Хорошее состояние

Планы

Статистика рыночных цен на Casa independiente en avenida de Argentina, 33

398 608 € (3 436 €/m2)
Средняя цена на первичные в городе Сьюдад Кесада
418 630 € (2 435 €/m2)
Средняя цена на вторичные в городе Сьюдад Кесада

Карта

Аликанте, Сьюдад Кесада, Avenida de Argentina, 33 Поехать в это место
Оставьте отзыв о Casa independiente en avenida de Argentina, 33
0
0 reviews
1
0% (0)
2
0% (0)
3
0% (0)
4
0% (0)
5
0% (0)
Costa Blanca Bolig
499 000 €
от 4 941 € / m2
Свяжитесь с рекламодателем

Для получения дополнительной информации свяжитесь с платформой

REF: 327483

Отзывы о Casa independiente en avenida de Argentina, 33
Loading...

No reviews have been left for this object yet

Ближайшие объекты

Исследуйте близлежащие объекты, которые мы обнаружили неподалеку от этого местоположения.

Продается отдельный шале в живописном районе.

Аликанте, Лос-Монтесинос
439 900 €

Данный жилой комплекс расположен в известной урбанизации на благоухающей Costa B...

0
0 отзывов

Продается отдельный шале в живописном районе.

Аликанте, Лос-Монтесинос
389 900 €

Вилла расположена в известном жилом районе, который славится своей инфраструктур...

0
0 отзывов

Продается отдельный шале в живописной местности.

Аликанте, Лос-Монтесинос
439 900 €

Представляем вашему вниманию жилой комплекс, расположенный в известной урбанизац...

0
0 отзывов

Продаются таунхаусы в живописном районе Алгорфы.

Аликанте, Алгорфа
195 000 €

Откройте для себя коллекцию из восьми вилл в живописной местности, расположенной...

0
0 отзывов

Продаются таунхаусы в живописной местности Алгорфа.

Аликанте, Алгорфа
205 000 €

Предлагаем вашему вниманию восемь великолепных вилл, расположенных в живописном...

0
0 отзывов
Звонок

Мы используем собственные и сторонние файлы cookie для анализа использования веб-сайта и показа вам рекламы, соответствующей вашим предпочтениям, на основе профиля, созданного по вашим привычкам просмотра (например, посещенные страницы). Подробнее. Вы принимаете файлы cookie?