Продажа квартиры на Barrio El Palmar-Los Molinos, Дения

Аликанте, Дения, Лес Маринес/Лас Маринас, Barrio El Palmar-Los Molinos
255 000 €
3 400 € / m2
Оставить отзыв
Квартиры Тип недвижимости
3 Спальни
75 m² м2 построенных
2 Ванные комнаты
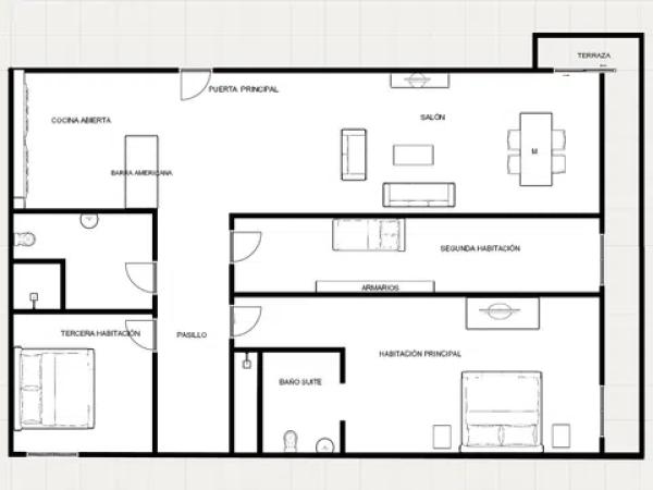
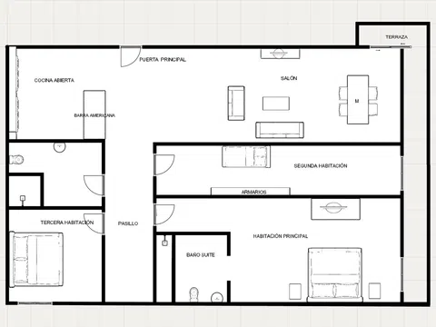
RANDOF Real Estate con oficinas ubicadas en Dénia, Jávea y Moraira le ofrece Este Apartamento en primera línea de playa con salida directa a la hermosa playa de arena de Las Marinas, a pocos minutos del casco urbano y rodeado de todos los servicios esenciales, como supermercados, restaurantes y transporte público, lo que lo convierte en un lugar ideal para vivir cómodamente durante todo el año o como una excelente inversión para alquiler. Este apartamento esquinero, ubicacado en una urbanización que incluye jardines perfectamente cuidados, pistas de pádel, servicio de conserjería disponible todo el año, trastero, parking y una salida directa al mar que lo hace aún más exclusivo. La vivienda cuenta con un salón espacioso y luminoso, con una cocina abierta con barra americana, perfecta para crear un ambiente social y acogedor. Terraza privada con vistas al mar, tres habitaciones, de las cuales la principal destaca por su amplitud y por contar con baño en suite, mientras que el segundo baño completo está diseñado para dar servicio a las habitaciones secundarias y a los invitados. Este apartamento es perfecto para quienes buscan el equilibrio entre calidad de vida, cercanía al mar y una excelente inversión. [IW].

Характеристики недвижимости

Complex information

  • Тип недвижимости
    Квартиры

Данные о недвижимости

  • Тип кухни
    Американская кухня
  • Спальни
    3
  • Ванные комнаты
    2
  • м2 построенных
    75 m²
  • Тип недвижимости
    Вторичка

Удобства

Удобства жилья:

Терасса

В здании:

Лифт
Сад

Вистас:

Виды на море

Планы

Статистика рыночных цен на Piso en Barrio El Palmar-Los Molinos

425 359 € (3 917 €/m2)
Средняя цена на первичные Квартиры в городе Дения
275 542 € (2 838 €/m2)
Средняя цена на вторичные Квартиры в городе Дения
688 500 € (4 725 €/m2)
Средняя цена на первичные Квартиры в районе Лес Маринес/Лас Маринас
283 722 € (3 284 €/m2)
Средняя цена на вторичные Квартиры в районе Лес Маринес/Лас Маринас

Карта

Аликанте, Дения, Лес Маринес/Лас Маринас, Barrio El Palmar-Los Molinos Поехать в это место
Оставьте отзыв о Piso en Barrio El Palmar-Los Molinos
0
0 reviews
1
0% (0)
2
0% (0)
3
0% (0)
4
0% (0)
5
0% (0)
RANDOF Real Estate -Shops Denia-Jávea-Moraira
255 000 €
от 3 400 € / m2
Свяжитесь с рекламодателем

Для получения дополнительной информации свяжитесь с платформой

REF: 213495

Отзывы о Piso en Barrio El Palmar-Los Molinos
Loading...

No reviews have been left for this object yet

Ближайшие объекты

Исследуйте близлежащие объекты, которые мы обнаружили неподалеку от этого местоположения.

Новый жилой комплекс в Дении.

Аликанте, Дения, Лес Маринес/Лас Маринас, Calle Boga, 31
718 000 €

Жилой комплекс находится в живописном районе города, всего в километре от его ц...

0
0 отзывов

Новый жилой комплекс в Дении.

Аликанте, Дения, Лес Маринес/Лас Маринас, Calle Boga, 31
898 000 €

Жилой комплекс находится в живописном районе города, всего в километре от его ц...

0
0 отзывов

Новый жилой комплекс в Дении.

Аликанте, Дения, Лес Маринес/Лас Маринас, Calle Boga, 31
1 098 000 €

Жилой комплекс находится в живописном районе города, всего в километре от его ц...

0
0 отзывов

Apartamentos en Venta, Pedreguer

Аликанте, Педрегер
515 000 €

Почувствовать обволакивающий природой, сидеть на террасе и наслаждаться великоле...

0
0 отзывов

Apartamentos en Venta, Pedreguer

Аликанте, Педрегер
546 000 €

Почувствовать обволакивающий природой, сидеть на террасе и наслаждаться великоле...

0
0 отзывов

Obra nueva La Sella Golf Suites en Pedreguer

Аликанте, Педрегер
395 000 €

Дома с 3 спальнями, все с выходом на террасу, чтобы максимально использовать сол...

0
0 отзывов

Obra nueva La Sella Golf Suites en Pedreguer

Аликанте, Педрегер
450 000 €

Дома с 3 спальнями, все с выходом на террасу, чтобы максимально использовать сол...

0
0 отзывов

Obra nueva La Sella Golf Suites en Pedreguer

Аликанте, Педрегер
410 000 €

Дома с 3 спальнями, все с выходом на террасу, чтобы максимально использовать сол...

0
0 отзывов

Apartamentos en Venta en Calle del Voltor s/n, Denia

Аликанте, Дения, Лес Маринес/Лас Маринас, Calle del Voltor s/n
352 000 €

Exclusivo residencial de lujo ubicado en la hermosa ciudad de Dénia, a tan solo...

0
0 отзывов
Звонок

Мы используем собственные и сторонние файлы cookie для анализа использования веб-сайта и показа вам рекламы, соответствующей вашим предпочтениям, на основе профиля, созданного по вашим привычкам просмотра (например, посещенные страницы). Подробнее. Вы принимаете файлы cookie?