Испания Дома Испания Дома Аликанте Дома Гуардамар-дель-Сегура Chalet adosado en Charmigt radhus i två plan med terrasser och balkong s/n

Новостройка Chalet adosado en Charmigt radhus i två plan med terrasser och balkong s/n в Гуардамар-дель-Сегура

Аликанте, Гуардамар-дель-Сегура, Урбанизации, Charmigt radhus i två plan med terrasser och balkong s/n
Распродано
Оставить отзыв
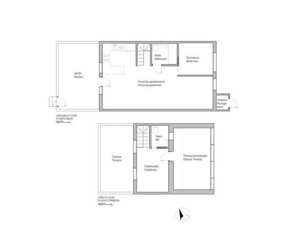
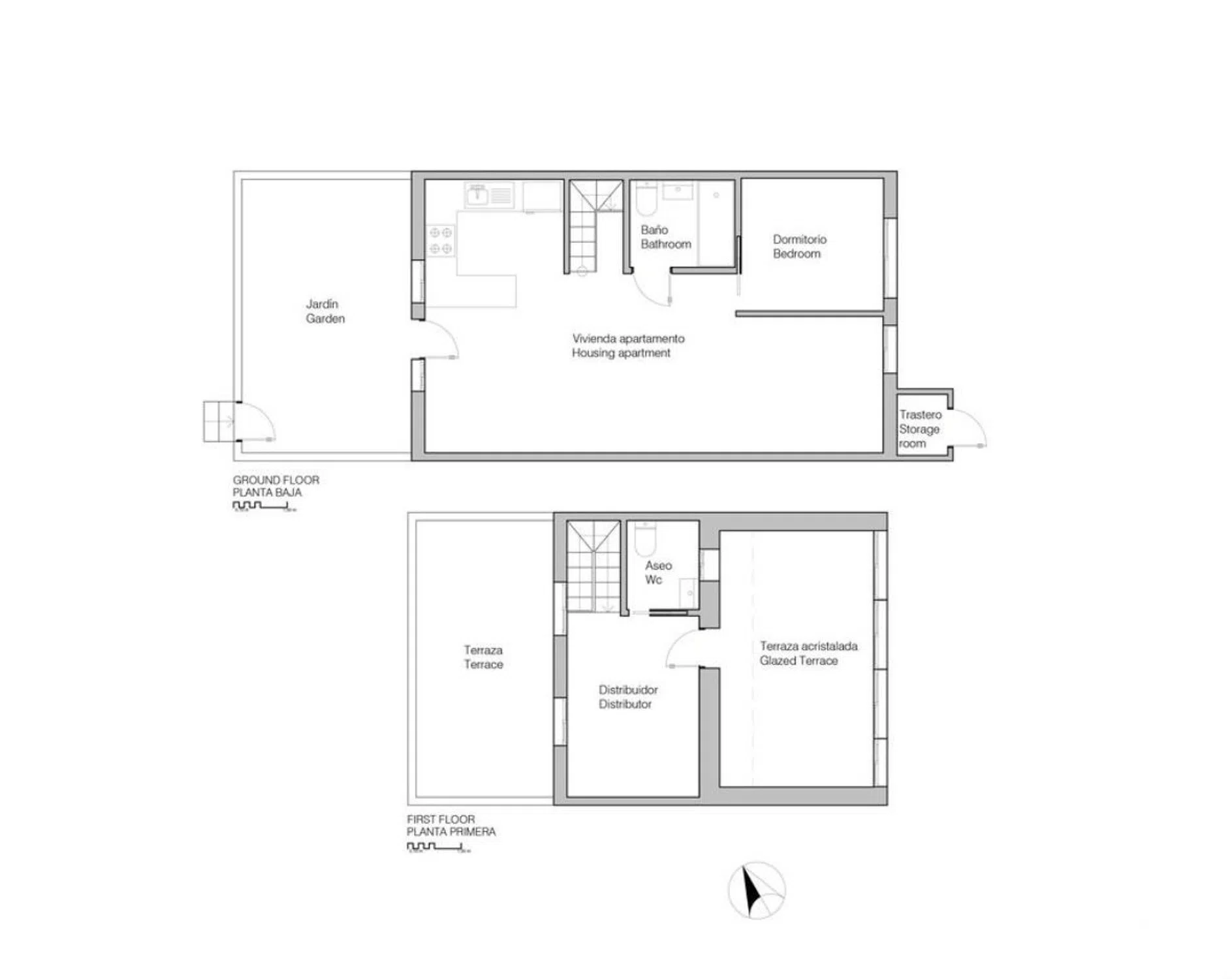
99 m² м2 построенных
67 m² м2 полезной площади
2 Ванные комнаты
2 Спальни
Хорошее состояние Состояние недвижимости
Encantadora casa adosada de dos niveles con terrazas y balcón - en el límite entre La Mata y Guardamar del Segura Bienvenido a esta acogedora casa adosada de dos plantas, perfectamente ubicada en el límite entre La Mata y Guardamar del Segura, a un corto paseo de la resplandeciente costa mediterránea. Con una superficie habitable de 67 m² y 2 dormitorios, esta casa es ideal tanto para familias como para parejas que sueñan con una vida junto al mar. Al entrar, le recibe un ambiente luminoso y acogedor. En la planta de entrada, encontrará una sala de estar y cocina de concepto abierto que invita tanto a socializar como a disfrutar de la vida cotidiana, además de un dormitorio y un baño para mayor comodidad. En la planta superior, encontrará otro dormitorio, un segundo baño y una acogedora habitación adicional que puede utilizarse como salón o despacho. Desde aquí, una terraza ofrece preciosas vistas al lago salado, un lugar maravilloso para relajarse bajo el sol del atardecer. La propiedad ofrece dos terrazas privadas, una delantera y otra trasera, además de un balcón que permite disfrutar del sol a cualquier hora del día. También existe la posibilidad de construir un solárium en la azotea añadiendo una escalera exterior, ideal para quienes buscan maximizar su espacio exterior. La ubicación es inmejorable. Con un encantador pinar como vecino y a un corto paseo de la hermosa playa de La Mata, vivirás cerca de la naturaleza y del mar. También hay restaurantes y el paseo marítimo a poca distancia para disfrutar de un auténtico ambiente mediterráneo. Para refrescarte y disfrutar de momentos sociales, la piscina comunitaria también está a tu disposición. Esta casa adosada es una excelente oportunidad para quienes buscan una casa de vacaciones en la costa, pero funciona igualmente bien como una casa cómoda durante todo el año.

Топ новостройки Испании

Обратите ваше внимание на эти ЖК

10 единиц

Nature Views 2

Аликанте, Торревьеха, Лос-Балконес - Лос-Альтос дель Эден, Denia s/n
310 000 € - 379 000 €
1 единиц

Hotel en venta en Benidorm centro

Аликанте, Бенидорм, Плая де Поньенте
2 250 000 € - 2 250 000 €
28 единиц

Residencial Los Balcones De Calpe

Аликанте, Кальпе, Кальпе Пуэбло, Avenida de Madrid, 1
299 000 € - 892 125 €
4 единиц

Nature Views

Аликанте, Торревьеха, Лаго Хардин II, Avenida Denia s/n
309 000 € - 330 000 €
5 единиц

ALONIS VILLAS

Аликанте, Ла Виллахойоса / Вила Хойоса, Платха де Торрес, Partida Torres s/n
675 000 € - 775 000 €
1 единиц

Residencial Royal Beach

Аликанте, Гуардамар-дель-Сегура, побло, Miguel Hernández 102
349 500 € - 349 500 €
7 единиц

Royal Star

Аликанте, Гуардамар-дель-Сегура
229 500 € - 269 500 €

Характеристики недвижимости

Complex information

Информация о проекте / Статус работы

  • Состояние недвижимости
    Хорошее состояние

Данные о недвижимости

  • Спальни
    2
  • Ванные комнаты
    2
  • м2 построенных
    99 m²
  • м2 полезной площади
    67 m²
  • Тип недвижимости
    Вторичка

Base

Энергетическая сертификация

  • Состояние энергетического сертификата
    Не указано

Удобства

Удобства жилья:

Терасса

Эстадо:

Хорошее состояние

Статистика рыночных цен на Chalet adosado en Charmigt radhus i två plan med terrasser och balkong s/n

Карта

Аликанте, Гуардамар-дель-Сегура, Урбанизации, Charmigt radhus i två plan med terrasser och balkong s/n Поехать в это место
Оставьте отзыв о Chalet adosado en Charmigt radhus i två plan med terrasser och balkong s/n
0
0 reviews
1
0% (0)
2
0% (0)
3
0% (0)
4
0% (0)
5
0% (0)
HusmanHagberg Costa Blanca South / Costa Calida
Распродано
Свяжитесь с рекламодателем

Для получения дополнительной информации свяжитесь с платформой

REF: 450214

Отзывы о Chalet adosado en Charmigt radhus i två plan med terrasser och balkong s/n
Loading...

No reviews have been left for this object yet

Покинутые деревни 21366 Дома для ремонта 22987 Дешевые дома 41817 Дома до 50.000€ 21565 Дома класса люкс 25232 Квартиры с вторичном рынке 36188 Продажа домов с 2 спальнями Аликанте 18119 Продажа домов с 3 спальнями Аликанте 21036 Продажа домов с 4 комнатами Аликанте 19644 Дома в хорошем состоянии Аликанте 18874 Дома для ремонта Аликанте 17949 Дешевые дома Аликанте 27419 Недорогие отдельные шале Аликанте 20701 Покинутые деревни Аликанте 17038 Роскошные дома Аликанте 18846 Дома до 50.000€ Аликанте 17150 Вторичное жилье Аликанте 26768 Частные дома Аликанте 13445 Casas con terreno Аликанте 15524 Продажа домов с 2 спальнями Гуардамар-дель-Сегура 212 Продажа домов с 3 спальнями Гуардамар-дель-Сегура 229 Продажа домов с 4 спальнями Гуардамар-дель-Сегура 218 Дома в хорошем состоянии Гуардамар-дель-Сегура 215 Дома для ремонта Гуардамар-дель-Сегура 209 Дешевые дома Гуардамар-дель-Сегура 269 Недорогие отдельные дома Гуардамар-дель-Сегура 253 Роскошные дома Гуардамар-дель-Сегура 208 Дома до 50.000€ Гуардамар-дель-Сегура 204 Вторичные дома Гуардамар-дель-Сегура 268 Частные дома Гуардамар-дель-Сегура 158

Ближайшие объекты

Исследуйте близлежащие объекты, которые мы обнаружили неподалеку от этого местоположения.

Chalet en Barrio El Molino

Аликанте, Торревьеха, Центро, Barrio El Molino
165 000 €

Esta encantadora casa adosada se encuentra en la playa de Naufragos en Torreviej...

0
0 отзывов

Chalet independiente en Venta, Ciudad Quesada

Аликанте, Сьюдад Кесада
640 000 €

City·Island es uno de los últimos proyectos en la Costa Blanca de una serie de v...

0
0 отзывов

Chalet en Barrio El Molino

Аликанте, Торревьеха, Центро, Barrio El Molino
168 000 €

Esta encantadora casa adosada en Torrevieja es una fantástica oportunidad de rev...

0
0 отзывов

Chalet independiente en Venta en Calle Popa , 28, Torrevieja

Аликанте, Торревьеха, Плая де лос Локос, Calle Popa , 28
590 000 €

Se vende villa con vistas al mar (obra nueva) en segunda línea de mar y muy cerc...

0
0 отзывов

Chalet independiente en Venta en Avenida Alemania, 51, Torrevieja

Аликанте, Торревьеха, Ла Мата, Avenida Alemania, 51
990 000 €

Se vende una casa moderna (obra nueva) a 1 minuto de la playa de “La Mata” con v...

0
0 отзывов

Chalet independiente en Venta en Avenida Alemania, 51, Torrevieja

Аликанте, Торревьеха, Ла Мата, Avenida Alemania, 51
940 000 €

Se vende una casa moderna (obra nueva) a 1 minuto de la playa de “La Mata” con v...

0
0 отзывов

Chalet independiente en Venta, Ciudad Quesada

Аликанте, Сьюдад Кесада
698 000 €

Villa en primera linea del campo de Golf La Marquesa, esta villa cuenta con asce...

0
0 отзывов

Chalet independiente en Venta, Ciudad Quesada

Аликанте, Сьюдад Кесада
842 380 €

Villa con vistas directas sobre el campo de Golf La Marquesa, cuenta con 4 habit...

0
0 отзывов

Chalet independiente en Venta, Ciudad Quesada

Аликанте, Сьюдад Кесада
687 000 €

Villa en primera linea del campo de Golf La Marquesa, esta villa cuenta con asce...

0
0 отзывов
Звонок

Мы используем собственные и сторонние файлы cookie для анализа использования веб-сайта и показа вам рекламы, соответствующей вашим предпочтениям, на основе профиля, созданного по вашим привычкам просмотра (например, посещенные страницы). Подробнее. Вы принимаете файлы cookie?