Terreno en Partida Comunes-Adsubia

Аликанте, Хавья/Хабия, Партида Комунес-Адсубия, Partida Comunes-Adsubia
159 000 €
Оставить отзыв
Земля под застройку Тип недвижимости
1 086 m² Площадь участка
Да Снабжение водой
По асфальтированной дороге Тип доступа
Поле или опция 'Да' Электроснабжение
Жилой Использование участка
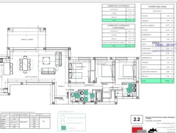
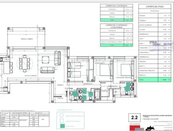
Una parcela fantástica a un precio muy razonable a un corto trayecto en coche de la playa y de todas las instalaciones. Esta parcela bastante plana en urbanización en Javea - Royal Residence Villa Spainin incluye una solicitud de planificación para una construcción moderna de planta abierta de un nivel. 3 dormitorios en un nivel con posibilidad de estudio ubicado en la planta baja. La licencia se ha pagado en su totalidad y la construcción puede comenzar de inmediato. Comuníquese para conocer los planes y obtener más detalles. La parcela está ubicada en una tranquila calle sin salida en una prestigiosa finca con vistas a la montaña del Montgó.

Характеристики недвижимости

Complex information

  • Тип недвижимости
    Земля под застройку

Данные о недвижимости

  • Тип недвижимости
    Вторичка

Площади

  • Площадь участка
    1 086 m²

Base

  • Снабжение водой
    Да
  • Градостроительная земля
    Консолидированный (Соляр)
  • Тип доступа
    По асфальтированной дороге
  • Электроснабжение
    Поле или опция 'Да'
  • Использование участка
    Жилой

Удобства

Суминстро:

С водой
С электричеством

Использование земельных участков:

Резиденциальный

Дополнительные характеристики:

Тротуары

Вистас:

Виды на гору
Чистые виды

Планы

Статистика рыночных цен на Terreno en Partida Comunes-Adsubia

Карта

Аликанте, Хавья/Хабия, Партида Комунес-Адсубия, Partida Comunes-Adsubia Поехать в это место
Оставьте отзыв о Terreno en Partida Comunes-Adsubia
0
0 reviews
1
0% (0)
2
0% (0)
3
0% (0)
4
0% (0)
5
0% (0)
Plots and Villas Javea
159 000 €
Свяжитесь с рекламодателем

Для получения дополнительной информации свяжитесь с платформой

REF: 178873

Отзывы о Terreno en Partida Comunes-Adsubia
Loading...

No reviews have been left for this object yet

Ближайшие объекты

Исследуйте близлежащие объекты, которые мы обнаружили неподалеку от этого местоположения.

Terreno en venta en calle del Mar de Bering s/n

Аликанте, Хавья/Хабия, Партида Комунес-Адсубия, Calle del Mar de Bering s/n
280 000 €

Esta descripción ha sido traducida automáticamente y puede que no sea muy precis...

0
0 отзывов

Parcela bien situada con proyecto para construir una villa moderna Javea (Cansalades)

Аликанте, Хавья/Хабия
1 089 000 €

Esta villa con arquitectura moderna será construida por un promotor francés con...

0
0 отзывов

Denia – Las Rotes/Montgó-Galeretes: En venta terreno con vistas y licencia para la construcción de un chalet unifamiliar

Аликанте, Дения
175 000 €

La parcela en venta se sitúa en un área tranquilo a unos 2km de las playas de la...

0
0 отзывов

Terreno en Teulada

Аликанте, Теулада
275 000 €

Esta impresionante parcela de terreno rústico tiene una extensión de 10.400 metr...

0
0 отзывов

Terreno en calle Vicent Boix, 333

Аликанте, Хавья/Хабия, Ла Гранаделла - Коста Нова, Calle Vicent Boix, 333
145 000 €

Parcela en venta en Javea Costa Nova. Esta parcela plana de 1.000m2 se encuentra...

0
0 отзывов

Terreno en El Montgó

Аликанте, Дения, Эль Монтго, El Montgó
212 000 €

Parcela de 844m2 con muy buenas vistas a el mar y al paisaje montañoso de él Mon...

0
0 отзывов

Terreno en Cap Martí - Pinomar

Аликанте, Хавья/Хабия, Кап Марті - Піномар, Cap Martí - Pinomar
269 000 €

Parcela de 1000 m2 para construir un chalet de lujo de 190 m2 Posible con proyec...

0
0 отзывов

Terreno en La Granadella - Costa Nova

Аликанте, Хавья/Хабия, Ла Гранаделла - Коста Нова, La Granadella - Costa Nova
157 500 €

RANDOF Real Estate con oficinas ubicadas en Dénia, Jávea y Moraira le ofrece una...

0
0 отзывов

Terreno en Partida Comunes-Adsubia

Аликанте, Хавья/Хабия, Партида Комунес-Адсубия, Partida Comunes-Adsubia
240 000 €

RANDOF Real Estate con oficinas ubicadas en Dénia, Jávea y Moraira le ofrece est...

0
0 отзывов
Звонок

Мы используем собственные и сторонние файлы cookie для анализа использования веб-сайта и показа вам рекламы, соответствующей вашим предпочтениям, на основе профиля, созданного по вашим привычкам просмотра (например, посещенные страницы). Подробнее. Вы принимаете файлы cookie?