Продажа отдельного шале в Poble Nou - Montiboli, Ла Виллахойоса / Вила Хойоса

Аликанте, Ла Виллахойоса / Вила Хойоса, Побле Ноу - Монтиболи, Poble Nou - Montiboli
339 000 €
1 256 € / m2
Оставить отзыв
Отдельный шале Тип недвижимости
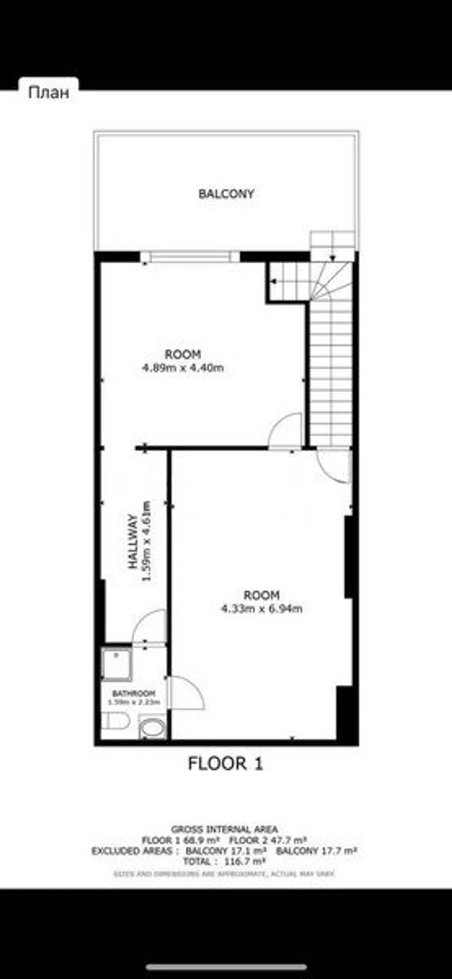
270 m² м2 построенных
2 Ванные комнаты
4 Спальни
Тёплый пол Отопление
Оборудованная Оборудование кухни

Этот современный дуплекс с 4 спальнями и 2 ванными комнатами идеально подходит для семей, ценящих комфорт и стиль. Просторная гостиная гармонично сочетается с современной кухней, оснащенной высококачественной техникой. Все спальни являются приватными и просторными, а ванные комнаты с душем отделаны качественными материалами. Система теплого пола обеспечивает уют в холодное время года, а центральный кондиционер дарит прохладу в жару. Две террасы по 45 м² каждая прекрасно подходят для отдыха и барбекю. В стоимость входит 2 парковочных места и кладовка площадью 12 м². Этот дуплекс создан для комфортной семейной жизни!

Характеристики недвижимости

Complex information

  • Тип недвижимости
    Отдельный шале

Техническая спецификация

  • Отопление
    Тёплый пол

Данные о недвижимости

  • Оборудование кухни
    Оборудованная
  • Спальни
    4
  • Ванные комнаты
    2
  • м2 построенных
    270 m²
  • Тип недвижимости
    Вторичка

Удобства

Удобства жилья:

Терасса

В здании:

Бассейн
Частная парковка

Статистика рыночных цен на Casa independiente

Карта

Аликанте, Ла Виллахойоса / Вила Хойоса, Побле Ноу - Монтиболи, Poble Nou - Montiboli Поехать в это место
Оставьте отзыв о Casa independiente
0
0 reviews
1
0% (0)
2
0% (0)
3
0% (0)
4
0% (0)
5
0% (0)
Deniz Estate
339 000 €
от 1 256 € / m2
Свяжитесь с рекламодателем

Для получения дополнительной информации свяжитесь с платформой

REF: 155925

Отзывы о Casa independiente
Loading...

No reviews have been left for this object yet

Ближайшие объекты

Исследуйте близлежащие объекты, которые мы обнаружили неподалеку от этого местоположения.

Casa o chalet independiente en venta en Platja Vila Joiosa

Аликанте, Ла Виллахойоса / Вила Хойоса, Платха Вила Хойоса
685 000 €

Новые виллы с видом на море в живописном побережье всего в 400 метрах от пляжа....

0
0 отзывов

Casa de Lujo vista al mar, con piscina y encanto.

Аликанте, Вильяхойоса
720 000 €

Расположенный рядом с живописным прудом, этот роскошный дом предлагает великолеп...

0
0 отзывов

¡¡GRAN OPORTUNIDAD para inversores y particulares!! Estupenda casa adosada en Villajoyosa -SIN COMISIÓN DE COMPRA-

Аликанте, Вильяхойоса
161 000 €

Откройте для себя новый дом у моря в Виллахойозе! Этот уютный таунхаус, отремо...

0
0 отзывов

¡¡OPORTUNIDAD!! CHALET CON INCREÍBLES VISTAS AL MAR DE VILLAJOYOSA --SIN COMISIÓN DE COMPRA--

Аликанте, Вильяхойоса
880 000 €

Твой рай у моря ждет тебя в Вильяхойозе! Этот очаровательный дом с двумя спальня...

0
0 отзывов

Casa en venta de 190 m² Partida Rancallosa, 03570 Villajoyosa/Vila Joiosa (la) (Alacant)

Аликанте, Вильяхойоса
259 000 €

Позвоните нам и посетите этот дом. Вилла площадью 190 м² и участком в 2700 м²,...

0
0 отзывов

Chalet en El Secanet - Hacienda del Sol

Аликанте, Ла Виллахойоса / Вила Хойоса, Эль Секанет - Усадьба Солнца, El Secanet - Hacienda del Sol
995 000 €

Этот великолепный жилой дом с просторным участком и видами на море расположен в...

0
0 отзывов

Chalet en Partida Alcocons

Аликанте, Ла Виллахойоса / Вила Хойоса, Эль Секанет - Усадьба Солнца, Partida Alcocons
490 000 €

Позвоните нам и посетите этот уникальный дом. Просторная резиденция площадью 360...

0
0 отзывов

Casa independiente

Аликанте, Ла Виллахойоса / Вила Хойоса, Центро урбано, Centro Urbano
367 500 €

Уютное шале, расположенное в живописной зоне, занимает площадь 280 м² с участком...

0
0 отзывов

Chalet en Poble Nou - Montiboli

Аликанте, Ла Виллахойоса / Вила Хойоса, Побле Ноу - Монтиболи, Poble Nou - Montiboli
430 000 €

Великолепный дом, расположенный в спокойной местности неподалеку от моря. Из дом...

0
0 отзывов

Мы используем собственные и сторонние файлы cookie для анализа использования веб-сайта и показа вам рекламы, соответствующей вашим предпочтениям, на основе профиля, созданного по вашим привычкам просмотра (например, посещенные страницы). Подробнее. Вы принимаете файлы cookie?