Новостройка Chalet adosado en calle Abeto, 116 -110 в Ориуэла

Аликанте, Ориуэла, Орихела Коста, Calle Abeto, 116 -110
Распродано
Оставить отзыв
2004 Год сдачи
117 m² м2 построенных
118 m² Площадь участка
2 Ванные комнаты
3 Спальни
Хорошее состояние Состояние недвижимости
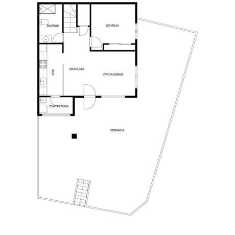
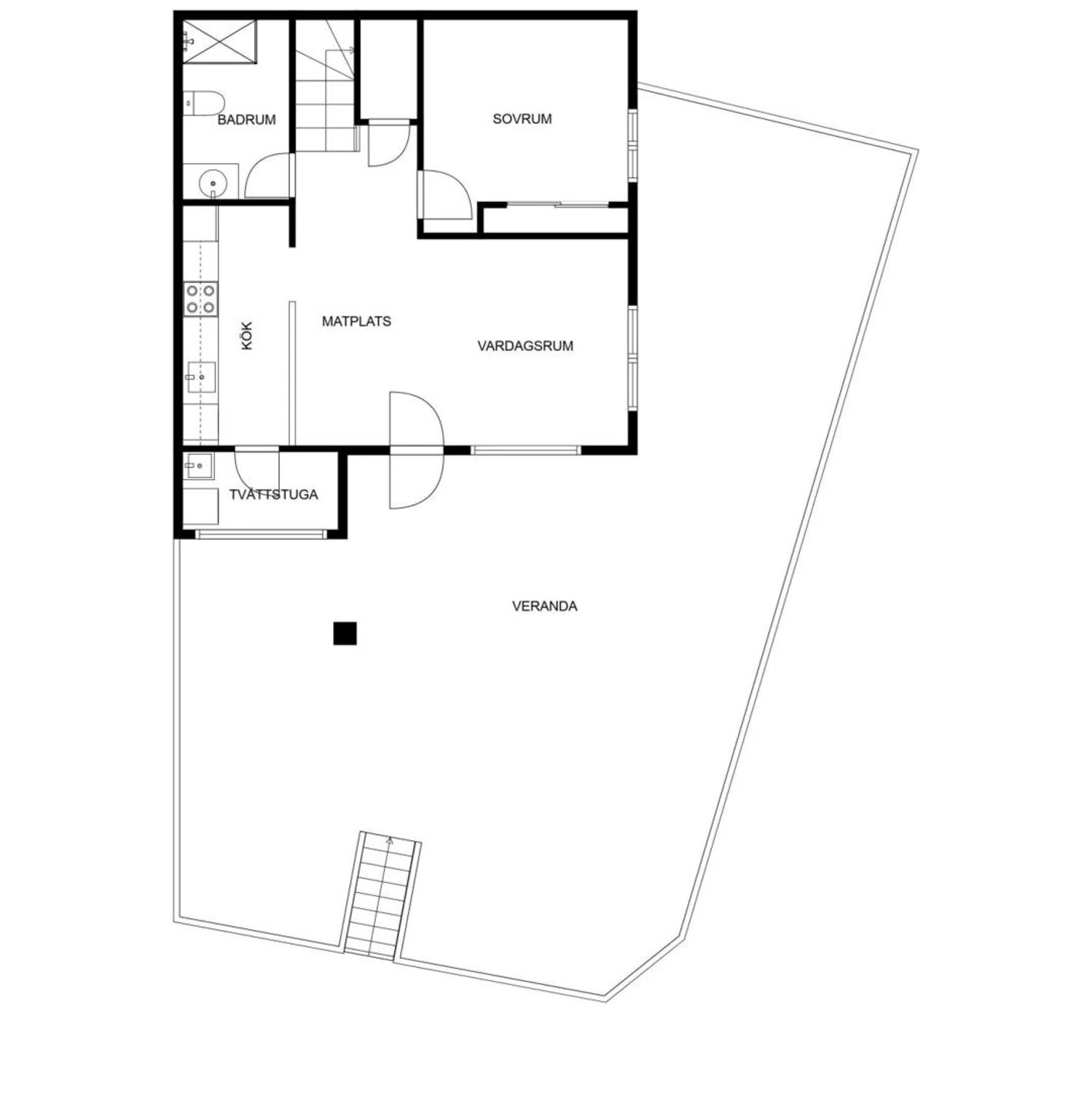
Bienvenido a esta atractiva casa adosada ubicada en la popular y bien mantenida urbanización Zeniamar 6. Aquí vivirás en una de las mejores ubicaciones de la zona: en una esquina, con una parcela acogedora que se extiende en ángulo, ofreciendo tanto espacio como privacidad. La ubicación es inmejorable, con proximidad a restaurantes, tiendas y servicios, y a una distancia cómoda del resplandeciente mar Mediterráneo. En este entorno, la tranquilidad de una zona bien organizada se combina con la cercanía a todo lo necesario para disfrutar de una vida cómoda durante todo el año. El aparcamiento se encuentra convenientemente justo a las afueras de la vivienda, y el jardín mediterráneo de fácil mantenimiento, con árboles frutales, ofrece un amplio espacio para la jardinería y plantaciones personales. El amplio patio orientado al sur disfruta de numerosas horas de sol, y también cuenta con una terraza cubierta, el lugar perfecto para disfrutar de su café matutino a la sombra. Al entrar, le recibe una luminosa y acogedora sala de estar, que está parcialmente abierta hacia la cocina, creando un ambiente social y agradable. Junto a la cocina se encuentra un práctico lavadero con espacio adicional de almacenamiento y calentador de agua. En la planta baja también se encuentra uno de los tres dormitorios de la casa, ideal como habitación de invitados o despacho, además de un espacioso baño con bañera. Bajo las escaleras hacia la planta superior se encuentra un práctico espacio de almacenamiento. En la planta superior encontrará dos amplios y luminosos dormitorios, además de un baño con ducha. Desde esta planta, se accede a un bonito balcón con orientación soleada y espacio para muebles, ideal para relajarse por la tarde o socializar disfrutando de la agradable brisa. En el último nivel, le espera el espacioso solárium, un lugar donde podrá disfrutar al máximo de la vida mediterránea. Desde aquí, se contempla una hermosa vista del entorno y se dispone de un amplio espacio para muebles de salón, tumbonas o incluso una cocina exterior. La casa está equipada con aire acondicionado en todas sus habitaciones, y varios de los electrodomésticos han sido recientemente actualizados, lo que facilita una mudanza cómoda y sin complicaciones. La urbanización es conocida por sus altos estándares y su agradable ambiente. La hermosa zona de piscina ofrece amplias zonas ajardinadas, palmeras y sombrillas, ideales tanto para la relajación como para disfrutar de momentos de convivencia. Esta maravillosa casa adosada se vende exclusivamente con nosotros en Bjurfors Costa Blanca. Contáctenos hoy mismo para concertar una visita o recibir más información.

Топ новостройки Испании

Обратите ваше внимание на эти ЖК

10 единиц

Nature Views 2

Аликанте, Торревьеха, Лос-Балконес - Лос-Альтос дель Эден, Denia s/n
310 000 € - 379 000 €
1 единиц

Hotel en venta en Benidorm centro

Аликанте, Бенидорм, Плая де Поньенте
2 250 000 € - 2 250 000 €
28 единиц

Residencial Los Balcones De Calpe

Аликанте, Кальпе, Кальпе Пуэбло, Avenida de Madrid, 1
299 000 € - 892 125 €
4 единиц

Nature Views

Аликанте, Торревьеха, Лаго Хардин II, Avenida Denia s/n
309 000 € - 330 000 €
5 единиц

ALONIS VILLAS

Аликанте, Ла Виллахойоса / Вила Хойоса, Платха де Торрес, Partida Torres s/n
675 000 € - 775 000 €
1 единиц

Residencial Royal Beach

Аликанте, Гуардамар-дель-Сегура, побло, Miguel Hernández 102
349 500 € - 349 500 €
7 единиц

Royal Star

Аликанте, Гуардамар-дель-Сегура
229 500 € - 269 500 €

Характеристики недвижимости

Complex information

Информация о проекте / Статус работы

  • Год сдачи
    2004
  • Состояние недвижимости
    Хорошее состояние

Данные о недвижимости

  • Спальни
    3
  • Ванные комнаты
    2
  • м2 построенных
    117 m²
  • Тип недвижимости
    Вторичка

Площади

  • Площадь участка
    118 m²

Base

Энергетическая сертификация

  • Состояние энергетического сертификата
    Не указано

Удобства

Удобства жилья:

Терасса

В здании:

Бассейн

Эстадо:

Хорошее состояние

Статистика рыночных цен на Chalet adosado en calle Abeto, 116 -110

806 517 € (3 536 €/m2)
Средняя цена на первичные в городе Ориуэла
503 226 € (2 770 €/m2)
Средняя цена на вторичные в городе Ориуэла

Карта

Аликанте, Ориуэла, Орихела Коста, Calle Abeto, 116 -110 Поехать в это место
Оставьте отзыв о Chalet adosado en calle Abeto, 116 -110
0
0 reviews
1
0% (0)
2
0% (0)
3
0% (0)
4
0% (0)
5
0% (0)
Bjurfors Real Estate Nerja .
Распродано
Свяжитесь с рекламодателем

Для получения дополнительной информации свяжитесь с платформой

REF: 436411

Отзывы о Chalet adosado en calle Abeto, 116 -110
Loading...

No reviews have been left for this object yet

Покинутые деревни 21366 Дома для ремонта 22987 Дешевые дома 41817 Дома до 50.000€ 21565 Дома класса люкс 25232 Квартиры с вторичном рынке 36188 Продажа домов с 2 спальнями Аликанте 18119 Продажа домов с 3 спальнями Аликанте 21036 Продажа домов с 4 комнатами Аликанте 19644 Дома в хорошем состоянии Аликанте 18874 Дома для ремонта Аликанте 17949 Дешевые дома Аликанте 27419 Недорогие отдельные шале Аликанте 20701 Покинутые деревни Аликанте 17038 Роскошные дома Аликанте 18846 Дома до 50.000€ Аликанте 17150 Вторичное жилье Аликанте 26768 Частные дома Аликанте 13445 Casas con terreno Аликанте 15524 Продажа домов с 2 спальнями Ориуэла 2131 Продажа домов с 3 спальнями Ориуэла 2326 Продажа домов с 4 спальнями Ориуэла 2231 Дома в хорошем состоянии Ориуэла 2219 Дома для ремонта Ориуэла 2095 Дешевые дома Ориуэла 2706 Недорогие отдельные дома Ориуэла 2257 Роскошные дома Ориуэла 2164 Дома до 50.000€ Ориуэла 2076 Вторичные дома Ориуэла 2696 Частные дома Ориуэла 1790

Ближайшие объекты

Исследуйте близлежащие объекты, которые мы обнаружили неподалеку от этого местоположения.

Chalet independiente en Venta en Calle Galapagos , 2, Orihuela

Аликанте, Ориуэла, Орихела Коста, Calle Galapagos , 2
420 000 €

Residencial Morgan consta de 5 villas, trabajaremos con las mismas calidades y a...

0
0 отзывов

Chalet independiente en Venta en Calle Galapagos , 2, Orihuela

Аликанте, Ориуэла, Орихела Коста, Calle Galapagos , 2
395 000 €

Residencial Morgan consta de 5 villas, trabajaremos con las mismas calidades y a...

0
0 отзывов

Chalet independiente en Venta en Calle Galapagos , 2, Orihuela

Аликанте, Ориуэла, Орихела Коста, Calle Galapagos , 2
385 000 €

Residencial Morgan consta de 5 villas, trabajaremos con las mismas calidades y a...

0
0 отзывов

Chalet independiente en Venta en Calle Galapagos , 2, Orihuela

Аликанте, Ориуэла, Орихела Коста, Calle Galapagos , 2
399 000 €

Residencial Morgan consta de 5 villas, trabajaremos con las mismas calidades y a...

0
0 отзывов

Villas en Venta, Orihuela

Аликанте, Ориуэла, Орихела Коста
289 950 €

¡los apartamentos en planta baja, planta media y ático llave en mano disponibles...

0
0 отзывов

Villas en Venta, Orihuela

Аликанте, Ориуэла, Орихела Коста
295 600 €

¡los apartamentos en planta baja, planta media y ático llave en mano disponibles...

0
0 отзывов

Chalet en Barrio El Molino

Аликанте, Торревьеха, Центро, Barrio El Molino
165 000 €

Esta encantadora casa adosada se encuentra en la playa de Naufragos en Torreviej...

0
0 отзывов

Chalet en Barrio El Molino

Аликанте, Торревьеха, Центро, Barrio El Molino
168 000 €

Esta encantadora casa adosada en Torrevieja es una fantástica oportunidad de rev...

0
0 отзывов
Звонок

Мы используем собственные и сторонние файлы cookie для анализа использования веб-сайта и показа вам рекламы, соответствующей вашим предпочтениям, на основе профиля, созданного по вашим привычкам просмотра (например, посещенные страницы). Подробнее. Вы принимаете файлы cookie?