Продажа отдельного шале в Pedreguer, Педрегер

Аликанте, Педрегер, Pedreguer
699 000 €
3 883 € / m2
Оставить отзыв
Отдельный шале Тип недвижимости
180 m² м2 построенных
3 Ванные комнаты
4 Спальни
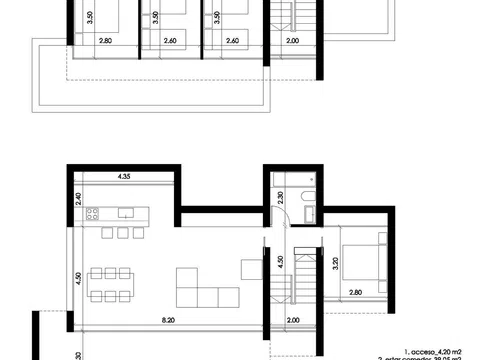
Se ofrece en la zona de Monte Solana de Pedreguer una villa de 4 dormitorios y 3 baños con una piscina de 32 metros cuadrados y una terraza anexa de 20 metros. La propiedad se asienta en una parcela de 180 metros cuadrados. El procedimiento de construcción de la villa suele durar entre 3 y 6 meses para el diseño y la adquisición del permiso, y posteriormente 15 meses de construcción una vez se obtiene la licencia de edificación. El Ayuntamiento de Pedreguer se distingue por su gestión rápida y eficaz en este tipo de proyectos en comparación con las zonas vecinas. Hay opciones de parcelas variadas, algunas de las cuales ofrecen vistas al mar y otras no. Se trata del trato más económico para una villa de este calibre, teniendo en cuenta que el constructor acredita más de 40 años de experiencia y un portafolio de más de 2700 villas construidas, cada una con piscina privada.

Характеристики недвижимости

Complex information

  • Тип недвижимости
    Отдельный шале

Данные о недвижимости

  • Спальни
    4
  • Ванные комнаты
    3
  • м2 построенных
    180 m²
  • Тип недвижимости
    Вторичка

Удобства

В здании:

Бассейн

Планы

Статистика рыночных цен на Chalet en Pedreguer

Карта

Аликанте, Педрегер, Pedreguer Поехать в это место
Оставьте отзыв о Chalet en Pedreguer
0
0 reviews
1
0% (0)
2
0% (0)
3
0% (0)
4
0% (0)
5
0% (0)
MANSIONS.ES
699 000 €
от 3 883 € / m2
Свяжитесь с рекламодателем

Для получения дополнительной информации свяжитесь с платформой

REF: 202129

Отзывы о Chalet en Pedreguer
Loading...

No reviews have been left for this object yet

Ближайшие объекты

Исследуйте близлежащие объекты, которые мы обнаружили неподалеку от этого местоположения.

Продается отдельный шале в живописном районе.

Аликанте, Педрегер
940 000 €

Просторная вилла в Педрегере расположена на полностью обустроенном участке площа...

0
0 отзывов

Chalet independiente en Venta, Pedreguer

Аликанте, Педрегер
660 000 €

Concesión de licencia en 2 meses.Vivienda unifamiliar de 280 m2 con piscina en u...

0
0 отзывов

Chalet independiente en Venta, Pedreguer

Аликанте, Педрегер
1 020 000 €

“villa albufera 6”concesión de licencia en 2 meses.Vivienda unifamiliar de 320m...

0
0 отзывов

Продается отдельный шале в живописном районе.

Аликанте, Бенидолейг
1 650 000 €

Уникальная вилла с лицензией, расположенная в живописном месте, представляет соб...

0
0 отзывов

Chalet independiente en Venta en Calle de Idas, 22, Denia

Аликанте, Дения, Ла Педрера-Вессанес, Calle de Idas, 22
763 000 €

Proyecto de obra de Villa independiente, integrada en un nuevo conjunto de cinco...

0
0 отзывов

Chalet independiente en Venta en Calle de Idas, 22, Denia

Аликанте, Дения, Ла Педрера-Вессанес, Calle de Idas, 22
743 000 €

Proyecto de obra de Villa independiente, integrada en un nuevo conjunto de cinco...

0
0 отзывов

Chalet independiente en Venta en Calle de Idas, 22, Denia

Аликанте, Дения, Ла Педрера-Вессанес, Calle de Idas, 22
737 000 €

Proyecto de obra de Villa independiente, integrada en un nuevo conjunto de cinco...

0
0 отзывов

Chalet independiente en Venta en Calle de Idas, 22, Denia

Аликанте, Дения, Ла Педрера-Вессанес, Calle de Idas, 22
763 000 €

Proyecto de obra de Villa independiente, integrada en un nuevo conjunto de cinco...

0
0 отзывов

Мы используем собственные и сторонние файлы cookie для анализа использования веб-сайта и показа вам рекламы, соответствующей вашим предпочтениям, на основе профиля, созданного по вашим привычкам просмотра (например, посещенные страницы). Подробнее. Вы принимаете файлы cookie?