Продажа таунхауса в Calle Manuel Mateo Candel, 242 , Рафаэль

Аликанте, Рафаэль, Calle Manuel Mateo Candel, 242
269 000 €
1 300 € / m2
Оставить отзыв
Таунхаусы Тип недвижимости
2026 Год сдачи
207 m² м2 построенных
3 Ванные комнаты
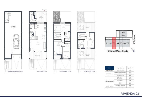
4 Спальни
Оборудованная Оборудование кухни
Включено в цену Гараж
N.6 Название

Откройте для себя эти потрясающие таунхаусы, расположенные в частной урбанизации с бассейном, спроектированные в современном стиле и с высококачественной отделкой. 

Каждое жилье включает четыре просторные спальни, три ванные комнаты и туалет, а также несколько террас, наполняющих помещения естественным светом. 

Кухня полностью оборудована варочной поверхностью, духовкой и холодильником, готова к проживанию. 

Есть частный гараж, вмещающий четыре или даже пять автомобилей, что идеально для семей или любителей пространства. Жилье спроектировано для комфорта, света и простора в каждом уголке. Уникальная возможность жить в новом доме в привилегированном месте.

Характеристики недвижимости

Complex information

  • Жилой комплекс
    Residencial Azahares Rafal
  • Тип недвижимости
    Таунхаусы

Информация о проекте / Статус работы

  • Год сдачи
    2026

Техническая спецификация

  • Внутренняя отделка
    Встроенные шкафы, Бронированная дверь

Данные о недвижимости

  • Тип кухни
    Американская кухня
  • Оборудование кухни
    Оборудованная
  • Гараж
    Включено в цену
  • Название
    N.6
  • Спальни
    4
  • Ванные комнаты
    3
  • м2 построенных
    207 m²
  • Тип недвижимости
    Новостройка

Площади

  • Площадь террасы
    37 m²

Энергетическая сертификация

  • Состояние энергетического сертификата
    В ожидании получения
  • Энергоаудитный сертификат
    A
  • Энергопотребление
    No indicado

Удобства

Удобства жилья:

Терасса

В здании:

Бассейн
Солярий

Планы

Статистика рыночных цен на Chalet adosado en venta en calle Manuel Mateo Candel, 242

Карта

Аликанте, Рафаэль, Calle Manuel Mateo Candel, 242 Поехать в это место
Оставьте отзыв о Chalet adosado en venta en calle Manuel Mateo Candel, 242
0
0 reviews
1
0% (0)
2
0% (0)
3
0% (0)
4
0% (0)
5
0% (0)
Rualcasa gestión inmobiliaria
Residencial Azahares Rafal
Жилой комплекс
269 000 €
от 1 300 € / m2
Свяжитесь с рекламодателем

Для получения дополнительной информации свяжитесь с платформой

REF: 255632

Отзывы о Chalet adosado en venta en calle Manuel Mateo Candel, 242
Loading...

No reviews have been left for this object yet

Ближайшие объекты

Исследуйте близлежащие объекты, которые мы обнаружили неподалеку от этого местоположения.

Pareados en Venta, Algorfa

Аликанте, Алгорфа
445 000 €

Arena Beach III es un conjunto de villas independientes y semiadosadas, de 2, 3...

0
0 отзывов

Pareados en Venta, Algorfa

Аликанте, Алгорфа
415 000 €

Arena Beach III es un conjunto de villas independientes y semiadosadas, de 2, 3...

0
0 отзывов

Pareados en Venta, Algorfa

Аликанте, Алгорфа
445 000 €

Arena Beach III es un conjunto de villas independientes y semiadosadas, de 2, 3...

0
0 отзывов

Pareados en Venta, Algorfa

Аликанте, Алгорфа
415 000 €

Arena Beach III es un conjunto de villas independientes y semiadosadas, de 2, 3...

0
0 отзывов

Chalet adosado en venta en Urbanización La Finca Golf

Аликанте, Алгорфа
219 000 €

С удовольствием представляем вам этот удивительный бунгало, расположенный в одно...

0
0 отзывов

Chalet adosado en venta en Jacarilla

Аликанте, Хаkarilla
113 000 €

Данное описание было переведено автоматически и может содержать неточности. Пре...

0
0 отзывов

Chalet adosado en venta en Jacarilla

Аликанте, Хаkarilla
105 000 €

Данное описание было переведено автоматически и может не быть совсем точным. Пр...

0
0 отзывов

Chalet adosado en venta en Algorfa

Аликанте, Алгорфа
149 000 €

Это описание было автоматически переведено и может быть не совсем точным. Эта б...

0
0 отзывов

Chalet adosado en venta en Jacarilla

Аликанте, Хаkarilla
127 000 €

Данное описание было переведено автоматически и может не быть очень точным. Буд...

0
0 отзывов
Звонок

Мы используем собственные и сторонние файлы cookie для анализа использования веб-сайта и показа вам рекламы, соответствующей вашим предпочтениям, на основе профиля, созданного по вашим привычкам просмотра (например, посещенные страницы). Подробнее. Вы принимаете файлы cookie?