Piso en Tamarit - Playa Lissa

Аликанте, Санта Пола, Тамарит - Плая Лисса, Tamarit - Playa Lissa
449 000 €
5 161 € / m2
Оставить отзыв
Квартиры Тип недвижимости
2025 Год сдачи
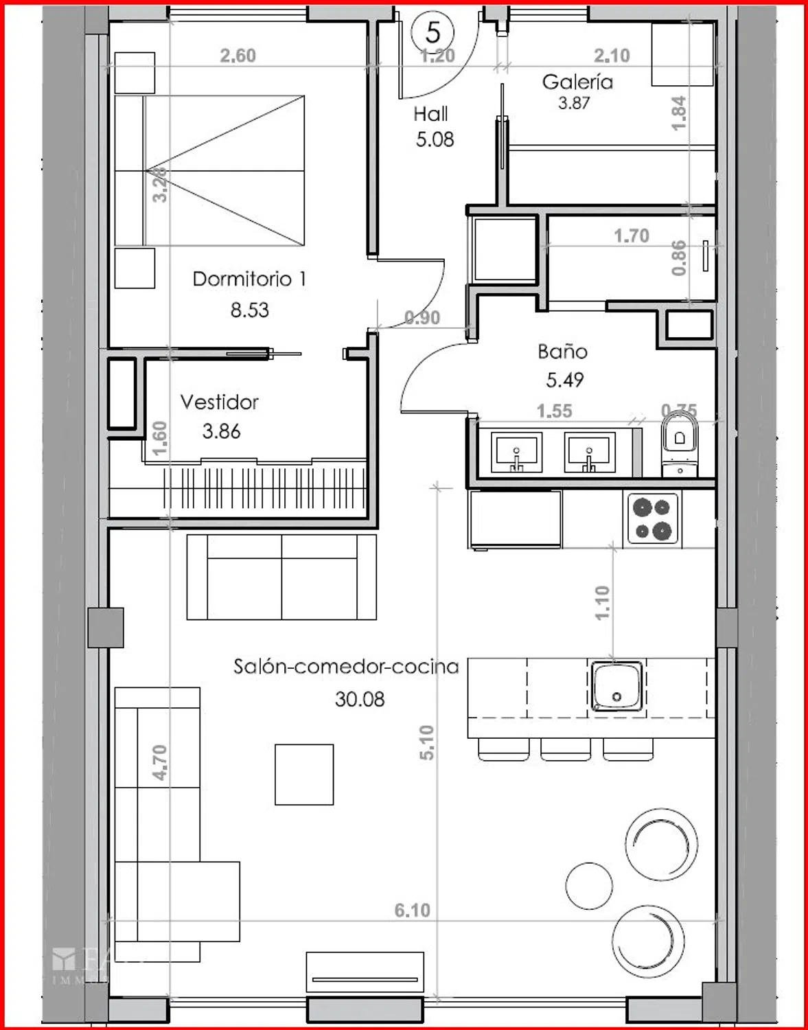
87 m² м2 построенных
81 m² м2 полезной площади
1 Ванные комнаты
1 Спальни
Включено в цену Гараж
Хорошее состояние Состояние недвижимости
Piso de 1 dormitorio totalmente amueblado con vistas al mar en Santa Pola, cerca de Alicante Este moderno piso de 1 dormitorio con 1 baño está totalmente equipado en un estilo contemporáneo. Está amueblado, decorado con estilo con cuadros, tiene una cocina totalmente equipada y un vestidor independiente - listo para entrar a vivir e ideal para sentirse como en casa. Desde la soleada terraza se puede disfrutar de una maravillosa vista al mar, y la playa está a sólo 100 metros. El precio de compra también incluye una plaza de aparcamiento nº 13 (valor: 12.000 euros) y un trastero de aprox. 6 m² (valor: 8.000 euros). El complejo residencial consta de tres modernos bloques con amplias zonas ajardinadas. Las instalaciones incluyen una piscina con camas de agua, un parque infantil, una pérgola y plazas de aparcamiento para bicicletas. Gracias a su excelente ubicación, podrá llegar al aeropuerto de Alicante en sólo 13 minutos (aprox. 13 km). En la misma Santa Pola encontrará numerosos restaurantes, bares, pequeñas boutiques, farmacias, un centro comercial y las famosas salinas de Santa Pola (Las Salinas), un espacio natural único con una rica avifauna. Aquí vivirá en una encantadora ciudad costera con aire mediterráneo, óptimas infraestructuras y excelentes conexiones. ¡Contáctenos ahora para más información y asegúrese este piso especial junto al mar!

Характеристики недвижимости

Complex information

  • Тип недвижимости
    Квартиры

Информация о проекте / Статус работы

  • Год сдачи
    2025
  • Состояние недвижимости
    Хорошее состояние

Данные о недвижимости

  • Гараж
    Включено в цену
  • Спальни
    1
  • Ванные комнаты
    1
  • м2 построенных
    87 m²
  • м2 полезной площади
    81 m²
  • Ориентация
    Восток, Юг
  • Тип недвижимости
    Вторичка

Base

Энергетическая сертификация

  • Состояние энергетического сертификата
    Не указано

Удобства

Удобства жилья:

Кондиционер
Кладовка

В здании:

Бассейн
Лифт
Частная парковка

Эстадо:

Хорошее состояние

Статистика рыночных цен на Piso en Tamarit - Playa Lissa

289 004 € (3 118 €/m2)
Средняя цена на первичные Квартиры в городе Санта Пола
227 199 € (2 547 €/m2)
Средняя цена на вторичные Квартиры в городе Санта Пола

Карта

Аликанте, Санта Пола, Тамарит - Плая Лисса, Tamarit - Playa Lissa Поехать в это место
Оставьте отзыв о Piso en Tamarit - Playa Lissa
0
0 reviews
1
0% (0)
2
0% (0)
3
0% (0)
4
0% (0)
5
0% (0)
FALC Real Estate S.L.
449 000 €
от 5 161 € / m2
Свяжитесь с рекламодателем

Для получения дополнительной информации свяжитесь с платформой

REF: 440136

Отзывы о Piso en Tamarit - Playa Lissa
Loading...

No reviews have been left for this object yet

Дешевые квартиры 62930 Квартиры для ремонта 30902 Квартиры до 50.000€ 28985 Квартиры до 100.000€ 30213 Дома до 100.000€ 30213 Квартиры с видом на море 29755 Элитные квартиры 29420 Недорогие новые квартиры 47752 Продажа квартир с 2 спальнями Аликанте 23645 Продажа квартир 3 комнаты Аликанте 24103 Продажа квартир 4 комнаты Аликанте 21299 Продажа квартир 5 комнат Аликанте 20411 Квартиры в хорошем состоянии Аликанте 22010 Квартиры для ремонта Аликанте 21315 Вторичные квартиры Аликанте 28899 Квартиры с видом на море Аликанте 20381 Недорогие квартиры Аликанте 29536 Квартиры на продажу с лифтом Аликанте 26315 Квартиры до 50.000€ Аликанте 20464 Квартиры до 100.000€ Аликанте 21121 Квартиры новостройки Аликанте 20842 Квартиры класса люкс Аликанте 20324 Квартиры с окнами на улицу Аликанте 20369 Недорогие новые квартиры Аликанте 20842 Квартиры от частных лиц Аликанте 17466 Продажа квартир 2 комнаты Санта Пола 576 Продажа квартир 3 спальни Санта Пола 621 Продажа квартир 4 комнаты Санта Пола 560 Продажа квартир 5 комнат Санта Пола 540 Квартиры в хорошем состоянии Санта Пола 570 Квартиры для ремонта Санта Пола 561 Вторичное жильё Санта Пола 693 Квартиры с видом на海 Санта Пола 537 Дешевые квартиры Санта Пола 702 Квартиры на продажу с лифтом Санта Пола 629 Квартиры до 100.000€ Санта Пола 542 Новые квартиры Санта Пола 546 Квартиры до 50.000€ Санта Пола 537 Элитные квартиры Санта Пола 537 Квартиры с окнами на улицу Санта Пола 537 Дешевые новые квартиры Санта Пола 546 Квартиры от частных лиц Санта Пола 478

Ближайшие объекты

Исследуйте близлежащие объекты, которые мы обнаружили неподалеку от этого местоположения.

Продаются апартаменты на улице Вениды де ла Вирхен, в Санта Поле.

Аликанте, Санта Пола, Тамарит - Плая Лисса, Calle Venida de la Virgen s/n
395 000 €

Откройте для себя этот удивительный комплекс жилых объектов, расположенный в жив...

0
0 отзывов

Квартиры на продажу в районе с прекрасным расположением в Santa Pola, окруженные живописной природой и удобствами для комфортной жизни.

Аликанте, Санта Пола, Тамарит - Плая Лисса, Calle Venida de la Virgen s/n
305 000 €

Откройте для себя этот потрясающий жилой комплекс, расположенный в великолепном...

0
0 отзывов

Apartamentos en Venta en Calle Elda, 228, Santa Pola

Аликанте, Санта Пола, Тамарит - Плая Лисса, Calle Elda, 228
230 000 €

Moderno residencial cerrado compuesto por viviendas de 2 y 3 dormitorios y 2 bañ...

0
0 отзывов

Apartamentos en Venta en Calle Elda, 228, Santa Pola

Аликанте, Санта Пола, Тамарит - Плая Лисса, Calle Elda, 228
250 000 €

Moderno residencial cerrado compuesto por viviendas de 2 y 3 dormitorios y 2 bañ...

0
0 отзывов

Apartamentos en Venta en Calle Elda, 228, Santa Pola

Аликанте, Санта Пола, Тамарит - Плая Лисса, Calle Elda, 228
395 000 €

Moderno residencial cerrado compuesto por viviendas de 2 y 3 dormitorios y 2 bañ...

0
0 отзывов

Apartamentos en Venta en Calle Elda, 228, Santa Pola

Аликанте, Санта Пола, Тамарит - Плая Лисса, Calle Elda, 228
280 000 €

Moderno residencial cerrado compuesto por viviendas de 2 y 3 dormitorios y 2 bañ...

0
0 отзывов

Apartamentos en Venta en Calle Elda, 228, Santa Pola

Аликанте, Санта Пола, Тамарит - Плая Лисса, Calle Elda, 228
270 000 €

Moderno residencial cerrado compuesto por viviendas de 2 y 3 dormitorios y 2 bañ...

0
0 отзывов
Звонок

Мы используем собственные и сторонние файлы cookie для анализа использования веб-сайта и показа вам рекламы, соответствующей вашим предпочтениям, на основе профиля, созданного по вашим привычкам просмотра (например, посещенные страницы). Подробнее. Вы принимаете файлы cookie?