Новостройка Casa independiente en avenida Laguna Azul, 1 в Торревьеха

Аликанте, Торревьеха, Лос-Балконес - Лос-Альтос дель Эден, Avenida Laguna Azul, 1
109 000 €
3 516 € / m2
Оставить отзыв
1992 Год сдачи
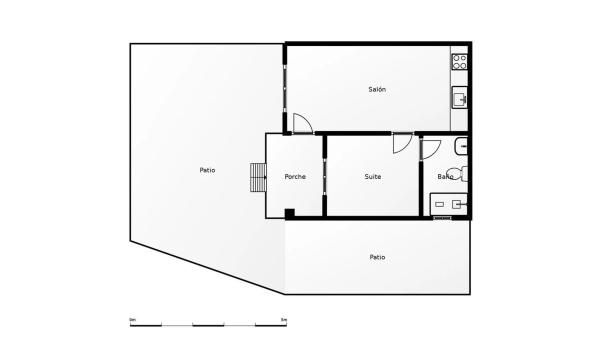
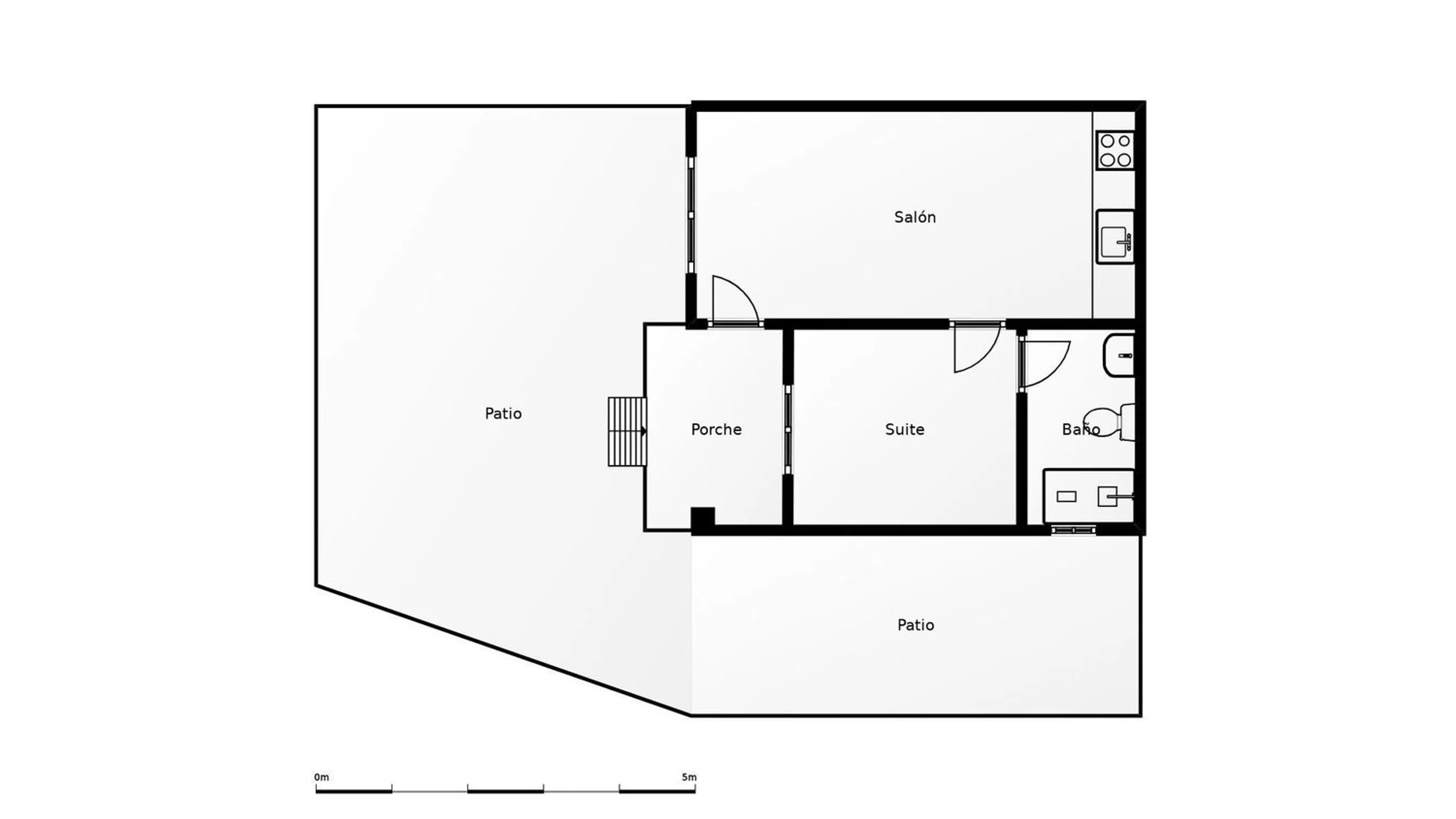
31 m² м2 построенных
23 m² Площадь участка
1 Ванные комнаты
1 Спальни
Хорошее состояние Состояние недвижимости
Descubre este encantador bungalow de planta baja ubicado en la deseada zona de Los Balcones, Torrevieja. Esta propiedad reformada ofrece una superficie construida de 31 m² y cuenta con una acogedora habitación doble ideal para descansar después de disfrutar del sol. La joya es su espaciosa terraza privada de más de 23 m² orientada al sur, perfecta para relajarse o compartir momentos inolvidables con amigos y familiares. Situado a tan solo 3 km del mar Mediterráneo, tendrás acceso fácil a las hermosas playas que caracterizan el sur de la Costa Blanca. Además, el entorno te brinda comodidad gracias a la proximidad a autobuses cercanos que conectan rápidamente con otros puntos importantes; así como centros comerciales donde podrás satisfacer todas tus necesidades diarias. Este bungalow también está rodeado de áreas verdes con árboles frondosos e instalaciones recreativas ideales para los más pequeños. ¡La piscina comunitaria se convierte en el lugar perfecto durante esos cálidos días veraniegos! No olvidemos mencionar que tienes hospitales y colegios cerca. Su ubicación lo hace conveniente tanto si buscas invertir como disfrutar de unas vacaciones en la playa. Su fácil conexión con la autopista AP7 y la nacional 332 te permitirá llegar rápidamente a los lugares más típicos de la comarca. Y último detalle importante: ¡el bungalow se vende amueblado! ¿Qué esperas? Ven y disfruta del estilo mediterráneo desde tu nuevo hogar en la Costa Blanca.

Топ новостройки Испании

Обратите ваше внимание на эти ЖК

10 единиц

Nature Views 2

Аликанте, Торревьеха, Лос-Балконес - Лос-Альтос дель Эден, Denia s/n
310 000 € - 379 000 €
1 единиц

Hotel en venta en Benidorm centro

Аликанте, Бенидорм, Плая де Поньенте
2 250 000 € - 2 250 000 €
32 единиц

Residencial Los Balcones De Calpe

Аликанте, Кальпе, Кальпе Пуэбло, Avenida de Madrid, 1
299 000 € - 892 125 €
7 единиц

Nature Views

Аликанте, Торревьеха, Лаго Хардин II, Avenida Denia s/n
305 000 € - 330 000 €
10 единиц

ALONIS VILLAS

Аликанте, Ла Виллахойоса / Вила Хойоса, Платха де Торрес, Partida Torres s/n
675 000 € - 775 000 €
2 единиц

Residencial Royal Beach

Аликанте, Гуардамар-дель-Сегура, побло, Miguel Hernández 102
339 500 € - 345 500 €
8 единиц

Royal Star

Аликанте, Гуардамар-дель-Сегура
224 500 € - 264 500 €

Характеристики недвижимости

Complex information

Информация о проекте / Статус работы

  • Год сдачи
    1992
  • Состояние недвижимости
    Хорошее состояние

Данные о недвижимости

  • Спальни
    1
  • Ванные комнаты
    1
  • м2 построенных
    31 m²
  • Ориентация
    Юг
  • Тип недвижимости
    Вторичка

Площади

  • Площадь участка
    23 m²

Base

Энергетическая сертификация

  • Состояние энергетического сертификата
    Не указано

Удобства

В здании:

Бассейн
Сад

Удобства жилья:

Терасса

Эстадо:

Хорошее состояние

Статистика рыночных цен на Casa independiente en avenida Laguna Azul, 1

505 817 € (3 329 €/m2)
Средняя цена на первичные в городе Торревьеха
360 786 € (2 523 €/m2)
Средняя цена на вторичные в городе Торревьеха

Карта

Аликанте, Торревьеха, Лос-Балконес - Лос-Альтос дель Эден, Avenida Laguna Azul, 1 Поехать в это место
Оставьте отзыв о Casa independiente en avenida Laguna Azul, 1
0
0 reviews
1
0% (0)
2
0% (0)
3
0% (0)
4
0% (0)
5
0% (0)
RK Playa Flamenca
109 000 €
от 3 516 € / m2
Свяжитесь с рекламодателем

Для получения дополнительной информации свяжитесь с платформой

REF: 402715

Отзывы о Casa independiente en avenida Laguna Azul, 1
Loading...

No reviews have been left for this object yet

Покинутые деревни 14776 Дома для ремонта 16962 Дешевые дома 43917 Дома до 50.000€ 15011 Дома класса люкс 20162 Квартиры с вторичном рынке 38174 Продажа домов с 2 спальнями Аликанте 13525 Продажа домов с 3 спальнями Аликанте 18642 Продажа домов с 4 комнатами Аликанте 15637 Дома в хорошем состоянии Аликанте 13834 Дома для ремонта Аликанте 12493 Дешевые дома Аликанте 30054 Недорогие отдельные шале Аликанте 18803 Покинутые деревни Аликанте 11017 Роскошные дома Аликанте 14331 Дома до 50.000€ Аликанте 11165 Вторичное жилье Аликанте 29322 Частные дома Аликанте 5714 Casas con terreno Аликанте 8947 Продажа домов с 2 спальнями Торревьеха 1420 Продажа домов с 3 спальнями Торревьеха 1499 Продажа домов с 4 спальнями Торревьеха 1381 Дома в хорошем состоянии Торревьеха 1354 Дома для ремонта Торревьеха 1270 Дешевые дома Торревьеха 1988 Недорогие отдельные дома Торревьеха 1354 Роскошные дома Торревьеха 1267 Дома до 50.000€ Торревьеха 1229 Вторичные дома Торревьеха 1942 Частные дома Торревьеха 729

Ближайшие объекты

Исследуйте близлежащие объекты, которые мы обнаружили неподалеку от этого местоположения.

Chalet independiente en Venta en Calle Galapagos , 2, Orihuela

Аликанте, Ориуэла, Орихела Коста, Calle Galapagos , 2
420 000 €

Residencial Morgan consta de 5 villas, trabajaremos con las mismas calidades y a...

0
0 отзывов

Chalet independiente en Venta en Calle Galapagos , 2, Orihuela

Аликанте, Ориуэла, Орихела Коста, Calle Galapagos , 2
395 000 €

Residencial Morgan consta de 5 villas, trabajaremos con las mismas calidades y a...

0
0 отзывов

Chalet independiente en Venta en Calle Galapagos , 2, Orihuela

Аликанте, Ориуэла, Орихела Коста, Calle Galapagos , 2
385 000 €

Residencial Morgan consta de 5 villas, trabajaremos con las mismas calidades y a...

0
0 отзывов

Chalet independiente en Venta en Calle Galapagos , 2, Orihuela

Аликанте, Ориуэла, Орихела Коста, Calle Galapagos , 2
399 000 €

Residencial Morgan consta de 5 villas, trabajaremos con las mismas calidades y a...

0
0 отзывов

Villas en Venta, Orihuela

Аликанте, Ориуэла, Орихела Коста
289 950 €

¡los apartamentos en planta baja, planta media y ático llave en mano disponibles...

0
0 отзывов

Villas en Venta, Orihuela

Аликанте, Ориуэла, Орихела Коста
295 600 €

¡los apartamentos en planta baja, planta media y ático llave en mano disponibles...

0
0 отзывов

Chalet en Barrio El Molino

Аликанте, Торревьеха, Центро, Barrio El Molino
165 000 €

Esta encantadora casa adosada se encuentra en la playa de Naufragos en Torreviej...

0
0 отзывов

Chalet en Barrio El Molino

Аликанте, Торревьеха, Центро, Barrio El Molino
168 000 €

Esta encantadora casa adosada en Torrevieja es una fantástica oportunidad de rev...

0
0 отзывов
Звонок

Мы используем собственные и сторонние файлы cookie для анализа использования веб-сайта и показа вам рекламы, соответствующей вашим предпочтениям, на основе профиля, созданного по вашим привычкам просмотра (например, посещенные страницы). Подробнее. Вы принимаете файлы cookie?