Terreno en calle Alcalá la Real

Алмерия, Рокетас-де-Мар, Рокетас, Calle Alcalá la Real
160 000 €
Оставить отзыв
Земля под застройку Тип недвижимости
1 819 m² Площадь участка
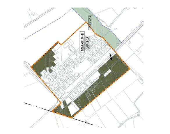
NO COBRAMOS COMISIÓN DE INTERMEDIACIÓN AL COMPRADOR Gran oportunidad de adquirir en propiedad este suelo urbanizable residencial en venta ubicado en la localidad de Roquetas de Mar, provincia de Almería. La parcela se encuadra en un área residencial en la zona norte de la ciudad, en un barrio tranquilo y residencial, con muchas casas unifamiliares y algunos edificios de apartamentos. En una calle residencial con poco tráfico, y está rodeada de otras calles similares. En la zona hay varios parques y zonas verdes, como el Parque Natural Punta Entinas-Sabinar, que se encuentra a pocos minutos en coche. En cuanto a servicios, en la zona hay varios supermercados, tiendas y restaurantes. También hay una escuela primaria y una secundaria cercanas, así como una clínica de salud y una comisaría de policía. A nivel comunicaciones, la zona está bien conectada con el resto de la ciudad y con otras localidades cercanas. Hay varias paradas de autobús en las calles cercanas, que conectan con el centro de la ciudad, la estación de tren y otras zonas de Roquetas de Mar. Además, la autovía A-7, que conecta con otras ciudades como Almería capital o Granada, se encuentra a pocos minutos en coche. - Edificabilidad: 5.410, 90m² - Garaje: 1.818, 66m² - Locales: 1.500m² - Altura máxima: 6 plantas. - Referencia catastral: 0755201WF3605N0001QD Hipoges es una plataforma inmobiliaria donde podrás acceder a miles de activos inmobiliarios de diferentes tipos como viviendas, locales comerciales, terrenos, nueva obra, tanto a nivel particular como para inversores. Hipoges cuenta con una amplia cartera de activos inmuebles tanto en España como en Portugal y Grecia. ¿Necesitas financiación? Te ofrecemos la posibilidad de financiaciones de hasta el 100% para la compra de este inmueble. Entra en Finanwin. com, haz tu simulación y obtén la mejor oferta para tu Hipoteca de la manera más ágil y sencilla.

Характеристики недвижимости

Complex information

  • Тип недвижимости
    Земля под застройку

Данные о недвижимости

  • Тип недвижимости
    Вторичка

Площади

  • Площадь участка
    1 819 m²

Base

Статистика рыночных цен на Terreno en calle Alcalá la Real

Карта

Алмерия, Рокетас-де-Мар, Рокетас, Calle Alcalá la Real Поехать в это место
Оставьте отзыв о Terreno en calle Alcalá la Real
0
0 reviews
1
0% (0)
2
0% (0)
3
0% (0)
4
0% (0)
5
0% (0)
Hipoges Iberia
160 000 €
Свяжитесь с рекламодателем

Для получения дополнительной информации свяжитесь с платформой

REF: 385297

Отзывы о Terreno en calle Alcalá la Real
Loading...

No reviews have been left for this object yet

Ближайшие объекты

Исследуйте близлежащие объекты, которые мы обнаружили неподалеку от этого местоположения.

Terreno en carretera de Roquetas de Mar

Алмерия, Эль ЭХИДО, Сан-Агустин, Carretera de Roquetas de Mar
42 000 €

Parcela de terreno clasificada como suelo urbano, con una superficie de 2348 m²,...

0
0 отзывов

Terreno en La Mojonera

Алмерия, Ла Мохонера, La Mojonera
149 900 €

¡Oportunidad única en La Mojonera! Este amplio solar urbano de 1.435 m² es el lu...

0
0 отзывов

Terreno en calle Juan de Austria s/n

Алмерия, Ла Мохонера, Calle Juan de Austria s/n
73 900 €

Descubre una oportunidad única en el municipio de La Mojonera. Este solar edific...

0
0 отзывов

Terreno en calle Geranio, 2

Алмерия, Ла Мохонера, Calle Geranio, 2
303 000 €

Este terreno se encuentra en Calle Geranio, 2, 04745, La Mojonera, Almería. Es u...

0
0 отзывов

Terreno en calle Juan de Austria s/n Sn

Алмерия, Ла Мохонера, Calle Juan de Austria s/n SN
73 900 €

Es un solar urbano que linda a tres calles: Juan de Austria, Casablanca y Alcald...

0
0 отзывов

Terreno en avenida Antonio Pintor y Amat Benavides, 85

Алмерия, Рокетас-де-Мар, Рокетас, Avenida Antonio Pintor Y Amat Benavides, 85
549 468 €

Parcelas de suelo urbano consolidado de uso residencial. La altura máxima permit...

0
0 отзывов

Terreno en avenida Amat Benavides, 85

Алмерия, Рокетас-де-Мар, Рокетас, Avenida Amat Benavides, 85
555 692 €

Parcelas de suelo urbano consolidado de uso residencial. La altura máxima permit...

0
0 отзывов

Terreno en calle Cartagena

Алмерия, Рокетас-де-Мар, Рокетас, Calle Cartagena
9 545 €

Oportunidad de inversión: pendiente de Posesión. Oportunidad de inversión: pendi...

0
0 отзывов

Terreno en calle Cartagena

Алмерия, Рокетас-де-Мар, Рокетас, Calle Cartagena
72 250 €

Oportunidad de inversión: pendiente de Posesión. Oportunidad de inversión: pendi...

0
0 отзывов
Звонок

Мы используем собственные и сторонние файлы cookie для анализа использования веб-сайта и показа вам рекламы, соответствующей вашим предпочтениям, на основе профиля, созданного по вашим привычкам просмотра (например, посещенные страницы). Подробнее. Вы принимаете файлы cookie?