Новостройка Villa Cap Mar в Санта-Эулария-дель-Рио

Балеары (Ильес), Санта-Эулария-дель-Рио, Хесус/Наша Сеньора де Хесус, Barrio Cap Martinet
от 5 500 000 €
10 848 € / m2
Оставить отзыв
507 m² - 507 m² Площадь объекта
5 Количество спален
6 Ванные комнаты

Prestige Properties Ibiza представляет эксклюзивную дизайнерскую виллу — впечатляющую виллу с пятью спальнями с ванными комнатами в желаемой зоне Кап Марти. Отличное расположение позволяет добраться всего за 10 минут на машине до яхтенной марины и центра города Ибица, а за 5 минут до пляжа Таламанка. В настоящее время в стадии строительства, завершение ожидается к концу 2025 года. Вилла будет передана полностью меблированной и готовой к проживанию: вам нужно будет только привезти ваши чемоданы.

ДОСТУП И ПАРКОВКА

По прибытии доступ к собственности осуществляется по асфальтированной дороге. Участок площадью около 1.180 м² будет полностью огорожен для обеспечения приватности и безопасности. Дом будет иметь место для парковки нескольких автомобилей.

РАСПРЕДЕЛЕНИЕ

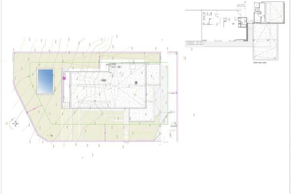
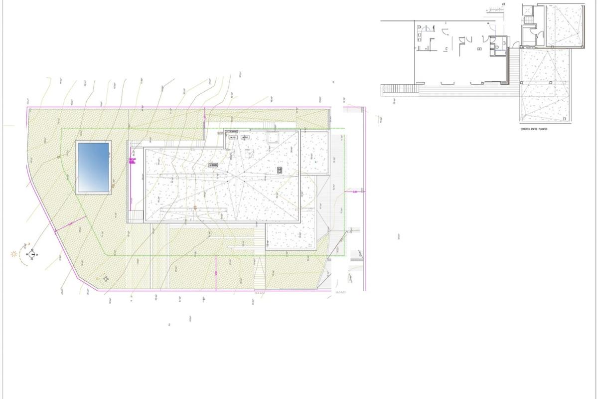
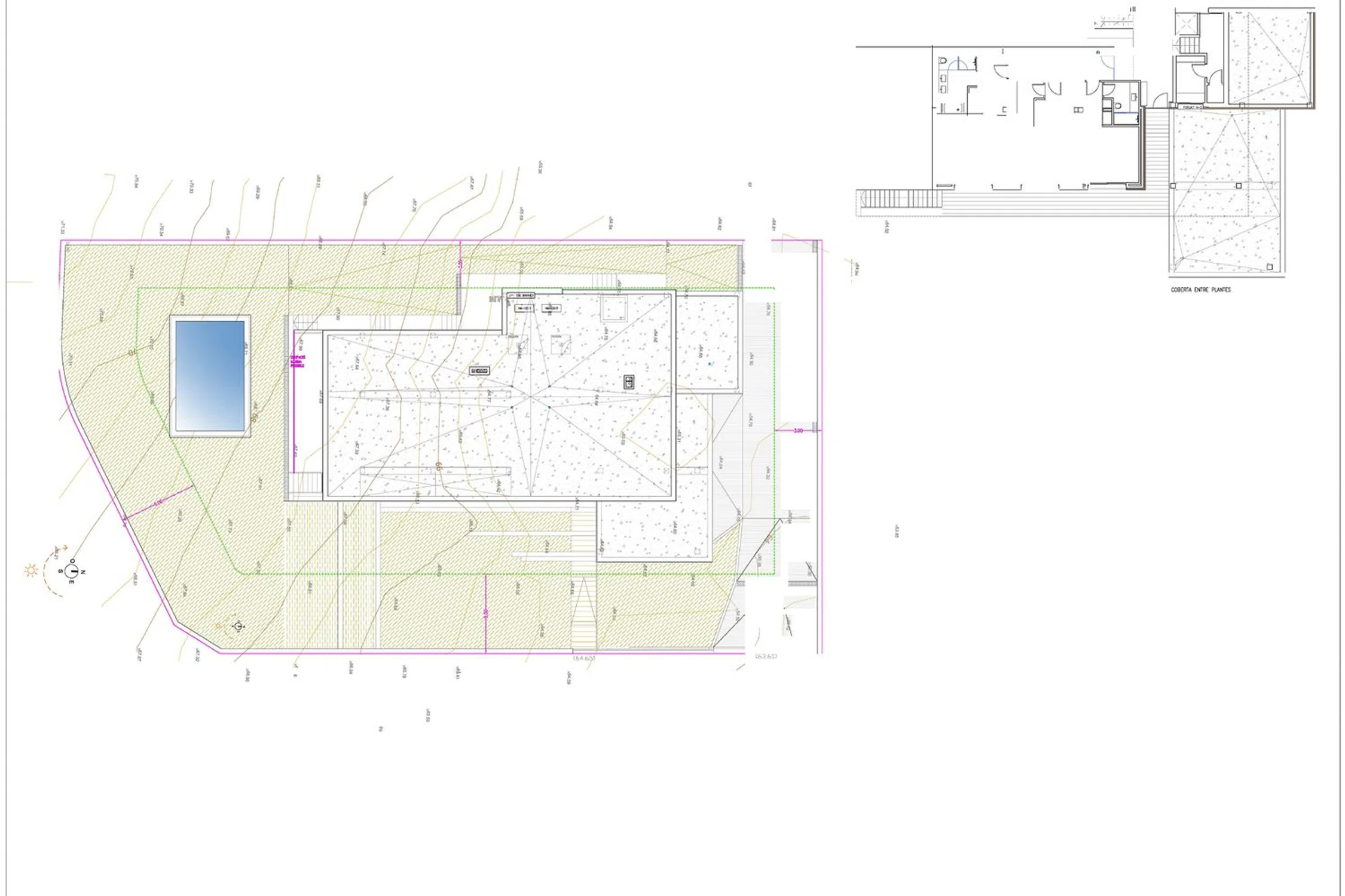
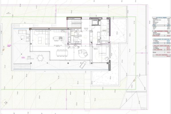
На первом этаже находятся четыре из пяти спален, все с прямым выходом на уличную террасу. Этот этаж площадью около 203 м² также включает парковочную зону, техническую комнату и кладовую. Внутренняя лестница и лифт соединяют этот этаж с верхним уровнем. Верхний этаж площадью около 221 м² предлагает большое открытое пространство, включающее гостиную, столовую и кухню. На этом уровне также находится гостевой туалет и главная спальня. Гостиная выходит на большую солнечную террасу со впечатляющим бассейном площадью 39,30 м². С первого этажа через наружную лестницу можно попасть на террасу-солярий. Это просторное открытое пространство идеально подходит для наслаждения морскими видами и общения с друзьями и семьей.

ЭКСТЕРЬЕР

Вилла располагает несколькими солнечными террасами, садовыми зонами, двориками и частным бассейном, дополняющим экстерьер, создавая элегантную и расслабляющую атмосферу.

ТЕХНИЧЕСКОЕ ОСНАЩЕНИЕ

Собственность будет подключена к общественным сетям электроснабжения, водоснабжения и канализации. Она предлагает центральную систему кондиционирования для круглогодичной климатизации и напольное отопление посредством теплового насоса для более холодных месяцев. Безопасность обеспечивается современной охранной системой, а интегрированная система автоматизации дома обеспечивает дополнительный комфорт и контроль. Принудительная вентиляция обеспечивает постоянную циркуляцию свежего воздуха, поддерживая сухость жилья и создавая здоровую среду, особенно полезную для аллергиков. Волоконно-оптическое подключение к Интернету будет легко доступно. Кроме того, установка лифта включена в стоимость продажи, что значительно повышает доступность жилья.

ЛОКАЦИЯ

Вилла находится в южной части острова, недалеко от города Ибица и очаровательного поселка Хесус, где вы найдете все необходимые услуги: супермаркеты, медицинские центры, банки, спортзалы и другие. Яхтенная марина Ибица находится примерно в 7 минутах езды на машине, а аэропорт — в 20 минутах. Ближайшие пляжи — Таламанка, С’Эстаньол и Кала Бонита, все они находятся всего в нескольких минутах езды.

ИДЕАЛЬНО ДЛЯ

Эта вилла идеальна для ценителей современной минималистичной архитектуры и тех, кто ищет роскошное жилье, оснащенное последними технологиями. Большим преимуществом является то, что вилла будет передана полностью меблированной, что делает ее идеальным вариантом для тех, кто хочет переехать без сложностей и сразу начать наслаждаться своим новым домом на Ибице.

Топ новостройки Испании

Обратите ваше внимание на эти ЖК

10 единиц

Nature Views 2

Аликанте, Торревьеха, Лос-Балконес - Лос-Альтос дель Эден, Denia s/n
310 000 € - 379 000 €
1 единиц

Hotel en venta en Benidorm centro

Аликанте, Бенидорм, Плая де Поньенте
2 250 000 € - 2 250 000 €
28 единиц

Residencial Los Balcones De Calpe

Аликанте, Кальпе, Кальпе Пуэбло, Avenida de Madrid, 1
299 000 € - 892 125 €
4 единиц

Nature Views

Аликанте, Торревьеха, Лаго Хардин II, Avenida Denia s/n
309 000 € - 330 000 €
5 единиц

ALONIS VILLAS

Аликанте, Ла Виллахойоса / Вила Хойоса, Платха де Торрес, Partida Torres s/n
675 000 € - 775 000 €
1 единиц

Residencial Royal Beach

Аликанте, Гуардамар-дель-Сегура, побло, Miguel Hernández 102
349 500 € - 349 500 €
7 единиц

Royal Star

Аликанте, Гуардамар-дель-Сегура
229 500 € - 269 500 €

Объекты в этом комплексе

Предоставленная информация о ценах, характеристиках и деталях этой акции может подвергаться изменениям и корректировкам в зависимости от источника. Таким образом, она не имеет самостоятельной коммерческой ценности, а предоставляется исключительно в информационных и ориентировочных целях. Этот веб-сайт не осуществляет коммерческую деятельность по продвижению этого проекта или недвижимости.

Название
Спальни
Ванные комнаты
Площадь
Этаж
Категория
Цена
5 6 507 m² 2 Отдельный шале 5 500 000 € Visit
Эта информация получена из публичных источников и может быть устаревшей. Она не представляет собой связь с застройщиком.

Характеристики недвижимости

Complex information

  • Объектов
    1
  • Ценовой диапазон
    5 500 000 € - 5 500 000 €
  • Количество спален
    5
  • Площадь объекта
    507 m² - 507 m²
  • Типы недвижимости
    Отдельный шале

Информация о проекте / Статус работы

  • Формат продвижения
    Свободный

Данные о недвижимости

  • M2 средние
    507 m²
  • Тип недвижимости
    Новостройка

Base

  • Снабжение электричеством
    Поле или опция 'Да'

Удобства

Суминстро:

С электричеством
Канализация

В здании:

Бассейн
Сад

Вистас:

Виды на море

Планы

Статистика рыночных цен на Villa Cap Mar

5 500 000 € (10 848 €/m2)
Средняя цена в комплексе
5 500 000 € (10 848 €/m2)
Средняя цена на 4+ комнатные
2 639 000 € (7 100 €/m2)
Средняя цена на первичные Дома в городе Санта-Эулария-дель-Рио
1 044 154 € (7 931 €/m2)
Средняя цена на первичные Квартиры в городе Санта-Эулария-дель-Рио
1 215 000 € (8 567 €/m2)
Средняя цена на первичные Квартиры в районе Хесус/Наша Сеньора де Хесус

Карта

Балеары (Ильес), Санта-Эулария-дель-Рио, Хесус/Наша Сеньора де Хесус, Barrio Cap Martinet Поехать в это место
Оставьте отзыв о Villa Cap Mar
0
0 reviews
1
0% (0)
2
0% (0)
3
0% (0)
4
0% (0)
5
0% (0)
Prestige Properties Ibiza
5 500 000 €
от 10 848 € / m2
Свяжитесь с рекламодателем

Для получения дополнительной информации свяжитесь с платформой

REF: 336478

Отзывы о Villa Cap Mar
Loading...

No reviews have been left for this object yet

Ближайшие объекты

Исследуйте близлежащие объекты, которые мы обнаружили неподалеку от этого местоположения.

3 единиц

Belisla Bossa Nova

Балеарские острова, Эйваса, Фигуретес - Платха д'Эн Босса, Calle Carles Román Ferrer, 36
385 000 € - 510 000 €

Недвижимость в ЖК Belisla Bossa Nova Идет строительство нового проекта Belisla н...

0
0 отзывов
1 единиц

Casa Imagine

Балеарские острова, Санта-Эулария-дель-Рио, Хесус/Наша Сеньора де Хесус, Avenida des Cap Martinet, 158
8 250 000 € - 8 250 000 €

Нам приятно представить вам наш новый проект. Две виллы, строительство которых з...

0
0 отзывов
1 единиц

Can Canario

Балеарские острова, Санта-Эулария-дель-Рио, Хесус/Наша Сеньора де Хесус, Carrer del Canari, 9
875 000 € - 875 000 €

Недвижимость в ЖК Can Canario Представляем новые квартиры в одном из престижных...

0
0 отзывов

proyecto Cas Mut

Балеарские острова, Эйваса, Центро - С'Эйкампле - Кан Миссес, Cala Llonga
-

VILLA DE LUJO DE OBRA NUEVA EN IBIZAParcela de 621,41 m² situada en una ubicació...

0
0 отзывов

Casa / Chalet independiente en venta en Santa Eulalia

Балеарские острова, Санта-Эулария-дель-Рио, Хесус/Наша Сеньора де Хесус, Calle Can Ros, 25
-

Доступна для покупки великолепная вилла новой постройки, расположенная в 10 мину...

0
0 отзывов

Villa Iconic

Балеарские острова, Санта-Эулария-дель-Рио, Хесус/Наша Сеньора де Хесус, Calle Milà, 15
-

Эта впечатляющая вилла, расположенная на участке площадью 918 квадратных метро...

0
0 отзывов

Cap Martinet

Балеарские острова, Санта-Эулария-дель-Рио, Хесус/Наша Сеньора де Хесус, Avenida des Cap Martinet, 184
-

Недвижимость в ЖК Cap Martinet Мечтаете о собственной роскошной вилле на первой...

0
0 отзывов
6 единиц

Célere Aguamarina

Балеарские острова, Эйваса, Фигуретес - Платха д'Эн Босса, Avenida Pere Matutes Noguera, 94
503 200 € - 1 160 860 €

Недвижимость в ЖК Célere Aguamarina Постройка началась. Комплекс представляет с...

0
0 отзывов

Sa Figuera

Балеарские острова, Эйваса, Центро - С'Эйкампле - Кан Миссес, Calle de Buscastell, 11
-

ÚLTIMAS DOS UNIDADES DISPONIBLESObra en curso, proyectado el final de obra para...

0
0 отзывов

Мы используем собственные и сторонние файлы cookie для анализа использования веб-сайта и показа вам рекламы, соответствующей вашим предпочтениям, на основе профиля, созданного по вашим привычкам просмотра (например, посещенные страницы). Подробнее. Вы принимаете файлы cookie?